ГОСУДАРСТВЕННЫЙ СТАНДАРТ СОЮЗА ССР
ДВЕРИ ДЕРЕВЯННЫЕ НАРУЖНЫЕ ДЛЯ ЖИЛЫХ
И ОБЩЕСТВЕННЫХ ЗДАНИЙ
ТИПЫ, КОНСТРУКЦИЯ И РАЗМЕРЫ
ГОСТ 24698-81
ГОСУДАРСТВЕННЫЙ КОМИТЕТ СССР ПО ДЕЛАМ СТРОИТЕЛЬСТВА
Москва
ГОСУДАРСТВЕННЫЙ стандарт соЮЗА ССР
|
ДВЕРИ ДЕРЕВЯННЫЕ НАРУЖНЫЕ ДЛЯ ЖИЛЫХ Типы, конструкция и размеры Wooden external doors for
dwellings and public buildings. |
ГОСТ |
Дата введения 01.01.1984
Настоящий стандарт распространяется на деревянные наружные распашные двери для жилых и общественных зданий, а также для вспомогательных зданий и помещений предприятий различных отраслей народного хозяйства.
Стандарт не распространяется на двери уникальных общественных зданий: вокзалов, театров, музеев, спортивных дворцов, выставочных павильонов, дворцов культуры.
1.1. Двери, изготовляемые по настоящему стандарту, в зависимости от назначения подразделяются на следующие типы:
Н - входные и тамбурные;
С - служебные;
Л - люки и лазы.
1.2. Двери типа Н должны изготовляться с щитовыми и рамочными полотнами. Рамочные полотна могут быть качающимися. Двери типов С и Л должны изготовляться с щитовыми полотнами. Щитовые полотна могут изготовляться с реечной обшивкой.
Двери типов Н и С изготовляются с однопольными и двупольными, остекленными и глухими полотнами, с порогом и без порога.
1.3. Все двери, изготовляемые по настоящему стандарту, относятся к дверям повышенной влагостойкости.
1.4. Габаритные размеры дверей должны соответствовать указанным на черт. 1. Размеры на чертежах стандарта даны для неокрашенных изделий и деталей в мм. Размеры проемов приведены в справочном приложении 1.
По согласованию потребителя с предприятием-изготовителем допускается изменять рисунок остекления за счет уменьшения размеров стекол или их членения, а также применения глухих полотен.
Полотна дверей типа С, обиваемые с двух сторон тонколистовой оцинкованной сталью по ТУ на сталь конкретного вида, имеют размеры по ширине на 6, а по высоте на 5 мм меньше, чем у полотен без обивки.
Дверьми типа С могут быть также двери со сплошным заполнением и усиленной коробкой по ГОСТ 6629.
1.5. Устанавливается следующая структура условного обозначения (марки) дверей.

Примеры условных обозначений:
дверь входная или тамбурная однопольная для проема высотой 21 и шириной 9 дм, остекленная, с правой навеской щитового полотна, с порогом, с обшивкой типа О-2:
ДН21-9 ПЩР2 ГОСТ 24698-81
То же, с левой навеской рамочного полотна:
ДН21-9ЛП ГОСТ 24698-81
Дверь входная или тамбурная с качающимися полотнами для проема высотой 24 и шириной 15 дм:
ДН24-15К ГОСТ 24698-81
Дверь служебная двупольная глухая, для проема высотой 21 и шириной 13 дм, утепленная:
ДС21-13ГУ ГОСТ 24698-81
Люк однопольный для проема высотой 13 и шириной 10 дм:
ДЛ13-10 ГОСТ 24698-81
2.1. Двери должны изготовляться в соответствии с требованиями ГОСТ 475 и настоящего стандарта по рабочим чертежам, утвержденным в установленном порядке.
2.2. Конструкция, форма и типоразмеры дверей должны соответствовать указанным на черт. 2 - 5, а размеры сечений - на черт. 6 - 13.
2.3. Полотна щитовых дверей должны изготовляться со сплошным заполнением щита калиброванными по толщине деревянными рейками.
Облицовка дверей производится материалами в соответствии с ГОСТ 475 в части, относящейся к дверям повышенной влагостойкости.
При условии сплошной обшивки дверей с наружной стороны профилированными рейками по ГОСТ 8242 по слою пергамина по ГОСТ 2697 или обшивки оцинкованной сталью по ТУ на сталь конкретного вида допускается применение твердых ДВП марок Т или Т-П, Т-С, Т-СП по ГОСТ 4598 или клееной фанеры марки ФК по ГОСТ 3916.1 и ГОСТ 3916.2. Тамбурные двери допускается изготовлять без обшивки деревянными рейками. Рейки крепят шурупами по ГОСТ 1144 или гвоздями по ГОСТ 4028 длиной 40 мм с антикоррозийным покрытием. Максимальный шаг креплений - 500 мм. Крепления в каждом ряду должны располагаться на одном уровне по всей ширине полотна.
2.4. Нижние части полотен дверей типа Н должны быть защищены деревянными планками толщиной 16 - 19 мм или полосами из декоративного бумажнослоистого пластика толщиной 1,3 - 2,5 мм по ГОСТ 9590, сверхтвердых ДВП толщиной 3,2 - 4 мм по ГОСТ 4598, тонколистовой оцинкованной стали. Древесные и пластмассовые защитные материалы крепят водостойким клеем и шурупами с антикоррозийным покрытием, а стальные полосы - шурупами длиной 30 - 40 мм по ГОСТ 1144. Шаг крепления по периметру 100 мм. Размеры защитных планок и полос указаны на черт. 6 - 11.
2.5. Полотна и коробки трудносгораемых и утепленных дверей типа С следует защищать тонколистовой оцинкованной сталью толщиной 0,35 - 0,8 мм по ТУ на сталь конкретного вида по всей поверхности с обеих сторон, как указано на черт. 12. Листы стали между собой соединяются в одинарный фальц.
2.6. Полотна трудносгораемых дверей типа С с обеих сторон покрывают слоями асбестового картона толщиной 5 мм по ГОСТ 2850.
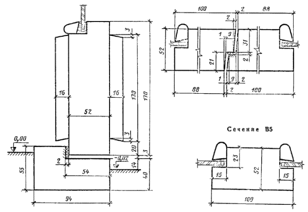
ГАБАРИТНЫЕ РАЗМЕРЫ ДВЕРЕЙ
Примечания:
1. Схемы дверей изображены со стороны фасада.
2. Цифры над схемами дверей обозначают размеры проемов в дециметрах.
3. Размеры в скобках даны для дверей 21-15А, 21-19, 24-15A и 24-19 с качающимися полотнами.
4. Двери 21-9 и 21-13A предусмотрены для одноэтажных зданий и мусороприемных помещений.
Черт. 1
КОНСТРУКЦИЯ, ФОРМА И ТИПОРАЗМЕРЫ ДВЕРЕЙ
Двери щитовые
Сечения деталей см. на черт. 6 - 8.
Черт. 2
Двери рамочные
Сечения деталей см. на черт. 9.
Черт. 3
Сечения деталей см. на черт. 10.
Черт. 4
Двери рамочные с качающимися полотнами
ТИП С
Двери щитовые трудносгораемые и утепленные
ТИП Л
Люки и лазы
Сечения деталей см. на черт. 11 - 13.
Черт. 5
СЕЧЕНИЯ ДЕТАЛЕЙ ДВЕРЕЙ
ТИП н
Двери щитовые
Сечение А1
Сечение А2
1 - уплотняющая прокладка по ГОСТ 10174; 2 - облицовка ДВП марок СТ или ТВ толщиной 3,2 - 5 мм по ГОСТ 4598; 3 - рейка (12´12) мм; 4 - прокладка из резины толщиной 2 мм; 5 - шуруп 1-3´30 по ГОСТ 1144, шаг 200 мм; 6 - монтажная доска
Примечания:
1. Допускается применение пластмассовых раскладок.
2. Допускается применение монтажных досок иной конструкции.
Сечение A3 Сечение А4
Сечение А5
Сечение А6
Вариант с обкладкой
1 - облицовка ДВП марок СТ или ТВ толщиной 3,2 - 5 мм по ГОСТ 4598; 2 - уплотняющая прокладка по ГОСТ 10174
Полотна утепленных дверей типа С покрывают с одной стороны слоем мягких ДВП толщиной 12 мм по ГОСТ 4598. По периметру полотна со стороны изоляции крепят гвоздями или шурупами деревянные рейки (12´30) мм, шаг креплений 100 - 150 мм.
2.7. Для остекления дверей применяют оконное стекло толщиной 4 - 5 мм по ГОСТ 111.
Если стекло находится на расстоянии 800 мм или менее от низа полотна и при использовании стекол большого формата, должны устанавливаться защитные ограждения.
Двери щитовые с обшивкой
Сечение А1 Сечения A3 и А4
Сечение А2 Сечение А5
1 - уплотняющая прокладка по ГОСТ 10174; 2 - облицовка ДВП марок Т, Т-П, Т-С или Т-СП группы А толщиной 3,2 - 4 мм по ГОСТ 4598; 3 - обшивка марки О-3 по ГОСТ 8242; 4 - пергамин по ГОСТ 2697; 5 - облицовка ДВП марок СТ или СТ-С толщиной 3,2 - 5 мм по ГОСТ 4598; 6 - раскладка (19´13) мм
тип н
Двери рамочные
Сечение Б1 Сечение Б3
Сечение Б2 Сечение Б4
1 - уплотняющая прокладка по ГОСТ 10174; 2 - соединение на клеях повышенной водостойкости; 3 - шуруп 1-3´30 по ГОСТ 1144, шаг 200 мм; 4 - прокладка из резины толщиной 2 мм; 5 - рейка (12´20) мм; 6 - монтажная доска
Сечение В1 Сечение В3
Сечение В2 Сечение В4
1 - уплотняющая прокладка по ГОСТ 10174
Двери рамочные с качающимися полотнами
Сечение Г1 Сечение Г3
Сечение Г2 Сечение Г4
1 - пружинная петля по ГОСТ 5088; 2 - пластик бумажнослоистый по ГОСТ 9590; 3 - монтажная доска
Примеры установки защитных ограждений приведены в рекомендуемом приложении 2.
Толщина стекла, конструкция защитных решеток и изменения конструкции дверей, связанные с установкой электрозамков, должны быть указаны в рабочих чертежах.
2.8. Для защиты от механических повреждений снижения шума и теплопотерь двери типа Н должны быть укомплектованы дверными закрывателями типа ЗД1 по ГОСТ 5091-78, уплотняющими прокладками по ГОСТ 10174 или из пористой резины по ГОСТ 7338, дверными упорами типа УД1 по ГОСТ 5091. В двупольных дверях должны устанавливаться задвижки ЗТ или шпингалеты ШВ по ГОСТ 5090.
2.9. Необходимость комплектования дверей замками по ГОСТ 5089 должна указываться в заказе.
2.10. Расположение приборов и их типы приведены в обязательном приложении 3.
2.11. В заказе на поставку дверей должно быть указано:
число дверей по маркам и обозначение настоящего стандарта;
вид и цвет отделки;
толщина стекла;
спецификация приборов.
тип с
Двери щитовые
Трудносгораемые
Сечение Д1 Сечение Д3
Сечение Д2 Сечение Д4
Утепленные
Сечение E1 Сечение Е3
Сечение Е2 Сечение Е4
1 - резиновая прокладка по ГОСТ 7338; 2 - сталь тонколистовая оцинкованная толщиной 0,5 мм; 3 - облицовка ДВП марки СТ или ТВ толщиной 5 мм по ГОСТ 4598; 4 - картон асбестовый по ГОСТ 2850; 5 - мягкая ДВП марки М-1 толщиной 12 мм по ГОСТ 4598; 6 - рейка деревянная (12´30) мм; 7 - шурупы 1-4´40 по ГОСТ 1144, шаг 200 мм
тип л
Люки и лазы
Сечение Ж1 Сечение Ж3
Сечение Ж2
1 - сталь тонколистовая оцинкованная толщиной 0,5 мм; 2 - ручка-скоба РС по ГОСТ 5087; 3 - доски; 4 - минераловатные плиты на синтетическом связующем по ГОСТ 9573; 5 - резина пористая (6´20) мм; 6 - петля ПН1-130 по ГОСТ 5088; 7 - упор деревянный толщиной 50 мм
Справочное
ТИП Н
Примечание. В скобках указаны размеры проемов для качающихся дверей.
ТИП С
ТИП л
Рекомендуемое
Деревянные ограждения
Металлические ограждения
Обязательное
Однопольные двери типов Н и С
Двупольные двери типов Н и С
Двери типа Л Петля для противовеса
Примечания:
1. В дверях типа С закрыватели не устанавливают.
2. Замки устанавливают в случаях, предусмотренных рабочими чертежами.
3. Ручки-скобы могут устанавливаться вертикально или горизонтально.
4. Петли для противовеса устанавливают в однопольных люках. Допускается применение петель другой конструкции.
ИНФОРМАЦИОННЫЕ ДАННЫЕ
1. РАЗРАБОТАН И ВНЕСЕН Государственным комитетом по гражданскому строительству и архитектуре при Госстрое СССР
РАЗРАБОТЧИКИ
Ю.А. Арго (руководитель темы), канд. техн. наук; И.В. Строков; И.С. Посельская; Г.Г. Коваленко; З.А. Буркова; Г.В. Левушкин
2. УТВЕРЖДЕН И ВВЕДЕН В ДЕЙСТВИЕ постановлением Государственного комитета СССР по делам строительства от 13.04.81 № 51
3. Введен впервые
4. ССЫЛОЧНЫЕ НОРМАТИВНО-ТЕХНИЧЕСКИЕ ДОКУМЕНТЫ
|
Номер пункта, приложения |
Обозначение НТД, на который дана ссылка |
Номер пункта, приложения |
|
|
ГОСТ 5088-78 |
|||
|
ГОСТ 5089-90 |
|||
|
ГОСТ 2850-80 |
|||
|
ГОСТ 3916.1-89 |
|||
|
ГОСТ 9573-82 |
|||
|
|
|
5. Переиздание. Октябрь 1991 г.
СОДЕРЖАНИЕ
|
2. Требования к конструкции. 3 Приложение 1 Размеры дверных проемов в стенах. 19 |
|
_________________________________________________________ |