ÏÐÀÂÈÒÅËÜÑÒÂÎ ÌÎÑÊÂÛ
ÌÎÑÊÎÌÀÐÕÈÒÅÊÒÓÐÀ
ÐÅÊÎÌÅÍÄÀÖÈÈ
ïî ïðîåêòèðîâàíèþ
ñîöèàëüíî-ðåàáèëèòàöèîííûõ öåíòðîâ
äëÿ íåñîâåðøåííîëåòíèõ
2004
ÏÐÅÄÈÑËÎÂÈÅ
1. ÐÀÇÐÀÁÎÒÀÍÛ: ÃÓÏ ÌÍÈÈÏ «Ìîñïðîåêò-4» (àðõèòåêòîðû Ëþáîìóäðîâà Ê.È., Êðÿæåâñêèõ Ì.À., èíæåíåð Òèõîìèðîâà È.Á.).
2. ÏÎÄÃÎÒÎÂËÅÍÛ Ê ÓÒÂÅÐÆÄÅÍÈÞ È ÈÇÄÀÍÈÞ Óïðàâëåíèåì ïåðñïåêòèâíîãî ïðîåêòèðîâàíèÿ, íîðìàòèâîâ è êîîðäèíàöèè ïðîåêòíî-èçûñêàòåëüñêèõ ðàáîò Ìîñêîìàðõèòåêòóðû
3. ÑÎÃËÀÑÎÂÀÍÛ: Äåïàðòàìåíòîì ñîöèàëüíîé çàùèòû íàñåëåíèÿ ãîðîäà Ìîñêâû, Ìîñêîìàðõèòåêòóðîé.
4. ÓÒÂÅÐÆÄÅÍÛ È ÂÂÅÄÅÍÛ Â ÄÅÉÑÒÂÈÅ óêàçàíèåì Ìîñêîìàðõèòåêòóðû îò 30.04.2004 ã. ¹ 17.
ÑÎÄÅÐÆÀÍÈÅ
|
5. Ïîëîæåíèÿ ïî ðàçìåùåíèþ, ó÷àñòêó è òåððèòîðèè. 5 6. Ïîëîæåíèÿ ïî àðõèòåêòóðíî-ïëàíèðîâî÷íûì ðåøåíèÿì è èíæåíåðíîìó îáîðóäîâàíèþ.. 7 |
Ãîñóäàðñòâåííîå ó÷ðåæäåíèå Ñîöèàëüíî-ðåàáèëèòàöèîííûé öåíòð äëÿ íåñîâåðøåííîëåòíèõ (äàëåå ÑÐÖ) ÿâëÿåòñÿ ñïåöèàëèçèðîâàííûì ó÷ðåæäåíèåì, âõîäÿùèì â ñèñòåìó ïðîôèëàêòèêè áåçíàäçîðíîñòè è ïðàâîíàðóøåíèé íåñîâåðøåííîëåòíèõ ãîðîäà Ìîñêâû.
Îñíîâíûìè çàäà÷àìè Ñîöèàëüíî-ðåàáèëèòàöèîííûõ öåíòðîâ äëÿ íåñîâåðøåííîëåòíèõ ÿâëÿåòñÿ ïðîôèëàêòèêà áåçíàäçîðíîñòè, ðàáîòà ñ ñåìüÿìè íåñîâåðøåííîëåòíèõ, ðåàáèëèòàöèÿ íåñîâåðøåííîëåòíèõ ñ ðàçëè÷íûìè ôîðìàìè è ñòåïåíüþ ñîöèàëüíîé äåçàäàïòàöèè, îáåñïå÷åíèå èì ñîöèàëüíîé ïîìîùè è ñîöèàëüíîãî ïàòðîíàæà íåñîâåðøåííîëåòíèõ.
1.1. Íàñòîÿùèå «Ðåêîìåíäàöèè» ðàçðàáîòàíû â ðàçâèòèå íîðìàòèâíûõ äîêóìåíòîâ ïî ïðîåêòèðîâàíèþ è ñòðîèòåëüñòâó â ã. Ìîñêâå è ðàñïðîñòðàíÿþòñÿ íà ïðîåêòèðîâàíèå íîâûõ è ðåêîíñòðóêöèþ ñóùåñòâóþùèõ ÑÐÖ.
1.2. Íàñòîÿùèå «Ðåêîìåíäàöèè» óñòàíàâëèâàþò îñíîâíûå ïîëîæåíèÿ ïî ðàçìåùåíèþ, ó÷àñòêó, òåððèòîðèè, àðõèòåêòóðíî-ïëàíèðîâî÷íûì ðåøåíèÿì è èíæåíåðíîìó îáåñïå÷åíèþ ÑÐÖ.
1.3. ÑÐÖ ðàçìåùàþòñÿ â ñïåöèàëüíî ïîñòðîåííûõ èëè ïðèñïîñîáëåííûõ çäàíèÿõ ñ íåîáõîäèìûìè ïîìåùåíèÿìè, êîòîðûå äîëæíû ñîîòâåòñòâîâàòü ñàíèòàðíî-ãèãèåíè÷åñêèì, ïðîòèâîïîæàðíûì òðåáîâàíèÿì è òðåáîâàíèÿì îõðàíû òðóäà, ðàñïîëàãàòü âñåìè âèäàìè êîììóíàëüíî-áûòîâîãî óñòðîéñòâà.
1.4. Ïðîåêòèðîâàíèå ÑÐÖ äîëæíî âåñòèñü â ñîîòâåòñòâèè ñ ïîëîæåíèÿìè íàñòîÿùèõ «Ðåêîìåíäàöèé», à òàêæå ñ òðåáîâàíèÿìè äðóãèõ íîðìàòèâíî-ìåòîäè÷åñêèõ äîêóìåíòîâ â ñòðîèòåëüñòâå, äåéñòâóþùèõ íà òåððèòîðèè ã. Ìîñêâû (Ðàçäåë 2 íàñòîÿùèõ Ðåêîìåíäàöèé).
 íàñòîÿùèõ Ðåêîìåíäàöèÿõ ïðèâåäåíû ññûëêè íà ñëåäóþùèå íîðìàòèâíî-ìåòîäè÷åñêèå äîêóìåíòû:
ÑÍèÏ 2.08.02-89* «Îáùåñòâåííûå çäàíèÿ è ñîîðóæåíèÿ»;
ÑÍèÏ 21-01-97* «Ïîæàðíàÿ áåçîïàñíîñòü çäàíèé è ñîîðóæåíèé»;
ÑÍèÏ 2.07.01-89* «Ãðàäîñòðîèòåëüñòâî. Ïëàíèðîâêà è çàñòðîéêà ãîðîäñêèõ è ñåëüñêèõ ïîñåëåíèé»;
ÑÍèÏ 23-05-95* «Åñòåñòâåííîå è èñêóññòâåííîå îñâåùåíèå»;
ÍÏÁ 88-2001 «Óñòàíîâêè ïîæàðîòóøåíèÿ è ñèãíàëèçàöèè. Íîðìû è ïðàâèëà ïðîåêòèðîâàíèÿ»;
ÑÍèÏ 41-01-2003 «Îòîïëåíèå, âåíòèëÿöèÿ è êîíäèöèîíèðîâàíèå âîçäóõà»;
ÑÍèÏ 2.04.01-85* «Âíóòðåííèé âîäîïðîâîä è êàíàëèçàöèÿ çäàíèé»;
ÑÍèÏ 35-01-2001 «Äîñòóïíîñòü çäàíèé è ñîîðóæåíèé äëÿ ìàëîìîáèëüíûõ ãðóïï íàñåëåíèÿ»;
ÑàíÏèÍ 2.4.2.1178-02 «Ãèãèåíè÷åñêèå òðåáîâàíèÿ ê óñëîâèÿì îáó÷åíèÿ â îáùåîáðàçîâàòåëüíûõ ó÷ðåæäåíèÿõ»;
ÑàíÏèÍ 2.2.1/2.1.1.1278-03 «Ãèãèåíè÷åñêèå òðåáîâàíèÿ ê åñòåñòâåííîìó, èñêóññòâåííîìó è ñîâìåùåííîìó îñâåùåíèþ â æèëûõ è îáùåñòâåííûõ çäàíèÿõ»;
ÑàíÏèÍ 2.2.1/2.1.1.1076-01 «Ãèãèåíè÷åñêèå òðåáîâàíèÿ ê èíñîëÿöèè è ñîëíöåçàùèòå ïîìåùåíèé æèëûõ è îáùåñòâåííûõ çäàíèé è òåððèòîðèé»;
ÑàÍÏèÍ 2.1.2.1188-03 «Ïëàâàòåëüíûå áàññåéíû. Ãèãèåíè÷åñêèå òðåáîâàíèÿ ê óñòðîéñòâó, ýêñïëóàòàöèè è êà÷åñòâó âîäû. Êîíòðîëü êà÷åñòâà»;
ÑÍ 441-72* «Óêàçàíèÿ ïî ïðîåêòèðîâàíèþ îãðàæäåíèé ïëîùàäîê è ó÷àñòêîâ ïðåäïðèÿòèé, çäàíèé è ñîîðóæåíèé»;
ÌÃÑÍ 4.06-03 «Îáùåîáðàçîâàòåëüíûå ó÷ðåæäåíèÿ»;
ÌÃÑÍ 4.15-98 «Îáùåîáðàçîâàòåëüíûå ó÷ðåæäåíèÿ äëÿ äåòåé-ñèðîò è äåòåé, îñòàâøèõñÿ áåç ïîïå÷åíèÿ ðîäèòåëåé»;
ÌÃÑÍ 1.01-99 «Íîðìû è ïðàâèëà ïðîåêòèðîâàíèÿ, ïëàíèðîâêè è çàñòðîéêè ã. Ìîñêâû»;
ÌÃÑÍ 2.06-99 «Åñòåñòâåííîå, èñêóññòâåííîå è ñîâìåùåííîå îñâåùåíèå»;
ÌÃÑÍ 2.01-99 «Ýíåðãîñáåðåæåíèå â çäàíèÿõ»;
«Ðåêîìåíäàöèè ïî ïðîåêòèðîâàíèþ ñîöèàëüíûõ ïðèþòîâ äëÿ äåòåé è ïîäðîñòêîâ», Ì., 2002 ã.;
«Ðåêîìåíäàöèè ïî ïðîåêòèðîâàíèþ ñïåöèàëüíûõ ó÷åáíî-âîñïèòàòåëüíûõ ó÷ðåæäåíèé îòêðûòîãî òèïà äëÿ äåòåé è ïîäðîñòêîâ ñ äåâèàíòíûì ïîâåäåíèåì», Ì., 2002 ã.;
«Ðåêîìåíäàöèè ïî ïðîåêòèðîâàíèþ îáðàçîâàòåëüíûõ ó÷ðåæäåíèé äëÿ äåòåé, íóæäàþùèõñÿ â ïñèõîëîãî-ïåäàãîãè÷åñêîé è ìåäèêî-ñîöèàëüíîé ïîìîùè», Ì., 2000 ã.;
«Ðåêîìåíäàöèè ïî ïðîåêòèðîâàíèþ îáðàçîâàòåëüíûõ øêîë äëÿ áîëüíûõ äåòåé è äåòåé-èíâàëèäîâ (øêîë íàäîìíîãî îáó÷åíèÿ)», Ì., 2001 ã.;
«Ðåêîìåíäàöèè ïî ïðîåêòèðîâàíèþ ìåæðàéîííûõ öåíòðîâ ïî ïðîôèëàêòèêå áåçíàäçîðíîñòè, ïðåñòóïíîñòè, àëêîãîëèçìà, íàðêîìàíèè è ÑÏÈÄà ñðåäè íåñîâåðøåííîëåòíèõ», Ì, 2002 ã.;
«Ïîñîáèÿ ïî ïðîåêòèðîâàíèþ îêðóæàþùåé ñðåäû äëÿ ëþäåé ñ ôèçè÷åñêèìè îãðàíè÷åíèÿìè», Ì, 1997 ã., Âûïóñê 2;
«Ïðîåêòèðîâàíèå áàññåéíîâ». Ñïðàâî÷íîå ïîñîáèå ê ÑÍèÏ 2.08.02-89*, Ì, Ñòðîéèçäàò, 1991 ã.
 íàñòîÿùèõ Ðåêîìåíäàöèÿõ óïîòðåáëÿþòñÿ ñëåäóþùèå ïîíÿòèÿ:
áåçíàäçîðíûé - íåñîâåðøåííîëåòíèé, êîíòðîëü çà ïîâåäåíèåì êîòîðîãî îòñóòñòâóåò âñëåäñòâèå íåèñïîëíåíèÿ èëè íåíàäëåæàùåãî èñïîëíåíèÿ îáÿçàííîñòåé ïî åãî âîñïèòàíèþ, îáó÷åíèþ è (èëè) ñîäåðæàíèþ ñî ñòîðîíû ðîäèòåëåé èëè çàêîííûõ ïðåäñòàâèòåëåé ëèáî äîëæíîñòíûõ ëèö;
áåñïðèçîðíûé - áåçíàäçîðíûé, íå èìåþùèé ìåñòà æèòåëüñòâà è (èëè) ìåñòà ïðåáûâàíèÿ;
íåñîâåðøåííîëåòíèé, íàõîäÿùèéñÿ â ñîöèàëüíî îïàñíîì ïîëîæåíèè, - ëèöî â âîçðàñòå äî âîñåìíàäöàòè ëåò, êîòîðîå âñëåäñòâèå áåçíàäçîðíîñòè èëè áåñïðèçîðíîñòè íàõîäèòñÿ â îáñòàíîâêå, ïðåäñòàâëÿþùåé îïàñíîñòü äëÿ åãî æèçíè èëè çäîðîâüÿ ëèáî íå îòâå÷àþùåé òðåáîâàíèÿì ê åãî âîñïèòàíèþ èëè ñîäåðæàíèþ, ëèáî ñîâåðøàåò ïðàâîíàðóøåíèå èëè àíòèîáùåñòâåííûå äåéñòâèÿ;
íåñîâåðøåííîëåòíèé, îêàçàâøèéñÿ â òðóäíîé æèçíåííîé ñèòóàöèè, - ëèöî â âîçðàñòå äî âîñåìíàäöàòè ëåò, êîòîðîå âñëåäñòâèå îáúåêòèâíûõ ïðè÷èí ëèøåíî íà âðåìÿ îïåêè ðîäèòåëåé èëè çàêîííûõ ïðåäñòàâèòåëåé è íóæäàþùååñÿ â ñîöèàëüíîé ïîìîùè è (èëè) ïñèõîëîãè÷åñêîé ðåàáèëèòàöèè;
íåñîâåðøåííîëåòíèé ñ îãðàíè÷åííûìè âîçìîæíîñòÿìè - ëèöî â âîçðàñòå äî âîñåìíàäöàòè ëåò, îêàçàâøååñÿ â òðóäíîé æèçíåííîé ñèòóàöèè ñ îòãðàíè÷åííûìè âîçìîæíîñòÿìè ïåðåäâèæåíèÿ è (èëè) ñ õðîíè÷åñêèìè ñîìàòè÷åñêèìè çàáîëåâàíèÿìè;
äåâèàíòíîå (àñîöèàëüíîå) ïîâåäåíèå - ïîâåäåíèå, ïðîòèâîðå÷àùåå ïðèíÿòûì â îáùåñòâå ïðàâîâûì è (èëè) íðàâñòâåííûì íîðìàì;
äåëèêâåíòíîå ïîâåäåíèå - ïîâåäåíèå, ñîîòâåòñòâóþùåå ïðèíÿòûì â îáùåñòâå ïðàâîâûì è (èëè) íðàâñòâåííûì íîðìàì;
ñåìüÿ, íàõîäÿùàÿñÿ î ñîöèàëüíî îïàñíîì ïîëîæåíèè, - ñåìüÿ, èìåþùàÿ äåòåé, íàõîäÿùèõñÿ â ñîöèàëüíî îïàñíîì ïîëîæåíèè, à òàêæå ñåìüÿ, ãäå ðîäèòåëè èëè çàêîííûå ïðåäñòàâèòåëè íåñîâåðøåííîëåòíèõ íå èñïîëíÿþò ñâîèõ îáÿçàííîñòåé ïî èõ âîñïèòàíèþ, îáó÷åíèþ è (èëè) ñîäåðæàíèþ, è (èëè) îòðèöàòåëüíî âëèÿþò íà èõ ïîâåäåíèå ëèáî æåñòîêî îáðàùàþòñÿ ñ íèìè;
èíäèâèäóàëüíàÿ ïðîôèëàêòè÷åñêàÿ ðàáîòà - äåÿòåëüíîñòü ïî ñâîåâðåìåííîìó âûÿâëåíèþ íåñîâåðøåííîëåòíèõ è ñåìåé, íàõîäÿùèõñÿ â ñîöèàëüíî îïàñíîì ïîëîæåíèè, à òàêæå ïî èõ ñîöèàëüíî-ïåäàãîãè÷åñêîé ðåàáèëèòàöèè è (èëè) ïðåäóïðåæäåíèþ ñîâåðøåíèÿ èìè ïðàâîíàðóøåíèé è àíòèîáùåñòâåííûõ äåéñòâèé;
âîññòàíîâëåíèå ñîöèàëüíîãî ñòàòóñà íåñîâåðøåííîëåòíåãî - íîðìàëèçàöèÿ îòíîøåíèé íåñîâåðøåííîëåòíèõ â ñåìüå è â êîëëåêòèâå ñâåðñòíèêîâ;
ïðîôèëàêòèêà áåçíàäçîðíîñòè è ïðàâîíàðóøåíèé íåñîâåðøåííîëåòíèõ - ñèñòåìà ñîöèàëüíûõ, ïðàâîâûõ, ïåäàãîãè÷åñêèõ è èíûõ ìåð, íàïðàâëåííûõ íà âûÿâëåíèå è óñòðàíåíèå ïðè÷èí è óñëîâèé, ñïîñîáñòâóþùèõ áåçíàäçîðíîñòè, áåñïðèçîðíîñòè, ïðàâîíàðóøåíèÿì è àíòèîáùåñòâåííûì äåéñòâèÿì íåñîâåðøåííîëåòíèõ, îñóùåñòâëÿåìûõ â ñîâîêóïíîñòè ñ èíäèâèäóàëüíîé ïðîôèëàêòè÷åñêîé ðàáîòîé ñ íåñîâåðøåííîëåòíèìè è ñåìüÿìè, íàõîäÿùèìèñÿ â ñîöèàëüíî îïàñíîì ïîëîæåíèè;
îðãàíû îïåêè è ïîïå÷èòåëüñòâà - ãîñóäàðñòâåííûå îðãàíèçàöèè, â âåäåíèè êîòîðûõ íàõîäÿòñÿ âîïðîñû, ñâÿçàííûå ñ çàùèòîé ëè÷íîñòíûõ è èìóùåñòâåííûõ ïðàâ äåòåé-ñèðîò è íåñîâåðøåííîëåòíèõ, îñòàâøèõñÿ áåç ïîïå÷åíèÿ ðîäèòåëåé è (èëè) çàêîííûõ ïðåäñòàâèòåëåé;
ñîöèàëüíàÿ ãîñòèíèöà - îòäåëåíèå ÑÐÖ, îðãàíèçîâàííîå äëÿ íåñîâåðøåííîëåòíèõ â âîçðàñòå îò 15 äî 18 ëåò, îêàçàâøèõñÿ â òðóäíîé æèçíåííîé ñèòóàöèè è íóæäàþùèõñÿ â ñîöèàëüíîé ïîìîùè.
4.1. ÑÐÖ ÿâëÿþòñÿ ó÷ðåæäåíèÿìè, â êîòîðûõ â óñëîâèÿõ íåïðåðûâíîãî ðåàáèëèòàöèîííîãî ïðîöåññà íåñîâåðøåííîëåòíèì îêàçûâàåòñÿ ñîöèàëüíàÿ, ïðàâîâàÿ, ïñèõîëîãî-ìåäèêî-ïåäàãîãè÷åñêàÿ ïîìîùü íà îñíîâå èíäèâèäóàëüíûõ è ãðóïïîâûõ ïðîãðàìì ñîöèàëüíîé ðåàáèëèòàöèè, ñîñòîÿùèõ èç ïðîôåññèîíàëüíî-òðóäîâîãî, ó÷åáíî-ïîçíàâàòåëüíîãî, ñîöèàëüíî-êóëüòóðíîãî è ôèçêóëüòóðíî-îçäîðîâèòåëüíîãî êîìïîíåíòîâ.
4.2. Îñíîâíûìè íàïðàâëåíèÿìè äåÿòåëüíîñòè ÑÐÖ ÿâëÿþòñÿ:
- âûÿâëåíèå è óñòðàíåíèå ïðè÷èí, ñïîñîáñòâóþùèõ áåçíàäçîðíîñòè è áåñïðèçîðíîñòè íåñîâåðøåííîëåòíèõ;
- îáåñïå÷åíèå âðåìåííîãî ïðîæèâàíèÿ íåñîâåðøåííîëåòíèõ, îêàçàâøèõñÿ â òðóäíîé æèçíåííîé ñèòóàöèè;
- îêàçàíèå ïîìîùè â âîññòàíîâëåíèè ñîöèàëüíîãî ñòàòóñà íåñîâåðøåííîëåòíèõ â êîëëåêòèâàõ ñâåðñòíèêîâ ïî ìåñòó ó÷åáû, ðàáîòû, æèòåëüñòâà, ñîäåéñòâèå âîçâðàùåíèþ íåñîâåðøåííîëåòíèõ â ñåìüè;
- îêàçàíèå ñîöèàëüíîé, ïñèõîëîãè÷åñêîé è èíîé ïîìîùè íåñîâåðøåííîëåòíèì, èõ ðîäèòåëÿì (çàêîííûì ïðåäñòàâèòåëÿì) â ëèêâèäàöèè òðóäíîé æèçíåííîé ñèòóàöèè;
- ðàçðàáîòêà è ðåàëèçàöèÿ èíäèâèäóàëüíûõ è ãðóïïîâûõ ïðîãðàìì ñîöèàëüíîé ðåàáèëèòàöèè íåñîâåðøåííîëåòíèõ, íàïðàâëåííûõ íà âûõîä èç òðóäíîé æèçíåííîé ñèòóàöèè;
- îáåñïå÷åíèå çàùèòû ïðàâ è çàêîííûõ èíòåðåñîâ íåñîâåðøåííîëåòíèõ;
- îðãàíèçàöèÿ ìåäèöèíñêîãî îáñëóæèâàíèÿ è îáó÷åíèÿ íåñîâåðøåííîëåòíèõ, ñîäåéñòâèå èõ ïðîôåññèîíàëüíîé îðèåíòàöèè è ïîëó÷åíèþ èìè ñïåöèàëüíîñòè;
- îðãàíèçàöèÿ êóëüòóðíî-ýñòåòè÷åñêîãî, íðàâñòâåííîãî è ôèçè÷åñêîãî âîñïèòàíèÿ íåñîâåðøåííîëåòíèõ;
- ñîäåéñòâèå îðãàíàì îïåêè è ïîïå÷èòåëüñòâà â îñóùåñòâëåíèè äàëüíåéøåãî óñòðîéñòâà íåñîâåðøåííîëåòíèõ, îñòàâøèõñÿ áåç ïîïå÷åíèÿ ðîäèòåëåé (çàêîííûõ ïðåäñòàâèòåëåé).
4.3. Êîíòèíãåíò ÑÐÖ ñîñòàâëÿþò äåòè è ïîäðîñòêè â âîçðàñòå îò 3 äî 18 ëåò:
- îñòàâøèåñÿ áåç ïîïå÷åíèÿ ðîäèòåëåé èëè çàêîííûõ ïðåäñòàâèòåëåé;
- ïðîæèâàþùèå â ñåìüÿõ, íàõîäÿùèõñÿ â ñîöèàëüíî îïàñíîì ïîëîæåíèè;
- çàáëóäèâøèåñÿ èëè ïîäêèíóòûå;
- ñàìîâîëüíî îñòàâèâøèå ñåìüþ, ñàìîâîëüíî óøåäøèå èç îáðàçîâàòåëüíûõ ó÷ðåæäåíèé äëÿ äåòåé-ñèðîò è äåòåé, îñòàâøèõñÿ áåç ïîïå÷åíèÿ ðîäèòåëåé, èëè äðóãèõ äåòñêèõ ó÷ðåæäåíèé, çà èñêëþ÷åíèåì ëèö, ñàìîâîëüíî óøåäøèõ èç ñïåöèàëüíûõ ó÷åáíî-âîñïèòàòåëüíûõ ó÷ðåæäåíèé çàêðûòîãî òèïà;
- íå èìåþùèå ìåñòà æèòåëüñòâà, ìåñòà ïðåáûâàíèÿ èëè ñðåäñòâ ê ñóùåñòâîâàíèþ;
- îêàçàâøèåñÿ â èíîé òðóäíîé æèçíåííîé ñèòóàöèè è íóæäàþùèåñÿ â ñîöèàëüíîé ïîìîùè è ðåàáèëèòàöèè.
Íåñîâåðøåííîëåòíèå ïðèíèìàþòñÿ â ÑÐÖ êðóãëîñóòî÷íî.
 ÑÐÖ íå ìîãóò áûòü ïîìåùåíû íåñîâåðøåííîëåòíèå â ñîñòîÿíèè àëêîãîëüíîãî èëè íàðêîòè÷åñêîãî îïüÿíåíèÿ, ñîâåðøèâøèå ïðàâîíàðóøåíèÿ è ïðåñòóïëåíèÿ, à òàêæå ñ îáîñòðåíèÿìè ïñèõè÷åñêîãî çàáîëåâàíèÿ è ñ çàáîëåâàíèÿìè, òðåáóþùèìè àêòèâíîãî ìåäèöèíñêîãî âìåøàòåëüñòâà.
4.6.  öåëÿõ ïðåäîòâðàùåíèÿ êîíôëèêòíûõ ñèòóàöèé ñðåäè âîñïèòàííèêîâ âêëþ÷åíèå â êîíòèíãåíò ìíîãîïðîôèëüíûõ ÑÐÖ ãðóïï íåñîâåðøåííîëåòíèõ, óêàçàííûõ â ï.ï. 4.4. è 4.5. íàñòîÿùèõ Ðåêîìåíäàöèé, äîïóñòèìî òîëüêî ïðè óñëîâèè ïðèíÿòèÿ ìåð ïî èõ èçîëÿöèè äðóã îò äðóãà.
4.7. ÑÐÖ ìîæåò âêëþ÷àòü â ñåáÿ ñëåäóþùèå ñòðóêòóðíûå ïîäðàçäåëåíèÿ: ïðèåìíîå îòäåëåíèå; îòäåëåíèå ïåðåâîçêè íåñîâåðøåííîëåòíèõ, ñàìîâîëüíî óøåäøèõ èç ñåìåé; îòäåëåíèå ñîöèàëüíî-ïðàâîâîé ïîìîùè; îòäåëåíèå ñîöèàëüíîé äèàãíîñòèêè; ñòàöèîíàðíîå îòäåëåíèå; ñîöèàëüíóþ ãîñòèíèöó; ãðóïïó äëèòåëüíîãî ïðåáûâàíèÿ; ãðóïïû äíåâíîãî ïðåáûâàíèÿ è ñîöèàëüíîãî ïàòðîíàæà; ñåìåéíóþ âîñïèòàòåëüíóþ ãðóïïó; îòäåëåíèå ïîìîùè ñåìüå è äåòÿì è äðóãèå ñòðóêòóðíûå ïîäðàçäåëåíèÿ, îòâå÷àþùèå óñòàâíûì öåëÿì ÑÐÖ.
4.8. Íåñîâåðøåííîëåòíèå íàõîäÿòñÿ â ÑÐÖ â òå÷åíèå âðåìåíè, íåîáõîäèìîãî äëÿ îêàçàíèÿ ñîöèàëüíîé ïîìîùè è (èëè) ñîöèàëüíîé ðåàáèëèòàöèè è ðåøåíèÿ âîïðîñîâ èõ äàëüíåéøåãî æèçíåííîãî óñòðîéñòâà â ñîîòâåòñòâèè ñ äåéñòâóþùèì çàêîíîäàòåëüñòâîì.
4.9. ÑÐÖ íå ÿâëÿåòñÿ ó÷ðåæäåíèåì, ïîëíîñòüþ ðàññ÷èòàííûì íà èñïîëüçîâàíèå âíóòðåííåé èíôðàñòðóêòóðû. Äëÿ ðåàëèçàöèè îáðàçîâàòåëüíûõ ïðîãðàìì è ïðîãðàìì äîïîëíèòåëüíîãî îáðàçîâàíèÿ èñïîëüçóþòñÿ ðàñïîëîæåííûå â íåïîñðåäñòâåííîé áëèçîñòè ñîîòâåòñòâóþùèå ó÷ðåæäåíèÿ îáðàçîâàíèÿ, êóëüòóðû è ñïîðòà, íàõîäÿùèåñÿ â âåäåíèè ñîîòâåòñòâóþùèõ âåäîìñòâ. Ìåäèöèíñêîå îáñëóæèâàíèå îñóùåñòâëÿåòñÿ çà ñ÷åò èñïîëüçîâàíèÿ ìîùíîñòåé ðàéîííûõ ìåäèöèíñêèõ ó÷ðåæäåíèé.
4.10. Îïòèìàëüíîé âìåñòèìîñòüþ ÑÐÖ ÿâëÿåòñÿ 100 ìåñò, â òîì ÷èñëå: 50 ìåñò - ïðîæèâàþùèå, 50 ìåñò - äíåâíîãî ïðåáûâàíèÿ.
4.11. Êîíòèíãåíò ïðîæèâàþùèõ âîñïèòàííèêîâ ôîðìèðóåòñÿ èç íåñîâåðøåííîëåòíèõ, êîòîðûå îñòàëèñü áåç ïîïå÷åíèÿ ðîäèòåëåé (ëèö èõ çàìåùàþùèõ), äëÿ êîòîðûõ íåâîçìîæíî îïðåäåëèòü äàëüíåéøåå æèçíåóñòðîéñòâî è (èëè) êîòîðûå íóæäàþòñÿ â äëèòåëüíîé ðåàáèëèòàöèè.
4.12. Êîíòèíãåíò ãðóïï äíåâíîãî ïðåáûâàíèÿ ôîðìèðóåòñÿ èç íåñîâåðøåííîëåòíèõ, íå óòðàòèâøèõ ñâÿçè ñî øêîëîé è ñåìüåé, íî íóæäàþùèõñÿ â ìåäèöèíñêîé, ïñèõîëîãè÷åñêîé, ïåäàãîãè÷åñêîé ïîääåðæêå.
4.13. Ñîñòàâ è ïëîùàäè ïîìåùåíèé ÑÐÖ äîëæíû îïðåäåëÿòüñÿ â ñîîòâåòñòâèè ñ Ðàçäåëîì 6 íàñòîÿùèõ Ðåêîìåíäàöèé è óòî÷íÿþòñÿ â êàæäîì êîíêðåòíîì ñëó÷àå çàäàíèåì íà ïðîåêòèðîâàíèå.
5.1. ÑÐÖ äëÿ íåñîâåðøåííîëåòíèõ, îêàçàâøèõñÿ â òðóäíîé æèçíåííîé ñèòóàöèè, è äåòåé è ïîäðîñòêîâ ñ îãðàíè÷åííûìè âîçìîæíîñòÿìè ñëåäóåò ðàçìåùàòü â ñåëèòåáíîé çîíå, â 10 - 20-òè ìèíóòíîé äîñòóïíîñòè äî îáùåñòâåííîãî òðàíñïîðòà.
ÑÐÖ äëÿ íåñîâåðøåííîëåòíèõ ñ ðàçëè÷íûìè ïðîÿâëåíèÿìè àñîöèàëüíîãî ïîâåäåíèÿ è äëÿ ïîäðîñòêîâ, ñêëîííûõ ê óïîòðåáëåíèþ ïñèõîàêòèâíûõ âåùåñòâ, ñëåäóåò ðàçìåùàòü â ïåðèôåðèéíîé çîíå ãîðîäà, âíå æèëîé çàñòðîéêè.
5.2. Ðàçìåðû è ñîñòàâû çîí ó÷àñòêîâ îïðåäåëÿþòñÿ çàäàíèåì íà ïðîåêòèðîâàíèå èëè êîíêðåòíûì ïðîåêòîì, ñ ó÷åòîì ïîëîæåíèé íàñòîÿùåãî ðàçäåëà.
5.3. Çäàíèÿ ÑÐÖ ñëåäóåò ðàçìåùàòü íà îáîñîáëåííûõ çåìåëüíûõ ó÷àñòêàõ. Ðàññòîÿíèå îò çäàíèé ÑÐÖ äî êðàñíîé ëèíèè è îò ãðàíèöû çåìåëüíîãî ó÷àñòêà ÑÐÖ äî ñòåí æèëûõ äîìîâ ñëåäóåò ïðèíèìàòü â ñîîòâåòñòâèè ñ ÌÃÑÍ 4.06-03.
5.4. Ïëîùàäü ó÷àñòêà ÑÐÖ äëÿ íåñîâåðøåííîëåòíèõ, îêàçàâøèõñÿ â òðóäíîé æèçíåííîé ñèòóàöèè, è äåòåé è ïîäðîñòêîâ ñ îãðàíè÷åííûìè ôèçè÷åñêèìè âîçìîæíîñòÿìè ïðèíèìàåòñÿ èç ðàñ÷åòà 80 - 100 ì2 íà 1 âîñïèòàííèêà ñ ó÷åòîì ðàçìåùåíèÿ íà ó÷àñòêå ïëîùàäîê è ñîîðóæåíèé îçäîðîâèòåëüíîãî è äîñóãîâîãî õàðàêòåðà.
Ïëîùàäü ó÷àñòêà ÑÐÖ äëÿ íåñîâåðøåííîëåòíèõ ñ ðàçëè÷íûìè ïðîÿâëåíèÿìè àñîöèàëüíîãî ïîâåäåíèÿ è äëÿ ïîäðîñòêîâ, ñêëîííûõ ê óïîòðåáëåíèþ ïñèõîàêòèâíûõ âåùåñòâ, ïðèíèìàåòñÿ èç ðàñ÷åòà 100 - 120 ì2 íà 1 âîñïèòàííèêà â ñîîòâåòñòâèè ñ ïîëîæåíèÿìè «Ðåêîìåíäàöèé ïî ïðîåêòèðîâàíèþ ñïåöèàëüíûõ ó÷åáíî-âîñïèòàòåëüíûõ ó÷ðåæäåíèé îòêðûòîãî òèïà äëÿ äåòåé è ïîäðîñòêîâ ñ äåâèàíòíûì ïîâåäåíèåì».
5.5.  ñîñòàâå òåððèòîðèè ó÷àñòêà ÑÐÖ ïðåäóñìàòðèâàþòñÿ ñëåäóþùèå çîíû:
- îáùåñòâåííîãî íàçíà÷åíèÿ è ïðîæèâàíèÿ;
- ôèçêóëüòóðíî-îçäîðîâèòåëüíàÿ;
- ìåäèöèíñêîãî èçîëÿòîðà;
- õîçÿéñòâåííàÿ.
5.6.  çîíå ðàçìåùåíèÿ ôóíêöèîíàëüíûõ áëîêîâ îáùåñòâåííîãî íàçíà÷åíèÿ è ïðîæèâàíèÿ ó ãëàâíîãî âõîäà ðåêîìåíäóåòñÿ ïðåäóñìàòðèâàòü ìîùåíóþ ïëîùàäêó äëÿ ìàññîâûõ ñáîðîâ âîñïèòàííèêîâ.
5.7. Â ôèçêóëüòóðíî-îçäîðîâèòåëüíîé çîíå ðåêîìåíäóåòñÿ ïðåäóñìàòðèâàòü èãðîâûå è ñïîðòèâíûå ïëîùàäêè, à òàêæå òåíåâûå íàâåñû äëÿ äîøêîëüíûõ è ìëàäøèõ øêîëüíûõ ãðóïï.
Ïëîùàäü èãðîâûõ ïëîùàäîê ñëåäóåò ïðèíèìàòü 6 - 8 ì2 íà 1 âîñïèòàííèêà èç ðàñ÷åòà îäíîâðåìåííîãî ïðèñóòñòâèÿ âñåõ äåòåé äîøêîëüíîãî âîçðàñòà è 40 - 50 % äåòåé è ïîäðîñòêîâ øêîëüíîãî âîçðàñòà. Ïëîùàäêè äîëæíû èìåòü òðàâÿíèñòî-ïåñ÷àíûé ïîêðîâ. Òåíåâûå íàâåñû - 2 ì2 íà 1 ìåñòî - äîëæíû ïðèìûêàòü ê èãðîâûì ïëîùàäêàì è áûòü ðàññ÷èòàíû íà ïðîâåäåíèå èãð â ïëîõóþ ïîãîäó, à òàêæå íà âîçìîæíîñòü ïðîâåäåíèÿ çàíÿòèé ñ äåòüìè äîøêîëüíîãî è ìëàäøåãî øêîëüíîãî âîçðàñòà íà âîçäóõå. Òåíåâûå íàâåñû äîëæíû èìåòü äîùàòûé ïîë è âåòðîçàùèòíûå ñòåíêè ñ äâóõ - òðåõ ñòîðîí.
Íà èãðîâûõ ïëîùàäêàõ äëÿ äåòåé äîøêîëüíîãî è ìëàäøåãî øêîëüíîãî âîçðàñòà ðåêîìåíäóåòñÿ ïðåäóñìàòðèâàòü ñëåäóþùåå îáîðóäîâàíèå: êà÷åëè, êà÷àëêè, ãðèáêè, ñêàìåéêè äëÿ îòäûõà, ïåñî÷íûå äâîðèêè ñ ÿùèêàìè äëÿ õðàíåíèÿ ïåñêà, ñòîëû äëÿ èãð ñ ïåñêîì, à òàêæå îáîðóäîâàíèÿ äëÿ ðàçâèòèÿ âñåõ îñíîâíûõ âèäîâ äâèæåíèÿ (äëÿ ëàçàíèÿ, ñêàòûâàíèÿ, ïåðåëåçàíèÿ).
Äëÿ ïîäðîñòêîâ ðåêîìåíäóåòñÿ ïðåäóñìàòðèâàòü: êîìáèíèðîâàííóþ ïëîùàäêó äëÿ ñïîðòèâíûõ èãð 60´40 ì, ãèìíàñòè÷åñêóþ ïëîùàäêó 15´16 ì.
 òîì ñëó÷àå, åñëè â êîíòèíãåíò âîñïèòàííèêîâ âõîäÿò íåñîâåðøåííîëåòíèå ñ îãðàíè÷åííûìè âîçìîæíîñòÿìè, ðåêîìåíäóåòñÿ ïðåäóñìàòðèâàòü èãðîâóþ ïëîùàäêó äâèãàòåëüíîé êîððåêöèè, íàáîð îáîðóäîâàíèÿ êîòîðîé óòî÷íÿåòñÿ çàäàíèåì íà ïðîåêòèðîâàíèå â ñîîòâåòñòâèè ñ ôèçè÷åñêèìè äåôåêòàìè âîñïèòàííèêîâ.
 îáîñíîâàííûõ ñëó÷àÿõ äîïóñêàåòñÿ ïðåäóñìàòðèâàòü ëåãêîàòëåòè÷åñêîå ñïîðòÿäðî ñ êðóãîâîé áåãîâîé äîðîæêîé äëèíîé 250 ì, à òàêæå ñîîðóæåíèÿ è ïëîùàäêè äëÿ íåòðàäèöèîííûõ àêòèâíûõ âèäîâ çàíÿòèé (êàòàíèå íà ðîëèêàõ, ñêåéòáîðäàõ è ò.ï.).
Ñîñòàâ è êîëè÷åñòâî èãðîâûõ è ôèçêóëüòóðíûõ ïëîùàäîê â êàæäîì êîíêðåòíîì ñëó÷àå óòî÷íÿþòñÿ çàäàíèåì íà ïðîåêòèðîâàíèå.
5.8. Ïëîùàäêó äëÿ èãðû ñ ìÿ÷îì ñëåäóåò ðàñïîëàãàòü íà ðàññòîÿíèè íå ìåíåå 25 ì îò îêîí çäàíèÿ, à ïðè íàëè÷èè îãðàæäåíèÿ âûñîòîé 3 ì - íå ìåíåå 15 ì; ïëîùàäêè äëÿ çàíÿòèé ôèçêóëüòóðîé - íà ðàññòîÿíèè íå ìåíåå 10 ì.
5.9. Ìåäèöèíñêèé èçîëÿòîð äîëæåí èìåòü ñàìîñòîÿòåëüíûé âûõîä íà ó÷àñòîê.
5.10. Èçîëÿòîð äîëæåí èìåòü ïîäúåçäíûå ïóòè, îáåñïå÷èâàþùèå âîçìîæíîñòü ïðîåçäà ñïåöèàëüíîãî òðàíñïîðòà äëÿ ýâàêóàöèè çàáîëåâøèõ.
5.11. Ïëîùàäü îçåëåíåíèÿ äîëæíà ñîñòàâëÿòü 50 % îò îáùåé ïëîùàäè ó÷àñòêà â ñîîòâåòñòâèè ñ ÑàíÏèÍ 2.4.2.1178-02.  çåëåíîé çîíå ðåêîìåíäóåòñÿ ïðåäóñìàòðèâàòü ãàçîíû ñ äåêîðàòèâíûìè ðàñòåíèÿìè, öâåòíèêè è äåðåâüÿ.
 ñîîòâåòñòâèè ñ ïîëîæåíèÿìè «Ðåêîìåíäàöèé ïî ïðîåêòèðîâàíèþ ñïåöèàëüíûõ ó÷åáíî-âîñïèòàòåëüíûõ ó÷ðåæäåíèé îòêðûòîãî òèïà äëÿ äåòåé è ïîäðîñòêîâ ñ äåâèàíòíûì ïîâåäåíèåì», â ñîñòàâ çåëåíîé çîíû ðåêîìåíäóåòñÿ âêëþ÷àòü: ãàçîíû ñ íèçêîðàñòóùèìè äåêîðàòèâíûìè ðàñòåíèÿìè, êóñòàðíèêè (íå âûøå 50 ñì), öâåòíèêè è îòäåëüíî ñòîÿùèå ëèñòâåííûå äåðåâüÿ, ðàçìåùàåìûå â öåíòðàëüíîé çîíå ó÷àñòêà.
5.12. Õîçÿéñòâåííàÿ çîíà äîëæíà ðàçìåùàòüñÿ ñî ñòîðîíû ïðîèçâîäñòâåííûõ ïîìåùåíèé ñòîëîâîé. Íà åå òåððèòîðèè äîïóñêàåòñÿ ðàçìåùàòü ãàðàæ ñëóæåáíûõ ìàøèí, íàâåñû äëÿ èíâåíòàðÿ è îáîðóäîâàíèÿ, ìóñîðîñáîðíèêè è ò.ï.
Âìåñòèìîñòü ãàðàæà â êàæäîì êîíêðåòíîì ñëó÷àå îïðåäåëÿåòñÿ çàäàíèåì íà ïðîåêòèðîâàíèå, èñõîäÿ èç ìåñòíûõ óñëîâèé. Àâòîìàøèíû äîïóñêàåòñÿ èñïîëüçîâàòü êàê äëÿ õîçÿéñòâåííûõ íóæä ó÷ðåæäåíèÿ, òàê è äëÿ îáó÷åíèÿ âîñïèòàííèêîâ àâòîäåëó (ïðîâåäåíèå ïðàêòè÷åñêèõ çàíÿòèé).
5.13. Òåððèòîðèÿ ÑÐÖ äîëæíà èìåòü äâà âúåçäà è âõîäà: îäèí - öåíòðàëüíûé, âòîðîé - õîçÿéñòâåííûé.
5.14. Çåìåëüíûå ó÷àñòêè ÑÐÖ äîëæíû èìåòü îãðàæäåíèå â ñîîòâåòñòâèè ñ ïîëîæåíèÿìè ÑÍ 441-72* è «Ðåêîìåíäàöèé ïî ïðîåêòèðîâàíèþ ñïåöèàëüíûõ ó÷åáíî-âîñïèòàòåëüíûõ ó÷ðåæäåíèé îòêðûòîãî òèïà äëÿ äåòåé è ïîäðîñòêîâ ñ äåâèàíòíûì ïîâåäåíèåì»:
- ÑÐÖ äëÿ âîñïèòàííèêîâ, îêàçàâøèõñÿ â òðóäíîé æèçíåííîé ñèòóàöèè, à òàêæå ñ îãðàíè÷åííûìè âîçìîæíîñòÿìè - ðåøåò÷àòîå îãðàæäåíèå âûñîòîé íå ìåíåå 1,5 ì;
- ÑÐÖ äëÿ âîñïèòàííèêîâ ñ ðàçëè÷íûìè ïðîÿâëåíèÿìè àñîöèàëüíîãî ïîâåäåíèÿ è ñêëîííûõ ê óïîòðåáëåíèþ ïñèõîàêòèâíûõ âåùåñòâ - ãëóõîå îãðàæäåíèå âûñîòîé íå ìåíåå 2 ì.
5.15. Îñâåùåíèå ó÷àñòêîâ ÑÐÖ äîëæíî ïðåäóñìàòðèâàòüñÿ â ñîîòâåòñòâèè ñ òðåáîâàíèÿìè ÑÍèÏ 23-05-95*.
5.16. Ïëàíèðîâêà ó÷àñòêîâ äîëæíà îáåñïå÷èâàòü ïîäúåçäû ñ òâåðäûì ïîêðûòèåì ê õîçÿéñòâåííîé çîíå, ïîäúåçäû ïîæàðíûõ ìàøèí êî âñåì çäàíèÿì è áëîêàì, à òàêæå îáúåçäû âîêðóã íèõ â ñîîòâåòñòâèè ñ ïîëîæåíèÿìè ÑÍèÏ 21-01-97*.
5.17. Äëÿ àâòîìàøèí ñîòðóäíèêîâ ÑÐÖ ñëåäóåò ïðåäóñìàòðèâàòü îòêðûòóþ ñòîÿíêó â ñîîòâåòñòâèè ñ òðåáîâàíèÿìè ÌÃÑÍ 1.01-99.
Îáùèå òðåáîâàíèÿ.
6.1. Â ñîñòàâ ÑÐÖ âõîäÿò ñëåäóþùèå ôóíêöèîíàëüíûå ãðóïïû ïîìåùåíèé:
- âåñòèáþëüíàÿ;
- ïðèåìíîãî îòäåëåíèÿ;
- îòäåëåíèÿ ñîöèàëüíîé äèàãíîñòèêè;
- îòäåëåíèÿ ñîöèàëüíî-ïðàâîâîé ïîìîùè;
- îòäåëåíèÿ ïîìîùè ñåìüå è äåòÿì;
- ñòàöèîíàðíîãî îòäåëåíèÿ;
- îòäåëåíèÿ äëèòåëüíîãî ïðåáûâàíèÿ;
- ñîöèàëüíîé ãîñòèíèöû;
- îòäåëåíèÿ äíåâíîãî ïðåáûâàíèÿ è ñîöèàëüíîãî ïàòðîíàæà;
- ëå÷åáíî-ðåàáèëèòàöèîííàÿ (ïñèõîëîãî-êîððåêöèîííûå è ìåäèöèíñêèå ïîìåùåíèÿ);
- îòäåëåíèÿ òðóäîâîé ðåàáèëèòàöèè;
- äîñóãîâàÿ è ôèçêóëüòóðíî-îçäîðîâèòåëüíàÿ,
- îòäåëåíèÿ ïåðåâîçêè íåñîâåðøåííîëåòíèõ;
- ìåäèöèíñêîãî èçîëÿòîðà;
- ïèòàíèÿ;
- àäìèíèñòðàòèâíî-áûòîâàÿ;
- õîçÿéñòâåííîãî îáñëóæèâàíèÿ.
Ñîñòàâ ôóíêöèîíàëüíûõ ãðóïï ïîìåùåíèé â ó÷ðåæäåíèè îïðåäåëÿåòñÿ çàäàíèåì íà ïðîåêòèðîâàíèå â ñîîòâåòñòâèè ñ ïðîôèëåì ÑÐÖ.
Àðõèòåêòóðíî-ïëàíèðîâî÷íûå ðåøåíèÿ ÑÐÖ äîëæíû ó÷èòûâàòü òðåáîâàíèÿ ôóíêöèîíàëüíîãî çîíèðîâàíèÿ ïîìåùåíèé ñ ó÷åòîì îñóùåñòâëÿåìîé â íèõ äåÿòåëüíîñòè.
Ñîñòàâ è ïëîùàäè ôóíêöèîíàëüíûõ ãðóïï ïîìåùåíèé, ðàññ÷èòàííûõ íà ðàáîòó ñ âîñïèòàííèêàìè, îïðåäåëÿþòñÿ ñ ó÷åòîì âûïîëíåíèÿ êîððåêöèîííîé ôóíêöèè.
6.2. Ïðè ïðîåêòèðîâàíèè ïîìåùåíèé ÑÐÖ ðåêîìåíäóåòñÿ ïîëüçîâàòüñÿ ïëàíèðîâî÷íûìè ñõåìàìè, ïðèâåäåííûìè â Ïðèëîæåíèÿõ ê íàñòîÿùèì Ðåêîìåíäàöèÿì. Ïëîùàäè îòäåëüíûõ ïîìåùåíèé â çàâèñèìîñòè îò êîíêðåòíûõ ïëàíèðîâî÷íûõ è êîíñòðóêòèâíûõ ðåøåíèé ìîãóò áûòü èçìåíåíû (óìåíüøåíû èëè óâåëè÷åíû) íå áîëåå ÷åì íà 15 %.
6.3. Ôóíêöèîíàëüíûå ãðóïïû ïîìåùåíèé ÑÐÖ ìîãóò ðàçìåùàòüñÿ ëèáî â îäíîì çäàíèè, ëèáî â îòäåëüíûõ êîðïóñàõ èëè áëîêàõ, ñîåäèíåííûõ îòàïëèâàåìûìè ïåðåõîäàìè. Ïðè ýòîì äîëæíû ïðåäóñìàòðèâàòüñÿ ïîæàðíûå îòñåêè ïëîùàäüþ íå áîëåå 5000 ì2, ðàçäåëÿåìûå ïðîòèâîïîæàðíûìè ñòåíàìè 1-ãî òèïà (â ñîîòâåòñòâèè ñ òðåáîâàíèÿìè ÑÍèÏ 21-01-97*). Èç êàæäîãî ïîæàðíîãî îòñåêà äîëæíî áûòü ïðåäóñìîòðåíî íå ìåíåå äâóõ ýâàêóàöèîííûõ âûõîäîâ, îäèí èç âõîäîâ äîïóñêàåòñÿ ïðåäóñìàòðèâàòü â ñîñåäíèé áëîê.
6.4. Ó÷èòûâàÿ ñïåöèôèêó ÑÐÖ, êîíòèíãåíò êîòîðûõ ñîñòàâëÿþò íåñîâåðøåííîëåòíèå ñ ðàçëè÷íûìè ïðîÿâëåíèÿìè àñîöèàëüíîãî ïîâåäåíèÿ èëè ñêëîííûå ê óïîòðåáëåíèþ ïñèõîàêòèâíûõ âåùåñòâ, îòäåëüíûå áëîêè ïîìåùåíèé, íåïîñðåäñòâåííî ðàññ÷èòàííûå íà ïðåáûâàíèå òàêèõ âîñïèòàííèêîâ, ñëåäóåò ïðîåêòèðîâàòü íåïðîõîäíûìè, ñ âîçìîæíîñòüþ èõ èçîëÿöèè â òå÷åíèå ñóòîê â çàâèñèìîñòè îò ðåæèìà ðàáîòû ýòèõ áëîêîâ è ÑÐÖ. Îáúåäèíåíèå ðàçëè÷íûõ ãðóïï ïîìåùåíèé ìîæåò îñóùåñòâëÿòüñÿ ÷åðåç îáùåå êîììóíèêàöèîííîå ïðîñòðàíñòâî.  òîì ñëó÷àå, êîãäà â îäíîì áëîêå ðàçìåùåíû ðàçëè÷íûå ãðóïïû ïîìåùåíèé, èõ ñëåäóåò ïðîåêòèðîâàòü ïîýòàæíî, ïðåäóñìàòðèâàÿ âîçìîæíîñòü èçîëÿöèè.
Îáùàÿ ôóíêöèîíàëüíî-ïëàíèðîâî÷íàÿ ñõåìà ÑÐÖ äëÿ äåòåé è ïîäðîñòêîâ, îêàçàâøèõñÿ â òðóäíîé æèçíåííîé ñèòóàöèè, è íåñîâåðøåííîëåòíèõ ñ îãðàíè÷åííûìè âîçìîæíîñòÿìè ïðåäñòàâëåíà íà Ðèñ. 1. Íà ðèñóíêå ïðåäñòàâëåíû âçàèìîñâÿçè ðàçëè÷íûõ îòäåëåíèé ñ ôóíêöèîíàëüíûìè ãðóïïàìè ïîìåùåíèé.
Îáùàÿ ôóíêöèîíàëüíî-ïëàíèðîâî÷íàÿ ñõåìà ÑÐÖ äëÿ íåñîâåðøåííîëåòíèõ ñ àñîöèàëüíûì ïîâåäåíèåì è íåñîâåðøåííîëåòíèõ ñêëîííûõ ê óïîòðåáëåíèþ ïñèõîàêòèâíûõ âåùåñòâ, ïðåäñòàâëåíà íà Ðèñ. 2. Íà ðèñóíêå ïðåäñòàâëåíû âçàèìîñâÿçè ðàçëè÷íûõ îòäåëåíèé ñ ôóíêöèîíàëüíûìè ãðóïïàìè ïîìåùåíèé.
6.5. Çäàíèÿ ÑÐÖ íå äîëæíû ïðåâûøàòü 3 ýòàæåé.
6.6. Îáúåìíî-ïëàíèðîâî÷íàÿ ñòðóêòóðà çäàíèÿ äîëæíà îáåñïå÷èâàòü îïòèìàëüíûå óñëîâèÿ îñóùåñòâëåíèÿ ïðîòåêàþùèõ î íåì ôóíêöèîíàëüíûõ ïðîöåññîâ, îòðàæàòü ñïåöèôèêó ó÷ðåæäåíèÿ è îáåñïå÷èâàòü êîìôîðòíûå óñëîâèÿ ýêñïëóàòàöèè è íåîáõîäèìóþ ñâÿçü ñ ó÷àñòêîì.
6.7.  òîì ñëó÷àå, åñëè â ñîñòàâ êîíòèíãåíòà âîñïèòàííèêîâ âõîäÿò íåñîâåðøåííîëåòíèå ñ îãðàíè÷åííûìè âîçìîæíîñòÿìè, âñå ïîìåùåíèÿ ÑÐÖ äîëæíû áûòü ðàññ÷èòàíû íà èñïîëüçîâàíèå èíâàëèäàìè-êîëÿñî÷íèêàìè. Âõîäû â çäàíèÿ, ïàíäóñû è ëåñòíèöû, ëèôòû è ïîäúåìíèêè, âñïîìîãàòåëüíûå ñðåäñòâà è ïðèñïîñîáëåíèÿ (ïîðó÷íè, ðó÷êè, ðû÷àãè è ò.ä.) ñëåäóåò ïðîåêòèðîâàòü â ñîîòâåòñòâèè ñ òðåáîâàíèÿìè ÑÍèÏ 35-01-2001 è Ïîñîáèÿ ïî ïðîåêòèðîâàíèþ îêðóæàþùåé ñðåäû äëÿ ëþäåé ñ ôèçè÷åñêèìè îãðàíè÷åíèÿìè (Âûïóñê 2).
Ðèñ. 1. Ôóíêöèîíàëüíî-ïëàíèðîâî÷íàÿ ñõåìà ÑÐÖ äëÿ äåòåé è ïîäðîñòêîâ, îêàçàâøèõñÿ â òðóäíîé æèçíåííîé ñèòóàöèè è íåñîâåðøåííîëåòíèõ ñ îãðàíè÷åííûìè âîçìîæíîñòÿìè.
1. Âåñòèáþëüíàÿ ãðóïïà ïîìåùåíèé. 2. Îòäåëåíèå ïåðåâîçêè íåñîâåðøåííîëåòíèõ. 3. Àäìèíèñòðàòèâíî-áûòîâàÿ ãðóïïà ïîìåùåíèé. 4. Ïðèåìíîå îòäåëåíèå. 5. Ñîöèàëüíàÿ ãîñòèíèöà. 6. Îòäåëåíèå äíåâíîãî ïðåáûâàíèÿ è ñîöèàëüíîãî ïàòðîíàæà. 7. Îòäåëåíèå ñîöèàëüíîé äèàãíîñòèêè. 8. Îòäåëåíèå ñîöèàëüíî-ïðàâîâîé ïîìîùè. 9. Îòäåëåíèå ïîìîùè ñåìüå è äåòÿì. 10. Ïîìåùåíèÿ ïèòàíèÿ. 11. Ñòàöèîíàðíîå îòäåëåíèå. 12. Îòäåëåíèå äëèòåëüíîãî ïðåáûâàíèÿ. 13. Ìåäèöèíñêèé èçîëÿòîð. 14. Ëå÷åáíî-ðåàáèëèòàöèîííàÿ ãðóïïà ïîìåùåíèé. 15. Îòäåëåíèå òðóäîâîé ðåàáèëèòàöèè. 16. Äîñóãîâàÿ è ôèçêóëüòóðíî-îçäîðîâèòåëüíàÿ ãðóïïà ïîìåùåíèé.
Óñëîâíûå îáîçíà÷åíèÿ
Ôóíêöèîíàëüíûå ñâÿçè ãðóïï ïîìåùåíèé:
× × × × × × - Îòäåëåíèÿ äíåâíîãî ïðåáûâàíèÿ
______ - Ñòàöèîíàðíîãî îòäåëåíèÿ
_ _ _ _ - Îòäåëåíèÿ äëèòåëüíîãî ïðåáûâàíèÿ
¾ × × ¾ - Ñîöèàëüíîé ãîñòèíèöû
Ðèñ. 2. Ôóíêöèîíàëüíî-ïëàíèðîâî÷íàÿ ñõåìà ÑÐÖ äëÿ íåñîâåðøåííîëåòíèõ, ñêëîííûõ ê óïîòðåáëåíèþ ïñèõîàêòèâíûõ âåùåñòâ.
1. Âåñòèáþëüíàÿ ãðóïïà ïîìåùåíèé. 2. Îòäåëåíèå ïåðåâîçêè íåñîâåðøåííîëåòíèõ 3. Àäìèíèñòðàòèâíî-áûòîâàÿ ãðóïïà ïîìåùåíèé. 4. Ïðèåìíîå îòäåëåíèå 5. Ïîìåùåíèÿ ïèòàíèÿ. 6. Ñòàöèîíàðíîå îòäåëåíèå. 7. Ìåäèöèíñêèé èçîëÿòîð. 8. Îòäåëåíèå äíåâíîãî ïðåáûâàíèÿ.. 9. Îòäåëåíèå ñîöèàëüíîé äèàãíîñòèêè. 10. Îòäåëåíèå ñîöèàëüíî-ïðàâîâîé ïîìîùè. 11. Îòäåëåíèå ïîìîùè ñåìüå è äåòÿì. 12. Ëå÷åáíî-ðåàáèëèòàöèîííàÿ ãðóïïà ïîìåùåíèé. 13. Îòäåëåíèå òðóäîâîé ðåàáèëèòàöèè. 14. Äîñóãîâàÿ è ôèçêóëüòóðíî-îçäîðîâèòåëüíàÿ ãðóïïà ïîìåùåíèé.
Óñëîâíûå îáîçíà÷åíèÿ
Ôóíêöèîíàëüíûå ñâÿçè ãðóïï ïîìåùåíèé:
× × × × × × - Îòäåëåíèÿ äíåâíîãî ïðåáûâàíèÿ
_____ - Ñòàöèîíàðíîãî îòäåëåíèÿ
6.8. Øèðèíà ëåñòíè÷íûõ ìàðøåé äîëæíà áûòü íå ìåíåå 1,35 ì. Ëåñòíè÷íûå ìàðøè â ÑÐÖ äëÿ äåòåé äîøêîëüíîãî è ìëàäøåãî øêîëüíîãî âîçðàñòà è íåñîâåðøåííîëåòíèõ ñ îãðàíè÷åííûìè âîçìîæíîñòÿìè äîëæíû áûòü îáîðóäîâàíû ïîðó÷íÿìè íà ðàçíîé âûñîòå (0,9 ì è 0,7 - 0,75 ì) â ñîîòâåòñòâèè ñ ïîëîæåíèÿìè ÌÃÑÍ 4.15-98.
Øèðèíó äâåðåé îñíîâíûõ ïîìåùåíèé ñëåäóåò ïðèíèìàòü íå ìåíåå 1 ì.
Øèðèíó êîðèäîðîâ â ãðóïïàõ ïîìåùåíèé àäìèíèñòðàòèâíî-áûòîâîãî è õîçÿéñòâåííîãî íàçíà÷åíèÿ ñëåäóåò ïðèíèìàòü íå ìåíåå 1,4 ì; à âî âñåõ ãðóïïàõ ïîìåùåíèé, ðàññ÷èòàííûõ íà ðàáîòó ñ âîñïèòàííèêàìè íå ìåíåå 2,2 ì.
6.9. Âûñîòà íàçåìíûõ ýòàæåé çäàíèÿ ÑÐÖ äîëæíà áûòü íå ìåíåå 3,3 ì (îò ïîëà äî ïîëà âûøåëåæàùåãî ýòàæà). Âûñîòà çðèòåëüíîãî çàëà ïðèíèìàåòñÿ íå ìåíåå 3,6 ì, âûñîòà ñïîðòçàëà - 6 ì (äî íèçà íåñóùèõ êîíñòðóêöèé).
6.10. Âíóòðåííÿÿ îòäåëêà ïîìåùåíèé ÑÐÖ äîëæíà áûòü âûïîëíåíà èç ìàòåðèàëîâ, äîïóñêàþùèõ âëàæíóþ óáîðêó, à òàêæå ïðèìåíåíèå äåçèíôèöèðóþùèõ ñðåäñòâ è ðàçðåøåííûõ äëÿ ïðèìåíåíèÿ îðãàíàìè Ãîññàíýïèäíàäçîðà Ìèíçäðàâà ÐÔ.
6.11.  ÑÐÖ äëÿ íåñîâåðøåííîëåòíèõ ñ àñîöèàëüíûì ïîâåäåíèåì è íåñîâåðøåííîëåòíèõ, ñêëîííûõ ê óïîòðåáëåíèþ ïñèõîàêòèâíûõ âåùåñòâ, ïîìåùåíèÿ, â êîòîðûõ ñîñðåäîòî÷åíû ìàòåðèàëüíûå öåííîñòè, äîëæíû èìåòü ìåòàëëè÷åñêèå äâåðè è ðåøåòêè íà îêíàõ.
6.12. Åñòåñòâåííîå, èñêóññòâåííîå è ñîâìåùåííîå îñâåùåíèå â ïîìåùåíèÿõ ñëåäóåò ïðîåêòèðîâàòü â ñîîòâåòñòâèè ñ òðåáîâàíèÿìè ÑàíÏèÍ 2.2.1/2.1.1.1278-03 è ÌÃÑÍ 2.06-99.
6.13. Ðàáî÷èå ìåñòà â ïîìåùåíèÿõ òðóäîâîé ðåàáèëèòàöèè äîëæíû èìåòü åñòåñòâåííîå îñâåùåíèå ñ ÊÅÎ íå ìåíåå 1,5 íà ïîâåðõíîñòè ñòîëîâ è îñâåùàòüñÿ áîêîâûì ñ ëåâîé ñòîðîíû ñâåòîì. Äëÿ îðãàíèçàöèè ìîáèëüíûõ ôîðì (ãðóïïîâûõ è èíäèâèäóàëüíûõ) âåäåíèÿ çàíÿòèé íåîáõîäèìî ïðåäóñìàòðèâàòü ðàâíîìåðíîå îñâåùåíèå ïî âñåé ðàáî÷åé ïëîñêîñòè â ïîìåùåíèè çà ñ÷åò äîïîëíèòåëüíîãî âåðõíåãî ñâåòà èëè äîïîëíèòåëüíîãî èñêóññòâåííîãî îñâåùåíèÿ â ãëóáèíå ïîìåùåíèÿ.
6.14. Äîïóñêàåòñÿ íå ïðåäóñìàòðèâàòü åñòåñòâåííîãî îñâåùåíèÿ:
- â ñàíèòàðíûõ óçëàõ äëÿ ïåðñîíàëà, êîìíàòàõ ëè÷íîé ãèãèåíû æåíùèí (äëÿ ïåðñîíàëà);
- â ðàäèîóçëå;
- â ñòîëîâîé äëÿ ïåðñîíàëà;
- â êëàäîâûõ èíâåíòàðÿ, êîìíàòàõ õðàíåíèÿ ïðåäìåòîâ óáîðêè;
- â ïîìåùåíèÿõ òåõíè÷åñêèõ ñëóæá.
 çàâèñèìîñòè îò àðõèòåêòóðíî-ïëàíèðîâî÷íîãî ðåøåíèÿ äîïóñêàåòñÿ ïðîåêòèðîâàòü ñ èñêóññòâåííûì îñâåùåíèåì ñàíèòàðíûå óçëû è êîìíàòû ëè÷íîé ãèãèåíû äëÿ âîñïèòàííèêîâ â ãðóïïå ïîìåùåíèé ïðîæèâàíèÿ (ïðè ñîáëþäåíèè íåîáõîäèìîé êðàòíîñòè îáìåíà âîçäóõà).
6.15. Ñàíèòàðíûå óçëû è òóàëåòíûå êîìíàòû â ÑÐÖ ïðîåêòèðóþòñÿ ñ ó÷åòîì ñïåöèôèêè ðàáîòû êàæäîãî ïîäðàçäåëåíèÿ â ñîîòâåòñòâèè ñ äåéñòâóþùèìè íîðìàòèâíûìè äîêóìåíòàìè: ÌÃÑÍ 4.15-98, ÌÃÑÍ 4.06-03 è «Ðåêîìåíäàöèè ïî ïðîåêòèðîâàíèþ ñïåöèàëüíûõ ó÷åáíî-âîñïèòàòåëüíûõ ó÷ðåæäåíèé îòêðûòîãî òèïà äëÿ äåòåé è ïîäðîñòêîâ ñ äåâèàíòíûì ïîâåäåíèåì».
Îáùèé ðàñ÷åò êîëè÷åñòâà ñàíèòàðíûõ óçëîâ ïðèíèìàåòñÿ â ñîîòâåòñòâèè ñ «Ðåêîìåíäàöèÿìè ïî ïðîåêòèðîâàíèþ îáðàçîâàòåëüíûõ ó÷ðåæäåíèé äëÿ äåòåé, íóæäàþùèõñÿ â ïñèõîëîãî-ïåäàãîãè÷åñêîé è ìåäèêî-ñîöèàëüíîé ïîìîùè». Îáùåå êîëè÷åñòâî ñàíèòàðíûõ ïðèáîðîâ ïðèíèìàåòñÿ èç ðàñ÷åòà: íà êàæäûå 20 ìåñò ïî äâà óíèòàçà äëÿ ìàëü÷èêîâ è äëÿ äåâî÷åê, 2 ïèññóàðà â óáîðíîé äëÿ ìàëü÷èêîâ, 1 óìûâàëüíèê íà êàæäûå 30 ìàëü÷èêîâ è 30 äåâî÷åê.
Âíóòðåííèé âîäîïðîâîä è êàíàëèçàöèþ ñëåäóåò ïðîåêòèðîâàòü â ñîîòâåòñòâèè ñ ÑÍèÏ 2.04.01-85*.
Ó÷èòûâàÿ ñïåöèôèêó êîíòèíãåíòà âîñïèòàííèêîâ â ÑÐÖ äëÿ íåñîâåðøåííîëåòíèõ ñ àñîöèàëüíûì ïîâåäåíèåì è íåñîâåðøåííîëåòíèõ, ñêëîííûõ ê óïîòðåáëåíèþ ïñèõîàêòèâíûõ âåùåñòâ, ðàçìåùåíèå ñàíèòàðíûõ ïðèáîðîâ îñóùåñòâëÿåòñÿ òîëüêî â îáùèõ ñàíèòàðíûõ óçëàõ â îòêðûòûõ êàáèíàõ. Ñàíèòàðíûå ïðèáîðû äîëæíû áûòü â àíòèâàíäàëüíîì èñïîëíåíèè.
6.16.  êîìíàòàõ õðàíåíèÿ óáîðî÷íîãî èíâåíòàðÿ ñëåäóåò ïðåäóñìàòðèâàòü óìûâàëüíèê è ñëèâ.
6.17. Èíñîëÿöèþ ïîìåùåíèé ñ äëèòåëüíûì ïðåáûâàíèåì âîñïèòàííèêîâ ñëåäóåò ïðåäóñìàòðèâàòü â ñîîòâåòñòâèè ñ òðåáîâàíèÿìè ÑàíÏèÍ 22.1/2.1.1.1076-01.
6.18. Îòîïëåíèå è âåíòèëÿöèþ çäàíèÿ ñëåäóåò ïðîåêòèðîâàòü â ñîîòâåòñòâèè ñ òðåáîâàíèÿìè ÑÍèÏ 41-01-2003 è ÌÃÑÍ 2.01-99.
6.19. Ýíåðãîñíàáæåíèå, ýëåêòðîîáîðóäîâàíèå, ýëåêòðè÷åñêîå îñâåùåíèå çäàíèÿ è íàðóæíîå îñâåùåíèå òåððèòîðèè ñëåäóåò ïðåäóñìàòðèâàòü â ñîîòâåòñòâèè ñ òðåáîâàíèÿìè ÑàíÏèÍ 2.2.1/2.1.1.1278-03, ÌÃÑÍ 2.01-99, ÌÃÑÍ 2.06-99.
6.20. Ïðîåêòèðîâàíèå çäàíèé ÑÐÖ äîëæíî îñóùåñòâëÿòüñÿ ñ ó÷åòîì ïðèíöèïîâ ìàêñèìàëüíîãî ýíåðãîñáåðåæåíèÿ â ñîîòâåòñòâèè ñ òðåáîâàíèÿìè ÌÃÑÍ 2.01-99.
6.21. Çäàíèÿ ÑÐÖ ñëåäóåò ïðîåêòèðîâàòü íå ìåíåå II ñòåïåíè îãíåñòîéêîñòè â ñîîòâåòñòâèè ñ ÑÍèÏ 21-01-97*.
6.22.  çäàíèÿõ äîëæíà áûòü ïðåäóñìîòðåíà àâòîìàòè÷åñêàÿ ïîæàðíàÿ ñèãíàëèçàöèÿ â ñîîòâåòñòâèè ñ òðåáîâàíèÿìè ÍÏÁ 88-2001. Ïåðå÷åíü ïîìåùåíèé, â êîòîðûõ íåîáõîäèìî ïðåäóñìàòðèâàòü àâòîìàòè÷åñêóþ ïîæàðíóþ ñèãíàëèçàöèþ, ñëåäóåò îïðåäåëÿòü â ñîîòâåòñòâèè ñ ÌÃÑÍ 4.06-03 è ÌÃÑÍ 4.15-98. Ñèãíàë î ñðàáàòûâàíèè ñèñòåìû ÀÏÑ (àâòîìàòè÷åñêîé ïîæàðíîé ñèãíàëèçàöèè) âûâîäèòñÿ â ïîìåùåíèå ñ êðóãëîñóòî÷íûì ïðåáûâàíèåì ïåðñîíàëà.
6.23. Íà ïóòÿõ ýâàêóàöèè èç çäàíèÿ äîëæíî áûòü ïðåäóñìîòðåíî àâàðèéíîå è ýâàêóàöèîííîå îñâåùåíèå, ïðîåêòèðóåìîå â ñîîòâåòñòâèè ñ òðåáîâàíèÿìè ÑÍèÏ 21-01-97* è ÑÍèÏ 23-05-95*.
Âåñòèáþëüíàÿ ãðóïïà ïîìåùåíèé
6.24. Ðåêîìåíäóåìûå ñîñòàâ è ïëîùàäè ïîìåùåíèé âåñòèáþëüíîé ãðóïïû ÑÐÖ ïðèâåäåíû â òàáëèöå 6.1.
6.25. Ãàðäåðîá äëÿ âîñïèòàííèêîâ îòäåëåíèÿ äíåâíîãî ïðåáûâàíèÿ ðåêîìåíäóåòñÿ îáîðóäîâàòü âåøàëêàìè êîíñîëüíîãî òèïà.
6.26. Ãàðäåðîá äëÿ âîñïèòàííèêîâ ðåêîìåíäóåòñÿ îáîðóäîâàòü ñóøèëüíûìè øêàôàìè äëÿ îäåæäû è îáóâè ñ ïîäîãðåâîì è âûòÿæêîé, à òàêæå ñåêöèîííûìè øêàôàìè äëÿ õðàíåíèÿ äåòñêîé îäåæäû è îáóâè. Êîëè÷åñòâî îáîðóäîâàíèÿ äîëæíî áûòü ðàññ÷èòàíî íà âîñïèòàííèêîâ êàê ñòàöèîíàðíîãî, òàê è êàðàíòèííîãî îòäåëåíèé.
6.27. Ïðè âåñòèáþëå ðåêîìåíäóåòñÿ ïðåäóñìàòðèâàòü îòäåëüíûå ïîìåùåíèÿ äëÿ âåðõíåé îäåæäû ïåðñîíàëà è äëÿ âåðõíåé îäåæäû ïîñåòèòåëåé (ðîäèòåëåé èëè ëèö èõ çàìåùàþùèõ).
6.28. Â âåñòèáþëüíîé ãðóïïå ðåêîìåíäóåòñÿ ïðåäóñìàòðèâàòü ïîìåùåíèå èíôîðìàöèîííîãî îòäåëà.
6.29.  ñîñòàâ âåñòèáþëüíîé ãðóïïû ñëåäóåò âêëþ÷àòü ïîñò äåæóðíîãî âàõòåðà ñ ïîìåùåíèåì äëÿ îòäûõà.
6.30. Ïðè âõîäàõ â çäàíèå ñëåäóåò ïðåäóñìàòðèâàòü òàìáóðû.
6.31. Äëÿ âîñïèòàííèêîâ ñ îãðàíè÷åííûìè âîçìîæíîñòÿìè, ãëàâíûé âõîä â çäàíèå ÑÐÖ ñëåäóåò îáîðóäîâàòü ïàíäóñîì ñ ïðîäîëüíûì óêëîíîì íå áîëåå 1:10 ïðè øèðèíå íå ìåíåå 1,8 ì äëÿ ïîëüçîâàíèÿ èíâàëèäàìè-êîëÿñî÷íèêàìè.
Òàáëèöà 6.1.
Ðåêîìåíäóåìûå ñîñòàâ è ïëîùàäè ïîìåùåíèé âåñòèáþëüíîé ãðóïïû.
|
Íàèìåíîâàíèå ïîìåùåíèé |
Ïëîùàäü ïîìåùåíèé, ì2 |
Ïðèìå÷àíèå |
||
|
Íà 1 ìåñòî |
Âñåãî |
|||
|
1 |
2 |
3 |
4 |
5 |
|
1. |
Âåñòèáþëü |
0,5 |
- |
Ñ ó÷åòîì ÷èñëåííîñòè ïåðñîíàëà è ïîñåòèòåëåé |
|
2. |
Ãàðäåðîá äëÿ âåðõíåé îäåæäû âîñïèòàííèêîâ äíåâíîãî îòäåëåíèÿ |
0,1 |
- |
|
|
3. |
Ãàðäåðîá äëÿ âåðõíåé îäåæäû âîñïèòàííèêîâ ñòàöèîíàðíîãî è êàðàíòèííîãî îòäåëåíèé |
0,15 |
- |
|
|
4. |
Ãàðäåðîá äëÿ âåðõíåé îäåæäû ïåðñîíàëà |
0,1 |
Íå ìåíåå 6 |
|
|
5. |
Ãàðäåðîá äëÿ âåðõíåé îäåæäû ïîñåòèòåëåé |
0,1 |
Íå ìåíåå 6 |
|
|
6. |
Èíôîðìàöèîííûé îòäåë |
- |
6 |
|
|
7. |
Ïîìåùåíèå äåæóðíîãî àäìèíèñòðàòîðà |
- |
6 |
|
|
8. |
Ñàíèòàðíûé óçåë ñ óìûâàëüíèêîì |
- |
3 |
|
|
9. |
Êîìíàòà õðàíåíèÿ óáîðî÷íîãî èíâåíòàðÿ |
- |
4 |
|
Ïðèåìíîå îòäåëåíèå.
6.32. Ñîñòàâ è ïëîùàäè ïîìåùåíèé ïðèåìíîãî îòäåëåíèÿ ïðèâåäåíû â òàáëèöå 6.2.
6.33. Ïîìåùåíèÿ ïðèåìíîãî îòäåëåíèÿ ñëåäóåò ðàñïîëàãàòü â íåïîñðåäñòâåííîé áëèçîñòè îò âåñòèáþëüíîé ãðóïïû.
6.34. Íàçíà÷åíèå ïðèåìíîãî îòäåëåíèÿ:
- ïðîâåäåíèå ïåðâè÷íîãî ìåäèöèíñêîãî îñìîòðà ïðèáûâàþùèõ;
- îêàçàíèå äîâðà÷åáíîé ïîìîùè (íà ëå÷åíèå âîñïèòàííèêè íàïðàâëÿþòñÿ â ñòàöèîíàðíîå ìåäèöèíñêîå ó÷ðåæäåíèå);
- ïðîâåäåíèå äèñïàíñåðèçàöèè âîñïèòàííèêîâ âðà÷àìè-ñïåöèàëèñòàìè;
- îêàçàíèå ïåðâè÷íîé ïñèõîëîãè÷åñêîé ïîìîùè (îñëàáëåíèå ïñèõè÷åñêîãî íàïðÿæåíèÿ ó äåòåé, ïðåîäîëåíèå îñòðîé êðèçèñíîé ñèòóàöèè);
- èçó÷åíèå îñîáåííîñòåé ëè÷íîñòíîãî ðàçâèòèÿ è ïîâåäåíèÿ âîñïèòàííèêîâ;
- ðàçðàáîòêà èíäèâèäóàëüíûõ ïðîãðàìì ñîöèàëüíîé ðåàáèëèòàöèè âîñïèòàííèêîâ.
Ïðèåìíîå îòäåëåíèå îñóùåñòâëÿåò ïðèåì íåñîâåðøåííîëåòíèõ êðóãëîñóòî÷íî.
6.35. Ïîìåùåíèÿ ïðèåìíîãî îòäåëåíèÿ äîëæíû áûòü ðàçäåëåíû íà äâå çîíû:
- ïðèåìíóþ;
- êàðàíòèííóþ.
6.36.  ñîñòàâ ïîìåùåíèé ïðèåìíîé çîíû ðåêîìåíäóåòñÿ âêëþ÷àòü ïîìåùåíèå ïðèåìà äîêóìåíòîâ è ïîìåùåíèå ïåðâè÷íîãî ìåäèöèíñêîãî îñìîòðà.
6.37.  ñîñòàâ ïðèåìíîé çîíû ðåêîìåíäóåòñÿ âêëþ÷àòü êàáèíåò ýêñòðåííîé ïñèõîëîãè÷åñêîé ïîìîùè ñ òåëåôîíîì äîâåðèÿ, îáñëóæèâàþùåãî ïîïàâøèõ â òÿæåëóþ æèçíåííóþ ñèòóàöèþ íåñîâåðøåííîëåòíèõ, íå ÿâëÿþùèõñÿ âîñïèòàííèêàìè ó÷ðåæäåíèÿ.  ñîñòàâå îáîðóäîâàíèÿ êàáèíåòà ñëåäóåò ïðåäóñìàòðèâàòü: ïèñüìåííûé ñòîë, êîìïüþòåðíûé ñòîë, ñòåëëàæ, äèâàí. Ïðè êàáèíåòå ðåêîìåíäóåòñÿ ïðåäóñìàòðèâàòü ñàíóçåë, â ñîñòàâ îáîðóäîâàíèÿ êîòîðîãî âõîäÿò: óíèòàç, óìûâàëüíèê, äóø.
6.38. Êàðàíòèííàÿ çîíà ñîñòîèò èç äâóõ æèëûõ ñåêöèé (äëÿ ìàëü÷èêîâ è äëÿ äåâî÷åê) ïî 5 ÷åë. è îáùèõ ïîìåùåíèé: ìåäèöèíñêèõ, ïñèõîëîãî-êîððåêöèîííûõ, ñòîëîâîé è õîçÿéñòâåííûõ ïîìåùåíèé êóõíè.
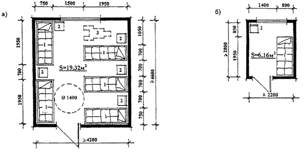
6.39. Ñïàëüíûå êîìíàòû ðåêîìåíäóåòñÿ îáîðóäîâàòü òîëüêî êðîâàòÿìè è ñòóëüÿìè (Ïðèëîæåíèå, Ðèñ. Ï.1.).
6.40. Â ñîñòàâå æèëûõ ñåêöèé êàðàíòèííîé çîíû ñëåäóåò ïðåäóñìîòðåòü ñïàëüíóþ êîìíàòó íà 1 ìåñòî (Ïðèëîæåíèå, Ðèñ. Ï.1).
6.41. Ñàíèòàðíûå óçëû è äóøåâûå ðåêîìåíäóåòñÿ ïðåäóñìàòðèâàòü íà êàæäóþ ñåêöèþ îòäåëüíî.  ñîñòàâ ñàíèòàðíîãî óçëà ñëåäóåò âêëþ÷àòü: óíèòàç è óìûâàëüíèê.  ñîñòàâ äóøåâîé ñëåäóåò âêëþ÷àòü: äóø è óìûâàëüíèê.  ñåêöèè äëÿ ìàëü÷èêîâ â ñîñòàâ îáîðóäîâàíèÿ ñàíèòàðíîãî óçëà ñëåäóåò âêëþ÷àòü ïèññóàð; à â ñåêöèè äëÿ äåâî÷åê - áèäå.
6.42.  ñîñòàâ êàðàíòèííîé çîíû ñëåäóåò âêëþ÷àòü êàáèíåò ïñèõîòåðàïåâòà, êîòîðûé ðàññ÷èòàí íà ïðîâåäåíèå èíäèâèäóàëüíûõ ïñèõîëîãî-êîððåêöèîííûõ çàíÿòèé. Îñíîâíàÿ ôóíêöèÿ äàííîãî êàáèíåòà - îêàçàíèå ïåðâè÷íîé ïñèõîëîãè÷åñêîé ïîìîùè.
Òàáëèöà 6.2.
Ðåêîìåíäóåìûå ñîñòàâ è ïëîùàäè ãðóïïû ïîìåùåíèé ïðèåìíîãî îòäåëåíèÿ.
|
Íàèìåíîâàíèå ïîìåùåíèé |
Ïëîùàäü ïîìåùåíèé, ì2 |
Ïðèìå÷àíèÿ |
|
|
1 |
2 |
3 |
4 |
|
Ïðèåìíàÿ çîíà |
|||
|
1. |
Ïðèåìíàÿ |
10 |
|
|
2. |
Êàáèíåò âðà÷à äëÿ ïåðâè÷íîãî îñìîòðà |
8 |
|
|
3. |
Äóøåâàÿ |
4 |
|
|
4. |
Êàáèíåò ýêñòðåííîé ïñèõîëîãè÷åñêîé ïîìîùè ñ ñàíóçëîì |
6 + 3 |
|
|
5. |
Ñàíóçåë ïåðñîíàëà ñ óìûâàëüíèêîì |
3 |
|
|
6. |
Êîìíàòà õðàíåíèÿ óáîðî÷íîãî èíâåíòàðÿ |
4 |
|
|
Êàðàíòèííàÿ çîíà |
|||
|
1. Æèëàÿ ñåêöèÿ íà 5 ÷åë. |
|||
|
1. |
Ñïàëüíàÿ êîìíàòà íà 5 ìåñò |
20 |
Ïðèëîæåíèå, Ðèñ. Ï.1 |
|
2. |
Ñïàëüíàÿ êîìíàòà íà 1 ìåñòî |
6 |
Ïðèëîæåíèå, Ðèñ. Ï.1 |
|
3. |
Êîìíàòà ïðèãîòîâëåíèÿ óðîêîâ - èãðîâàÿ |
26 |
Ïðèëîæåíèå, Ðèñ. Ï.2 |
|
4. |
Êëàäîâàÿ õðàíåíèÿ äåòñêîé îäåæäû |
4 |
|
|
5. |
Äóøåâàÿ |
4 |
|
|
6. |
Ñàíóçåë |
4 |
|
|
7. |
Êîìíàòà äåæóðíîãî âîñïèòàòåëÿ ñ ñàíóçëîì |
6 + 3 |
 ñîñòàâ îáîðóäîâàíèÿ ñàíóçëà âõîäÿò: äóø, óíèòàç, óìûâàëüíèê |
|
2. Îáùèå ïîìåùåíèÿ |
|||
|
1. |
Êàáèíåò çàâåäóþùåãî îòäåëåíèåì |
12 |
|
|
2. |
Êàáèíåò âðà÷à-êîíñóëüòàíòà |
8 |
|
|
3. |
Êàáèíåò ïñèõîòåðàïåâòà |
8 |
|
|
4. |
Êîìíàòà äåæóðíîé ìåäèöèíñêîé ñåñòðû |
8 |
|
|
5. |
Ñòîëîâàÿ |
15 |
|
|
6. |
Áóôåòíàÿ |
6 |
|
|
7. |
Ìîå÷íàÿ ïîñóäû |
4 |
|
|
8. |
Ñàíóçåë ïåðñîíàëà ñ óìûâàëüíèêîì |
3 |
|
|
9. |
Êîìíàòà õðàíåíèÿ óáîðî÷íîãî èíâåíòàðÿ |
4 |
|
Îòäåëåíèå ñîöèàëüíîé äèàãíîñòèêè.
6.43. Ðåêîìåíäóåìûé ñîñòàâ è ïëîùàäè ïîìåùåíèé îòäåëåíèÿ ñîöèàëüíîé äèàãíîñòèêè ïðèâåäåíû â òàáëèöå 6.3.
6.44. Îòäåëåíèå ñîöèàëüíîé äèàãíîñòèêè îñóùåñòâëÿåò ðàáîòó ñî âñåìè âîñïèòàííèêàìè ÑÐÖ è ñ èõ ðîäèòåëÿìè èëè ëèöàìè èõ çàìåùàþùèìè.
6.45. Ãðóïïó ïîìåùåíèé îòäåëåíèÿ ñîöèàëüíîé äèàãíîñòèêè ñëåäóåò ðàñïîëàãàòü â íåïîñðåäñòâåííîé áëèçîñòè îò âåñòèáþëüíîé ãðóïïû.
6.46. Äèàãíîñòè÷åñêàÿ ðàáîòà â ÑÐÖ èìååò êîìïëåêñíûé, ìåæäèñöèïëèíàðíûé õàðàêòåð, îðèåíòèðîâàííûé íà ïîëó÷åíèå èíôîðìàöèè î ñîöèàëüíîì, ïñèõîëîãè÷åñêîì ñòàòóñàõ âîñïèòàííèêà, ñîñòîÿíèè åãî ôèçè÷åñêîãî è ïñèõè÷åñêîãî çäîðîâüÿ, ñîöèàëüíîì è èíäèâèäóàëüíîì ðàçâèòèè. Íàçíà÷åíèå îòäåëåíèÿ ñîöèàëüíîé äèàãíîñòèêè:
- âûÿâëåíèå è àíàëèç ôàêòîðîâ, îáóñëàâëèâàþùèõ ñîöèàëüíóþ äåçàäàïòàöèþ âîñïèòàííèêîâ;
- îïðåäåëåíèå ôîðì è ñòåïåíè äåçàäàïòàöèè, îñîáåííîñòåé ëè÷íîñòíîãî ðàçâèòèÿ è ïîâåäåíèÿ âîñïèòàííèêîâ;
- äèàãíîñòèêà ñîöèàëüíîãî êëèìàòà â ñåìüå è ðàçðàáîòêà ïðîãðàìì ïî åãî ñòàáèëèçàöèè;
- ðàçðàáîòêè èíäèâèäóàëüíûõ è ãðóïïîâûõ ïðîãðàìì ñîöèàëüíîé ðåàáèëèòàöèè âîñïèòàííèêîâ, âêëþ÷àþùèõ êîìïëåêñ ìåðîïðèÿòèé, íàïðàâëåííûõ íà âûâîä èõ èç òðóäíîé æèçíåííîé ñèòóàöèè.
6.47. Âñå ïîìåùåíèÿ äàííîé ãðóïïû ðàññ÷èòàíû íà èíäèâèäóàëüíóþ ðàáîòó ñ âîñïèòàííèêàìè èëè ðîäèòåëÿìè (ëèöàìè èõ çàìåùàþùèìè).
6.48.  ñîñòàâ ïîìåùåíèé äàííîé ãðóïïû ñëåäóåò âêëþ÷àòü êàáèíåò êîìïüþòåðíîé äèàãíîñòèêè (òåñòèðîâàíèÿ).
6.49. Êàáèíåò ñèñòåìíîé äèàãíîñòèêè, ðàññ÷èòàí íà îäíîâðåìåííóþ ðàáîòó ñ âîñïèòàííèêîì òðåõ ñïåöèàëèñòîâ (äåôåêòîëîãà, ïñèõîòåðàïåâòà è ñîöèàëüíîãî ïåäàãîãà).
6.50. Äëÿ ðàáîòû ñ íåñîâåðøåííîëåòíèìè, ñêëîííûìè ê óïîòðåáëåíèþ ïñèõîàêòèâíûõ âåùåñòâ, â ñîñòàâ îòäåëåíèÿ ñîöèàëüíîé äèàãíîñòèêè ñëåäóåò âêëþ÷àòü êàáèíåò íàðêîëîãà.
Òàáëèöà 6.3.
Ðåêîìåíäóåìûå ñîñòàâ è ïëîùàäè ïîìåùåíèé îòäåëåíèÿ ñîöèàëüíîé äèàãíîñòèêè.
|
Íàèìåíîâàíèå ïîìåùåíèé |
Ïëîùàäü ïîìåùåíèé, ì2 |
Ïðèìå÷àíèÿ |
|
|
1 |
2 |
3 |
4 |
|
1. |
Êàáèíåò çàâåäóþùåãî îòäåëåíèåì |
8 |
|
|
2. |
Êàáèíåò êîìïüþòåðíîé äèàãíîñòèêè (òåñòèðîâàíèÿ) |
10 |
Ïðèëîæåíèå. Ðèñ. Ï.3 |
|
3. |
Êàáèíåò ñèñòåìíîé äèàãíîñòèêè |
10 |
Ïðèëîæåíèå. Ðèñ. Ï.3 |
|
4. |
Êàáèíåò íàðêîëîãà |
8 |
|
|
5. |
Ñàíóçåë ñ óìûâàëüíèêîì |
3 |
|
|
6. |
Êîìíàòà õðàíåíèÿ óáîðî÷íîãî èíâåíòàðÿ |
4 |
|
Îòäåëåíèå ñîöèàëüíî-ïðàâîâîé ïîìîùè.
6.51. Ðåêîìåíäóåìûå ñîñòàâ è ïëîùàäè ïîìåùåíèé îòäåëåíèÿ ñîöèàëüíî-ïðàâîâîé ïîìîùè ïðèâåäåíû â òàáëèöå 6.4.
6.52. Ñîöèàëüíî-ïðàâîâàÿ ñëóæáà ÑÐÖ âûïîëíÿåò äâå îñíîâíûå ôóíêöèè:
- ãàðàíòà çàùèòû çàêîííûõ ïðàâ è èíòåðåñîâ äåòåé, îñòàâøèõñÿ áåç ïîïå÷åíèÿ ðîäèòåëåé èëè ëèøåííûõ ðîäèòåëüñêîé çàáîòû è ñåìåéíîãî âîñïèòàíèÿ;
- ñâÿçåé ñ ðàçëè÷íûìè îðãàíèçàöèÿìè â öåëÿõ äàëüíåéøåãî ñåìåéíîãî æèçíåóñòðîéñòâà âîñïèòàííèêîâ, èõ ïîñëåäóþùåãî òðóäîóñòðîéñòâà.
6.53. Ñîöèàëüíî-ïðàâîâàÿ ñëóæáà ðåøàåò ñëåäóþùèå îñíîâíûå çàäà÷è:
- çàùèòà ïðàâ è çàêîííûõ èíòåðåñîâ íåñîâåðøåííîëåòíèõ;
- îêàçàíèå ñîäåéñòâèÿ îðãàíàì îïåêè è ïîïå÷èòåëüñòâà â äàëüíåéøåì æèçíåóñòðîéñòâå âîñïèòàííèêîâ, ïðîæèâàþùèõ â ó÷ðåæäåíèè;
- ôîðìèðîâàíèå áàíêà äàííûõ î ïîòåíöèàëüíûõ óñûíîâèòåëÿõ, îïåêóíàõ, ïîïå÷èòåëÿõ, ïðèåìíûõ ñåìüÿõ;
- îðãàíèçàöèÿ ñîöèàëüíî-ïñèõîëîãè÷åñêîé, ïåäàãîãè÷åñêîé, ïðàâîâîé ïîäãîòîâêè ê ïðèåìó âîñïèòàííèêîâ â ñåìüþ;
- íàáëþäåíèå çà àäàïòàöèåé âîñïèòàííèêîâ â ïðèíÿâøèõ èõ ñåìüÿõ, îðãàíèçàöèÿ è ïðîâåäåíèå ñîöèàëüíîãî ïàòðîíàæà;
- ïîäãîòîâêà þðèäè÷åñêèõ äîêóìåíòîâ âîñïèòàííèêîâ äëÿ ïåðåäà÷è â ñåìüþ.
6.54. Äàííóþ ãðóïïó ïîìåùåíèé ñîñòàâëÿþò êàáèíåòû ñïåöèàëèñòîâ äâóõ òèïîâ:
- êàáèíåòû íå ðàññ÷èòàííûå íà ðàáîòó ñ ïîñåòèòåëÿìè;
- êàáèíåòû ðàññ÷èòàííûå íà ðàáîòó ñ ðîäèòåëÿìè (îïåêóíàìè).
Ðåêîìåíäóåìûé ñîñòàâ îáîðóäîâàíèÿ êàáèíåòîâ òîãî èëè äðóãîãî íàçíà÷åíèÿ: ñòîë ñïåöèàëèñòà, êîìïüþòåðíûé ñòîë, ñòåëëàæè, ñòóëüÿ.
Òàáëèöà 6.4.
Ðåêîìåíäóåìûå ñîñòàâ è ïëîùàäè ïîìåùåíèé îòäåëåíèÿ ñîöèàëüíî-ïðàâîâîé ïîìîùè
|
Íàèìåíîâàíèå ïîìåùåíèé |
Ïëîùàäü ïîìåùåíèé, ì2 |
Ïðèìå÷àíèÿ |
|
|
1 |
2 |
3 |
4 |
|
1. |
Êàáèíåò çàâåäóþùåãî îòäåëåíèåì |
8 |
|
|
2. |
Êàáèíåò þðèñòà |
8 |
|
|
3. |
Êàáèíåò ñïåöèàëèñòà ïî ñîöèàëüíîé ðàáîòå (ïðèåì ïîñåòèòåëåé) |
12 |
|
|
4. |
Êàáèíåò ñïåöèàëèñòîâ ïî ñîöèàëüíîé ðàáîòå íà 2 ìåñòà (áåç ïðèåìà ïîñåòèòåëåé) |
12 |
|
|
5. |
Àðõèâ |
6 |
|
|
6. |
Ñàíèòàðíûé óçåë ñ óìûâàëüíèêîì |
3 |
|
Îòäåëåíèå ïîìîùè ñåìüå è äåòÿì.
6.55. Ðåêîìåíäóåìûå ñîñòàâ è ïëîùàäè ïîìåùåíèé îòäåëåíèÿ ïîìîùè ñåìüå è äåòÿì ïðèâåäåíû â òàáëèöå 6.5.
6.56. Îñíîâíàÿ öåëü îðãàíèçàöèè â ÑÐÖ îòäåëåíèÿ ïîìîùè ñåìüå è äåòÿì - âîññòàíîâëåíèå íîðìàëüíûõ ñåìåéíûõ îòíîøåíèé â ðîäíîé ñåìüå èëè ñîçäàíèå íîâîé ñåìåéíîé ñðåäû (îïåêóíñòâî, ïðèåìíûå ðîäèòåëè è ò.ï.) â öåëÿõ ñîäåéñòâèÿ ïîëíîöåííîãî ðàçâèòèÿ è ñàìîðåàëèçàöèè âîñïèòàííèêîâ. Äåÿòåëüíîñòü îòäåëåíèÿ íàïðàâëåíà íà:
- óñòàíîâëåíèå âîçìîæíûõ ôîðì ñîòðóäíè÷åñòâà ñî ñðåäîé ïðîæèâàíèÿ âîñïèòàííèêà;
- êîððåêöèþ ñåìåéíûõ îòíîøåíèé, â ò.÷. ðàçðåøåíèå êðèçèñíûõ ñèòóàöèé â ñåìüå;
- ñîäåéñòâèå îáðàçîâàíèþ îïåêóíñêîé (ïðèåìíîé) ñåìüè (ïðè íåâîçìîæíîñòè ïðåîäîëåíèÿ äèñôóíêöèîíàëüíîñòè ðîäíîé ñåìüè);
- îðãàíèçàöèþ êîììóíèêàòèâíîé ñðåäû äëÿ îáùåíèÿ ïîòåíöèàëüíûõ îïåêóíîâ è âîñïèòàííèêîâ;
- îêàçàíèå þðèäè÷åñêîé ïîìîùè è ñîäåéñòâèå ïðàâîâîé çàùèòå âîñïèòàííèêîâ è èõ ñåìåé.
6.57. Âñå êàáèíåòû ñïåöèàëèñòîâ îòäåëåíèÿ ïîìîùè ñåìüå è äåòÿì ðàññ÷èòàíû íà ðàáîòó ñ «äåòñêî-ðîäèòåëüñêîé» ãðóïïîé è îáîðóäóþòñÿ ñòîëîì ñïåöèàëèñòà, êîìïüþòåðíûì ñòîëîì, ñòåëëàæàìè, æóðíàëüíûì ñòîëèêîì ñ 4 êðåñëàìè. Êîëè÷åñòâî êàáèíåòîâ ñïåöèàëèñòîâ â êàæäîì êîíêðåòíîì ñëó÷àå îïðåäåëÿåòñÿ çàäàíèåì íà ïðîåêòèðîâàíèå.
6.58.  ñîñòàâ ãðóïïû ïîìåùåíèé ñîäåéñòâèÿ ñåìåéíîìó âîñïèòàíèþ âõîäèò «Ðîäèòåëüñêèé êëóá». Îñíîâíàÿ öåëü åãî îðãàíèçàöèè ñîçäàíèå óñëîâèé äëÿ îáùåíèÿ è àäàïòàöèè îïåêóíà è âîñïèòàííèêà. Ñîñòàâ îáîðóäîâàíèÿ êëóáà: îáåäåííûé ñòîë ñî ñòóëüÿìè, øêàô ñ ïîñóäîé, óãîëîê îòäûõà ñ ìÿãêîé ìåáåëüþ, ïîäñîáíûé ñòîëèê ñ ìèêðîâîëíîâîé ïå÷üþ è ýëåêòðè÷åñêèì ÷àéíèêîì, ðàêîâèíà. «Ðîäèòåëüñêèé êëóá», êàê ïðàâèëî, ðàññ÷èòûâàåòñÿ íà ïðåáûâàíèå ãðóïïû èç 6 ÷åë. Âîçìîæíàÿ ðàññòàíîâêà îáîðóäîâàíèÿ â «Ðîäèòåëüñêîì êëóáå» ïðèâåäåíà â Ïðèëîæåíèè íà Ðèñ. Ï.5.
Òàáëèöà 6.5.
Ðåêîìåíäóåìûå ñîñòàâ è ïëîùàäè ïîìåùåíèé îòäåëåíèÿ ïîìîùè ñåìüå è äåòÿì.
|
Íàèìåíîâàíèå ïîìåùåíèé |
Ïëîùàäü ïîìåùåíèé, ì2 |
Ïðèìå÷àíèÿ |
|
|
1 |
2 |
3 |
4 |
|
1. |
Êàáèíåò ïñèõîëîãà |
22 |
Ïðèëîæåíèå, Ðèñ. Ï.4 |
|
2. |
Êàáèíåò þðèñòà |
22 |
Ïðèëîæåíèå, Ðèñ. Ï.4 |
|
3. |
Êàáèíåò ñïåöèàëèñòà ïî âîññòàíîâèòåëüíîìó ïðàâîñóäèþ |
22 |
Ïðèëîæåíèå, Ðèñ. Ï.4 |
|
4. |
Ðîäèòåëüñêèé êëóá |
36 |
Ïðèëîæåíèå, Ðèñ. Ï.5 |
|
5. |
Ñàíèòàðíûå óçëû äëÿ ìóæ÷èí è äëÿ æåíùèí ñ óìûâàëüíèêîì â øëþçå |
3´2 |
|
Ñòàöèîíàðíîå îòäåëåíèå.
6.59. Ðåêîìåíäóåìûå ñîñòàâ è ïëîùàäè ïîìåùåíèé ñòàöèîíàðíîãî îòäåëåíèÿ ïðèâåäåíû â òàáëèöå 6.6.
6.60. Ñòàöèîíàðíîå îòäåëåíèå ôîðìèðóåòñÿ äëÿ íåñîâåðøåííîëåòíèõ, êîòîðûì òðåáóåòñÿ äëèòåëüíàÿ ðåàáèëèòàöèÿ.
6.61. Ïîìåùåíèÿ ïðîæèâàíèÿ ñòàöèîíàðíîãî îòäåëåíèÿ ñëåäóåò ðàçìåùàòü â ñîîòâåòñòâèè ñ òðåáîâàíèÿìè ï.ï. 6.3. è 6.4. íàñòîÿùèõ Ðåêîìåíäàöèé.
- äëÿ äåòåé ìëàäøåãî âîçðàñòà îò 3 äî 7 ëåò (ìàëü÷èêè è äåâî÷êè âìåñòå);
- äëÿ äåòåé ñðåäíåãî è ñòàðøåãî âîçðàñòà îò 8 äî 18 ëåò (ìàëü÷èêè è äåâî÷êè îòäåëüíî).
6.63. Â ñîîòâåòñòâèè ñ âîçðàñòîì ðåêîìåíäóåòñÿ äâà îñíîâíûõ òèïà æèëûõ ñåêöèé:
1. äëÿ äåòåé îò 3 äî 7 ëåò ïî òèïó ãðóïïîâîé ÿ÷åéêè äîøêîëüíîãî ó÷ðåæäåíèÿ, êîãäà âñå ïîìåùåíèÿ ñåêöèè îáðàçóþò åäèíûé áëîê;
2. äëÿ ïîäðîñòêîâ îò 8 äî 18 ëåò ïî òèïó êîðèäîðíîé ñèñòåìû, êîãäà âñå ïîìåùåíèÿ æèëîé ñåêöèè ñâÿçàíû ÷åðåç êîðèäîð.
6.64. Ðåêîìåíäóåìàÿ âìåñòèìîñòü æèëîé ñåêöèè ïåðâîãî òèíà ñîñòàâëÿåò 8 ÷åë.  ñîñòàâ æèëîé ñåêöèè âõîäÿò 2 ñïàëüíûå êîìíàòû íà 4 ìåñòà (Ïðèëîæåíèå, Ðèñ. Ï.8. è Ðèñ. Ï.9.) èëè 1 ñïàëüíàÿ êîìíàòà íà 8 ìåñò (Ïðèëîæåíèå, Ðèñ. Ï.6. è Ðèñ. Ï.7).
Êàáèíåò èíäèâèäóàëüíîé ðàáîòû ïðåäíàçíà÷åí äëÿ ïðîâåäåíèÿ çàíÿòèÿ ñ ëîãîïåäîì, äåôåêòîëîãîì, ïñèõîòåðàïåâòîì. Ðåêîìåíäóåìûé ñîñòàâ îáîðóäîâàíèÿ êàáèíåòà: ñòîë ñïåöèàëèñòà, äâà êðåñëà, æóðíàëüíûé ñòîëèê.
6.65. Ðåêîìåíäóåìàÿ âìåñòèìîñòü æèëîé ñåêöèè âòîðîãî òèïà äëÿ ïîäðîñòêîâ, îêàçàâøèõñÿ â òðóäíîé æèçíåííîé ñèòóàöèè, è ïîäðîñòêîâ ñ îãðàíè÷åííûìè ôèçè÷åñêèìè âîçìîæíîñòÿìè - ñîñòàâëÿåò 9 ÷åë.  ñîñòàâ æèëîé ÿ÷åéêè âõîäÿò ñïàëüíûå êîìíàòû íà 3 ìåñòà (Ïðèëîæåíèå, Ðèñ. Ï. Ï.12. è Ðèñ. Ï.13).
6.66. Äëÿ âîñïèòàííèêîâ ñ îãðàíè÷åííûìè âîçìîæíîñòÿìè â êàæäîé æèëîé ñåêöèè ñëåäóåò ïðåäóñìàòðèâàòü îäíî ìåñòî äëÿ èíâàëèäà-êîëÿñî÷íèêà.
6.67. Ðåêîìåíäóåìàÿ âìåñòèìîñòü æèëîé ñåêöèè âòîðîãî òèïà äëÿ ïîäðîñòêîâ ñ àñîöèàëüíûì ïîâåäåíèåì ñîñòàâëÿåò 9 ÷åë.  ñïàëüíûõ êîìíàòàõ äîëæíû áûòü ïðåäóñìîòðåíû íåçàêðûâàþùèåñÿ äâåðíûå ïðîåìû ñ öåëüþ îðãàíèçàöèè ïîñòîÿííîãî íàáëþäåíèÿ çà âîñïèòàííèêàìè. Ñåêöèè äëÿ ìàëü÷èêîâ è äëÿ äåâî÷åê ðåêîìåíäóåòñÿ ðàçìåùàòü ïîýòàæíî ñ âîçìîæíîñòüþ ïîëíîé èçîëÿöèè.  ñîñòàâ æèëîé ñåêöèè (â ñîîòâåòñòâèè ñ òðåáîâàíèÿìè «Ðåêîìåíäàöèé ïî ïðîåêòèðîâàíèþ ñïåöèàëüíûõ ó÷åáíî-âîñïèòàòåëüíûõ ó÷ðåæäåíèé îòêðûòîãî òèïà äëÿ äåòåé è ïîäðîñòêîâ ñ äåâèàíòíûì ïîâåäåíèåì») âõîäÿò òðè ñïàëüíûå êîìíàòû íà 1 ìåñòî (Ïðèëîæåíèå, Ðèñ. Ï.16) è äâå ñïàëüíûå êîìíàòû íà 3 ìåñòà (Ïðèëîæåíèå, Ðèñ. Ï.16).
Îðãàíèçàöèÿ îäíîìåñòíûõ ñïàëüíûõ êîìíàò îáúÿñíÿåòñÿ íàëè÷èåì â êîíòèíãåíòå âîñïèòàííèêîâ ïîäðîñòêîâ ñ âûðàæåííîé àãðåññèâíîñòüþ ïîâåäåíèÿ.
6.68. Äëÿ ïîäðîñòêîâ, ñêëîííûõ ê óïîòðåáëåíèþ ïñèõîàêòèâíûõ âåùåñòâ, ðåêîìåíäóåìàÿ âìåñòèìîñòü æèëîé ñåêöèè âòîðîãî òèïà ñîñòàâëÿåò 5 ÷åë.  ñïàëüíûõ êîìíàòàõ äîëæíû áûòü ïðåäóñìîòðåíû íåçàêðûâàþùèåñÿ äâåðíûå ïðîåìû ñ öåëüþ îðãàíèçàöèè ïîñòîÿííîãî íàáëþäåíèÿ çà âîñïèòàííèêàìè. Ñïàëüíàÿ êîìíàòà äëÿ äàííîãî êîíòèíãåíòà ðàññ÷èòàíà íà 5 ìåñò (Ïðèëîæåíèå, Ðèñ. Ï.1). Êîìíàòà ïðèãîòîâëåíèÿ óðîêîâ ñîâìåùåíà ñ êîìíàòîé òèõîãî îòäûõà (Ïðèëîæåíèå, Ðèñ. Ï.14à).
6.69. Ñàíèòàðíûå óçëû â æèëûõ ñåêöèÿõ ïåðâîãî òèïà ðàçìåùàþòñÿ â òóàëåòíîé, ñìåæíîé ñ ãðóïïîâîé. Â ñîñòàâ ñàíèòàðíîãî óçëà âõîäÿò: äâà óíèòàçà â êàáèíêàõ, îãîðîæåííûõ ýêðàíàìè, îäèí äóøåâîé ðîæîê ñ ïîääîíîì, äâå íîãîìîéêè, øêàô äëÿ õðàíåíèÿ ãîðøêîâ, ïîääîí äëÿ ìîéêè ãîðøêîâ.
6.70.  æèëûõ ñåêöèÿõ âòîðîãî òèïà ñàíèòàðíûå óçëû è äóøåâûå îðãàíèçóþòñÿ íà ñåêöèþ. Ðåêîìåíäóåìûé ñîñòàâ îáîðóäîâàíèÿ ñàíèòàðíîãî óçëà: óíèòàç è óìûâàëüíèê. Ðåêîìåíäóåìûé ñîñòàâ îáîðóäîâàíèÿ äóøåâîé: äóø è óìûâàëüíèê.  ÿ÷åéêå äëÿ ìàëü÷èêîâ â ñîñòàâ îáîðóäîâàíèÿ ñàíèòàðíîãî óçëà ñëåäóåò âêëþ÷àòü ïèññóàð.  ñåêöèè äëÿ äåâî÷åê - êàáèíó ëè÷íîé ãèãèåíû (óìûâàëüíèê è áèäå).
6.71.  ñîñòàâ îáîðóäîâàíèÿ ñïàëüíûõ êîìíàò âñåõ òèïîâ âõîäÿò êðîâàòè è ñòóëüÿ â ñîîòâåòñòâèè ñ êîëè÷åñòâîì ìåñò â êîìíàòå.
6.72. Ãàðäåðîáíóþ ðåêîìåíäóåòñÿ îáîðóäîâàòü øêàôàìè-êóïå ñ ñåêöèÿìè ïî êîëè÷åñòâó âîñïèòàííèêîâ â æèëîé ãðóïïå.
6.73. Ïîìåùåíèÿ ãðóïïîâûõ è ãîñòèíûõ äîëæíû áûòü ïðèñïîñîáëåíû ê ïðîâåäåíèþ ãðóïïîâûõ ïñèõîëîãî-êîððåêöèîííûõ çàíÿòèé (ñèòóàöèîííûõ èãð, «ëåãî» è ò.ï.), äëÿ ýòîãî â ñîñòàâ îáîðóäîâàíèÿ äîëæåí âõîäèòü ñòîë äëèííîé 2 ì.
Òàáëèöà 6.6.
Ðåêîìåíäóåìûå ñîñòàâ è ïëîùàäè ïîìåùåíèé ñòàöèîíàðíîãî îòäåëåíèÿ.
|
Íàèìåíîâàíèå ïîìåùåíèé |
Ïëîùàäü ïîìåùåíèé, ì2 |
Ïðèìå÷àíèÿ |
|
|
1 |
2 |
3 |
4 |
|
Æèëàÿ ñåêöèÿ ïåðâîãî òèïà |
|||
|
1. |
Ñïàëüíàÿ íà 8 ìåñò |
26 |
Ïðèëîæåíèå, Ðèñ. Ï.6 |
|
2. |
Ñïàëüíàÿ íà 8 ìåñò äëÿ âîñïèòàííèêîâ ñ îãðàíè÷åííûìè âîçìîæíîñòÿìè |
29 |
Ïðèëîæåíèå, Ðèñ. Ï.7 |
|
3. |
Ñïàëüíàÿ íà 4 ìåñòà (2 øò.) |
13´2 |
Ïðèëîæåíèå, Ðèñ. Ï.8 |
|
4. |
Ñïàëüíàÿ íà 4 ìåñòà äëÿ âîñïèòàííèêîâ ñ îãðàíè÷åííûìè âîçìîæíîñòÿìè (2 øò.) |
13´2 |
Ïðèëîæåíèå, Ðèñ. Ï.9 |
|
5. |
Ãðóïïîâàÿ |
32 |
Ïðèëîæåíèå, Ðèñ. Ï.10 |
|
6. |
Êàáèíåò èíäèâèäóàëüíîé ðàáîòû ñ âîñïèòàííèêîì |
10 |
|
|
7. |
Êîìíàòà äåæóðíîãî âîñïèòàòåëÿ ñ ñàíèòàðíûì óçëîì â øëþçå |
6 + 3 |
Ñîñòàâ îáîðóäîâàíèÿ ñàíóçëà: óíèòàç, äóø, óìûâàëüíèê |
|
8. |
Ñàíèòàðíûé óçåë äëÿ âîñïèòàííèêîâ |
15 |
Ïðèëîæåíèå, Ðèñ. Ï.11 |
|
9. |
Ãàðäåðîáíàÿ |
6 |
|
|
Æèëàÿ ñåêöèÿ âòîðîãî òèïà äëÿ âîñïèòàííèêîâ, îêàçàâøèõñÿ â òðóäíîé æèçíåííîé ñèòóàöèè, è âîñïèòàííèêîâ ñ îãðàíè÷åííûìè âîçìîæíîñòÿìè |
|||
|
1. |
Ñïàëüíàÿ íà 3 ìåñòà (3 øò.): |
|
|
|
|
äëÿ âîñïèòàííèêîâ, îêàçàâøèõñÿ â òðóäíîé æèçíåííîé ñèòóàöèè |
14´3 |
Ïðèëîæåíèå, Ðèñ. Ï.12 |
|
|
äëÿ âîñïèòàííèêîâ ñ îãðàíè÷åííûìè âîçìîæíîñòÿìè |
15´3 |
Ïðèëîæåíèå, Ðèñ. Ï.13 |
|
2. |
Êîìíàòà ïðèãîòîâëåíèÿ óðîêîâ |
|
Ïðèëîæåíèå, Ðèñ. Ï.14 |
|
|
äëÿ âîñïèòàííèêîâ, îêàçàâøèõñÿ â òðóäíîé æèçíåííîé ñèòóàöèè |
22 |
|
|
|
äëÿ âîñïèòàííèêîâ ñ îãðàíè÷åííûìè âîçìîæíîñòÿìè |
31 |
|
|
3. |
Ãîñòèíàÿ |
32 |
Ïðèëîæåíèå, Ðèñ. Ï.15 |
|
4. |
Ñàíèòàðíûé óçåë äëÿ ìàëü÷èêîâ |
2,5 |
 ñåêöèè äëÿ ìàëü÷èêîâ |
|
5. |
Ñàíè ãàðíûé óçåë äëÿ äåâî÷åê |
3 |
 ñåêöèè äëÿ äåâî÷åê |
|
6. |
Äóøåâàÿ |
4 |
|
|
7. |
Êîìíàòà äåæóðíîãî âîñïèòàòåëÿ ñ ñàíèòàðíûì óçëîì |
6 + 3 |
Ñîñòàâ îáîðóäîâàíèÿ ñàíóçëà: óíèòàç, äóø, óìûâàëüíèê |
|
8. |
Ãàðäåðîáíàÿ |
6 |
|
|
Æèëàÿ ñåêöèÿ âòîðîãî òèïà äëÿ âîñïèòàííèêîâ ñ àñîöèàëüíûì ïîâåäåíèåì |
|||
|
1. |
Ñïàëüíàÿ íà 3 ìåñò (2 øò.) |
14´2 |
Ïðèëîæåíèå, Ðèñ. Ï.16 |
|
2. |
Ñïàëüíàÿ íà 1 ìåñòî (3 øò.) |
6´3 |
Ïðèëîæåíèå, Ðèñ. Ï.16 |
|
3. |
Êîìíàòà ïðèãîòîâëåíèÿ óðîêîâ |
22 |
Ïðèëîæåíèå, Ðèñ. Ï.14à |
|
4. |
Ãîñòèíàÿ |
32 |
Ïðèëîæåíèå, Ðèñ. Ï.15 |
|
5. |
Ñàíèòàðíûé óçåë äëÿ ìàëü÷èêîâ |
2,5 |
 ÿ÷åéêå äëÿ ìàëü÷èêîâ |
|
6. |
Ñàíèòàðíûé óçåë äëÿ äåâî÷åê |
3 |
 ÿ÷åéêå äëÿ äåâî÷åê |
|
7. |
Äóøåâàÿ |
4 |
|
|
8. |
Êîìíàòà äåæóðíîãî âîñïèòàòåëÿ ñ ñàíèòàðíûì óçëîì |
6 + 3 |
Ñîñòàâ îáîðóäîâàíèÿ ñàíóçëà: óíèòàç, äóø, óìûâàëüíèê |
|
9. |
Ãàðäåðîáíàÿ |
6 |
|
|
Æèëàÿ ñåêöèÿ âòîðîãî òèïà äëÿ âîñïèòàííèêîâ, ñêëîííûõ ê óïîòðåáëåíèþ ïñèõîàêòèâíûõ âåùåñòâ |
|||
|
1. |
Ñïàëüíàÿ íà 5 ìåñò |
20 |
Ïðèëîæåíèå, Ðèñ. Ï.1à |
|
2. |
Êîìíàòà ïðèãîòîâëåíèÿ óðîêîâ - êîìíàòà òèõîãî îòäûõà |
22 |
Ïðèëîæåíèå, Ðèñ. Ï.14à |
|
3. |
Ñàíèòàðíûé óçåë äëÿ ìàëü÷èêîâ |
2,5 |
 ÿ÷åéêå äëÿ ìàëü÷èêîâ |
|
4. |
Ñàíèòàðíûé óçåë äëÿ äåâî÷åê |
3 |
 ÿ÷åéêå äëÿ äåâî÷åê |
|
5. |
Äóøåâàÿ |
4 |
|
|
6. |
Êîìíàòà äåæóðíîãî âîñïèòàòåëÿ ñ ñàíèòàðíûì óçëîì |
6 + 3 |
Ñîñòàâ îáîðóäîâàíèÿ ñàíóçëà: óíèòàç, äóø, óìûâàëüíèê |
|
7. |
Ãàðäåðîáíàÿ |
6 |
|
|
Îáùèå ïîìåùåíèÿ |
|||
|
1. |
Êîìíàòà õðàíåíèÿ ãðÿçíîãî áåëüÿ |
3 |
|
|
2. |
Êîìíàòà õðàíåíèÿ ÷èñòîãî áåëüÿ |
4 |
|
|
3. |
Áûòîâàÿ êîìíàòà |
10 |
|
|
4. |
Èíâåíòàðíàÿ |
8 |
|
|
5. |
Êîìíàòà õðàíåíèÿ óáîðî÷íîãî èíâåíòàðÿ |
4 |
|
Îòäåëåíèå äëèòåëüíîãî ïðåáûâàíèÿ.
6.74. Ðåêîìåíäóåìûå ñîñòàâ è ïëîùàäè ïîìåùåíèé îòäåëåíèÿ äëèòåëüíîãî ïðåáûâàíèÿ ïðèâåäåíû â òàáëèöå 6.7.
6.75. Êîíòèíãåíò îòäåëåíèÿ äëèòåëüíîãî ïðåáûâàíèÿ ñîñòàâëÿþò âîñïèòàííèêè, íå íóæäàþùèåñÿ â äàëüíåéøåé ðåàáèëèòàöèè, íî äëÿ êîòîðûõ íåâîçìîæíî â íàñòîÿùåå âðåìÿ îïðåäåëèòü äàëüíåéøåå æèçíåóñòðîéñòâî (îñòàâøèåñÿ áåç ïîïå÷åíèÿ ðîäèòåëåé èëè ëèö èõ çàìåùàþùèõ).
6.76. Ïðîåêòèðîâàíèå ïîìåùåíèé äëèòåëüíîãî ïðåáûâàíèÿ ñëåäóåò îñóùåñòâëÿòü â ñîîòâåòñòâèè ñ ï.ï. 6.61, 6.62, 6.63, 6.64, 6.65 íàñòîÿùèõ Ðåêîìåíäàöèé.
Òàáëèöà 6.7.
Ðåêîìåíäóåìûå ñîñòàâ è ïëîùàäè ïîìåùåíèé îòäåëåíèé äëèòåëüíîãî ïðåáûâàíèÿ.
|
Íàèìåíîâàíèå ïîìåùåíèé |
Ïëîùàäü ïîìåùåíèé, ì2 |
Ïðèìå÷àíèÿ |
|
|
1 |
2 |
3 |
4 |
|
Æèëàÿ ñåêöèÿ ïåðâîãî òèïà |
|||
|
1. |
Ñïàëüíàÿ íà 8 ìåñò |
26 |
Ïðèëîæåíèå, Ðèñ. Ï.6 |
|
2. |
Ñïàëüíàÿ íà 8 ìåñò äëÿ âîñïèòàííèêîâ ñ îãðàíè÷åííûìè âîçìîæíîñòÿìè |
29 |
Ïðèëîæåíèå, Ðèñ. Ï.7 |
|
3. |
Ñïàëüíàÿ íà 4 ìåñòà (2 øò.) |
13´2 |
Ïðèëîæåíèå, Ðèñ. Ï.8 |
|
4. |
Ñïàëüíàÿ íà 4 ìåñòà äëÿ âîñïèòàííèêîâ ñ îãðàíè÷åííûìè âîçìîæíîñòÿìè (2 øò.) |
13´2 |
Ïðèëîæåíèå, Ðèñ. Ï.9 |
|
5. |
Ãðóïïîâàÿ |
32 |
Ïðèëîæåíèå, Ðèñ. Ï.10 |
|
6. |
Êîìíàòà äåæóðíîãî âîñïèòàòåëÿ ñ ñàíèòàðíûì óçëîì â øëþçå |
6 + 3 |
Ñîñòàâ îáîðóäîâàíèÿ ñàíóçëà: óíèòàç, äóø, óìûâàëüíèê |
|
7. |
Ñàíèòàðíûé óçåë äëÿ âîñïèòàííèêîâ |
15 |
Ïðèëîæåíèå, Ðèñ. Ï.11 |
|
8. |
Ãàðäåðîáíàÿ |
6 |
|
|
Æèëàÿ ñåêöèÿ âòîðîãî òèïà |
|||
|
1. |
Ñïàëüíàÿ íà 3 ìåñòà (3 øò.): |
|
|
|
|
- äëÿ âîñïèòàííèêîâ, îêàçàâøèõñÿ â òðóäíîé æèçíåííîé ñèòóàöèè |
14´3 |
Ïðèëîæåíèå, Ðèñ. Ï.12 |
|
|
- äëÿ âîñïèòàííèêîâ ñ îãðàíè÷åííûìè âîçìîæíîñòÿìè |
15´3 |
Ïðèëîæåíèå, Ðèñ. Ï.13 |
|
2. |
Êîìíàòà ïðèãîòîâëåíèÿ óðîêîâ |
|
Ïðèëîæåíèå, Ðèñ. Ï.14 |
|
|
- äëÿ âîñïèòàííèêîâ, îêàçàâøèõñÿ â òðóäíîé æèçíåííîé ñèòóàöèè |
22 |
|
|
|
- äëÿ âîñïèòàííèêîâ ñ îãðàíè÷åííûìè âîçìîæíîñòÿìè |
31 |
|
|
3. |
Ãîñòèíàÿ |
32 |
Ïðèëîæåíèå, Ðèñ. Ï.15 |
|
4. |
Ñàíèòàðíûé óçåë äëÿ ìàëü÷èêîâ |
2,5 |
 ñåêöèè äëÿ ìàëü÷èêîâ |
|
5. |
Ñàíèòàðíûé óçåë äëÿ äåâî÷åê |
3 |
 ñåêöèè äëÿ äåâî÷åê |
|
6. |
Äóøåâàÿ |
4 |
|
|
7. |
Êîìíàòà äåæóðíîãî âîñïèòàòåëÿ ñ ñàíèòàðíûì óçëîì |
6 + 3 |
Ñîñòàâ îáîðóäîâàíèÿ ñàíóçëà: óíèòàç, äóø, óìûâàëüíèê |
|
8. |
Ãàðäåðîáíàÿ |
6 |
|
|
Îáùèå ïîìåùåíèÿ |
|||
|
1. |
Êîìíàòà õðàíåíèÿ ãðÿçíîãî áåëüÿ |
3 |
|
|
2. |
Êîìíàòà õðàíåíèÿ ÷èñòîãî áåëüÿ |
4 |
|
|
3. |
Áûòîâàÿ êîìíàòà |
10 |
|
|
4. |
Èíâåíòàðíàÿ |
8 |
|
|
5. |
Êîìíàòà õðàíåíèÿ óáîðî÷íîãî èíâåíòàðÿ |
4 |
|
Ñîöèàëüíàÿ ãîñòèíèöà.
6.77. Ðåêîìåíäóåìûå ñîñòàâ è ïëîùàäè ïîìåùåíèé ñîöèàëüíîé ãîñòèíèöû ïðèâåäåíû â òàáëèöå 6.8.
6.79. Ñîöèàëüíóþ ãîñòèíèöó ñëåäóåò ïðîåêòèðîâàòü êîðèäîðíîãî òèïà.
6.80. Æèëûå êîìíàòû ïðîåêòèðóþòñÿ, êàê ïðàâèëî, íà 3 ìåñòà. Êîëè÷åñòâî æèëûõ êîìíàò â êàæäîì êîíêðåòíîì ñëó÷àå îïðåäåëÿåòñÿ çàäàíèåì íà ïðîåêòèðîâàíèå â ñîîòâåòñòâèè ñ ï. 6.78 íàñòîÿùèõ Ðåêîìåíäàöèé.
6.81. Â êàæäîé æèëîé êîìíàòå äîëæíî áûòü ïðåäóñìîòðåíî îäíî ìåñòî äëÿ âîñïèòàííèêà, ïåðåäâèãàþùåãîñÿ íà êîëÿñêå.
6.82.  ñîñòàâ îáîðóäîâàíèÿ æèëûõ êîìíàò ñëåäóåò âêëþ÷àòü êðîâàòè, ñòóëüÿ è ïèñüìåííûå ñòîëû äëÿ êàæäîãî ïðîæèâàþùåãî, à òàêæå øêàô ñåêöèîííîãî òèïà äëÿ îäåæäû.
6.83. Ñàíèòàðíûå óçëû è äóøåâûå îðãàíèçóþòñÿ îáùèìè íà ñîöèàëüíóþ ãîñòèíèöó. Ðåêîìåíäóåìûé ñîñòàâ îáîðóäîâàíèÿ ñàíèòàðíîãî óçëà äëÿ þíîøåé: 2 óíèòàçà, 2 óìûâàëüíèêà è 2 ïèññóàðà. Ðåêîìåíäóåìûé ñîñòàâ îáîðóäîâàíèÿ ñàíèòàðíîãî óçëà äëÿ äåâóøåê: 2 óíèòàçà, 2 óìûâàëüíèêà, êàáèíà ëè÷íîé ãèãèåíû (óìûâàëüíèê è áèäå). Äóøåâûå îðãàíèçóþòñÿ äëÿ þíîøåé è äëÿ äåâóøåê. Ðåêîìåíäóåìûé ñîñòàâ îáîðóäîâàíèÿ äóøåâîé: 2 äóøåâûõ ðîæêà è 2 óìûâàëüíèêà.
6.84.  ñîñòàâ ïîìåùåíèé ñîöèàëüíîé ãîñòèíèöû ðåêîìåíäóåòñÿ âêëþ÷àòü êóõíþ-ñòîëîâóþ, èñïîëüçóåìóþ íåñîâåðøåííîëåòíèìè äëÿ ïðèãîòîâëåíèÿ ïèùè (â òîì ñëó÷àå, åñëè âîñïèòàííèêè íå ïîëüçóþòñÿ ñòîëîâîé ÑÐÖ).
Òàáëèöà 6.8.
Ðåêîìåíäóåìûå ñîñòàâ è ïëîùàäè ïîìåùåíèé ñîöèàëüíîé ãîñòèíèöû.
|
Íàèìåíîâàíèå ïîìåùåíèé |
Ïëîùàäü ïîìåùåíèé, ì2 |
Ïðèìå÷àíèÿ |
|
|
1 |
2 |
3 |
4 |
|
1. |
Æèëàÿ êîìíàòà íà 3 ìåñòà |
21 |
Ïðèëîæåíèå, Ðèñ. Ï.17 |
|
2. |
Ñàíèòàðíûé óçåë: |
|
|
|
|
- äëÿ þíîøåé |
8 |
|
|
|
- äëÿ äåâóøåê |
9 |
|
|
3. |
Äóøåâûå: |
|
|
|
|
- äëÿ þíîøåé |
4 |
|
|
|
- äëÿ äåâóøåê |
4 |
|
|
3. |
Ãîñòèíàÿ |
34 |
Ïðèëîæåíèå, Ðèñ. Ï.18 |
|
4. |
Êóõíÿ-ñòîëîâàÿ |
22 |
Ïðèëîæåíèå, Ðèñ. Ï.19 |
|
5. |
Áûòîâàÿ êîìíàòà |
6 |
|
|
6. |
Êîìíàòà âîñïèòàòåëÿ ñ ñàíèòàðíûì óçëîì |
6 + 3 |
|
|
7. |
Êîìíàòà õðàíåíèÿ ãðÿçíîãî áåëüÿ |
3 |
|
|
8. |
Êîìíàòà õðàíåíèÿ ÷èñòîãî áåëüÿ |
4 |
|
|
9. |
Èíâåíòàðíàÿ |
8 |
|
|
10. |
Êîìíàòà õðàíåíèÿ óáîðî÷íîãî èíâåíòàðÿ |
4 |
|
Îòäåëåíèå äíåâíîãî ïðåáûâàíèÿ è ñîöèàëüíîãî ïàòðîíàæà.
6.85. Ðåêîìåíäóåìûå ñîñòàâ è ïëîùàäè ïîìåùåíèé îòäåëåíèÿ äíåâíîãî ïðåáûâàíèÿ è ñîöèàëüíîãî ïàòðîíàæà ïðèâåäåíû â òàáëèöå 6.9.
6.86. Îòäåëåíèå äíåâíîãî ïðåáûâàíèÿ îñóùåñòâëÿåò ñîöèàëüíóþ ïðîôèëàêòèêó, êîððåêöèîííóþ ðàáîòó è ïîìîãàåò ñìÿã÷èòü èëè ñíÿòü óãðîçó ðàçâèòèÿ àñîöèàëüíîñòè äåòåé è ïîäðîñòêîâ, ïåðåõîäà èõ äåâèàíòíîãî ïîâåäåíèÿ â äåëèêâåíòíîå.
Îñíîâíûå çàäà÷è îòäåëåíèÿ äíåâíîãî ïðåáûâàíèÿ: âñåñòîðîííåå îáñëåäîâàíèå è îçäîðîâëåíèå ðåáåíêà; ïîìîùü äåòÿì â îâëàäåíèè íàâûêàìè êîíñòðóêòèâíîãî âçàèìîäåéñòâèÿ â áëèæàéøåé ñîöèàëüíîé ñðåäå; ðàçâèòèå íàâûêîâ êóëüòóðû ïîâåäåíèÿ; ñîäåéñòâèå ðåáåíêó â ïðåîäîëåíèè ó÷åáíûõ òðóäíîñòåé; ïðèîáùåíèå äåòåé ê òðóäó; îðãàíèçàöèÿ ðàáîòû ñ ñåìüåé.
6.87.  îòäåëåíèè äíåâíîãî ïðåáûâàíèÿ ðåêîìåíäóåòñÿ îáðàçîâûâàòü ðåàáèëèòàöèîííûå ãðóïïû, îáúåäèíÿþùèå âîñïèòàííèêîâ ïî âîçðàñòíîìó ïðèíöèïó è ñ ó÷åòîì ñòåïåíè èõ ñîöèàëüíîé äåçàäàïòàöèè. Êîëè÷åñòâî âîñïèòàííèêîâ â ãðóïïå óñòàíàâëèâàåòñÿ ñîãëàñíî «Ðåêîìåíäàöèé ïî îðãàíèçàöèè äåÿòåëüíîñòè ñïåöèàëèçèðîâàííûõ ó÷ðåæäåíèé äëÿ íåñîâåðøåííîëåòíèõ, íóæäàþùèõñÿ â ñîöèàëüíîé ðåàáèëèòàöèè» (Ïðèëîæåíèå ê ïîñòàíîâëåíèþ Ìèíòðóäà Ðîññèè îò 29 ìàðòà 2002 ã. ¹ 25) - 9 ÷åë.
6.88.  ñîñòàâ îòäåëåíèÿ ðåêîìåíäóåòñÿ âêëþ÷àòü êîìíàòû ïðèãîòîâëåíèÿ óðîêîâ ñ çîíîé ïñèõîëîãè÷åñêîé ðàçãðóçêè èç ðàñ÷åòà 10 - 15 % îò ðàñ÷åòíîé ïëîùàäè ïîìåùåíèÿ, íà êîòîðîé ñëåäóåò ðàñïîëàãàòü êîâåð, ìÿãêèå ìîäóëè è ò.ï. Êîìíàòà ïðèãîòîâëåíèÿ óðîêîâ ðàññ÷èòûâàåòñÿ íà îäíîâðåìåííîå ïðåáûâàíèå 9 âîñïèòàííèêîâ (Ïðèëîæåíèå, Ðèñ. Ï.14à).
6.89.  ñîñòàâ äàííîé ãðóïïû ïîìåùåíèé ðåêîìåíäóåòñÿ âêëþ÷àòü êîìíàòû òèõîãî îòäûõà, â îáîðóäîâàíèå êîòîðûõ âõîäÿò: ìÿãêàÿ ìåáåëü, æóðíàëüíûå ñòîëèêè, òåëåâèçîð ñ âèäåîìàãíèòîôîíîì, ñòåëëàæè äëÿ íàñòîëüíûõ èãð è êàññåò ñ âèäåîôèëüìàìè (Ïðèëîæåíèå, Ðèñ. Ï.15). Êîìíàòà òèõîãî îòäûõà ðàññ÷èòàíà íà îäíîâðåìåííîå ïðåáûâàíèå 9 âîñïèòàííèêîâ. Íåîáõîäèìîñòü è êîëè÷åñòâî äàííûõ ïîìåùåíèé îïðåäåëÿåòñÿ çàäàíèåì íà ïðîåêòèðîâàíèå.
6.90. Äëÿ âîñïèòàííèêîâ îòäåëåíèÿ äíåâíîãî ïðåáûâàíèÿ â âîçðàñòå îò 3 äî 7 ëåò íà áàçå êîìíàòû òèõîãî îòäûõà âîçìîæíà îðãàíèçàöèÿ äíåâíîãî îòäûõà äåòåé (èñïîëüçîâàíèå ðàñêëàäóøåê, õðàíÿùèõñÿ â èíâåíòàðíûõ).
6.91. Ïîìåùåíèÿ êîìíàò ïðèãîòîâëåíèÿ óðîêîâ è êîìíàò òèõîãî îòäûõà äîëæíû áûòü ïðèñïîñîáëåíû ê ïðîâåäåíèþ ãðóïïîâûõ ïñèõîëîãî-êîððåêöèîííûõ çàíÿòèé (ñèòóàöèîííûõ èãð, «ëåãî» è ò.ï.).
6.92.  ñîñòàâ îòäåëåíèÿ ñëåäóåò âêëþ÷èòü êàáèíåò ñîöèàëüíûõ ðàáîòíèêîâ, îñóùåñòâëÿþùèõ ïàòðîíàæ ñåìåé âîñïèòàííèêîâ äíåâíîãî îòäåëåíèÿ. Êîëè÷åñòâî ñïåöèàëèñòîâ, îñóùåñòâëÿþùèõ ðàáîòó â äàííîì êàáèíåòå äîëæíî ñîîòâåòñòâîâàòü êîëè÷åñòâó ãðóïï âîñïèòàííèêîâ.
Òàáëèöà 6.9.
Ðåêîìåíäóåìûå ñîñòàâ è ïëîùàäè ïîìåùåíèé îòäåëåíèÿ äíåâíîãî ïðåáûâàíèÿ.
|
Íàèìåíîâàíèå ïîìåùåíèé |
Ïëîùàäü ïîìåùåíèé, ì2 |
Ïðèìå÷àíèÿ |
|
|
1 |
2 |
3 |
4 |
|
1. |
Êîìíàòà ïðèãîòîâëåíèÿ óðîêîâ |
22 |
Ïðèëîæåíèå, Ðèñ. Ï.14à |
|
2. |
Êîìíàòà òèõîãî îòäûõà |
32 |
Ïðèëîæåíèå, Ðèñ. Ï.15 |
|
3. |
Êîìíàòà ñîöèàëüíûõ ðàáîòíèêîâ |
18 |
|
|
4. |
Êîìíàòà ñîöèàëüíûõ ïåäàãîãîâ |
18 |
|
|
5. |
Ñàíèòàðíûå óçëû äëÿ ìàëü÷èêîâ è äëÿ äåâî÷åê ñ óìûâàëüíèêàìè â øëþçå |
16´2 |
|
|
6. |
Êîìíàòà ãèãèåíû äëÿ äåâî÷åê |
3 |
Ðàçìåñòèòü ïðè ñàíóçëå äëÿ äåâî÷åê |
|
7. |
Ñàíóçåë ñ óìûâàëüíèêîì äëÿ ïåðñîíàëà |
3 |
|
|
8. |
Êîìíàòà õðàíåíèÿ óáîðî÷íîãî èíâåíòàðÿ |
4 |
|
Ëå÷åáíî-ðåàáèëèòàöèîííîå îòäåëåíèå (ïñèõîëîãî-êîððåêöèîííûå è ìåäèöèíñêèå ïîìåùåíèÿ).
6.93. Ðåêîìåíäóåìûå ñîñòàâ è ïëîùàäè ëå÷åáíî-ðåàáèëèòàöèîííîãî îòäåëåíèÿ ïðèâåäåíû â òàáëèöå 6.10. Ñîñòàâ, êîëè÷åñòâî êàáèíåòîâ è èõ ïëîùàäè äîëæíû óòî÷íÿòüñÿ çàäàíèåì íà ïðîåêòèðîâàíèå â êàæäîì êîíêðåòíîì ñëó÷àå.
6.94. Ëå÷åáíî-ðåàáèëèòàöèîííîå îòäåëåíèå ïðåäíàçíà÷åíî äëÿ ïðîâåäåíèÿ ìåðîïðèÿòèé, íàïðàâëåííûõ íà:
- ëå÷åíèå, îçäîðîâëåíèå è ïðîôèëàêòèêó ôèçè÷åñêèõ è ïñèõè÷åñêèõ çàáîëåâàíèé ó âîñïèòàííèêîâ;
- ìåäèöèíñêóþ êîððåêöèþ;
- íîðìàëèçàöèþ ïñèõè÷åñêîãî ñîñòîÿíèÿ âîñïèòàííèêîâ;
- ïðåîäîëåíèå îòêëîíåíèé â ýìîöèîíàëüíî-âîëåâîé ñôåðå äåòåé;
- ñîöèàëüíî-ñðåäîâóþ àäàïòàöèþ äåòåé.
6.95. Ïîìåùåíèÿ ìåäèöèíñêîãî îáñëóæèâàíèÿ ðàññ÷èòàíû íà ïðîâåäåíèå ðåàáèëèòàöèîííûõ ìåðîïðèÿòèé, íàáëþäåíèå ñîñòîÿíèÿ çäîðîâüÿ âîñïèòàííèêîâ, à òàêæå ïîääåðæèâàþùåãî è îáùåóêðåïëÿþùåãî ëå÷åíèÿ. Ïîìåùåíèÿ ìåäèöèíñêîãî íàçíà÷åíèÿ ñëåäóåò ïðîåêòèðîâàòü ñ ó÷åòîì ïîëîæåíèé ÌÃÑÍ 4.12-97 è Ïîñîáèÿ ïî ïðîåêòèðîâàíèþ ó÷ðåæäåíèé çäðàâîîõðàíåíèÿ ê ÑÍèÏ 2.08.02-89*.
6.97. Äëÿ âîñïèòàííèêîâ ñ îãðàíè÷åííûìè âîçìîæíîñòÿìè ïîìèìî ïîìåùåíèé, ïåðå÷èñëåííûõ â ï. 6.96 íàñòîÿùèõ Ðåêîìåíäàöèé, â ñîñòàâ îòäåëåíèÿ ðåêîìåíäóåòñÿ âêëþ÷àòü çàë ðàçâèòèÿ ìîòîðèêè, îáîðóäîâàííûé: «ñóõèì áàññåéíîì», áàòóòîì, äîðîæêîé äëÿ ìåõàíè÷åñêîé ðåôëåêñîòåðàïèè, ìÿ÷àìè Ä 90 ñì.
6.98. Äëÿ êîíòèíãåíòà, óêàòàííîãî â ï. 6.96 íàñòîÿùèõ Ðåêîìåíäàöèé, â ñîñòàâ îòäåëåíèÿ ðåêîìåíäóåòñÿ âêëþ÷àòü áàññåéí, îñíîâíûå ôóíêöèè êîòîðîãî - ðàçâèòèå ìîòîðèêè, îáùåå óêðåïëåíèå îðãàíèçìà, à òàêæå ñíÿòèÿ òÿãîòåíèÿ ê óïîòðåáëåíèþ ïñèõîàêòèâíûõ âåùåñòâ.
Ïðîåêòèðîâàíèå áàññåéíà ñëåäóåò îñóùåñòâëÿòü â ñîîòâåòñòâèè ñ ïîëîæåíèÿìè ñïðàâî÷íîãî ïîñîáèÿ «Ïðîåêòèðîâàíèå áàññåéíîâ» ê ÑÍèÏ 2.08.02-89* è ÑàíÏèÍ 2.1.2.1188-03. Ðåêîìåíäóåìûé ðàçìåð âàííû áàññåéíà 6´10 ì, ãëóáèíà äîïóñêàåòñÿ â ìåëêîé ÷àñòè - 0,9 ì è â ãëóáîêîé - 1,25 ì. Îäíîâðåìåííàÿ çàãðóçêà áàññåéíà - 6 ÷åë.
6.99. Ïëîùàäü ðàçäåâàëîê ïðè áàññåéíå ñëåäóåò ðàññ÷èòûâàòü èñõîäÿ èç íîðìû 2,5 ì2 íà ðåáåíêà ñòàðøå 10 ëåò è 2,9 ì2 - äî 10 ëåò.
6.100. Ðàçìåð íîæíîé âàííû ïðè âõîäå â áàññåéí - 1,8 ì ïî íàïðàâëåíèþ äâèæåíèÿ îò äóøåâîé ê ÷àøå áàññåéíà è íà âñþ øèðèíó ïðîõîäà.
Òàáëèöà 6.10.
Ðåêîìåíäóåìûå ñîñòàâ è ïëîùàäè ïîìåùåíèé ëå÷åáíî-ðåàáèëèòàöèîííîãî îòäåëåíèÿ (ïñèõîëîãî-êîððåêöèîííûõ è ìåäèöèíñêèõ).
|
Íàèìåíîâàíèå ïîìåùåíèé |
Ïëîùàäü ïîìåùåíèé, ì2 |
Ïðèìå÷àíèÿ |
|
|
Ìåäèöèíñêèå ïîìåùåíèÿ |
|||
|
1. |
Êàáèíåò âðà÷à - ïåäèàòðà |
8 |
|
|
2. |
Êàáèíåò ñòîìàòîëîãà |
17 |
Ïðèëîæåíèå, Ðèñ. Ï.20 |
|
3. |
Êàáèíåò êîíñóëüòàòèâíîãî ïðèåìà |
10 |
|
|
4. |
Êàáèíåò ìåäèöèíñêîé ñåñòðû - ïðîöåäóðíàÿ |
10 |
|
|
5. |
Ïðîöåäóðíàÿ |
14 |
|
|
6. |
Êàáèíåò ãðóïïîâûõ çàíÿòèé ËÔÊ ñ êëàäîâîé è ðàçäåâàëêîé |
50 + 8 + 6 |
Ïðèëîæåíèå, Ðèñ. Ï.21 |
|
7. |
Êàáèíåò ìàññàæà íà 1 ìåñòî |
8 |
|
|
8. |
Çàë ðàçâèòèÿ ìîòîðèêè ñ ïîäñîáíûì ïîìåùåíèåì |
50 + 8 + 6 |
Ïðèëîæåíèå. Ðèñ. Ï.22 |
|
9. |
Ñàíóçëû äëÿ ìàëü÷èêîâ è äëÿ äåâî÷åê ñ óìûâàëüíèêàìè â øëþçå |
16´2 |
|
|
10. |
Ñàíóçåë ïåðñîíàëà ñ óìûâàëüíèêîì |
3 |
|
|
11. |
Êîìíàòà õðàíåíèÿ óáîðî÷íîãî èíâåíòàðÿ |
4 |
|
|
12. |
Áàññåéí 6´10 ì |
110 |
|
|
13. |
Ðàçäåâàëüíûå äëÿ ìàëü÷èêîâ è äëÿ äåâî÷åê |
10´2 |
 ðàçäåâàëüíûõ ïðåäóñìîòðåòü óñòàíîâêè äëÿ ñóøêè âîëîñ |
|
14. |
Äóøåâûå ïðè ðàçäåâàëüíûõ âêëþ÷àÿ íîæíóþ âàííó |
5´2 |
Ïî äâå äóøåâûõ ñåòêè è îäíîé âàííå íà êàæäóþ äóøåâóþ |
|
15. |
Óáîðíûå ïðè ðàçäåâàëüíûõ ñ óìûâàëüíèêàìè |
3´2 |
|
|
16. |
Êîìíàòà èíñòðóêòîðà ñ ñàíèòàðíûì óçëîì |
6 + 3 |
 ñîñòàâ ñàíèòàðíîãî óçëà âõîäÿò: óíèòàç, óìûâàëüíèê, äóø |
|
17. |
Êîìíàòà ìåäñåñòðû |
10 ü 8 ý 6 þ |
Äîëæíû ðàñïîëàãàòüñÿ ñìåæíî è èìåòü âûõîä íà îáõîäíóþ äîðîæêó |
|
18. |
Ëàáîðàòîðèÿ àíàëèçà âîäû |
||
|
19. |
Óçåë óïðàâëåíèÿ |
||
|
20. |
Ïîìåùåíèå äëÿ õðàíåíèÿ õèìè÷åñêèõ ðåàêòèâîâ |
4 |
|
|
21. |
Ðåàãåíòíàÿ |
4 |
|
|
Ïñèõîëîãî-êîððåêöèîííûå ïîìåùåíèÿ |
|||
|
1. |
Êàáèíåò ïñèõîëîãà |
8 |
|
|
2. |
Êàáèíåò ãðóïïîâîé ïñèõîòåðàïèè |
43 |
Ïðèëîæåíèå, Ðèñ. Ï.23 |
|
3. |
Êàáèíåò ðåëàêñàöèè |
12 |
Ïðèëîæåíèå, Ðèñ. Ï.24 |
Îòäåëåíèå òðóäîâîé ðåàáèëèòàöèè.
6.101. Ðåêîìåíäóåìûå ñîñòàâ è ïëîùàäè ïîìåùåíèé îòäåëåíèÿ òðóäîâîé ðåàáèëèòàöèè ïðèâåäåíû â òàáëèöå 6.11. Ñîñòàâ, êîëè÷åñòâî, ïðîôèëü ìàñòåðñêèõ è èõ ïëîùàäè äîëæíû óòî÷íÿòüñÿ çàäàíèåì íà ïðîåêòèðîâàíèå â êàæäîì êîíêðåòíîì ñëó÷àå.
6.102. Äàííàÿ ãðóïïà ïîìåùåíèé îáåñïå÷èâàåò ñëåäóþùèå ôóíêöèè:
- ïðåäîñòàâëåíèå âîñïèòàííèêàì âîçìîæíîñòè ïîëó÷åíèÿ íà÷àëüíîé ïðîôåññèîíàëüíîé ïîäãîòîâêè;
- ïðîâåäåíèå òåðàïåâòè÷åñêîé êîððåêöèîííîé ðàáîòû, çàêëþ÷àþùåéñÿ â ðàçâèòèè ðàçëè÷íûõ âèäîâ ìîòîðèêè;
- ôîðìèðîâàíèå ó íåñîâåðøåííîëåòíèõ ïîòðåáíîñòè â ãðóïïîâîì è ìåæëè÷íîñòíîì îáùåíèè;
- îáåñïå÷åíèå çàíÿòîñòè íåñîâåðøåííîëåòíåãî â ñâîáîäíîå âðåìÿ;
- îñóùåñòâëåíèå ñîöèàëüíî-áûòîâîé àäàïòàöèè, äàþùåé íàâûêè ñàìîñòîÿòåëüíîãî æèçíåîáåñïå÷åíèÿ.
Ýòè ôóíêöèè îïðåäåëÿþò ñîñòàâ ïîìåùåíèé äàííîãî îòäåëåíèÿ, îáåñïå÷èâàþùèé âîçìîæíîñòü èíäèâèäóàëüíîãî ïîäáîðà âîñïèòàííèêàì òèïîâ çàíÿòèé, ñîîòâåòñòâóþùèõ èõ ñêëîííîñòÿì è ïîçâîëÿþùèé ñîðèåíòèðîâàòü åãî â áóäóùåé òðóäîâîé è ïðîôåññèîíàëüíîé äåÿòåëüíîñòè.
6.103. Ïðè ïðîåêòèðîâàíèè ìàñòåðñêèõ ñëåäóåò ïðåäóñìàòðèâàòü âîçìîæíîñòü èõ ïåðåïðîôèëèðîâàíèÿ ñ ó÷åòîì èçìåíÿþùèõñÿ óñëîâèé ðåàáèëèòàöèîííîé è êîððåêöèîííîé ðàáîòû çà ñ÷åò óíèôèêàöèè èõ ïîìåùåíèé. Óíèôèöèðîâàííàÿ ïëîùàäü ìàñòåðñêèõ îïðåäåëåíà èç óñëîâèé åäèíîâðåìåííîé íàïîëíÿåìîñòè 9 ÷åë.  çàâèñèìîñòè îò íåîáõîäèìîñòè ïî çàäàíèþ íà ïðîåêòèðîâàíèå åäèíîâðåìåííàÿ âìåñòèìîñòü ìàñòåðñêèõ ìîæåò êîëåáàòüñÿ îò 6 ÷åë. äî 18 ÷åë. (ñ ñîîòâåòñòâóþùèì èçìåíåíèåì ïëîùàäåé).
6.104.  ñîîòâåòñòâèè ñ âèäîì çàíÿòèé ìàñòåðñêèå ïîäðàçäåëÿþòñÿ íà ìàñòåðñêèå òåõíè÷åñêîãî òâîð÷åñòâà è ìàñòåðñêèå ïðèêëàäíîãî èñêóññòâà.
6.105. Ðåêîìåíäóåìûé ïðîôèëü ìàñòåðñêèõ òåõíè÷åñêîãî òâîð÷åñòâà: ìîäåëèðîâàíèå (àâòî, ñóäî, ðàäèî è ò.ï.); îáðàáîòêà ìåòàëëà è ñîîòâåòñòâóþùèå òåõíîëîãèè; îáðàáîòêà äåðåâà è ñîîòâåòñòâóþùèå òåõíîëîãèè; ðåìîíò áûòîâîé òåõíèêè; àâòîäåëî (òåîðèÿ è ïðàêòèêà) è ò.ï. (Ïðèëîæåíèå, Ðèñ. Ï.25 - Ðèñ. Ï.28).
6.106. Ìàñòåðñêèå òåõíè÷åñêîãî òâîð÷åñòâà, â êîòîðûõ ó÷åáíûå è òåõíîëîãè÷åñêèå ïðîöåññû ñâÿçàíû ñ âûäåëåíèåì õèìè÷åñêèõ âåùåñòâ è ïûëè, ñëåäóåò îáîðóäîâàòü ýôôåêòèâíîé âåíòèëÿöèîííîé ñèñòåìîé ñîãëàñíî ÑÍèÏ 41-01-2003.
6.107. Ìàñòåðñêèå òåõíè÷åñêîãî òâîð÷åñòâà îáîðóäóþòñÿ øêàôàìè äëÿ õðàíåíèÿ ñïåöîäåæäû è óìûâàëüíèêàìè ñ ïîäà÷åé ãîðÿ÷åé è õîëîäíîé âîäû. Ïðè ïîìåùåíèÿõ ìàñòåðñêèõ ñëåäóåò ïðåäóñìàòðèâàòü êëàäîâûå äëÿ õðàíåíèÿ ìàòåðèàëîâ è ãîòîâûõ èçäåëèé.
6.108. Ðåêîìåíäóåìàÿ íîìåíêëàòóðà ìàñòåðñêèõ ïðèêëàäíîãî èñêóññòâà ïðèâåäåíà â òàáëèöå 6.11. (Ïðèëîæåíèå, Ðèñ. Ï.29 - Ðèñ. Ï.35).
6.109. Äëÿ êîíòèíãåíòà ñ àñîöèàëüíûì ïîâåäåíèåì àðõèòåêòóðíî-ïëàíèðîâî÷íàÿ îðãàíèçàöèÿ ìàñòåðñêèõ ñ öåííûì îáîðóäîâàíèåì äîëæíà ïðåäóñìàòðèâàòü âûäåëåíèå çîíû îãðàíè÷åííîé äîñòóïíîñòè õðàíåíèÿ öåííîãî îáîðóäîâàíèÿ, ñûðüÿ, èçäåëèé (ìåòàëëè÷åñêèå äâåðè, ðåøåòêè íà îêíàõ è ò.ï.).
6.110. Êóëèíàðíàÿ ìàñòåðñêàÿ îáåñïå÷èâàåò ñîöèàëüíî-áûòîâóþ àäàïòàöèþ âîñïèòàííèêîâ è ÿâëÿåòñÿ íåîòúåìëåìûì ýëåìåíòîì îòäåëåíèÿ òðóäîâîé ðåàáèëèòàöèè. Îíà äîëæíà âêëþ÷àòü â ñâîé ñîñòàâ äâå çîíû: çîíó ïðîèçâîäñòâà è çîíó «÷àåïèòèÿ».  îáîðóäîâàíèå ïåðâîé çîíû âêëþ÷àþòñÿ ðàçäåëî÷íûå ñòîëû, ïëèòà, õîëîäèëüíèê, øêàô ñóõèõ ïðîäóêòîâ, øêàô êóõîííîé ïîñóäû, ìîéêà. Îáîðóäîâàíèå âòîðîé çîíû ñîñòàâëÿþò îáåäåííûé ñòîë ñî ñòóëüÿìè, øêàô ñ ÷àéíîé ïîñóäîé.
Òàáëèöà 6.11.
Ðåêîìåíäóåìûå ñîñòàâ è ïëîùàäè ïîìåùåíèé îòäåëåíèÿ òðóäîâîé ðåàáèëèòàöèè.
|
Íàèìåíîâàíèå ïîìåùåíèé |
Ïëîùàäü ïîìåùåíèé ì2 |
Ïðèìå÷àíèÿ |
|
|
1 |
2 |
3 |
4 |
|
Ìàñòåðñêèå òåõíè÷åñêîãî òâîð÷åñòâà |
|||
|
1. |
Ìàñòåðñêàÿ òåõíè÷åñêîãî òâîð÷åñòâà ñ êëàäîâîé |
54 + 17 |
Ïðèëîæåíèå, Ðèñ. Ï.25 |
|
2. |
Ìàñòåðñêàÿ ñóäîìîäåëèðîâàíèÿ ñ êëàäîâîé |
54 + 17 |
Ïðèëîæåíèå, Ðèñ. Ï.26 |
|
3. |
Ìàñòåðñêàÿ ïî îáðàáîòêå äåðåâà |
42 |
Ïðèëîæåíèå. Ðèñ. Ï.27 |
|
4. |
Ìàñòåðñêàÿ ïî îáðàáîòêå ìåòàëëà |
42 |
Ïðèëîæåíèå, Ðèñ. Ï.28 |
|
Ìàñòåðñêèå ïðèêëàäíîãî èñêóññòâà |
|||
|
1. |
Ìàñòåðñêàÿ òåàòðàëüíî-õóäîæåñòâåííàÿ (èçãîòîâëåíèå êîñòþìà) ñ êëàäîâîé |
54 + 17 |
Ïðèëîæåíèå, Ðèñ. Ï.29 |
|
2. |
Ìàñòåðñêàÿ ëåïêè ñ ïå÷üþ äëÿ îáæèãà, êëàäîâîé õðàíåíèÿ èíâåíòàðÿ è ãîòîâûõ èçäåëèé |
54 + 17 |
Íàëè÷èå ìåñòíîé âûòÿæêè Ïðèëîæåíèå, Ðèñ. Ï.30 |
|
3. |
Ìàñòåðñêàÿ êóêîëüíîãî òåàòðà (èçãîòîâëåíèå êóêîë) ñ êëàäîâîé |
42 + 17 |
Ïðèëîæåíèå, Ðèñ. Ï.31 |
|
4. |
Ìàñòåðñêàÿ ïî âûæèãàíèþ ïî äåðåâó |
42 |
Ïðèëîæåíèå, Ðèñ. Ï.32 |
|
5. |
Ìàñòåðñêàÿ êóëèíàðíîãî òâîð÷åñòâà |
42 |
Ïðèëîæåíèå, Ðèñ. Ï.33 |
|
6. |
Ìàñòåðñêàÿ êðîéêè, øèòüÿ è âÿçàíèÿ |
42 |
Ïðèëîæåíèå, Ðèñ. Ï.34 |
|
7. |
Ìàñòåðñêàÿ ðóêîäåëèÿ (âûøèâàíèÿ, ïëåòåíèÿ, îðèãàìè è ò.ï.) |
24 |
|
|
8. |
Ìàñòåðñêàÿ âèçàæà, êîñìåòîëîãèè, ïàðèêìàõåðñêîãî èñêóññòâà |
24 |
|
|
9. |
Ìàñòåðñêàÿ äèçàéíà (îôîðìèòåëüñêîãî èñêóññòâà) |
24 |
|
|
Îáùèå ïîìåùåíèÿ |
|||
|
1. |
Ïîìåùåíèå äëÿ ðóêîâîäèòåëåé ìàñòåðñêèõ è êðóæêîâ |
36 |
|
|
2. |
Êëàäîâûå ïîìåùåíèÿ |
12´3 |
|
|
3. |
Ñàíèòàðíûå óçëû äëÿ ìàëü÷èêîâ è äëÿ äåâî÷åê ñ óìûâàëüíèêàìè â øëþçå |
16´2 |
|
|
4. |
Ñàíóçåë ñ óìûâàëüíèêîì äëÿ ïåðñîíàëà |
3 |
|
|
5. |
Ïîìåùåíèå óáîðî÷íîãî èíâåíòàðÿ |
4 |
|
Äîñóãîâûå è ôèçêóëüòóðíî-îçäîðîâèòåëüíûå ïîìåùåíèÿ.
6.111. Ðåêîìåíäóåìûé ñîñòàâ è ïëîùàäè äîñóãîâûõ è ôèçêóëüòóðíî-îçäîðîâèòåëüíûõ ïîìåùåíèé ïðèâåäåíû â òàáëèöå 6.12.
6.112. Îñíîâíàÿ çàäà÷à ñëóæáû äàííîé ãðóïïû ïîìåùåíèé - ïåðâè÷íàÿ ïðîôèëàêòèêà àñîöèàëüíîãî ïîâåäåíèÿ âîñïèòàííèêîâ íà îñíîâå îòâëå÷åíèÿ îò ïðèâû÷íîãî àãðåññèâíî íàñòðîåííîãî îêðóæåíèÿ è âîâëå÷åíèÿ â ìåðîïðèÿòèÿ, íàïðàâëåííûå íà:
- ôèçè÷åñêîå ðàçâèòèå, ïðåäîñòàâëåíèå ïîçèòèâíîé âîçìîæíîñòè âûõîäà ñâîåé ýíåðãèè;
- ôîðìèðîâàíèå ó äåòåé è ïîäðîñòêîâ ïîòðåáíîñòè â ãðóïïîâîì è ìåæëè÷íîñòíîì îáùåíèè.
6.113.  ñîñòàâå äîñóãîâûõ ïîìåùåíèé ïðåäóñìàòðèâàåòñÿ çðèòåëüíûé çàë íà 80 % îò åäèíîâðåìåííîé âìåñòèìîñòè ÑÐÖ (çà âû÷åòîì âîñïèòàííèêîâ, ïðîæèâàþùèõ â ñîöèàëüíîé ãîñòèíèöå) èç ðàñ÷åòà 1,2 ì2 íà 1 ìåñòî â ñâÿçè ñ ìíîãîôóíêöèîíàëüíûì èñïîëüçîâàíèåì ïëîùàäè çàëà (Ïðèëîæåíèå, Ðèñ. Ï.35).
Ìåñòà â çàëå ðåêîìåíäóåòñÿ ïðåäóñìàòðèâàòü ñúåìíûìè, ñåêöèîííûìè ñî ñêëàäèðîâàíèåì ïî ïåðèìåòðó çàëà. Îñâîáîæäàåìàÿ â ýòîì ñëó÷àå ïëîùàäü çàëà ìîæåò áûòü èñïîëüçîâàíà äëÿ ïðîâåäåíèÿ òàíöåâ, ìàññîâûõ èãð.
6.114.  ñîñòàâ äîñóãîâûõ ïîìåùåíèé ðåêîìåíäóåòñÿ âêëþ÷àòü êðóæêè ýñòåòè÷åñêîãî âîñïèòàíèÿ: òåàòðàëüíûé, öèðêîâîãî èñêóññòâà, õîðîâîãî èñêóññòâà, òàíöåâàëüíûé. Ýòè êðóæêè, êàê ïðàâèëî, îðãàíèçóþòñÿ íà áàçå àêòîâîãî çàëà.
6.115.  ñîñòàâ äîñóãîâûõ ïîìåùåíèé ðåêîìåíäóåòñÿ âêëþ÷àòü áèáëèîòåêó ïëîùàäüþ 90 ì2 ñ êíèãîõðàíèëèùåì è ÷èòàëüíûì çàëîì.
6.116.  ñîñòàâå ôèçêóëüòóðíî-îçäîðîâèòåëüíûõ ïîìåùåíèé ïðåäóñìàòðèâàåòñÿ ñïîðòèâíûé çàë. Ñâÿçü ñïîðòèâíîãî çàëà ñ ðàçäåâàëüíûìè ïðåäóñìàòðèâàåòñÿ íåïîñðåäñòâåííî èëè ÷åðåç êîðèäîð. Ïðè ñïîðòèâíîì çàëå ïðåäóñìàòðèâàåòñÿ êëàäîâàÿ ñïîðòèíâåíòàðÿ, ñìåæíàÿ ñ íèì. (Ïðèëîæåíèå, Ðèñ. Ï.36).
6.117. Â ñîñòàâå ïîìåùåíèé äàííîé ãðóïïû ðåêîìåíäóåòñÿ äîïîëíèòåëüíî ïðåäóñìàòðèâàòü ïîìåùåíèÿ äëÿ õðàíåíèÿ ñïîðòèâíîãî èíâåíòàðÿ (ëûæ, ðîëèêîâûõ êîíüêîâ, âåëîñèïåäîâ è ò.ï.), ïëîùàäè êîòîðûõ îïðåäåëÿþòñÿ çàäàíèåì íà ïðîåêòèðîâàíèå.
Òàáëèöà 6.12.
Ðåêîìåíäóåìûå ñîñòàâ è ïëîùàäè äîñóãîâûõ è ôèçêóëüòóðíî-îçäîðîâèòåëüíûõ ïîìåùåíèé
|
¹¹ ï.ï. |
Íàèìåíîâàíèå ïîìåùåíèé |
Ïëîùàäü ïîìåùåíèé ì2 |
Ïðèìå÷àíèÿ |
|
1 |
4 |
3 |
4 |
|
Äîñóãîâûå ïîìåùåíèÿ |
|||
|
1. |
Àêòîâûé çàë íà 80 ìåñò |
96 |
Ïðèëîæåíèå, Ðèñ. Ï.35 |
|
2. |
Ñöåíà-ïîäèóì |
17 |
Ãëóáèíà 2,4 ì |
|
3. |
Êèíîïðîåêöèîííàÿ ñ ïåðåìîòî÷íîé è ðàäèîóçëîì |
26 |
|
|
4. |
Ôèëüìîâèäåîòåêà |
8 |
|
|
5. |
Êëàäîâàÿ ìåáåëè, ðåêâèçèòà è àïïàðàòóðû |
20 |
|
|
6. |
Áèáëèîòåêà ñ ÷èòàëüíûì çàëîì è êíèãîõðàíèëèùåì |
90 |
|
|
Ôèçêóëüòóðíî-îçäîðîâèòåëüíûå ïîìåùåíèÿ |
|||
|
1. |
Ñïîðòèâíûé çàë 12´24 ì |
288 |
Ïðèëîæåíèå, Ðèñ. Ï.36 |
|
2. |
Ðàçäåâàëüíûå äëÿ ìàëü÷èêîâ è äåâî÷åê ñ äóøåâûìè è ñàíèòàðíûìè óçëàìè ïðè ñïîðòçàëå |
18´2 |
Ïî 2 äóøåâûå, 1 óíèòàçó è óìûâàëüíèêó íà ðàçäåâàëüíóþ |
|
3. |
Ñíàðÿäíàÿ |
16 |
Ñìåæíî ñî ñïîðòèâíûì çàëîì |
|
4. |
Çàë äëÿ çàíÿòèé íàñòîëüíûì òåííèñîì |
24 |
|
|
5. |
Êîìíàòà èíñòðóêòîðîâ-ìåòîäèñòîâ ñ ñàíóçëîì |
10 + 3 |
 ñîñòàâ ñàíóçëà âõîäÿò: óíèòàç, äóø, óìûâàëüíèê |
|
6. |
Ñàíèòàðíûå óçëû äëÿ ìàëü÷èêîâ è äëÿ äåâî÷åê ñ óìûâàëüíèêàìè â øëþçå |
16´2 |
|
|
7. |
Êîìíàòà ãèãèåíû äëÿ äåâî÷åê |
3 |
Ðàçìåñòèòü ïðè ñàíóçëå äëÿ äåâî÷åê |
|
8. |
Ñàíóçåë ñ óìûâàëüíèêîì äëÿ ïåðñîíàëà |
3 |
|
|
9. |
Êîìíàòà õðàíåíèÿ óáîðî÷íîãî èíâåíòàðÿ |
4 |
|
Îòäåëåíèå ïåðåâîçêè íåñîâåðøåííîëåòíèõ.
6.118. Ðåêîìåíäóåìûé ñîñòàâ è ïëîùàäè ïîìåùåíèé îòäåëåíèÿ ïåðåâîçêè íåñîâåðøåííîëåòíèõ ïðèâåäåíû â òàáëèöå 6.13.
6.119. Äàííîå îòäåëåíèå ñîçäàåòñÿ äëÿ îðãàíèçàöèè ïåðåâîçêè íåñîâåðøåííîëåòíèõ, ñàìîâîëüíî óøåäøèõ èç ñåìåé, ïðèåìà íåñîâåðøåííîëåòíèõ, äîñòàâëÿåìûõ ê ìåñòó ïðîæèâàíèÿ èç äðóãèõ ñóáúåêòîâ Ðîññèéñêîé Ôåäåðàöèè, îáåñïå÷åíèÿ íåñîâåðøåííîëåòíèì (ëèöàì èõ ñîïðîâîæäàþùèõ) íåîáõîäèìûõ óñëîâèé äëÿ âðåìåííîãî ïðåáûâàíèÿ â ó÷ðåæäåíèè.
6.120. Êàáèíåòû ñïåöèàëèñòîâ ýòîãî îòäåëåíèÿ íå ðàññ÷èòàíû íà ðàáîòó ñ ïîñåòèòåëÿìè.
Ðåêîìåíäóåìûé ñîñòàâ îáîðóäîâàíèÿ êàáèíåòîâ: ñòîëû ñïåöèàëèñòîâ, ñòåëëàæè, ñòóëüÿ, êîìïüþòåðíûå ñòîëû.
Òàáëèöà 6.13.
Ðåêîìåíäóåìûå ñîñòàâ è ïëîùàäè ïîìåùåíèé îòäåëåíèÿ ïåðåâîçêè íåñîâåðøåííîëåòíèõ.
|
Íàèìåíîâàíèå ïîìåùåíèé |
Ïëîùàäü ïîìåùåíèé, ì2 |
Ïðèìå÷àíèÿ |
|
|
1 |
2 |
3 |
4 |
|
1. |
Êàáèíåò çàâåäóþùåãî îòäåëåíèåì |
8 |
|
|
2. |
Êàáèíåò ïñèõîëîãà |
8 |
|
|
3. |
Êàáèíåò ñïåöèàëèñòîâ ïî ñîöèàëüíîé ðàáîòå íà 3 ìåñòà |
15 |
|
|
4. |
Êàáèíåò ñîöèàëüíûõ ïåäàãîãîâ íà 4 ìåñòà |
18 |
|
|
5. |
Êàáèíåò ñïåöèàëèñòîâ íà 3 ìåñòà |
15 |
|
|
6. |
Ñàíèòàðíûé óçåë ñ óìûâàëüíèêîì |
3 |
|
Ïîìåùåíèÿ ìåäèöèíñêîãî èçîëÿòîðà.
6.121. Ðåêîìåíäóåìûé ñîñòàâ è ïëîùàäè ïîìåùåíèé ìåäèöèíñêîãî èçîëÿòîðà ïðèâåäåíû â òàáëèöå 6.14.
6.122. Âìåñòèìîñòü èçîëÿòîðà ñëåäóåò ïðåäóñìàòðèâàòü èç ðàñ÷åòà 10 % îò ÷èñëà ïðîæèâàþùèõ âîñïèòàííèêîâ.
6.123. Ïîìåùåíèÿ èçîëÿòîðà ñîåäèíÿþòñÿ ñ îñòàëüíûìè ïîìåùåíèÿìè ÑÐÖ ÷åðåç òàìáóð-øëþç, â êîòîðîì ñëåäóåò ðàçìåùàòü óìûâàëüíèê è âåøàëêó äëÿ ñìåíû õàëàòîâ.
6.124.  ñîñòàâ ïîìåùåíèé èçîëÿòîðà ñëåäóåò âêëþ÷àòü èçîëÿöèîííûå ïàëàòû íà 1 è 3 ÷åë.
6.125. Â ñòåíàõ èçîëÿöèîííûõ ïàëàò, ñìåæíûõ ñ âíóòðåííèì êîðèäîðîì, ñëåäóåò ïðåäóñìàòðèâàòü ãëóõèå (íå îòêðûâàþùèåñÿ) îêíà äëÿ íàáëþäåíèÿ çà âîñïèòàííèêàìè.
6.126. Äëÿ îðãàíèçàöèè ïèòàíèÿ âîñïèòàííèêîâ, íàõîäÿùèõñÿ â èçîëÿòîðå, â ñîñòàâ åãî ïîìåùåíèé ñëåäóåò âêëþ÷àòü îáåäåííûé çàë, áóôåòíóþ è ìîå÷íóþ ïîñóäû. Îáîðóäîâàíèå áóôåòíîé ðàññ÷èòàíî íà ïîäîãðåâ ãîòîâîé ïèùè.
6.127. Âõîä â ñàíèòàðíûå óçëû â èçîëÿòîðå ñëåäóåò ïðîåêòèðîâàòü èç âíóòðåííåãî êîðèäîðà, îáîñîáëåííî îò ïàëàò (äëÿ âîçìîæíîãî íàáëþäåíèÿ çà âîñïèòàííèêàìè). Ðåêîìåíäóåìîå îáîðóäîâàíèå ñàíèòàðíîãî óçëà: óíèòàç, óìûâàëüíèê, áèäå; òóàëåòíîé: óíèòàç, óìûâàëüíèê, âàííà.
Òàáëèöà 6.14.
Ðåêîìåíäóåìûå ñîñòàâ è ïëîùàäè ïîìåùåíèé ìåäèöèíñêîãî èçîëÿòîðà.
|
Íàèìåíîâàíèå ïîìåùåíèé |
Ïëîùàäü ïîìåùåíèé, ì2 |
Ïðèìå÷àíèÿ |
|
|
1 |
2 |
3 |
4 |
|
1. |
Èçîëÿöèîííàÿ ïàëàòà íà 1 ìåñòî |
6 |
Ïðèëîæåíèå, Ðèñ. Ï.1 |
|
2. |
Èçîëÿöèîííàÿ ïàëàòà íà 3 ìåñòà |
14 |
Ïðèëîæåíèå, Ðèñ. Ï.12 |
|
3. |
Ñàíèòàðíûé óçåë äëÿ âîñïèòàííèêîâ |
3 |
|
|
4. |
Òóàëåòíàÿ äëÿ âîñïèòàííèêîâ |
4 |
|
|
5. |
Ïðîöåäóðíàÿ |
8 |
|
|
6. |
Êàáèíåò âðà÷à, ìåäèöèíñêîé ñåñòðû |
16 |
|
|
7. |
Êîìíàòà ïåðñîíàëà ñ ðàçäåâàëüíîé è ñàíóçëîì |
10 + 4 + 3 |
Ñîñòàâ îáîðóäîâàíèÿ ñàíóçëà: äóø, óíèòàç, óìûâàëüíèê |
|
8. |
Ñòîëîâàÿ |
20 |
|
|
9. |
Áóôåòíàÿ ñ ìîå÷íîé ïîñóäû |
12 |
|
|
10. |
Êëàäîâàÿ ñî øêàôàìè äëÿ ÷èñòîãî è ãðÿçíîãî áåëüÿ |
6 |
|
|
11. |
Êîìíàòà õðàíåíèÿ óáîðî÷íîãî èíâåíòàðÿ |
4 |
|
Ïîìåùåíèÿ ïèòàíèÿ.
6.128. Ïèòàíèå äëÿ âîñïèòàííèêîâ ÑÐÖ îðãàíèçóåòñÿ â äâå ñìåíû â îáùåé ñòîëîâîé:
- ïåðâàÿ ñìåíà - äëÿ ïðîæèâàþùèõ âîñïèòàííèêîâ;
- âòîðàÿ ñìåíà - äëÿ âîñïèòàííèêîâ ãðóïï äíåâíîãî ïðåáûâàíèÿ.
6.129. Ïëîùàäü îáåäåííîãî çàëà ïðèíèìàåòñÿ èç ðàñ÷åòà 1,2 ì2 íà 1 ïîñàäî÷íîå ìåñòî (îäíîâðåìåííàÿ çàãðóçêà îáåäåííîãî çàëà - 50 ÷åë.); ïðè çàëå ïðåäóñìàòðèâàåòñÿ óìûâàëüíàÿ èç ðàñ÷åòà 3 ì2 (1 óìûâàëüíèê) íà êàæäûå 18 - 20 ìåñò.
6.130. Ïëîùàäè è îáîðóäîâàíèå ïðîèçâîäñòâåííûõ ïîìåùåíèé êóõíè ñëåäóåò ðàññ÷èòûâàòü íà ðàáîòó íà ñûðüå. Êðîìå ïèòàíèÿ âîñïèòàííèêîâ, ïîìåùåíèÿ êóõíè äîëæíû îáåñïå÷èâàòü ïèòàíèå ïåðñîíàëà.
6.131. Â ïðîèçâîäñòâåííûå ïîìåùåíèÿ ñòîëîâîé äîëæåí ïðåäóñìàòðèâàòüñÿ îòäåëüíûé âõîä.
6.132. Äëÿ ïèòàíèÿ ïåðñîíàëà ïðåäóñìàòðèâàåòñÿ îáåäåííûé çàë ñàìîîáñëóæèâàíèÿ (èëè áóôåò) èç ðàñ÷åòà 1,0 ì2 íà 1 ïîñàäî÷íîå ìåñòî. Åãî ñëåäóåò ðàñïîëàãàòü â ñîñòàâå ïîìåùåíèé ïèùåáëîêà. Êîëè÷åñòâî ìåñò îïðåäåëÿåòñÿ çàäàíèåì íà ïðîåêòèðîâàíèå, èñõîäÿ èç êîëè÷åñòâà ïèòàþùèõñÿ â ó÷ðåæäåíèè, ïðîäîëæèòåëüíîñòè îáåäåííîãî âðåìåíè è êîëè÷åñòâà ñìåí. Ïðè çàëå ïðåäóñìàòðèâàåòñÿ ïîäñîáíîå ïîìåùåíèå, ïðåäíàçíà÷åííîå äëÿ ðàçäà÷è ïèùè, õðàíåíèÿ è ìîéêè ïîñóäû ïëîùàäüþ 8 ì2.
6.133. Äëÿ îáñëóæèâàíèÿ êàðàíòèííîãî îòäåëåíèÿ è ìåäèöèíñêîãî èçîëÿòîðà ïðè ïîìåùåíèÿõ êóõíè ñëåäóåò ïðåäóñìàòðèâàòü ðàçäàòî÷íóþ, êîòîðàÿ èìååò óäîáíûé äîñòóï ê âíóòðåííèì êîììóíèêàöèîííûì ñâÿçÿì (êîðèäîðàì, ëåñòíèöàì).
6.134. Äëÿ âîñïèòàííèêîâ ÑÐÖ ñ ðàçëè÷íûìè, â ò.÷. õðîíè÷åñêèìè, çàáîëåâàíèÿìè äîëæíî îáåñïå÷èâàòüñÿ äèåòè÷åñêîå ïèòàíèå, äëÿ ÷åãî â ñîñòàâ ïðîèçâîäñòâåííûõ ïîìåùåíèé êóõíè ñëåäóåò âêëþ÷àòü êàáèíåò äèåòñåñòðû.
6.135. Ðåêîìåíäóåìûå ñîñòàâ è ïëîùàäè ïðîèçâîäñòâåííûõ ïîìåùåíèé êóõíè ïðèâåäåíû â òàáë. 6.15.
Òàáëèöà 6.15.
Ðåêîìåíäóåìûå ñîñòàâ è ïëîùàäè ïðîèçâîäñòâåííûõ ïîìåùåíèé êóõíè
|
Íàèìåíîâàíèå ïîìåùåíèé |
Ïëîùàäü ïîìåùåíèé, ì2 |
Ïðèìå÷àíèÿ |
|
|
1 |
2 |
3 |
4 |
|
1. |
|
35 |
|
|
2. |
|
||
|
3. |
Ðûáíûé öåõ |
9 |
|
|
4. |
Ìÿñíîé öåõ |
|
|
|
5. |
Õëåáîðåçêà, õðàíåíèå õëåáà |
4 |
|
|
6. |
Öåõ ìó÷íûõ èçäåëèé |
6 |
|
|
7. |
Ðàçäàòî÷íàÿ |
16 |
|
|
8. |
Ñåðâèçíàÿ |
6 |
|
|
9. |
Ìîå÷íàÿ êóõîííîé ïîñóäû |
10 |
|
|
10. |
Ìîå÷íàÿ ñòîëîâîé ïîñóäû |
14 |
|
|
11. |
Îõëàæäàåìàÿ êàìåðà äëÿ õðàíåíèÿ: |
|
|
|
|
- ìîëî÷íûõ ïðîäóêòîâ |
6 |
|
|
|
- ðûáû, ìÿñà |
6 |
|
|
|
- ÿèö |
6 |
|
|
|
- ïèùåâûõ îòõîäîâ |
4 |
|
|
12. |
Êëàäîâàÿ ñóõèõ ïðîäóêòîâ |
6 |
|
|
13. |
Êëàäîâàÿ îâîùåé |
12 |
|
|
14. |
Êëàäîâàÿ ñóòî÷íîãî çàïàñà |
8 |
|
|
15. |
Ïîìåùåíèå ïåðâè÷íîé îáðàáîòêè îâîùåé |
6 |
|
|
16. |
Çàãðóçî÷íàÿ, êëàäîâàÿ òàðû |
8 |
|
|
17. |
Êàìåðà óòèëèçàöèè îòõîäîâ ñ òåõíè÷åñêèì ñëèâîì |
4 |
|
|
18. |
Êîìíàòà çàâåäóþùåãî ïðîèçâîäñòâîì |
8 |
|
|
19. |
Êàáèíåò äèåòñåñòðû |
8 |
|
|
20. |
Áåëüåâàÿ, ãàðäåðîáíàÿ ïåðñîíàëà, äóøåâàÿ, óáîðíàÿ |
14 |
|
|
21. |
Êîìíàòà õðàíåíèÿ ïðåäìåòîâ óáîðêè |
4 |
|
Àäìèíèñòðàòèâíî-õîçÿéñòâåííûå ïîìåùåíèÿ.
6.136. Ðåêîìåíäóåìûé ñîñòàâ è ïëîùàäè àäìèíèñòðàòèâíî-õîçÿéñòâåííûõ ïîìåùåíèé ïðèâåäåíû â òàáëèöå 6.16.
6.137. Ïðà÷å÷íóþ, êëàäîâóþ ñåçîííîé îäåæäû è èíâåíòàðíûå ðåêîìåíäóåòñÿ ðàñïîëàãàòü â ïîäâàëüíîì ïîìåùåíèè.
Òàáëèöà 6.16.
Ðåêîìåíäóåìûå ñîñòàâ è ïëîùàäè ïîìåùåíèé àäìèíèñòðàòèâíî-õîçÿéñòâåííîãî îáñëóæèâàíèÿ.
|
Íàèìåíîâàíèå ïîìåùåíèé. |
Ïëîùàäü ïîìåùåíèé, ì2 |
Ïðèìå÷àíèÿ |
|
|
1 |
2 |
3 |
4 |
|
1. |
Êàáèíåò äèðåêòîðà |
18 |
|
|
2. |
Ïðèåìíàÿ |
10 |
Ñìåæíî ñ êàáèíåòîì äèðåêòîðà |
|
3. |
Êàíöåëÿðèÿ |
12 |
|
|
4. |
Êàáèíåò çàìåñòèòåëÿ äèðåêòîðà ïî õîçÿéñòâåííîé ÷àñòè |
8 |
|
|
5. |
Ïîìåùåíèå äåæóðíîãî ïåðñîíàëà òåõíè÷åñêîãî îáñëóæèâàíèÿ |
14 |
|
|
6. |
Áóõãàëòåðèÿ ñ êàññîé |
12 + 4 |
|
|
7. |
Êîìíàòà ñåñòðû-õîçÿéêè |
8 |
|
|
8. |
Êîìíàòà ïñèõîëîãè÷åñêîé ðàçãðóçêè ïåðñîíàëà |
18 |
|
|
9. |
Êîìíàòà îòäûõà ïåðñîíàëà |
36 |
|
|
10. |
Êîìïüþòåðíûé öåíòð ñ àðõèâîì |
20 + 10 |
|
|
11. |
Ïîìåùåíèå ïîæàðíîãî ïîñòà |
6 |
|
|
12. |
Êëàäîâàÿ ÷èñòîãî áåëüÿ |
4 |
Ðàñïîëàãàþòñÿ ðÿäîì ñ ïðà÷å÷íîé |
|
13. |
Êëàäîâàÿ ãðÿçíîãî áåëüÿ |
8 |
|
|
14. |
Ïðà÷å÷íàÿ |
26 |
|
|
15. |
Êëàäîâàÿ ñåçîííîé îäåæäû è îáóâè |
22 |
Îáîðóäóåòñÿ âûòÿæêîé è ïðèíóäèòåëüíîé âåíòèëÿöèåé |
|
16. |
Èíâåíòàðíûå |
20´2 |
|
|
17. |
Ñàíèòàðíûå óçëû äëÿ ìóæ÷èí è æåíùèí ñ óìûâàëüíèêàìè â øëþçå |
3´2 |
|
|
18. |
Êàáèíû ëè÷íîé ãèãèåíû äëÿ æåíùèí |
2 |
Ðàçìåñòèòü ïðè ñàíèòàðíîì óçëå äëÿ æåíùèí |
|
19. |
Êîìíàòà õðàíåíèÿ óáîðî÷íîãî èíâåíòàðÿ |
4 |
|
ÝÊÑÏËÈÊÀÖÈß ÎÁÎÐÓÄÎÂÀÍÈß
1. Êðîâàòü
2. Ñòóë
3. Ìåñòî äëÿ èíâàëèäíîé êîëÿñêè
Ðèñ. Ï.1. Ñïàëüíàÿ íà 5 (à) è 1 (á) ìåñòî.
ÝÊÑÏËÈÊÀÖÈß ÎÁÎÐÓÄÎÂÀÍÈß
1. Ó÷åíè÷åñêèé ñòîë 4. Êðåñëî 7. Êëàññíàÿ äîñêà
2. Ñòóë 5. Æóðíàëüíûé ñòîë 8. Óìûâàëüíèê ñ âåøàëêîé äëÿ ïîëîòåíöà
3. Ñòîë âîñïèòàòåëÿ 6. Òåëåâèçîð ñ âèäåîìàãíèòîôîíîì 9. Ìåñòî äëÿ èíâàëèäíîé êîëÿñêè
Ðèñ. Ï.2. Êîìíàòà ïðèãîòîâëåíèÿ óðîêîâ - èãðîâàÿ (òèõîãî îòäûõà).
Ðàññòàíîâêà îáîðóäîâàíèÿ: à) - äëÿ ïðèãîòîâëåíèÿ óðîêîâ; á) - äëÿ èãð èëè îòäûõà.
ÝÊÑÏËÈÊÀÖÈß ÎÁÎÐÓÄÎÂÀÍÈß
à)- êàáèíåò êîìïüþòåðíîé äèàãíîñòèêè á) - êàáèíåò ñèñòåìíîé äèàãíîñòèêè
1. Ðàáî÷èé ñòîë ñïåöèàëèñòà ñ êîìïüþòåðîì 1. Ðàáî÷èé ñòîë
2. Ðàáî÷èé ñòóë 2. Ñòóë äëÿ ñïåöèàëèñòà
3. Ñòóë äëÿ ïàöèåíòà 3. Ñòóë äëÿ ïàöèåíòà
4. Ñòåëëàæ 4. Ñòåëëàæ
5. Ðàêîâèíà ñ âåøàëêîé äëÿ ïîëîòåíöà 5. Ðàêîâèíà ñ âåøàëêîé äëÿ ïîëîòåíöà
6. Ìåñòî äëÿ èíâàëèäíîé êîëÿñêè 6. Ìåñòî äëÿ èíâàëèäíîé êîëÿñêè
Ðèñ. Ï.3. Êàáèíåòû ñïåöèàëèñòîâ.
Ðàññòàíîâêà îáîðóäîâàíèÿ: à) - êîìïüþòåðíîé äèàãíîñòèêè, á) - ñèñòåìíîé äèàãíîñòèêè.
ÝÊÑÏËÈÊÀÖÈß ÎÁÎÐÓÄÎÂÀÍÈß
1. Ñòîë ñïåöèàëèñòà
2. Ñòóë
3. Êîìïüþòåðíûé ñòîë ñïåöèàëèñòà ñ êîìïüþòåðîì
4. Øêàô - ñòåëëàæ
5. Æóðíàëüíûé ñòîë
6. Ìÿãêàÿ ìåáåëü
7. Óìûâàëüíèê
8. Âåøàëêà äëÿ ïîëîòåíöà
9. Ìåñòî äëÿ èíâàëèäíîé êîëÿñêè
Ðèñ. Ï.4. Êàáèíåò ñïåöèàëèñòà ïñèõîëîãà, þðèñòà ïî âîññòàíîâèòåëüíîìó ïðàâîñóäèþ.
ÝÊÑÏËÈÊÀÖÈß ÎÁÎÐÓÄÎÂÀÍÈß
1. Îáåäåííûé ñòîë
2. Ñòóë
3. Øêàô äëÿ ïîñóäû
4. Õîëîäèëüíèê
5. Ðàáî÷èé ñòîë ñ ìèêðîâîëíîâîé ïå÷üþ è ýëåêòðî÷àéíèêîì
6. Ðàêîâèíà
7. Æóðíàëüíûé ñòîëèê
8. Ìÿãêàÿ ìåáåëü
9. Òåëåâèçîð
10. Ìåñòî äëÿ èíâàëèäíîé êîëÿñêè
Ðèñ. Ï.5. Ïîìåùåíèå ðîäèòåëüñêîãî êëóáà.
ÝÊÑÏËÈÊÀÖÈß ÎÁÎÐÓÄÎÂÀÍÈß
1. Êðîâàòü
2. Äåòñêèé ñòóë
3. Ñòóë âîñïèòàòåëÿ
Ðèñ. Ï.6. Ñïàëüíàÿ äëÿ äîøêîëüíèêîâ íà 8 ìåñò.
ÝÊÑÏËÈÊÀÖÈß ÎÁÎÐÓÄÎÂÀÍÈß
1. Êðîâàòü
2. Äåòñêèé ñòóë
3. Ñòóë âîñïèòàòåëÿ
4. Ìåñòî äëÿ èíâàëèäíîé êîëÿñêè
Ðèñ. Ï.7. Ñïàëüíàÿ äëÿ äîøêîëüíèêîâ ñ îãðàíè÷åííûìè âîçìîæíîñòÿìè íà 8 ìåñò.
ÝÊÑÏËÈÊÀÖÈß ÎÁÎÐÓÄÎÂÀÍÈß
1. Êðîâàòü
2. Äåòñêèé ñòóë
3. Ñòóë âîñïèòàòåëÿ
Ðèñ. Ï.8. Ñïàëüíàÿ äëÿ äîøêîëüíèêîâ íà 4 ìåñòà.
ÝÊÑÏËÈÊÀÖÈß ÎÁÎÐÓÄÎÂÀÍÈß
1. Êðîâàòü
2. Äåòñêèé ñòóë
3. Ñòóë âîñïèòàòåëÿ
4. Ìåñòî äëÿ èíâàëèäíîé êîëÿñêè
Ðèñ. Ï.9. Ñïàëüíàÿ äëÿ äîøêîëüíèêîâ ñ îãðàíè÷åííûìè âîçìîæíîñòÿìè íà 4 ìåñòà.
ÝÊÑÏËÈÊÀÖÈß ÎÁÎÐÓÄÎÂÀÍÈß
1. Äåòñêèé ñòîë 4. Ñòîë âîñïèòàòåëÿ 8. Ñòåëëàæ
2. Äåòñêèé ñòîë äëÿ 5. Ñòóë âîñïèòàòåëÿ 9. Ó÷åíè÷åñêàÿ äîñêà
Èíâàëèäà - êîëÿñî÷íèêà 6. Òóìáà - ñòåëëàæ 10. Ìåñòî äëÿ èíâàëèäíîé êîëÿñêè
3. Äåòñêèé ñòóë 7. Òåëåâèçîð ñ âèäåîìàãíèòîôîíîì 11. Ðàêîâèíà ñ âåøàëêîé äëÿ ïîëîòåíöà
Ðèñ. Ï.10. Ãðóïïîâàÿ íà 8 ÷åëîâåê äëÿ äîøêîëüíèêîâ.
Âàðèàíòû ðàññòàíîâêè îáîðóäîâàíèÿ: à) - äëÿ èãð; á) - äëÿ ïðîâåäåíèÿ ó÷åáíûõ çàíÿòèé.

ÝÊÑÏËÈÊÀÖÈß ÎÁÎÐÓÄÎÂÀÍÈß
1. Äåòñêèé óíèòàç
2. Äóøåâîé ïîääîí
3. Ïîâîðîòíîå êðåñëî
4. Áàíêåòêà
5. Äåòñêèé óìûâàëüíèê
6. Íîãîìîéêà
7. Âåøàëêà äëÿ ïîëîòåíöà
8. Ïîääîí äëÿ ìîéêè ãîðøêîâ
9. Øêàô äëÿ õðàíåíèÿ ãîðøêîâ è ìîþùèõ ñðåäñòâ
10. Ìåñòî äëÿ èíâàëèäíîé êîëÿñêè
Ðèñ. Ï.11. Ñàíèòàðíûé óçåë äëÿ äîøêîëüíèêîâ.
ÝÊÑÏËÈÊÀÖÈß ÎÁÎÐÓÄÎÂÀÍÈß
1. Êðîâàòü 2. Ñòóë
Ðèñ. Ï.12. Ñïàëüíàÿ íà 3 ìåñòà äëÿ ïîäðîñòêîâ, îêàçàâøèõñÿ â òðóäíîé æèçíåííîé ñèòóàöèè.
Âàðèàíòû ïëàíèðîâêè: à è á.
ÝÊÑÏËÈÊÀÖÈß ÎÁÎÐÓÄÎÂÀÍÈß
1. Êðîâàòü 2. Ñòóë 3. Ìåñòî äëÿ èíâàëèäíîé êîëÿñêè
Ðèñ. Ï.13. Ñïàëüíàÿ íà 3 ìåñòà äëÿ ïîäðîñòêîâ ñ îãðàíè÷åííûìè âîçìîæíîñòÿìè è îêàçàâøèõñÿ â òðóäíîé æèçíåííîé ñèòóàöèè.
Âàðèàíòû ïëàíèðîâêè: à è á.
ÝÊÑÏËÈÊÀÖÈß ÎÁÎÐÓÄÎÂÀÍÈß
1. Ñòîë ó÷åíè÷åñêèé 5. Óìûâàëüíèê
2. Ñòóë 6. Âåøàëêà äëÿ ïîëîòåíöà
3. Ñòîë ó÷èòåëÿ 7. Ñòîë ó÷åíè÷åñêèé äëÿ èíâàëèäà
4. Êëàññíàÿ äîñêà 8. Ìåñòî äëÿ èíâàëèäíîé êîëÿñêè
Ðèñ. Ï.14. Êîìíàòà ïðèãîòîâëåíèÿ óðîêîâ: à - äëÿ äåòåé îêàçàâøèõñÿ â òÿæåëîé æèçíåííîé ñèòóàöèè, á - äëÿ íåñîâåðøåííîëåòíèõ ñ îãðàíè÷åííûìè âîçìîæíîñòÿìè.
ÝÊÑÏËÈÊÀÖÈß ÎÁÎÐÓÄÎÂÀÍÈß
1. Èãðîâîé ñòîë 4. Ìÿãêàÿ ìåáåëü
1. Ñòóë 5. Æóðíàëüíûé ñòîë
3. Êîìáèíèðîâàííûé øêàô 6. Òåëåâèçîð
7. Ìåñòî äëÿ èíâàëèäíîé êîëÿñêè
Ðèñ. Ï.15. Ãîñòèíàÿ.
Ïðèìåðû ðàññòàíîâêè îáîðóäîâàíèÿ: à è á.
ÝÊÑÏËÈÊÀÖÈß ÎÁÎÐÓÄÎÂÀÍÈß
I - ñïàëüíàÿ íà 1 ìåñòî
1. Êðîâàòü
2. Ñòóë
II - ñïàëüíàÿ íà 3 ìåñòà
1. Êðîâàòü
2. Ñòóë
Ðèñ. Ï.16. Ñïàëüíûå êîìíàòû íà 1 (à) è íà 3 (á) ìåñòà äëÿ ïîäðîñòêîâ ñ àñîöèàëüíûì ïîâåäåíèåì.
ÝÊÑÏËÈÊÀÖÈß ÎÁÎÐÓÄÎÂÀÍÈß
1. Êðîâàòü 4. Ðàáî÷èé ñòîë
2. Ïðèêðîâàòíàÿ òóìáî÷êà 5. Ñòóë
3. Øêàô-êóïå 6. Ìåñòî äëÿ èíâàëèäíîé êîëÿñêè
Ðèñ. Ï.17. Æèëàÿ êîìíàòà íà 3 ìåñòà ñîöèàëüíîé ãîñòèíèöû.
Ïðèìåðû ïëàíèðîâêè: à è á.
ÝÊÑÏËÈÊÀÖÈß ÎÁÎÐÓÄÎÂÀÍÈß
1. Ñòîë - ñòåëëàæ ñ ìóçûêàëüíûì öåíòðîì
2. Ìÿãêàÿ ìåáåëü
3. Òåëåâèçîð ñ âèäåîìàãíèòîôîíîì
4. Æóðíàëüíûé ñòîë
5. Óìûâàëüíèê
6. Âåøàëêà äëÿ ïîëîòåíöà
7. Êîâåð (ìÿãêîå ïîêðûòèå)
8. Ìåñòî äëÿ èíâàëèäíîé êîëÿñêè
Ðèñ. Ï.18. Ãîñòèíàÿ ñîöèàëüíîé ãîñòèíèöû.
ÝÊÑÏËÈÊÀÖÈß ÎÁÎÐÓÄÎÂÀÍÈß
1. Ñòîë-øêàô êóõîííûé
2. Õîëîäèëüíèê
3. Ìîéêà
4. Ïëèòà
5. Íàâåñíûå ïîëêè
6. Ñòóë
7. Îáåäåííûé ñòîë
8. Ñêëàäíîé îáåäåííûé ñòîë
9. Ìåñòî äëÿ èíâàëèäíîé êîëÿñêè
Ðèñ. Ï.19. Êóõíÿ-ñòîëîâàÿ â ñîöèàëüíîé ãîñòèíèöå.
ÝÊÑÏËÈÊÀÖÈß ÎÁÎÐÓÄÎÂÀÍÈß
1. Êðåñëî ñòîìàòîëîãè÷åñêîå
2. Ñòîëèê èíñòðóìåíòàëüíûé
3. Óñòàíîâêà ñòîìàòîëîãè÷åñêàÿ óíèâåðñàëüíàÿ
4. Âèíòîâîé òàáóðåò
5. Ïëåâàòåëüíèöà
6. Ñâåòèëüíèê
7. Øêàô ìåäèöèíñêèé
8. Óìûâàëüíèê
9. Áà÷îê äëÿ ìóñîðà
10. Ñòîï âðà÷à
11. Ñòóë
12. Ìåñòî äëÿ èíâàëèäíîé êîëÿñêè
Ðèñ. Ï.20. Êàáèíåò ñòîìàòîëîãà.
ÝÊÑÏËÈÊÀÖÈß ÎÁÎÐÓÄÎÂÀÍÈß
|
I. ÇÀË |
II. ÊËÀÄÎÂÀß |
III. ÐÀÇÄÅÂÀËÊÀ |
|
|
1. Ñòîë ìåòîäèñòà 2. Ñòóë ìåòîäèñòà 3. Øâåäñêàÿ ñòåíêà |
4. Ñêàìüÿ 5. Çåðêàëî 6. Ìàòû äëÿ çàíÿòèé |
7. Êîìáèíèðîâàííûé øêàô 8. Ìàíåæ äëÿ ñêëàäèðîâàíèÿ ìÿ÷åé |
9. Ñêàìüÿ äëÿ ïåðåîäåâàíèÿ 10. Øêàô ìåòîäèñòà 11. Êðþ÷êè äëÿ îäåæäû 12. Óìûâàëüíèê 13. Âåøàëêà äëÿ ïîëîòåíöà |
Ðèñ. Ï.21. Êàáèíåò ãðóïïîâûõ çàíÿòèé ËÔÊ ñ êëàäîâîé è ðàçäåâàëêîé
ÝÊÑÏËÈÊÀÖÈß ÎÁÎÐÓÄÎÂÀÍÈß
|
I. ÇÀË |
II. ÊËÀÄÎÂÀß |
III. ÐÀÇÄÅÂÀËÊÀ |
|
|
1. Ñòîë ìåòîäèñòà 2. Ñòóë ìåòîäèñòà 3. Øâåäñêàÿ ñòåíêà 4. Ñêàìüÿ 5. Áàòóò |
6. Äîðîæêà äëÿ ìåõàíè÷åñêîé ðåôëåêñîòåðàïèè 7. Ñóõîé áàññåéí 8. Óìûâàëüíèê ñ âåøàëêîé äëÿ ïîëîòåíöà 9. Ìÿ÷ 10. Ìàññàæíûé ìÿ÷ |
11. Êîìáèíèðîâàííûé øêàô 12. Ìàíåæ äëÿ õðàíåíèÿ ìÿ÷åé |
13. Ñêàìüÿ äëÿ ïåðåîäåâàíèÿ 14. Øêàô ìåòîäèñòà 15. Ìåñòî äëÿ èíâàëèäíîé êîëÿñêè |
Ðèñ. Ï.22. Çàë ðàçâèòèÿ ìîòîðèêè
ÝÊÑÏËÈÊÀÖÈß ÎÁÎÐÓÄÎÂÀÍÈß
1. Ñòîë
2. Ñòóë
3. Ñòîë ñïåöèàëèñòà
4. Êðåñëî
5. Øêàô-ñòåëëàæ
6. Óìûâàëüíèê
7. Âåøàëêà äëÿ ïîëîòåíöà
8. Ìåñòî äëÿ èíâàëèäíîé êîëÿñêè
Ðèñ. Ï.23. Êàáèíåò ãðóïïîâîé ïñèõîòåðàïèè.
ÝÊÑÏËÈÊÀÖÈß ÎÁÎÐÓÄÎÂÀÍÈß
1. Âèáðîêóøåòêà
2. Âèáðîêðåñëî
3. Ñòîëèê äëÿ ñïåöèàëüíîé àïïàðàòóðû
4. Óñòàíîâêà ñ âîäÿíûì êàñêàäîì
5. Ñòóë ñïåöèàëèñòà
6. Øòîðà
7. Ìåñòî äëÿ èíâàëèäíîé êîëÿñêè
Ðèñ. Ï.24. Êàáèíåò ðåëàêñàöèè.
ÝÊÑÏËÈÊÀÖÈß ÎÁÎÐÓÄÎÂÀÍÈß
1 - ìàñòåðñêàÿ
1. Ñòîë ðàáî÷èé
2. Ñòîë ìàñòåðà
3. Ñòóë
4. Òàáóðåò
5. Äîñêà ìåëîâàÿ íàñòåííàÿ
6. Ýêðàí ñâåðòûâàþùèéñÿ
7. Ñòåíä íàñòåííûé
8. Ðàêîâèíà
9. Øêàô äëÿ ñïåöîäåæäû
10. Ñòåëëàæ
11. Ïîäñòàâêà äëÿ ïðîåêöèîííîé àïïàðàòóðû
12. Ñòåíä äëÿ èíñòðóìåíòîâ
13. Âåðñòàê ñëåñàðíûé
14. Âåðñòàê ñòîëÿðíûé
15. Ìåñòî äëÿ èíâàëèäíîé êîëÿñêè
11 - êëàäîâàÿ
16. Ñòåëëàæ
17. Ñòàíîê ôóãîâàëüíî-ðàñïèëîâî÷íûé ïåðåäâèæíîé
18. Øêàô âûòÿæíîé
19. Ýëåêòðîòî÷èëî
20. Ñòàíîê íàñòîëüíûé ñâåðëèëüíûé
21. Ñòîë - ïîäñòàâêà ïîä îáîðóäîâàíèå
22. Ýëåêòðîêèïÿòèëüíèê
23. Øêàô äëÿ ïðèáîðîâ è èíâåíòàðÿ
24. Ýëåêòðîêëååâàðêà
Ðèñ. Ï.25. Ìàñòåðñêàÿ òåõíè÷åñêîãî òâîð÷åñòâà ñ êëàäîâîé.
ÝÊÑÏËÈÊÀÖÈß ÎÁÎÐÓÄÎÂÀÍÈß
1 - ìàñòåðñêàÿ, 11 - êëàäîâàÿ.
|
1. Áàññåéí äëÿ ìîäåëåé 2. Ñòîë ðàáî÷èé 3. Ñòîë ó÷èòåëÿ 4. Ñòóë (òàáóðåòêà) 5. Äîñêà êëàññíàÿ 6. Øêàô çàñòåêëåííûé |
7. Øêàô äëÿ îäåæäû 8. Ñåêöèÿ ñòåëëàæåé 9. ßùèê äëÿ ìóñîðà 10. Âåðñòàê ñòîëÿðíûé 11. Ýëåêòðîòî÷èëî 12. Âåðñòàê ñëåñàðíûé ñ òèñêàìè |
13. Ñòàíîê ñâåðëèëüíûé 14. Ñòàíîê ôðåçåðíûé 15. Ñòàíîê òîêàðíûé 16. Êîìáèíèðîâàííûé íàñòîëüíûé òîêàðíî-ôðåçåðíûé ñòàíîê |
17. Êóëüìàí 18. Ìåñòíûé îòñîñ 19. Øòîðû çàòåìíåíèÿ 20. Ìåñòî äëÿ èíâàëèäíîé êîëÿñêè |
Ðèñ. Ï.26. Ìàñòåðñêàÿ ñóäîìîäåëèðîâàíèÿ ñ êëàäîâîé.
ÝÊÑÏËÈÊÀÖÈß ÎÁÎÐÓÄÎÂÀÍÈß
1. Âåðñòàê ðóêîâîäèòåëÿ
2. Òàáóðåò
3. Âåðñòàê ñòîëÿðíûé
4. Ñòàíîê ñâåðëèëüíûé íàñòîëüíûé
5. Òî÷èëî íàæäà÷íîå
6. Ñòàíîê ôóãîâàëüíî-ðàñïèëîâî÷íûé
7. Êëååâàðêà
8. Óðíà äëÿ ìóñîðà
9. Âñòðîåííûé øêàô äëÿ ñïåöîäåæäû
10. Øêàô-ñòåëëàæ äëÿ èíñòðóìåíòîâ è ìàòåðèàëîâ
11. Ðàêîâèíà
12. Ìåñòî äëÿ èíâàëèäíîé êîëÿñêè
Ðèñ. Ï.27. Ìàñòåðñêàÿ ïî îáðàáîòêå äåðåâà.
ÝÊÑÏËÈÊÀÖÈß ÎÁÎÐÓÄÎÂÀÍÈß
1. Øêàô äëÿ êíèã è ïîñîáèé
2. Ìóôåëüíàÿ ïå÷ü
3. Äîñêà êëàññíàÿ
4. Âåðñòàê ðóêîâîäèòåëÿ
5. Òàáóðåò
6. Âåðñòàê ñëåñàðíûé
7. Òî÷èëî íàæäà÷íîå
8. Íàêîâàëüíÿ
9. Ñòàíîê òîêàðíûé
10. Ñòàíîê ñâåðëèëüíûé
11. Âñòðîåííûé øêàô äëÿ ñïåöîäåæäû
12. Øêàô - ñòåëëàæ äëÿ èíñòðóìåíòîâ è ìàòåðèàëîâ
13. Óðíà äëÿ ìóñîðà
14. Ðàêîâèíà
15. Ìåñòî äëÿ èíâàëèäíîé êîëÿñêè
Ðèñ. Ï.28. Ìàñòåðñêàÿ ïî îáðàáîòêå ìåòàëëà.
ÝÊÑÏËÈÊÀÖÈß ÎÁÎÐÓÄÎÂÀÍÈß
I. ÌÀÑÒÅÐÑÊÀß
4. Øâåéíàÿ ìàøèíà 9. Óìûâàëüíèê
1. Ñòîë ó÷åíè÷åñêèé äëÿ 5 Òàáóðåò ðåãóëèðóåìûé 10. Âåøàëêà äëÿ ïîëîòåíöà
èíäèâèäóàëüíîé ðàáîòû 6. Ìîëüáåðò 11. Øêàô äëÿ ýêñïîçèöèé
2. Ñòóë 7. Ñòîë ìàñòåðà 12. Ìåñòî äëÿ èíâàëèäíîé êîëÿñêè
3. Ðàáî÷èé ñòîë 8. Ñòóë ìàñòåðà II. ÊËÀÄÎÂÀß
13. Êîìáèíèðîâàííûé øêàô
Ðèñ. Ï.29. Òåàòðàëüíî-õóäîæåñòâåííàÿ ìàñòåðñêàÿ (èçãîòîâëåíèå êîñòþìà), ñ êëàäîâîé
ÝÊÑÏËÈÊÀÖÈß ÎÁÎÐÓÄÎÂÀÍÈß
1. Ðàáî÷èé ñòîë 5. Ãîí÷àðíûé êðóã
2. Ñòîë äëÿ èíäèâèäóàëüíîé ðàáîòû 6. Ñòîë ñïåöèàëèñòà
3. Òàáóðåò 7. Ñòóë
4. Ïå÷ü äëÿ îáæèãà 8. Óìûâàëüíèê ñ âåøàëêîé äëÿ ïîëîòåíöà
9. Ìåñòî äëÿ èíâàëèäíîé êîëÿñêè
Ðèñ. Ï.30. Ìàñòåðñêàÿ ëåïêè ñ ïå÷üþ äëÿ îáæèãà, êëàäîâîé õðàíåíèÿ èíâåíòàðÿ è ãîòîâûõ èçäåëèé.
ÝÊÑÏËÈÊÀÖÈß ÎÁÎÐÓÄÎÂÀÍÈß
I. Ìàñòåðñêàÿ
1. Ñòîë ìàñòåðà
2. Ñòóë ìàñòåðà
3. Ðàáî÷èé ñòîë
4. Ñòîëû ñ îáîðóäîâàíèåì
5. Òàáóðåò ðåãóëèðóåìûé
6. Øèðìà äëÿ ïðåäñòàâëåíèé
7. Øêàô äëÿ ýêñïîçèöèé
8. Óìûâàëüíèê
9. Âåøàëêà äëÿ ïîëîòåíöà
10. Ìåñòî äëÿ èíâàëèäíîé êîëÿñêè
II. Êëàäîâàÿ
11. Øêàô êîìáèíèðîâàííûé
Ðèñ. Ï.31. Ìàñòåðñêàÿ êóêîëüíîãî òåàòðà (èçãîòîâëåíèå êóêîë) ñ êëàäîâîé
ÝÊÑÏËÈÊÀÖÈß ÎÁÎÐÓÄÎÂÀÍÈß
1. Ðàáî÷èé ñòîë ñ ïðèáîðîì äëÿ âûæèãàíèÿ
2. Òàáóðåò
3. Ñòîë ìàñòåðà
4. Ñòóë
5. Ðàáî÷èé ñòîë äëÿ ðèñîâàíèÿ
6. Ñòåëëàæ
7. Óðíà äëÿ ìóñîðà
8. Óìûâàëüíèê
9. Ìåñòî äëÿ èíâàëèäíîé êîëÿñêè
Ðèñ. Ï.32. Ìàñòåðñêàÿ ïî âûæèãàíèþ ïî äåðåâó.
ýêñïëèêàöèÿ îáîðóäîâàíèÿ
1. Ñòîë-øêàô êóõîííûé
2. Õîëîäèëüíèê
3. Ìîéêà
4. Ýëåêòðîïëèòà ñ âîçäóõîî÷èñòèòåëåì
5. Ñåðâèðîâî÷íàÿ ñòîéêà ñ ðàçäåëî÷íûì ñòîëîì
6. Óìûâàëüíèê
7. Âåøàëêà äëÿ ïîëîòåíöà
8. Îáåäåííûé ñòîë
9. Ñòóë
10. Ñòîë ðåçåðâíûé
11. Ìåñòî äëÿ èíâàëèäíîé êîëÿñêè
Ðèñ. Ï.33. Ìàñòåðñêàÿ êóëèíàðíîãî òâîð÷åñòâà
ÝÊÑÏËÈÊÀÖÈß ÎÁÎÐÓÄÎÂÀÍÈß
1. Ñòîë ðàáî÷èé
2. Ñòóë ñêëàäèðóåìûé
3. Ñòîë ïåäàãîãà
4. Äîñêà ìåëîâàÿ
5. Øâåéíàÿ ìàøèíà
6. Âÿçàëüíàÿ ìàøèíà
7. Ãëàäèëüíàÿ äîñêà
8. Ñòåëëàæ ñ îòäåëåíèåì äëÿ âûñòàâêè
9. Ìàíåêåí
10. Çåðêàëî
11. Ñòåíä
12. Óìûâàëüíèê
13. Ìåñòî äëÿ èíâàëèäíîé êîëÿñêè
Ðèñ. Ï.34. Ìàñòåðñêàÿ êðîéêè, øèòüÿ è âÿçàíèÿ.
ÝÊÑÏËÈÊÀÖÈß ÎÁÎÐÓÄÎÂÀÍÈß
1. Ìåñòà ñêëàäèðîâàíèÿ ñåêöèé ñ êðåñëàìè 2. Øèðìà
Ðèñ. Ï.35. Àêòîâûé çàë íà 80 ìåñò. Âàðèàíò ðàññòàíîâêè îáîðóäîâàíèÿ ïðè èñïîëüçîâàíèè çàëà äëÿ òàíöåâ è ìàññîâûõ èãð.
ÝÊÑÏËÈÊÀÖÈß ÎÁÎÐÓÄÎÂÀÍÈß
1. Ñòåíêà ãèìíàñòè÷åñêàÿ
2. Ùèò áàñêåòáîëüíûé îñíîâíîé
3. Ùèò áàñêåòáîëüíûé òðåíèðîâî÷íûé
4. Ñúåìíàÿ áàñêåòáîëüíàÿ ñåòêà
5. Òðåíàæåð «Ëèäåð»
6. Òðåíàæåð «Ñòåíêà çäîðîâüÿ»
7. Âîðîòà äëÿ ìèíèôóòáîëà
Ðèñ. Ï.36. Ñïîðòèâíûé çàë.
|
_________________________________________________________ |