www.DocNorma.Ru
Лучшая бесплатная электронная библиотека стандартов и нормативов. Регулярное обновление. Содержит 70000 документов.

алготрейдинг на Python и Backtrader, обучение по алготрейдингу

 

ТИПОВЫЕ ТЕХНОЛОГИЧЕСКИЕ КАРТЫ НА ПРОИЗВОДСТВО ОТДЕЛЬНЫХ ВИДОВ РАБОТ

ТИПОВАЯ
ТЕХНОЛОГИЧЕСКАЯ КАРТА
НА СПЕЦИАЛЬНЫЕ СТРОИТЕЛЬНЫЕ РАБОТЫ

6425030015

88015

 

СБОРКА И СВАРКА ТРУБ В ТРЕХТРУБНЫЕ СЕКЦИИ НА ТРУБОСВАРОЧНОЙ БАЗЕ ПРИ СТРОИТЕЛЬСТВЕ МАГИСТРАЛЬНЫХ ТРУБОПРОВОДОВ ДИАМЕТР 325 мм

 

 

МОСКВА - 1991

 

 

 

РАЗРАБОТАНА

Институтом ВНИИПКтехоргнефтегазстрой

 

 

СОГЛАСОВАНО

Управление механизации и технологии строительства; Госстроя СССР

 

Заместитель директора института

Г.А. Потемкин

 

Письмо от 31.07.1990г. № 12-238

Заведующий отделом

Л.М. Пальчиков

 

Введена в действие с 01.03.1991 г.

Главный специалист

В.И. Климов.

 

 

I. ОБЛАСТЬ ПРИМЕНЕНИЯ

1.1. Типовая технологическая карта разработана на сборку и сварку 1 км труб в трехтрубные секции на трубосварочной базе при строительстве магистральных трубопроводов диаметром 325 мм.

1.2. При разработке типовой технологической карты приняты исходные данные:

сборка и сварка труб в трехтрубные секции осуществляется на трубосварочной базе БНС-81;

трубы бесшовные и электросварные из углеродистой стали и бесшовные повышенной прочности из углеродистой и низколегированной стали, выбранные в соответствии о требованиями главы СНиП 2.05.06-85 "Магистральные трубопроводы", предусмотренные проектом, неизолированные;

толщина стенки                                                                          - 10 мм;

длина труб                                                                                  - 11,5 м;

количество труб в одной секции                                              - 3;

количество трехтрубных секций в одном километре             - 29.

1.3. В состав работ, рассматриваемых картой, входят:

обработка кромок и концов труб шлифовальной машинкой;

оборка и ручная электродуговая сварка первым слоем на линии оборки ЛСТ-81;

автоматическая сварка под слоем флюса одной сварочной головкой на сварочной установке ПАУ-502.

1.4. Работы выполняются в летний период в условиях равнинной и слабопересеченной местности и ведутся в одну дневную смену продолжительностью 8 ч.

2. ОРГАНИЗАЦИЯ И ТЕХНОЛОГИЯ ВЫПОЛНЕНИЯ РАБОТ

2.1. Выполнению работ по сборке и сварке труб в трехтрубные секции на трубосварочной базе БНС-81 предшествует комплекс организационно-технических и подготовительных мероприятий;

сдача базы в соответствии с "Положением о порядке и приемке в эксплуатацию трубосварочных баз";

назначение лиц, ответственных за качественное и безопасное производство сварочно-монтажных работ (прораб, мастер, работник полевой испытательной лаборатории-ПИЛ);

подготовка для трубоукладчика подъездных путей к приемному стеллажу, стеллажу-накопителю секций труб и стенду контроля сварных стыков;

размещение в зоне производства работ трубоукладчика;

проверка грузозахватных приспособлений для подъёма и перемещения труб и секций труб;

установка в зоне производства работ вагончика для обогрева людей, хранения инструмента и инвентаря;

обеспечение рабочих мест бригады средствами первой медицинской помощи, питьевой водой, противопожарным оборудованием;

инструктаж членов бригады по технике безопасности и производственной санитарии.

2.2. До начала основных работ по оборке и сварке необходимо: очистить внутреннюю поверхность труб от возможных загрязнений; провести визуальный осмотр поверхностей труб и при необходимости отремонтировать;

устранить шлифованием царапины, риски и задиры на трубах глубиной свыше 0,2 мм, но не более 5 % от толщины стенки трубы, которая не должна быть выведена за пределы минусового допуска;

исправить с применением безударных разжимных устройств вмятины на концах труб глубиной до 3,5 % от диаметра трубы.

Трубы с царапинами, рисками, задирами глубиной более 5 % от толщины стенки, вмятинами глубиной, превышающей 3,5 % от диаметра трубы, или с забоинами и задирами фасок глубиной более 5 мм ремонту не подлежат; дефектные участки труб следует обрезать.

2.3. Перед сборкой и сваркой необходимо зачистить кромки труб.

Кромки труб и прилегающие к ним поверхности (внутреннюю и наружную) на ширину не менее 10 мм зачищает до металлического блеска монтажник наружных трубопроводов шлифовальной машинкой на приемном стеллаже.

У первой трубы зачищается левый торец, у второй трубы - правый, у третьей - оба торца.

2.4. Подготовленные к сборке трубы с приемного стеллажа поочередно подаются на рольганг линии ЛСТ-81.

2.4.1. Центровка и сборка стыка производится на наружном эксцентриковом центраторе ЦНЭ-27-42, состоящем из двух или трех дуг с опорами, эксцентрикового зажима, двух тяг и перекладины. Благодаря такой конструкции центратора можно ускорить сборку стыков и быстро снять центратор.

2.4.2. Численные значения зазоров в стыках при сварке электродами с основным видом покрытия диаметром 3,0-3,25 мм составляют:

при толщине стенки 8-10 мм                 - 2,5-3,5 мм;

при толщине стенки 10 мм и более      - 3,0-3,5 мм.

2.4.3. Смещение кромок электросварных труб не должно превышать 20 % нормативной толщины стенки, но не более 3 мм. Измерение величины смещения кромок допускается проводить по наружным поверхностям труб сварочным шаблоном. Для труб с нормативной толщиной стенки до 10 мм допускается смещение кромок до 40 % нормативной толщины, но не более 2 мм.

2.4.4. Сборка стыков на наружном центраторе производится двумя прихватками, располагающимися по оси друг к другу. Длина прихваток - 60-100 мм.

2.4.5. Непосредственно перед прихваткой и сваркой производится просушка кольцевыми нагревателями торцов труб и прилегающих к ним участков шириной не менее 150 мм.

Просушка торцов труб нагревом до температуры 20-50 °С обязательна:

при наличии влаги на трубах независимо от способа сварки и прочности основного металла;

при температуре окружающего воздуха ниже +5 °С в случае сварки труб с нормативным сопротивлением разрыву 539 МПа (55 кгс/мм2) и выше.

2.4.6. После снятия наружного центратора производят сварку корневого слоя.

2.4.7. Прихватка и сварка корневого слоя шва выполняется электродами с основным видом покрытия. Тип и марка электродов приведены в табл. I.

Таблица 1

Электроды

Свариваемые трубы

Тип по ГОСТ 9467-75*

Марка

диаметр, мм

Толщина стенки, мм

Нормативное значение временного сопротивления разрыву, МПа (кгс/мм )

Э42А

УОНИ-13/45

2,0-2,5

5-8

До 490 (50)

 

 

3,0

6-26

включительно

Э50А

УОНИ-13/55

2,0-2,6

5-8

До 588 (60)

 

 

 

 

включительно

 

ЛБ-52У

2,5-3,25

8-26

 

 

НИЕАЗ 55

 

 

 

 

Супербаз

 

 

 

 

Фокс ЕВ50

 

 

 

 

ОК 48.04

 

 

 

 

ВС0-50СК

 

 

 

Рекомендуемые значения сварочного тока приведены в табл.2

Таблица 2

Диаметр электродов, мм

Сварочный ток в зависимости от пространственного положения шва, А

Нижнее

Вертикальное

Потолочное

2,0 - 2,5

50-90

40-80

40-50

3,0 - 3,25

90-130

80-120

90 -110

Ток постоянный, полярность обратная.

2.5. Аналогично производится сборка и сварка второго стыка секции, после чего секция перемещается на промежуточный стеллаж.

2.6. С промежуточного стеллажа секция подается на роликовый вращатель для поворотной сварки последующих слоев шва. Сварка ведется одной сварочной головкой СГФ-Ю04А.

Для сварки используются сварочная проволока по ГОСТ 2246-70 "Проволока стальная сварочная" и флюс по ГОСТ 9087-81* "Флюсы сварочные плавленные".

Сочетания сварочных материалов (флюса и проволоки) в зависимости от характеристик свариваемых труб представлены в табл. 3.

Таблица 3

Марка

Нормативное значение временного2 сопротивления разрыву, МПа (кгс/мм )

флюса

проволоки

АН-348А АН-348АМ

СВ-08ГА

Свыше 490,5 (50) до 539,4 (55)

АН-47

СВ-08ГА

Свыше 490,5 (50) до 539,4 (55)

АН-47 АН-ВС

СВ-08ХМ СВ-08МХ S 2M0

539,4-588,7 (55-60) включительно

ФЦ-16

СВ-08ГНМ

539,4-588,7 (55-60) включительно

Сварочная проволока, перед производством работ очищается от ржавчины и наматывается на катушки или кассеты машиной МОН-52.

2.7. Число слоев, выполняемых автоматической сваркой под флюсом, при толщине стенки труб до 16,5 мм должно составлять не менее двух; ширина сварного шва при толщине стенки трубы от 6 до 8 мм - 14 ±  мм, свыше 8 до 12 мм - 20 ± 4 мм.

Режимы автоматической сварки заполняющих и облицовочного слоев шва приведены в табл. 4.

Таблица 4

Толщина стенки, мм

Диаметр электродной проволоки, мм

Слои шва

Сварочный ток, А

Напряжение, В

Скорость сварки, м/ч

Смещение электрода с зенита, мм

6-12,5

2

 

3

Первый

400-500

42-44

35-40

60-80

Последующ.

500-550

42-46'

35-40

40-50

Первый

550-650

42-44

35-50

40-60

Последующ.

700-750

44-46

35-50

30-40

Ток постоянный, полярность обратная.

2.8. Во время сварки заполняющих и облицовочного слоев шва производится очистка стыка от шлака.

2.9. Сварные соединения оставлять незаконченными не разрешается.

2.10. Начинать и оканчивать сварку стыка необходимо на расстоянии не менее 100 мм от продольных швов свариваемых труб.

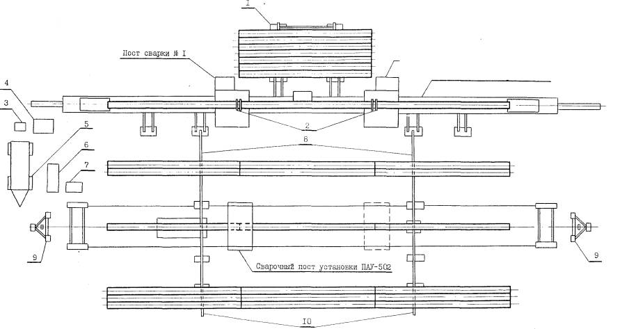
2.11. После полной сварки швов необходимо произвести их наружный осмотр, подварить вручную дефекты и нанести клеймо. Секция освобождается и перемещается на стеллаж готовой продукции.

2.12. Схема производства работ на трубосварочной базе EHC-81 представлена на рисунке 1.

2.13. Работы по сборке и сварке выполняет бригада, состоящая из 2-х звеньев:

по сборке труб в трехтрубные секции и сварке первого слоя шва - 5 чел.;

по автоматической сварке швов под слоем флюса - 3 чел.


Рис. 1 Схема производства работ на трубосварочной базе БНС-81:

1 - приемный стеллаж; 2 - наружный центратор; 3 - машина для очистки и намотки проволоки МОН-52; 4 - блок питания; 5 - агрегат электрический дизельный АДЦ-502; 6 - электроагрегат дизельный АТ30С-Т/400-РМ1У4; 7 - блок питания; 8 - промежуточный стеллаж; 9 - стойка опоры электроосвещения; 10 - стеллаж готовой продукции


3. ТРЕБОВАНИЯ К КАЧЕСТВУ И ПРИЕМКЕ РАБОТ

3.1. Для обеспечения требуемого качества работ необходимо проводить:

проверку квалификации сварщиков;

контроль исходных сварочных материалов и труб (входной контроль);

систематический операционный (технологический) контроль, осуществляемый в процессе сборки и сварки;

визуальный контроль (внешний осмотр) и обмер готовых сварных соединений;

проверку сварных швов неразрушающими методами контроля.

3.2. Аттестацию и проверку квалификации сварщиков осуществляет постоянно действующая комиссия треста под председательством его главного инженера в объёме и с использованием методик, определяемых требованиями ВСН 006-89 "Строительство магистральных и промысловых трубопроводов. Сварка" и СНиП III-42-80 "Правила производства и приемки работ. "Магистральные трубопроводы".

3.3. Все трубы могут быть приняты в монтаж только после прохождения приемки и освидетельствования на их соответствие требованиям ВСН 012-88 "Строительство магистральных и промысловых трубопроводов. Контроль качества и приемка работ" (часть I, раздел 4), а также требованиям ВСН 006-89.

Для проведения сварочных работ допускается применение электродов, флюсов, проволок только тех марок, которые регламентируются требованиями ВСН 006-89 и СНиП 2.05.06-85 "Магистральные трубопроводы".

3.4. Операционный контроль проводят мастер, прораб (ст. прораб) и служба контроля ПИЛ. При этом проверяется правильность и последовательность выполнения технологических операций по сборке и сварке в соответствии с требованиями ВСН 006-89.

3.4.1. При сборке соединений под сварку проверяют:

чистоту полости труб и степень зачистки кромок и прилегающих к ним внутренней и наружной поверхностей;

соблюдение допустимой величины смещения наружных кромок;

величину технологических зазоров в стыках.

3.4.2. При операционном контроле в процессе сварки проверяется соблюдение режимов сварки, порядок наложения слоев и их количество, правильность выбора применяемых материалов.

3.5. Все сварные соединения труб после их очистки от шлака, грязи, брызг металла, снятия грата подвергают визуальному контролю.

3.5.1. При осмотре сварного соединения:

проверяют наличие на каждом стыке клейма сварщика, выполняющего сварку;

проверяют наличие на одном из концов каждой плети ее порядкового номера;

убеждаются в отсутствии наружных трещин, незаплавленных кратеров и выходящих на поверхность пор.

3.6. Все стыки подвергаются неразрушающему контролю в объёме и методами, указанными в ВСН 012-88 "Строительство магистральных и промысловых трубопроводов. Контроль качества и приемка работ" (часть I).

Контроль качества сварных соединений неразрушающими методами производится работниками службы контроля (ПИЛ, специализированных управлений по контролю и т.п.).

3.7. При выполнении сварочных работ должны своевременно оформляться исполнительная производственная документация и акты промежуточной приемки в соответствии с перечнем, представленным в ВСН 012-88 "Строительство магистральных и промысловых трубопроводов. Контроль качества и приемка работ" (часть II), в том числе:

список сварщиков, составляемый службой главного сварщика, форма 2.3;

журнал сварки труб, который ведет производитель работ, форма.2.6 (2.6а);

заключение по проверке качества сварных соединений физическими методами контроля, составляемое службой контроля качества, форма № 2.9;

заключение о результатах механических испытаний контрольных и допускных сварных соединений, составляемое службой контроля качества, форма № 2.12.

3.8. Технические критерии и средства контроля операций и процессов приводятся в табл. 5.

Таблица 5

Наименование процессов, подлежащих контролю

Предмет контроля

Инструмент и способ контроля

Время контроля

Ответственный контролер

Технические критерии оценки качества

Входной контрольповерхности труб

Дефекты поверхности труб (трещины, расслоения, закаты, вмятины, надрывы и забоины), овальность труб по любому сечению, разнотолщинность стыкуемых труб, косина торцов

Шаблон, штанген-глубиномер, рейка нивелирная, рулетка, линейка, шаблон сварочный

До начала сборки труб

Работник службы контроля

Соответствие требованиям ВСН 006-89, раздел 2.1, ВСН 012-88, часть I, раздел 4

Входной контроль сварочных материалов (электродов, проволоки, флюса)

Наличие сертификатов, соответствие маркировки, состояние упаковки, степень

очистки проволоки, состояние поверхности покрытия, условия и режимы прокалки флюса и электродов

Визуально, термометр

До начала работ по сборке и сварке

Прораб, сварочная служба ПИЛ

Соответствие требованиям ВСН 006-89, приложение 4, раздел 2.3 Соответствие ГОСТ 2246-70* ГОСТ 9087-81* Зачистка проволоки до металлического блеска без нарушения калибровки

Очистка полости труб

Степень очистки полости труб

Визуально

До начала сборки

Мастер

Не допускаются посторонние предметы в полости трубы

Наименование процессов, подлежащих контролю

Предмет контроля

Инструмент и способ контроля

Время контроля

Ответственный контролер

Технические критерии оценки качества

Зачистка кромок стыкуемых труб

Качество зачистки кромок с при легающими цилиндрическими поясами

Визуально

В процессе работ по сборке

Мастер

Зачистка до металлического блеска внутренней поверхности кромок труб на ширину не менее 10 мм

Центровка и оборка стыка

Качество сборки стыка, точность установки зазора, величина смещения наружных кромок

Шаблон, линейка, щуп

В процессе сборки

Визуально

Соответствие требованиям ВСН 006-89, раздел 2.2

Ручная электродуговая сварка корневого слоя шва

Правильность выбора электродов, режимы сварки, степень зачистки слоя шва

Визуально, амперметр, вольтметр

В процессе сварки

То же

Соответствие требованиям ВСН 006-89, раздел 2.4

Автоматическая сварка под слоем флюса последующих слоев шва

Режимы сварки (вылет и угол наклона электрода, смещение с зенита, скорость сварки)

То же

В процессе сварки

-"-

Соответствие требованиям ВСН 006-89, раздел 2.6

Визуальный контроль и обмер сварных соединений

Наличие клейма сварщиков (бригады сварщиков), отсутствие наружных трещин, незаплавленных кратеров и выходных пор, геометрические размеры сварного соединения

Визуально, шаблон, линейка, щуп

По окончании сварки

Прораб, сварочная служба ПИЛ

Соответствие требованиям часть I. п.п. 5.17 и 5.18


4. КАЛЬКУЛЯЦИЯ ЗАТРАТ ТРУДА, МАШИННОГО ВРЕМЕНИ, ЗАРАБОТНОЙ ПЛАТЫ НА I км ТРУБОПРОВОДА

Таблица 6

Наименование процесса

Номер фасета для пересчета показателей

Единица измерения

Объем работ

Обоснование (ВНиР)

Норма времени, чел -ч

Расценка, р.-к.

Затраты труда., чел -ч

Заработная плата, р.-к.

Время пребывания машин на объекте, маш.-ч

рабочих

машинистов

рабочих

машинистов

рабочих

машинистов

рабочих

машинистов

Сборка труб в секцию и сварка их первым слоем на отенде с помощью наружного центратора

01

I стык

58

§ BI0-I-9, табл.2,п. 2д

0,73

-

0-60,3

-

42,3

-

34-97

-

-

Автоматическая сварка одной сварочной головкой на сварочной установке ПАУ-&2

02

10 стыков

5,8

Применительно § BI0-I-24, п. 2а

3,4

1,7

2-64

1,55

19,7

9,9

15-31

8-99

9,9

Итого:

 

 

 

 

 

 

 

 

62,0

9,9

50-28

8-99

9,9

5. ГРАФИК ПРОИЗВОДСТВА РАБОТ НА I км ТРУБОПРОВОДА

Таблица 7

Наименование процесса

Единица измерения

Объём работ

Затрат чел труда-ч

Принятый состав звена

Продолжительность работ, ч

Рабочие смены

рабочих

машинистов

Сборка труб в секцию и сварка их первым слоем на стенде с помощью наружного центратора

I стык

58

42,3

-

Монтажники наружных трубобопроводов:

5 разр. - I

4 разр. - 1

3 разр. - I

8,5

Автоматическая сварка одной сварочной головкой на сварочной установке ПАУ-502

10 стыков

5,8

19,7

9,9

Электросварщики на полуавтоматических и автоматических машинах:

5 разр. - I

2 разр. - I

Машинист электросварочного агрегата

5 разр. - I

9,9


6. МАТЕРИАЛЬНО-ТЕХНИЧЕСКИЕ РЕСУРСЫ

Потребность в машинах, механизмах, оборудовании, инструменте и инвентаре приведена в табл. 8

Таблица 8

Наименование

Марка, тип ГОСТ

Количество

Краткая техническая характеристика

Трубосварочная база

БНС-81

I

Размеры свариваемых труб:

диаметр - 325-820 мм

длина - 10,5-11,8 м

Линия сборки труб - ЛСТ-81

Количество постов сборки - 2

Линия автоматической сварки труб - ПАУ-502 Количество постов автоматической сварки - I

Центратор наружный

ЦНЭ-27-32

2

Диаметр стыкуемых труб - 325 мм

Электрошлифовальная машинка

Ш1-178А(Ш1-230А)

2

Скорость вращения - 8500 об/мин (6600)

Машина для зачистки и намотки проволоки

МОН-52

I

Производительность - 100 м/мин

Электрододержатель со сварочным кабелем

ГОСТ 14651-78*Е

2

 

Универсальный шаблон сварщика

УШС-З

3

 

Маскa электросварщика

ГОСТ 12.4.035-78*

4

 

Потребность в материалах для выполнения работ по сборке и сварке I км. труб в секции приведена в табл. 9.

Таблица 9

Наименование

материалов

Фасет-код

Единица измерения

Объем

работ

Потребность. кг

на единицу измерения

на весь объём

Электроды

 

I стык

58

0,23

13,34

Проволока сварочная

03-2

То же

58

0,83

48,14

Флюс

04-2

-"-

58

1,25

72,5

7. ТЕХНИКА БЕЗОПАСНОСТИ

7.1. ОБЩИЕ ПОЛОЖЕНИЯ

7.1.1. При сборке и сварке секций из отдельных труб на трубосварочной базе следует руководствоваться действующими нормативными документами:

СНиП III-4-80*. Техника безопасности в строительстве;

СНиП III-42-80. Магистральные трубопроводы. Правила производства и приемки работ;

РД 102-011-89. Охрана труда. Организационно-методические документы;

Правилами техники безопасности при строительстве магистральных стальных трубопроводов;

Правилами техники безопасности и производственной санитарии при электросварочных работах;

Правилами технической эксплуатации электроустановок потребителей и Правилами техники безопасности при эксплуатации электроустановок потребителей, утвержденными Главгосэнергонадзором Минэнерго СССР 24.12.1984 г.;

ГОСТ 12.3.003-86. ССБТ. Работы электросварочные. Требования безопасности;

ГОСТ 12.2.013-87. ССБТ. Машины ручные электрические. Общие требования по безопасности и методы испытаний;

Правилами пожарной безопасности при производстве строительно-монтажных работ. ППБ 05-86, утвержденными ГУНО МВД СССР 26.02.1386г.

другими нормативно-техническими документами и справочной литературой, приведенной в приложении к РД 102-011-89.

7.1.2. Ответственность за соблюдение требований охраны труда на трубосварочных базах возлагается приказом по строительной организации на руководителей (начальника участка, прораба, мастера).

7.1.3. За несоблюдение требований охраны труда рабочие, инженерно-технические и хозяйственные работники трубосварочных баз несут материальную, дисциплинарную, административную и уголовную ответственность в установленном законом порядке.

7.2. Основные положения по безопасной организации работ на трубосварочной базе БНС-81.

7.2.1. К работе на базе допускаются лица не моложе 18 лет, прошедшие:

обучение и проверку знаний по безопасным методам и; приемам труда, а также получившие удостоверения на право производства работ:

вводной инструктаж по охране труда и технике безопасности;

инструктаж по технике безопасности непосредственно на рабочем месте.

Инструктаж на рабочем месте следует проводить периодически не реже одного раза в год, а также в случае изменения условий работы (в объеме вводного инструктажа на рабочем месте).

7.2.2. При работающей базе посторонние лица в зону работ не допускаются.

7.2.3. Опасные зоны базы должны иметь ограждения, окрашенные в сигнальные цвета. Они информируют о возможной опасности.

7.2.4. Движущиеся (вращающиеся) элементы оборудования базы,

с которыми возможно соприкосновение обслуживающего персонала, должны быть ограждены. Ограждения должны быть надежно закреплены, окрашены предупредительной краской или снабжены другими средствами защиты и сигнализации. Работа, при снятых ограждениях не допускается.

7.2.5. Рабочие трубосварочных баз должны быть обеспечены

спецодеждой, спецобувью, а также средствами индивидуальной защиты в соответствии с выполняемой ими работой и согласно действующим нормам.

В спецодежде, облитой горючими или смазочными материалами не разрешается работать, курить и подходить к огню.

7.2.6. До начала работ рабочим следует выдавать соответствующую инструкцию по технике безопасности, которую они обязаны изучить и строго выполнять.

7.2.7. В распоряжение бригад должны быть выделены помещения для отдыха и обогрева. В этих помещениях необходимо оборудовать уголки по технике безопасности и места для размещения аптечек, носилок, фиксирующих шин и других средств для оказания первой помощи пострадавшим.

7.2.8. При работе на базе запрещается:

передвигаться или находиться в зоне накатывания или скатывания труб и трубных секций;

прикасаться руками к сварным швам после производства сварочных работ до их остывания;

переходить линию во время работы;

держать руки в световом пространстве между торцами труб.

7.2.9. На трубосварочных базах разрешается работать ручным электроинструментом при соблюдении следующих требований техники безопасности:

номинальное напряжение применяемых ручных электроинструментов должно быть не выше 42 В (класс электроинструментов - III);

допускается использовать ручные электрические шлифовальные машинки класса II (с двойной или усиленной изоляцией);

во время дождя или снегопада работа с электроинструментом допускается только под навесом и с применением индивидуальных средств защиты (диэлектрические перчатки, резиновые коврики).

7.2.10. Чтобы избежать поражения электрическим током, необходимо знать и выполнять следующие требования техники безопасности:

ввертывать и вывертывать электролампы только при выключенной электросети;

не касаться оборванных электрических проводов и корпусов электродвигателей, которые при неисправности заземляющих устройств могут оказаться под напряжением;

исправлять что-либо в электросети или электрооборудовании может только дежурный электромонтер, причем он должен работать в резиновых диэлектрических перчатках и применять другие защитные средства;

применять ручные переносные светильники только заводского изготовления, огражденные металлической защитной сеткой; у таких светильников напряжение должно быть не более 12 В; их шланговый провод снабжен специальной вилкой, которую нельзя включать в розетку сети с напряжением более 12 В;

надежно заизолировать оголенные концы проводов, отсоединенных от снятого электрооборудования;

выполнять временную электропроводку только из изолированного провода, подвешивать его разрешается на высоте:

над рабочим местом        - не менее 2,5м;

над проходами                 - 3,5 м;

над проездами                 - 6 м.

7.3. Основные положения по безопасной эксплуатации электроустановок и электрооборудования трубосварочной базы

7.3.1. Присоединение к сети и Отсоединение от сети энергоустановок и электрооборудования, их техническое обслуживание и ремонт в период эксплуатации должны производиться электромонтером или электрослесарем, обученным основам электротехники, техники безопасности, всем оперативным переключениям по схеме, имеющим квалификационное удостоверение и 1У группу по электробезопасности при обслуживании электрооборудования.

7.3.2. На сварочной базе все электрооборудование (в том числе электросварочные установки, передвижные электростанции, электрощиты, рубильники и т.п.), сварочные стеллажи, кабины управления, торцевые вращатели и другие металлоконструкции должны быть соединены между собой и с заземляющим устройством источника питания стальной шиной сечением не менее 48 мм2 и толщиной не менее 4 мм.

Заземление электросварочных установок выполняют до включения их в электросеть, после чего проводят инструментальную проверку заземления с изменением сопротивления заземляющих устройств и составляют акт проверки. В дальнейшем такую проверку заземления проводят не реже одного раза в год.

Сопротивление заземления должно быть не более 4 Ом. Работать без заземления строго запрещается.

7.3.3. После монтажа электрооборудования на сварочной базе следует провести проверку сопротивления изоляции электрических цепей испытательным напряжением 1000 В в течение I мин, а в дальнейшем - один раз в год мегаомметром на 500 В, при этом сопротивление в цепях, электрически связанных с сетью, должно быть не менее I мОм, а в цепях, электрически не связанных с сетью, не менее 0,5 мОм.

7.3.4. При эксплуатации электрооборудования трубосварочной базы двери шкафов распределительных устройств, электрощитов и рубильников следует закрывать на замок, а ключ должен храниться у электромонтера.

7.3.5. Перед началом каждой смены электромонтер (электрослесарь) обязан внешним осмотром проверить исправность изоляции кабелей, всего электрооборудования и заземления.

7.3.6. При эксплуатации оборудования запрещается:

работать при снятых крышкам клеммных коробок, а также разъединять штекерные разъемы без снятия напряжения;

проводить профилактические осмотры и ремонтные работы под напряжением;

включать напряжение до устранения обнаруженных неисправностей;

переносить и передвигать кабели, находящиеся под напряжением.

8. ТЕХНО-ЭКОНОМИЧЕСКИЕ ПОКАЗАТЕЛИ НА I км ТРУБОПРОВОДА

Нормативные затраты труда, всего, чел. - ч                            - 7I,9

В том числе:

Рабочих                                                                               - 62,0

Машинистов                                                                       - 9,9

Заработная плата, р.-к.

Рабочих                                                                               - 50-28

Машинистов                                                                       - 8-99

Продолжительность выполнения работ, ч (смен)                  - 9,9(1,24)

Выработка на одного рабочего в смену, м/чел.-смену           - 100,8

Численный состав бригады, всего, чел                                   - 8

В том числе:

Рабочих                                                                               - 7

Машинистов                                                                       - I

9. ФАСЕТНЫЙ КЛАССИФИКАТОР ФАКТОРОВ

ФАСЕТ 01

Характеристика местности (при сборке труб в секции)Наименование фактора

Обоснование (ВНиР)

Код

Значение фактора

Равнинная слабопересеченная местность

§ BI0-I-9, табл.2, п.2д

 

1

По калькуляции

Зона сыпучих песков

BI0-I, глава 2, (ТЧ-16)

2

Н.вр. и расц. умножать на 1,1

ФАСЕТ 02

Толщина стенки, мм, до

Наименование

Обоснование (ВНиР)

Код

Значение фактора

10

Применительно § BI0-I-24,

п. 2а

1

По калькуляции

12

п. 4а

2

Н.вр. и расц. умножать на 1,24

ФАСЕТ 03

Сварочная проволока, кг на 1 стык

Наименование фактора

Обоснование

Код

Значение фактора

При толщине стенки, мм

8

ВСН 181-85, табл. 010

п. 04-03

 

1

 

0,5

10

п. 05-03

2

0,83

12

п. 06-03

3

1,11

ФАСЕТ 04

Флюс, кг на I стык

Наименование фактора

Обоснование

Код

Значение фактора

При толщине стенки, мы

:ВСН 181-85, табл. 010

 

 

8

п. 04-03

1

0,5

10

п. 05-03

2

0,83

12

п. 06-03

3

1,11

Примечание. Рамкой обведены значения факторов, на которые рассчитаны показатели в данной технологической карте.

СОДЕРЖАНИЕ

I. ОБЛАСТЬ ПРИМЕНЕНИЯ

2. ОРГАНИЗАЦИЯ И ТЕХНОЛОГИЯ ВЫПОЛНЕНИЯ РАБОТ

3. ТРЕБОВАНИЯ К КАЧЕСТВУ И ПРИЕМКЕ РАБОТ

4. КАЛЬКУЛЯЦИЯ ЗАТРАТ ТРУДА, МАШИННОГО ВРЕМЕНИ, ЗАРАБОТНОЙ ПЛАТЫ НА I км ТРУБОПРОВОДА

5. ГРАФИК ПРОИЗВОДСТВА РАБОТ НА I км ТРУБОПРОВОДА

6. МАТЕРИАЛЬНО-ТЕХНИЧЕСКИЕ РЕСУРСЫ

7. ТЕХНИКА БЕЗОПАСНОСТИ

7.1. ОБЩИЕ ПОЛОЖЕНИЯ

8. ТЕХНО-ЭКОНОМИЧЕСКИЕ ПОКАЗАТЕЛИ НА I км ТРУБОПРОВОДА

9. ФАСЕТНЫЙ КЛАССИФИКАТОР ФАКТОРОВ

 


Яндекс цитирования


  _________________________________________________________
  Copyright © DocNorma.Ru, 2009 - 2026
  (при копировании материалов библиотеки - ссылка обязательна)