Государственный комитет по архитектуре и градостроительству при Госстрое СССР
Центральный ордена Трудового Красного
Знамени научно-исследовательский и
проектный институт типового и экспериментального проектирования жилища
(ЦНИИЭП жилища)
РЕКОМЕНДАЦИИ
ПО РАСЧЕТУ И КОНСТРУИРОВАНИЮ
ИНДУСТРИАЛЬНЫХ
КОНСТРУКЦИЙ ПЕРВЫХ НЕЖИЛЫХ ЭТАЖЕЙ
КРУПНОПАНЕЛЬНЫХ ЖИЛЫХ ЗДАНИЙ
Утверждены
председателем Научно-
технического совета,
директором института
С. В. Николаевым
(протокол № 20 от 27/IX-
Москва-1990
В Рекомендациях рассмотрены вопросы расчета, конструирования и армирования индустриальных конструкций крупнопанельных жилых зданий с нежилым первым этажом панельной и каркасной систем.
Рекомендации разработаны на основании уточнения расчетных схем и анализа результатов статистических расчетов панельных и каркасных конструкций зданий с нижним нежилым этажом, конструирования изделий (панелей и балок) для стен первых этажей, статических испытаний диафрагм зданий с увеличенными проемами в первом этаже и балок-стенок технического этажа в 1/2 натуральной величины, панелей с арочными проемами в натуральную величину, сопоставления данных экспериментальных и теоретических исследований, анализа результатов экспериментального строительства.
Результаты исследований использованы при разработке первых нежилых этажей в ГСПД и мини-КПД и включены в альбом технических решений, а также в проекты зданий массовых серий 90, 121, 83, 84 с панельными нижними этажами, разработанных ЦНИИЭП жилища.
Конструкции первых этажей из панелей с арочными проемами по серии 1.090, встраиваемые в крупнопанельные жилые здания серии 121к, внедряются в экспериментальное проектирование и строительство 4, 9 и 10-этажных жилых зданий с нежилыми первыми этажами в г.г. Твери и Бежецке.
Рекомендации разработаны кандидатами техн. наук Э.Л. Вайсманом, Е.Г. Валь и канд. экон. наук С.Б. Кутуевым (раздел 6). В разработке их принимали участие канд. техн. наук М.Я. Розенберг (раздел 4, п. 4.3.14, пример расчета 2 к разделу 4), инж. Э.Ш. Багашвили (раздел 4, пример расчета 2 к разделу 4), инж. Н.Я. Кузьминер (раздел 3), канд. техн. наук Г.Н. Ашкинадзе (проведение испытаний, результаты которых использованы в разделах 3 и 4), инж. Л.А. Жарко (п. 3.2), канд. арх. Красильникова (раздел 2), инж. Л.Б. Гендельман (п.п. 3.1 и 4.1), инж. В.В. Соколова (раздел 8). В разделе 3 использованы результаты испытаний, проведенных на базе МНИИТЭП под руководством канд. техн. наук В.С. Коровкина.
Содержание
1.1. Рекомендации могут быть использованы при разработке архитектурно-планировочных и конструктивных решений крупнопанельных жилых зданий с полносборными конструкциями встроенных первых этажей для размещения помещений общественного назначения, возводимых в обычных условиях строительства.
1.2. Рекомендации могут применяться для расчета и конструирования крупнопанельных зданий высотой до 12 этажей (включительно) со сборными конструкциями первых встроенных этажей, расположенными соосно со стенами типовых этажей (панельный и каркасный варианты) и частично несоосно со стенами типовых этажей (каркасный сборный и сборно-монолитный варианты).
1.3. Рекомендации могут служить на всех стадиях проектирования зданий, начиная от разработки архитектурно-планировочных и технических решений и определения основных конструктивных параметров и кончая стадией рабочего проектирования, разработки номенклатуры изделий и их армирования.
1.4. Рекомендации основаны на действующих нормативных документах по расчету и конструированию железобетонных конструкций и крупнопанельных зданий.
1.5. Рекомендации могут быть использованы при проектировании зданий с
нежилыми первыми этажами с панельными конструкциями всех видов: высотой
Часть панелей нижних этажей может иметь большее раскрытие проемов, чем панели верхних типовых этажей.
1.6. В Рекомендациях рассмотрены расчет и конструирование каркасных первых нежилых этажей с переходной конструкцией в виде балочной клетки при соосном и несоосном со стенами типовых этажей расположения колонн в первом этаже в полносборном и сборно-монолитном вариантах. Каркасный вариант с переходной конструкцией в виде сборно-монолитного «стола» наименее экономичен для массового применения не рекомендуется и в данной работе не рассматривается.
1.7. Номенклатура общественных зданий, целесообразных для встраивания в первые панельные и каркасные нежилые этажи, и примеры их объемно-планировочных решений применительно к массовым сериям крупнопанельных зданий 90 и 83 приведены в работе [1].Обзор конструктивных решений применяемых в настоящее время в жилищном строительстве каркасных и панельных вариантов первых встроенных этажей приведен в работе [2]. Настоящие Рекомендации могут быть использованы для внедрения рассматриваемых вариантов конструкций первых этажей в практику проектирования.
2.1. Жилые крупнопанельные дома с каркасом в первом этаже следует размещать на магистралях общегородского значения и проектировать с техническими средствами шумозащиты. Все первые этажи домов или комплекса домов, выходящих на магистраль, целесообразно занимать помещениями общественного назначения.
2.2. При каркасном решении со смешанным шагом колонн в первых этажах
можно разместить большинство учреждений и предприятий (около 100 наименований
объектов) культурно-бытового обслуживания. Однако экономически это не всегда
целесообразно, так как небольшие предприятия коммунально-бытового и
культурно-массового назначения могут быть размещены в более экономичных
панельных конструкциях с высотой этажа, равной жилому -
2.3. Наиболее целесообразно и экономически обоснованно размещение в
каркасе со смешанным шагом колонн помещений для крупных учреждений и
предприятий; которые трудно или невозможно разместить в габаритах жилого дома в
панельных конструкциях (непродовольственные магазины - торговой площадью 400,
650,
2.4. По технологическим условиям эксплуатации предприятий, перечисленных
в п. 2.3, а также по конструктивным требованиям при каркасном решении со
смешанным шагом колонн необходим эксплуатируемый технический этаж. Высота его
определяется требованиями СНиП 2.08.01-85
- минимальная высота от пола до низа выступающих конструкций или проемов для
прохода людей равна
При минимальной высоте перемычки над проходом в несущих конструкциях
панелей нежилого этажа 0,4-
2.5. Каркасные первые этажи со смешанным шагом колонн конструктивно наиболее рационально и экономично встраивать в жилые здания со смешанным шагом поперечных стен, причем таким образом, чтобы оси колонн совпадали с осями несущих стен здания.
В этом случае можно обойтись без усложнения поддерживающих конструкций, вызванного несоосностью панелей верхних и колонн нижнего этажей.
2.6. При наличии в
регионе базы для производства каркасных изделий, например, каркаса серии 1.020
рационально при малом шаге стен типовых этажей (до
При каркасном решении с малым
шагом колонн конструкций первых этажей проще решается вопрос повышения
звукоизоляции помещений, так как по конструктивным требованиям образуется
неэксплуатируемое техническое пространство высотой около
2.7. При решении
первых этажей в панельных конструкциях технически наиболее просто
осуществляется встраивание предприятий и учреждений обслуживания, которые по
условиям эксплуатации могут иметь высоту
2.8. В габариты крупнопанельных зданий с малым шагом поперечных несущих стен рекомендуется встраивать предприятия обслуживания, имеющие мелкоячеистую структуру помещений, - небольшие мастерские срочного ремонта, приемные пункты прачечных и химчисток, бюро обслуживания и пр., а также ЖЭО (помещения для руководства, общественных организаций, пункты охраны порядка, помещения для культурно-массовой работы с населением).
2.9. В зданиях со
смешанным шагом поперечных несущих стен номенклатура встроенных помещений
расширяется. Это небольшие кафе и закусочные на 25 мест, специализированные
бары до 50 мест, магазины-кулинарии, магазины хлебо-булочных товаров торговой площадью 50-
2.10. При высоте панельного первого нежилого этажа
Для организации торговых залов в магазинах, кафе, кружковых помещений
ЖЭО, салонов прачечных, сберкасс, аптек необходимо
устройство проемов в стенах шириной раскрытия 3,5-
2.11. Жилые дома с встроенными помещениями общественного назначения,
решаемые в панельных конструкциях, при высоте этажа
2.12. Жилые дома со встроенными помещениями для приближенного
обслуживания населения следует располагать во внутриквартальных пространствах -
на жилых улицах или проездах либо на второстепенных магистралях районного
значения с возможностью обслуживания населения жилых домов в радиусе 200-
2.13. Ввиду однотипности конструкций блок-секции с встроенными
помещениями высотой
Блок-секции
с встроенными помещениями высотой
Размещение
в первом этаже рядом общественных (высотой
3.1.1.
Панельные конструкции первого встроенного этажа в зависимости от назначения и
возможностей индустриальной базы могут быть высотой 2,8 либо
При
высоте
При
высоте
В
зданиях до пяти этажей при высоте нижнего этажа

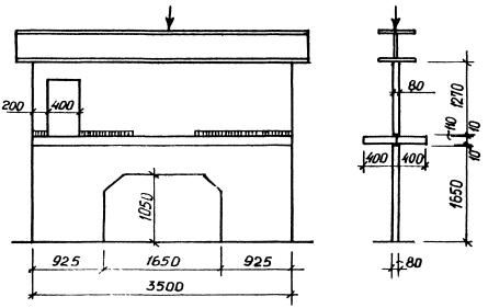
Рис. 1. Панельное решение первого нежилого этажа:
а - план первого этажа; б - план второго этажа; в - разрез
3.1.2. Наилучшие эксплуатационные качества в жилых зданиях с
предприятиями обслуживания, к которым предъявляются повышенные требования к
звукоизоляции от воздушного шума 55 дБ (магазины,
кафе, мастерские срочного ремонта, парикмахерские, универсальные залы
культурно-массового назначения), обеспечивают при наличии технического этажа
над ними. Технический этаж может служить также для размещения инженерных
коммуникаций жилого дома и общественных помещений, что позволяет не пропускать
через залы стояки и вентиляционные шахты. Однако из-за значительного удорожания
строительства допускается встраивание этих предприятий в жилые дома без технического этажа. При этом для выполнения требований
по звуко- и шумоизоляции необходимо увеличить толщину перекрытий до
Размещение помещений, требующих изоляцию от воздушного шума 60 дБ (например, рестораны, большие кафе и т.д.), в первых нежилых этажах без наличия технического этажа не допускается.
3.1.3. При сохранении платформенного стыка между стенами типового и встроенного этажей во встроенной части целесообразно сохранять размеры и номенклатуру плит перекрытий жилой части здания. Панели стен жилой части здания при встраивании рекомендуется оставлять без изменения.
3.1.4. В зданиях с малым шагом, с несущими наружными стенами и опиранием
перекрытий по четырем сторонам при увеличенной полезной нагрузке на перекрытие
нижнего нежилого этажа (до 400 кг/м2) возможно
сохранение в первом нежилом этаже плоской конструкции плит перекрытий жилой
части здания толщиной
3.1.5. В зданиях со встраиваемым первым нежилым этажом рекомендуется применять приставную конструкцию лоджий с опиранием стен на отдельные фундаменты.
При навесных наружных стенах и лоджиях дополнительная нагрузка от них должна быть учтена при расчете поперечных стен встроенных этажей, что приведет к уменьшению ширины раскрытия проемов в них.
Рис. 2. Узлы сопряжений перекрытий, обладающих повышенной звукоизоляцией, с внутренними и наружными стенами:
а - с подбетонкой перекрытий; б - с подрезкой
3.1.6. При высоких свайных безростверковых фундаментах под внутренними стенами
для обеспечения возможности раскрытия проема в стенах нежилого этажа от
3.1.7. Для обеспечения общей устойчивости конструкций здания рекомендуется объединять панели внутренних стен первого нежилого этажа между собой и с панелями наружных стен в единую пространственную систему путем заполнения монолитным бетоном вертикальных стыков, последующего уплотнения их вибраторами, устройства бетонных шпонок по боковым граням панелей, а также надежно соединять на сварке закладные детали плит перекрытий и стен. Внутренние и наружные стены нежилого этажа должны соединяться в вертикальном стыке не менее чем тремя сварными связями Æ 12А-1.
3.1.8. При разработке архитектурно-планировочных решений встроенных общественных помещений рекомендуется организовывать залы с увеличенными проемами только с одной стороны здания, располагая в другом пролете помещения обслуживания, не требующие проемов с большим раскрытием.
В
зданиях высотой выше четырех этажей в диафрагмах с несимметричными проемами в
первом нежилом этаже шириной
3.1.9. При проектировании встроенных помещений рекомендуется не допускать, чтобы боковая внешняя грань панели первого типового этажа находилась над перемычкой проема первого нежилого этажа.
3.1.10. Для увеличения размера проема в панели первого нежилого этажа рекомендуется выполнять следующие архитектурно-планировочные и конструктивные меры:
- проем в панели в первом нежилом этаже располагать симметрично относительно оси стены;
- проем в первом типовом жилом этаже располагать в зоне перемычки над проемом первого нежилого этажа;
- высоту (жесткость) перемычки панели первого этажа в зоне ее заделки в простенок увеличивать путем применения вутов, арочных проемов;
- увеличивать класс бетона стен;
- увеличивать толщину стен первого нежилого этажа, применять в первом типовом жилом этаже над панелями с увеличенными проемами спаренные панели;
- армировать платформенные стыки в уровне пола первого жилого этажа горизонтальными сетками.
Выбор наиболее эффективных мер для каждого конкретного случая рекомендуется производить согласно расчету (см. раздел 3.2).
3.1.11.
Панели внутренних стен с большими проемами (
3.1.12.
Рекомендуется тщательно контролировать качество панелей первых этажей с
большими проемами. Не допускаются трещины шириной более
Запрещается размещать внутреннюю электропроводку в теле панелей внутренних стен нижних нежилых этажей с увеличенными проемами.
3.1.13. В панелях внутренних стен первых этажей с шириной проема
3.1.14. Для стыковки наружных и внутренних стен жилой и встроенной частей здания из разных серий проектов необходима унификация горизонтальных стыков, очертаний граней панелей, конструкций лестничных клеток, привязок стен и других элементов жилой и встроенной части.
3.2.1. Расчет жилых зданий со встроенными нижними нежилыми этажами на действие вертикальной и горизонтальной (ветровой) нагрузок допускается вести независимо. В первом приближении усилия в конструкциях здания высотой до 12 этажей от действия горизонтальной нагрузки и их распределение между столбами и диафрагмами рекомендуется определять как для регулярной системы без учета изменения положения и размеров проемов в стенах нижних этажей по сравнению с их положением и размерами в типовых этажах. После определения усилий от действия горизонтальной нагрузки каждую из вертикальных диафрагм рекомендуется рассчитывать с учетом реальной схемы и расположения проемов на нагрузки, полученные из первоначального расчета.
При расчете рекомендуется учитывать, что для зданий высотой 10 этажей и менее, как правило, усилия от ветровых нагрузок не являются определяющими для назначения бетонных сечений конструкций и их армирования. Поэтому компоновку несущей системы таких зданий со встроенными нежилыми помещениями допускается выполнять исходя из расчета на вертикальные нагрузки.
3.2.2. Расчет диафрагм, в первых нежилых этажах которых положение и размеры проемов не изменены по сравнению с типовыми этажами, следует производить аналогичную расчету стен обычных крупнопанельных зданий [3].
3.2.3. Несущую систему вертикальных конструкций нижних нежилых этажей с увеличенными проемами рекомендуется рассчитывать в стадии эксплуатации на действие вертикальной нагрузки совместно с опирающимися на них конструкциями стен верхних этажей, т.е. в виде диафрагм. При расчете допускается из несущей диафрагмы выделять фрагмент, состоящий из конструкции подвала, техподполья, первого нежилого этажа с увеличенными проемами, технического этажа и типового жилого этажа либо (при отсутствии технического этажа) из двух типовых этажей. По верху фрагмента должна быть приложена полезная нагрузка и нагрузка от веса конструкций всех вышерасположенных этажей, а в уровне перекрытий всех нижележащих этажей - нагрузка, действующая на перекрытие одного этажа. В расчетной схеме на диафрагму должны быть наложены все связи, соответствующие реальным закреплениям фрагмента в здании.
3.2.4. Выбранный фрагмент диафрагмы рекомендуется рассчитывать как составную балку-стенку с использованием метода конечного элемента (МКЭ).
На начальном этапе проектирования расчет допускается выполнять в упругой стадии.
При разработке расчетной схемы (рис. 3) МКЭ рекомендуется:
модель разбивать на прямоугольные элементы таким образом, чтобы размеры простенков и перемычек были кратны размерам сетки:
при арочных проемах дуги окружности заменять прямыми и вводить в углах треугольные плоские элементы;
платформенный стык моделировать в виде прямоугольных элементов толщиной, равной средней толщине верхней и нижней панелей, и с модулем упругости, который является обратной величиной податливости платформенного стыка на сжатие и определяется по формуле:
(3.1)
где Кпл - жесткость платформенного стыка
(3.2)
F - площадь платформенного стыка,
l - высота платформенного стыка (высота перекрытия плюс две толщины швов);
λшв, λшн - коэффициент податливости при сжатии верхнего и нижнего растворных швов;
hпер - высота перекрытия;
Епер - модуль упругости перекрытия.
В плоскую расчетную модель необходимо включать горизонтальные связи между конструкциями, расположенными по одной оси, которые, как правило, работают в нижнем этаже на растяжение, а выше - на сжатие, с их реальными жесткостными характеристиками.

Рис. 3. Плоская расчетная схема диафрагмы МКЭ
При несимметричных системах в расчетной схеме необходимо учитывать податливость основания, задавая ее в виде связей конечной жесткости в уровне заделки для каждого узла сетки конечных элементов.
Рис. 4. Пространственная расчетная схема МКЭ
При расчете зданий с опиранием перекрытий по трем или четырем сторонам рекомендуется пользоваться пространственными расчетными схемами (рис. 4) с включением несущих стен поперечного и продольного направлений и учитывать связи конечной жесткости, работающие на сдвиг (между продольной и поперечной стенами, в уровне перекрытий). Это позволяет снизить нагрузку на наиболее напряженный простенок поперечной стены в уровне пола первого жилого этажа примыкающий к продольной стене, на 10-15 % в зависимости от конструкции.
При наличии оси симметрии в расчетную схему рекомендуется включать часть поперечника до оси симметрии и учитывать влияние отрезанной части заданием соответствующих краевых условий по оси симметрии.
3.2.6. Основными сечениями диафрагм с увеличенными проемами первого этажа, в которых необходима проверка прочности, являются горизонтальные опорные сечения в уровне пола первого жилого и первого нежилого этажей, средние сечения простенков первого нежилого этажа, вертикальные сечения перемычек первого нежилого этажа в местах заделки и в середине пролета. Прочность панели первого нежилого этажа необходимо проверять в уровне заделки и в среднем сечении простенков на действие вертикального давления, в перемычке - на изгиб и растяжение в центре и поперечную силу в заделке. Прочность панели первого жилого этажа проверяется в уровне пола по прочности платформенного стыка на действие вертикальной нагрузки.
3.2.7. Усилия в диафрагме рекомендуется определять для двух расчетных случаев: при максимальном и минимально возможной величине податливости платформенного стыка на сжатие (см. (3.1) и (3.2). Первый случай (максимально возможная податливость швов) возможен при зимнем производстве работ и монтаже панелей по маякам, второй (минимальная податливость швов) - при монтаже без маяков. Расчет по первому случаю дает максимальные усилия в перемычке первого этажа, по второму - в опорной зоне панели второго этажа.
3.2.8. Если по результатам упругого расчета параметры конструкции определяются усилиями сжатия в горизонтальных стыках, данные упругого расчета могут быть использованы для определения прочности и армирования конструкции. Если определяющими являются усилия в перемычке, рекомендуется применять для уточнения расчета неупругую расчетную модель. Расчет диафрагмы по предельному состоянию первой и второй групп (прочности и трещиностойкости) следует производить с учетом физической нелинейности бетона согласно требованиям п. 1.31 СНиП 2.03.01-84.
При
этом максимальная ширина раскрытия трещин ограничивается
3.2.9. На стадии разработки архитектурно-планировочных и технических решений размеры простенков в панели первого нежилого этажа должны назначаться таким образом, чтобы среднее давление на 1 пог. м расчетной длины платформенного стыка над панелью первого этажа не превышало его несущую способность. При этом в расчетную длину шва над панелью первого этажа дополнительно к ширине простенков может быть включен участок перемычки, длина которого равна ее высоте в месте заделки в простенок (длина включенного участка принята для максимально возможной жесткости стыка, см. п. 3.2.7).
При несимметричном расположении проемов в панели первого нежилого этажа максимальное давление будет в меньшем простенке; его следует определять от действия нагрузки, приложенной к простенку и к перемычке на половине ее длины.
3.2.10. Перемычка панели первого нежилого этажа должна быть проверена на действие поперечной силы на опоре и растягивающей силы и изгибающего момента в пролете. Изгибающие моменты в перемычке обычно невелики из-за наличия трения и распора в уровне шва над первым нежилым этажом. Значение поперечной силы в перемычке рекомендуется определять как произведение величины среднего давления на простенок в уровне пола первого жилого этажа (не превышающего несущей способности 1 пог. м стыка) на 0,8 высоты перемычки (принято для случая минимально возможной жесткости стыка, но без учета зимнего производства работ, см. п. 3.2.7).
При
учете возможности зимнего производства работ поперечную силу, действующую в
перемычке, надо увеличить в два раза. Растягивающая сила в перемычке может быть
приближенно определена как усилие в затяжке условной арки. Для перемычек
пролетом от 3,3 до
(3.3)
где q - нагрузка от верхних этажей в уровне пола третьего этажа;
l0 - пролет перемычки в свету;
h - высота перемычки в центре проема первого нежилого этажа;
hmin - минимально возможная
высота перемычки, равная
3.2.11. Для того, чтобы максимально использовать несущую способность
платформенных горизонтальных стыков и не допускать хрупкого разрушения
перемычки панели первого нежилого этажа в опорной зоне по наклонной трещине от
поперечной силы и раскрытия в ней трещин шириной более
R1,вs/R2,вs > 2,54 mст (3.4)
где mст - коэффициент снижения прочности платформенного стыка по сравнению с прочностью бетона панели.
Рис. 5. Условная арка для определения растяжения в перемычке панели 1-го нежилого этажа
3.2.12. При стенах с платформенными стыками и примерно одинаковой толщине панелей первого нежилого и жилых этажей класс бетона панелей стен первого нежилого этажа должен быть на одну ступень выше класса бетона панелей стен жилых этажей при изготовлении панелей первого нежилого этажа в горизонтальных формах и на две ступени выше - при изготовлении их в кассетах (из-за понижения прочности бетона в зоне перемычки).
3.2.13. Если условие (3.4) не выполняется, необходимо провести расчет по второй группе предельных состояний, проверить максимальную ширину раскрытия трещин, выполнить усиленное армирование опорных зон перемычки первого нежилого этажа. При этом не допускается производство работ зимой, так как это снижает жесткость стыка и увеличивает нагрузку на перемычку.
3.2.14. На стадии разработки технических решений для выбора наиболее рациональной конструкции при максимально возможном раскрытии проема и соблюдении условия (3.4) рекомендуется приближенная методика расчета (см. п. 3.2.9) с определением мест разрушения диафрагм (рис. 6).
Рис. 6. Расчетная модель для приближенного метода расчета:
а - геометрия модели; б - схема распределения давления
В формулы (3.5) - (3.15) введены безразмерные относительные величины (см. рис. 4):
; (3.5)
(3.6)
(3.7)
учитывается при условии, что
α1 + α < lpz + 0,5 h. (3.8)
Значение
при симметричном расположении
проема в первом нежилом этаже определяется по формуле (3.10) при возможности
разрушения по сечению 1-1, которое происходит при соблюдении неравенства (3.9)
и (3.10):
(3.9)
(3.10)
и по формуле (3.11) при возможности разрушения по сечению П-П, которое происходит при несоблюдении неравенства (3.9):
где q - погонная нагрузка на панель второго этажа от вышележащих этажей;
R1 и R2 - прочность 1 пог. м горизонтальных стыков в уровне пола первого и второго этажей;
К3 - коэффициент снижения величины нагрузки в малых простенках (при несимметричном расположении проема в первом этаже либо при проеме во втором этаже вблизи грани панели) за счет пластических деформаций и пространственной работы стен перпендикулярного направления, В результате включения стен перпендикулярного направления при платформенном опирании перекрытий на стены обоих направлений или при наличии вертикальных шпоночных стыков между стенами может приниматься К3 равным 0,8.
При несимметричном расположении проема в первом нежилом этаже, расположение которого характеризуется коэффициентом ρ
(3.12)
в
формулах (3.9) - (3.11) вместо
и
следует подставить
и
:
(3.13)
Минимальную толщину панели первого этажа рекомендуется определять из неравенства:
(3.14)
где в - толщина панели первого этажа (q - кН/м; l и в - м).
При
разрушении по сечению II-1I, если проемы во втором этаже в левой и правой
частях диафрагмы по ширине или расположению различны,
определяется по
формуле (3.11) для левой и правой частей отдельно и в расчет принимается
среднее значение. Если проем во втором этаже имеется только с одной стороны
диафрагмы, в формулу (3.11) вместо
надо подставить 0,5
.
3.3.1. Простенки панели первого этажа должны быть заармированы как внецентренно сжатые в двух плоскостях железобетонные элементы с учетом действия горизонтальной сдвигающей силы.
При этом величины момента в плоскости стены, нормальной и сдвигающей сил могут приниматься в виде интегральных величин, действующих на каждый простенок; их получают из расчета диафрагм по МКЭ. При определении величины эксцентриситета действия вертикальной силы из плоскости стены рекомендуется пользоваться указаниями п. 1.21 СНиП 2.03.01-84.
Для расчета простенков допускается пользоваться формулами п. 12.63 ВСН 32-77.
Для расчета средних по высоте сечений простенков, имеющих криволинейную или наклонную образующую граней проема, следует проверить верхнее и нижнее сечения в средней трети их высоты, а также места, где угол наклона образующей изменяется.
3.3.2. Перемычку панели первого этажа допускается армировать как балку из расчета прочности сечений, наклонных к продольной оси, и сечений, нормальных к продольной оси, по СНиП 2.03.01-84. Проверку наклонных сечений допускается производить по величине поперечной силы, определенной либо из расчета диафрагмы по МКЭ, по расчетным схемам (см. 3.2.4), либо по рекомендациям п. 3.2.10.
3.3.3. Проверку
нормальных сечений для перемычек пролетом более
3.3.4. Характер армирования опорных зон перемычки зависит от длины участка передачи вертикальной нагрузки от вышележащей панели (lоп на Рис. 6, б). В общем случае для определения этой длины и величины поперечной силы рекомендуется использовать первый случай жесткости горизонтальных стыков по рекомендациям п. 3.2.7. Если Q ≤ 2,5 Rвt в h0 расчет на поперечную силу можно не производить. Поперечное армирование не требуется.
3.3.5. При прямоугольной форме проема либо проемах с вутами в углах, если длина опорной зоны lоп ≤ h где h - высота перемычки (см. рис. 6, б) (в случае запрещения зимнего производства работ), проверку прочности опорного сечения перемычки допускается производить по формулам п. 3.34 СНиП 2.03.01-81 как для короткой консоли. При этом следует принимать lsup = lоп/2:
(рис.
7).
Вертикальное поперечное армирование перемычки устанавливается по конструктивным соображениям как для железобетонного элемента.
Предельно допустимая величина
поперечной силы в перемычке определяется при выполнении соотношения
либо при наличии сжимающей силы распора (если
к панели с двух сторон соосно примыкают соседние панели) как Q ≤ 5 Rвt в h0, а горизонтальное армирование опорных
участков перемычки определяется по формуле (8.5) п. 3.34 СНиП 2.03.01-84 из условия
обеспечения прочности по наклонной сжатой полосе.
Если указанные выше условия не выполняются, предельно допустимая величина поперечной силы определяется соотношением Q ≤ 3,5 Rвt в h0, что в этом случае является лимитирующим из расчета сечения на срез, а горизонтальное армирование устанавливается конструктивно.
3.3.6. При lоп > h и θ ≤ 45° проверку прочности опорного сечения следует производить исходя из расчета по наклонным сечениям как для балочной конструкции по формулам (3.29)-(3.32) СНиП 2.02.01-84. При этом значение С0 рекомендуется принимать не более 2/3 lоп. При распорной сжимающей силе и определении Qб по формуле (76) СНиП рекомендуется учитывать значение In по формуле (78), где N - сжимающая сила.

Рис. 7. Схема для расчета опорного сечения перемычки как короткой консоли
3.3.7. В случае конструирования перемычки арочного очертания должна проверяться прочность нескольких характерных по длине сечений перемычки, в том числе в зонах начальной и средней точек перегиба и ключевого сечения. При проверке сечений в начальной и средней точках перегиба угол наклона сечения θ расчетной сжатой полосы определяется по касательной к грани проема, проведенной от нижней точки сечения, и расчет ведется с учетом требований п.п. 3.3.4-3.3.6 настоящих Рекомендаций.
Ключевое сечение необходимо проверять на срез, если оно находится в пределах длины 2/3 lоп.
3.3.8. При конструировании панелей с арочными проемами очертание продольных стержней, укладываемых вдоль криволинейной образующей, должно ей соответствовать. При невозможности применения такого приема и использовании прямолинейных арматурных стержней вдоль образующей длина их нахлестки и заведения за грань опоры должна определяться по п. 5.14 СНиП 2.03.01-84.
Максимальная
толщина защитного слоя бетона (от края
продольных арматурных стержней до края бетона), которая в последнем случае является переменной, не
должна превышать

Рис. 8. Армирование панели 1-го этажа:
а - с прямоугольным проемом; б - с арочным
3.3.9. Опорные сечения панелей в уровне пола первого и второго этажей в случае необходимости повышения прочности по требованиям расчета рекомендуется армировать горизонтальными сварными поперечными сетками, укладываемыми в растворные швы и приопорные зоны панелей. Несущую способность сечения с косвенным армированием рекомендуется определять по п. 3.41 СНиП 2.03.01-84. Максимальное увеличение прочности сечения за счет косвенного армирования не должно превышать 30 %.
3.3.10. Примеры армирования панелей первого этажа с проемами прямоугольного очертания и в виде арки даны на рис. 8.
Для выбора рационального армирования панели 1-го этажа рекомендуется провести расчет диафрагм с учетом физической нелинейности и раскрытия трещин, например, по программе РАДУГА разработанной ЦНИИЭП жилища для ЭВМ ЕС-1045. Это позволит снизить расход металла до 30 % в зависимости от конструктивных особенностей диафрагмы.
4.1.1. При размещении встроенных помещений общественного назначения в первых нежилых этажах жилых зданий следует сохранять конструкции и изделия жилой части здания неизменными, не отличающимися от конструкций и изделий аналогичного по планировочным решениям жилого здания без встроенных помещений.
4.1.2. Изделия внутренних и наружных несущих стен первого жилого этажа, опирающиеся на балки или балки-стенки каркаса первого этажа, должны проверяться расчетом. При необходимости из-за более сложных условий работы они могут дополнительно, по сравнению с типовыми конструкциями жилых зданий, армироваться в их наиболее напряженных участках - зоне перемычек дверных или оконных проемов, в опорной и нижней зонах, что может привести к появлению новых марок изделий.
4.1.3. При конструировании первых нежилых этажей существенными является учет нагрузок от верхних жилых этажей, приходящихся на конструкции первых этажей. На стадии технических решений при высоте здания в десять этажей, включая первый и технический этажи, нагрузки унифицируются (рис. 9).
Для унификации нагрузок приняты следующие допущения:
рассмотрены только бескаркасные полносборные конструктивные решения крупнопанельных жилых зданий, в том числе массовых серий (90, 121, 83 ГСПД) с перекресно-стеновой несущей системой;
наружные стены и конструкции лоджий рассмотрены в навесном и несущем вариантах.
4.1.4. При конструировании изделий первого этажа (колонны, ригели, плиты перекрытий, наружные стены) следует максимально использовать возможности существующей производственной базы и номенклатуру каркасных изделий с максимальной их модернизации в сочетании с минимально необходимой номенклатурой дополнительных изделий.
Для
жилых зданий и конструкций технического этажа проверена возможность использования
каркасных изделий на основе изделий серии 1.020. Модернизация заключается в
изменении узлов колонн (с сохранением сечений), дополнении номенклатуры плит
перекрытий, ригелей для пролета

Рис. 9. Унифицированные нагрузки:
а - при малом шаге стен жилых этажей; б - при смешанном шаге стен
4.1.5. Перекрытия в уровне пола первого жилого этажа следует принимать типовыми, такими же как для жилой части здания, с сохранением платформенного стыка внутренних стен. Перекрытия над и под первым нежилым этажом должны быть унифицированы и опираться на ригели в поперечном направлении, а ригели должны быть отделены от балок-стенок технического этажа. Это позволяет, в частности, в зданиях с большим и малым шагом конструкцию перекрытия нежилого этажа принимать принципиально одинаковой.
4.1.6. В жилых зданиях с малым шагом поперечных стен при расположении
колонн в первом этаже соосно со стенами типовых этажей
конструкции первого встроенного этажа можно выполнять полностью из изделий
каркаса серии 1.020 с применением сборно-монолитной конструкции балок под
несущих стены (рис. 10). Опалубкой для монолитного железобетона несущих балок
переходной конструкции являются типовые ригели каркаса и плиты перекрытий.
Расчеты показали, что для 10-этажного здания суммарная высота сборно-монолитных
балок под поперечные несущие стены может быть около
4.1.7. При решении по п. 4.1.6. и необходимости сохранения класса бетона стен типовых этажей (для зданий с малым шагом - класс бетона В12.5) для повышения несущей способности стыков в опорных сечениях стен в уровне пола первого жилого этажа возможно устройство контактного типа стыка между стенами и балками, для чего следует применять нетиповые (укороченные) плиты перекрытий. В этом случае целесообразно опирание плит перекрытий на ригели, идущие вдоль продольной оси здания.

Рис. 10. Сборно-монолитное каркасное решение с малым шагом колонн:
а - план типового этажа;

б - план колонн, ригелей и диафрагм подвала и 1-го этажа;
в - план монолитных железобетонных балок по верху ригелей и диафрагм 1-го этажа

г - разрезы
4.1.9. При смешанном шаге колонн в первом этаже под стенами здания с малым шагом и ограничении класса бетона конструкций каркаса по условиям производства основным отличием изделий встроенного каркаса от изделий по серии 1.020 является увеличение сечения колонн среднего ряда до 40´80 см. Под несущие стены жилой части здания необходима установка нетиповых балок-стенок высотой на этаж. Из-за больших нагрузок и пролетов унифицировать их с изделиями технического подполья жилых зданий не представляется возможным.
4.1.10. При решении п. 4.1.9 сборные несущие балки-стенки должны опираться на торцы (а не на консольные столики) колонн через металлические опорные листы.
4.1.11. В жилых зданиях высотой 10 этажей со смешанным шагом колонн в первом этаже главные балки-стенки среднего ряда и поперечные второстепенные балки-стенки рекомендуется выполнять спаренными, унифицированными с одиночными главными балками-стенками крайнего ряда.
4.1.12. При решении по п. 4.1.9 в жилых зданиях со смешанным шагом поперечных стен и соосном расположении осей колонн и несущих стен жилой части несущие балки-стенки могут иметь прямоугольное сечение и толщину в продольном среднем ряду и поперечном направлении не менее 2´20 см.
Наиболее целесообразно главные балки-стенки размещать вдоль продольной оси здания, а второстепенные - под поперечными стенами.
Для обеспечения надежного опирания на главные балки-стенки второстепенных балок-стенок и удобства конструирования узлов опирания на колонны главные балки-стенки следует принимать швеллерного сечения (рис. 11).
4.1.14. Спаренные
балки-стенки технического этажа должны быть связаны по верхним и нижним
горизонтальным границам металлическими сварными связями (из расчета три штуки
на
4.1.15. При решении по п. 4.1.13 одними из наиболее ответственных узлов конструкции каркаса являются узлы опирания второстепенных балок на главные. Для обеспечения их прочности и надежной работы главных балок-стенок и второстепенных в опорной зоне нагрузка от второстепенной на главную балку-стенку должна передаваться не менее чем в трех точках по высоте главной балки-стенки через металлические закладные детали.

Рис. 11. Сборное каркасное решение здания со смешанным шагом колонн:
а - схема расположения конструкций технического этажа;

б - разрезы
4.1.16. Для
обеспечения прочности стен жилых этажей
проемы в панелях первого жилого этажа по продольным осям здания следует
располагать не ближе
узлы пересечения главных и второстепенных балок располагать только в средних осях здания, не допускать их в крайних ячейках, примыкающих к торцевым стенам, в которых не возникает распор в главной балке-стенке;
во внешних продольных рядах (по наружным продольным осям) располагать колонны с малым шагом, чтобы второстепенные балки-стенки опирались на них наружной гранью;
узлы пересечения главных и продольных второстепенных поперечных балок-стенок располагать через один пролет между колоннами (в продольном ряду), не допускать их в соседних пролетах, обеспечить неразрезность главных балок-стенок на опорах.
4.1.18. В случае
несоблюдения ни одной из перечисленных в п. 4.1.17 конструктивных мер не
допускается в главной балке-стенке размещать проемы для прохода людей с
перемычками высотой менее
4.1.19. Проемы в балках-стенках для прохода людей рекомендуется располагать от торцов балок на расстоянии, равном не. менее чем половине высоты балки-стенки.
4.1.20. Для обеспечения общей прочности, жесткости и устойчивости конструкций первых нежилых этажей требуется:
создание пространственных диафрагм жесткости из плоских диафрагм лестничных клеток путем замоноличивания вертикальных стыков между диафрагмами и соединения диафрагм путем сварных закладных деталей;
создание дисков перекрытий над первым и техническим этажами с помощью сварных связей и замоноличивания швов между сборными плитами перекрытий;
обеспечение надежных связей путем сварки и замоноличивания стыков между диском перекрытия и ядром жесткости;
защемление колонн в фундаментах подколонниках и закрепление их в уровне перекрытий, чтобы свободная длина колонн не превышала высоты одного этажа;
создание не менее чем в двух первых жилых этажах вертикальных диафрагм, идущих на всю ширину здания в каждом шаге поперечных несущих стен, путем соединения панелей, смежных по ширине здания, с помощью сварных горизонтальных связей и замоноличивания внутренних вертикальных стыков.
При решении по п. 4.1.9 конструкция технического этажа должна представлять собой жесткую систему из соединенных между собой балок-стенок обоих направлений. В вертикальных стыках балок-стенок перпендикулярных направлений следует предусматривать не менее трех сварных соединений.
4.2.1. Расчет жилых зданий со встроенными каркасными нижними этажами на вертикальную и горизонтальную (ветровую) нагрузки допускается вести независимо. Горизонтальную нагрузку рекомендуется передавать на диафрагмы лестнично-лифтовых узлов.
4.2.2. При расчете на вертикальные нагрузки несущую систему каркаса нижних нежилых этажей рекомендуется рассчитывать совместно с опирающимися на нее конструкциями верхних этажей. При расчете зданий, в которых колонны каркаса расположены соосно с несущими стенами жилых этажей, допускается из несущей системы выделять плоский фрагмент (диафрагму), состоящий из конструкций каркаса первого этажа, технического этажа и двух типовых жилых этажей, по верху которых приложена нагрузка от веса конструкций вышерасположенных этажей. При расчете зданий, в которых колонны каркаса расположены несоосно с несущими стенами жилых этажей (конструкции по п.п. 4.1.13-4.1.17), необходимо использовать пространственные расчетные модели, выделяя для расчета пространственный фрагмент, включающий плоские диафрагмы одного или двух соседних пролетов.
4.2.3. Выбранный плоский либо пространственный фрагмент рекомендуется рассчитывать как составную плоскую либо пространственную многоэтажную балку-стенку с использованием метода конечного элемента.
Пространственные фрагменты, а также плоские диафрагмы при соосном расположении колонн допускается рассчитывать в упругой стадии на распределенную вертикальную нагрузку от вышележащих этажей.
При разработке расчетной схемы МКЭ (рисунки 12, 13) рекомендуется:
стойки каркаса моделировать связями конечной жесткости, учитывающими также податливость основания;
модель разбивать на прямоугольные элементы, чтобы размеры простенков и перемычки были кратны размерам сетки;
платформенный стык моделировать в виде прямоугольных элементов толщиной, равной средней толщине верхней и нижней панелей, с модулем упругости, который является обратной величиной податливости платформенного стыка на сжатие:
в плоскую расчетную модель включать горизонтальные связи между конструкциями, расположенными вдоль одной оси. Для средних пролетов колонн с двух сторон включать горизонтальные связи по низу и верху балки-стенки, моделирующие распор в балках-стенках, расположенных вдоль одной оси;
в пространственных расчетных моделях между конструкциями взаимно перпендикулярных направлений в уровне перекрытий, а также по высоте этажа включать связи сдвига, образуемые закладными деталями;
при отношении высоты балки к ее длине менее 1/6 горизонтальный шов между панелью жилого этажа и балкой моделировать двумя рядами точек для учета раскрытия шва;
при наличии оси симметрии в расчет включать часть фрагмента до оси симметрии, учитывать работу отрезанной части выполнением краевых условий на оси симметрии.

Рис. 12. Плоская расчетная схема диафрагмы

Рис. 13. Пространственная расчетная схема диафрагмы
4.2.4. Для несоосных конструкций, описанных в п.п. 4.1.13-4.1.17, после определения при расчете по пространственной расчетной схеме опорных реакций второстепенной балки-стенки, сосредоточенной силы, приходящейся на главную балку-стенку, рекомендуется провести расчет плоского фрагмента, включающего главную балку-стенку, с учетом нелинейной работы железобетона и раскрытия трещин согласно требованиям п. 1.31 СНиП 2.03.01-84.
При
этом максимальную ширину раскрытия трещин следует ограничить
4.2.5. При использовании для расчета упругих расчетных схем или при назначении начального армирования для неупругих расчетных схем прочность диафрагм, включающих каркас первых этажей, следует проверять по интегральным значениям усилий в основных сечениях. Наиболее напряженные участки конструкций следующие:
опорные участки балок-стенок (главных либо второстепенных) и колонн, проверяемые на смятие;
крайние участки стеновых панелей первого жилого этажа, проверяемые на сжатие в зоне горизонтального стыка, перемычки дверные или оконные, проверяемые на действие поперечной силы и растяжение;
перемычки балок-стенок технического этажа (верхние и нижние) в зоне проемов (для прохода людей), проверяемые на поперечную силу и момент, действующие в этом сечении;
горизонтальное и вертикальное сечения в середине главной балки-стенки, где на нее опирается второстепенная балка-стенка, проверяемые на растяжение и срез;
при отношении высоты балки к ее длине менее 1/6 (для малого шага колонн) связи между балкой и стеновой панелью первого жилого этажа, расположенные в ее центральной части, равной 2/3 длины, и проверяемые на растяжение и сдвиг.
4.2.6. Усилия в диафрагме, включающей каркасы первых этажей, рекомендуется определять для двух расчетных случаев: при максимально и минимально возможных величинах податливости горизонтальных (платформенных) стыков на сжатие. Первый случай возможен при зимнем производстве работ и монтаже панелей по «маякам», второй - при монтаже без маяков и исключении зимнего производства работ. Расчет по первому случаю дает наибольшие усилия в балках-стенках (балках) технического этажа, по второму - в панели первого жилого этажа.
4.2.8. Среднее давление в зоне горизонтального стыка в уровне пола
первого жилого этажа и поперечную силу в перемычке балки-стенки либо в балке
технического этажа рекомендуется определять исходя из того, что зона передачи
нагрузки от панели первого жилого этажа на балку-стенку (либо балку с
отношением высоты к пролету более или равным 1/6) имеет длину, равную 1,2
высоты балки-стенки (балки), при отсутствии в ней проемов с перемычками высотой
менее

Рис. 14. Расчетная модель для приближенного метода расчета
4.2.9. При отношении высоты балки каркаса к ее длине менее 1/6 и выполнении требований п. 4.1.8. длину зон передачи нагрузки от панели жилого этажа на балку рекомендуется принимать равной 1,2 высоты балки, при невыполнении требований п. 4.1.8 - 0,9 высоты балки.
4.2.10. Максимальная величина растягивающей силы, действующей на балку-стенку (балку) каркаса, на стадии разработки архитектурно-планировочных решений может определяться из условия: Т ≤ 0,6 N, где N - величина опорной реакции.
4.2.11. Расчетную длину колонн рекомендуется принимать в зависимости от жесткости узлов между балками-стенками и колонной, жесткости дисков перекрытий, наличия диафрагм жесткости, но не менее высоты первого этажа.
4.2.12. Колонны каркаса должны рассчитываться на вертикальную нагрузку, приложенную в сечении с учетом случайного эксцентриситета, величина которого определяется по СНиП 2.03.01-84.
При несущих наружных стенах жилой части здания нагрузки от них передаются через продольные балки переходной конструкции на колонны крайнего ряда первого нежилого этажа. При навесных наружных стенах нагрузки от них передаются в уровне каждого этажа через поперечные балки-стенки на колонны, расположенные вдоль поперечной оси здания.
4.2.13. Диафрагма лестничных клеток должна рассчитываться на действие поперечной силы и момента от горизонтальной (ветровой) нагрузки, действующей на фронт здания, длиной, равной расстоянию между лестничными клетками, и вертикальную нагрузку, а вертикальные стыки между плоскими диафрагмами - на действующие в вертикальной плоскости сдвигающие усилия.
4.3.1. При назначении конструктивного армирования колонн, ригелей, балок и балок-стенок каркаса первых встроенных этажей должны соблюдаться требования, изложенные для соответствующих элементов в СНиП 2.03.01-84.
4.3.2. Вертикальная арматура в колоннах должна подбираться как симметричная для сжатых элементов с учетом случайного эксцентриситета.
4.3.3. Расчетом должно быть проверено армирование всех наиболее напряженных участков каркасной конструкции первого этажа (см. п.п. 3.2.5, 3.2.6).
4.3.4. Опорные участки балок и балок-стенок (зона опирания их на колонны первого этажа) должны армироваться горизонтальными опорными сетками. Диаметр арматуры, составляющей сетки, и ее шаг должны быть проверены расчетом по СНиП 2.03.01-84.
4.3.5. Характер армирования приопорных зон балок, ригелей и балок-стенок по высоте зависит от длины зоны передачи нагрузки на них от панели первого жилого этажа, которая определяется с учетом рекомендаций п. 4.2.6 либо исходя из общего расчета диафрагм по МКЭ, либо приближенно в соответствии с рекомендациями п. 4.2.7-4.2.9 (см. рис. 15).
4.3.6. Если l < 1,2 Н (см. рис. 15), что возможно в случае запрещения зимнего производства работ, проверку прочности опорного сечения допускается производить по формулам п. 3.34 СНиП 2.03.01-84 как для короткой консоли.
Если Q ≤ 2,5 Rвt в H0, расчет на поперечную силу не требуется. Поперечное армирование ставится конструктивно.
Предельная величина поперечной силы для балок в крайних пролетах определяется как Q ≤ 3,5 Rвt в H0, для балок в средних пролетах при возможности восприятия распора (сжимающей силы) - Q ≤ 5 Rвt в H0.
Для этого случая основное армирование - горизонтальные стержни, вертикальное армирование назначается конструктивно. Величину lsup в формуле (86) СНиП рекомендуется определять как lsup = l/2 а угол
(обозначения по рис. 15).
4.3.7. Для балок-стенок выше
(4.1)
где Уj - расстояние от низа балки до сечения j.
4.3.8. Длина горизонтальных стержней в опорной зоне балки в сечении j определяется как:
lj,0 = lоп + lj,sup + lап, (4.2)
где lап - длина заведения стержней за нормальное к продольной оси элемента сечение, в котором они учитываются, определяемая по формуле (186) СНиП; lап принимать не более lj,sup ,
4.3.9. При l > 1,2 H и θ ≤ 45° прочность опорного сечения следует проверять исходя из расчета по наклонным сечениям как для балочной конструкции по формулам (3.29)-(3.32) СНиП 2.03.01-84. При этом С0 ≤ l/2. Для балок, расположенных в средних пролетах (при наличии распора), при определении Qб по формуле (76) СНиП следует учитывать значение In по формуле (78) СНиП, где N равно величине распора.
4.3.10. Если в балках-стенках имеются проемы для прохода людей, перемычки проемов рекомендуется армировать как балки на максимальную величину поперечной силы, которая действует в сечении перемычки. Поперечную силу следует распределять между верхней и нижней перемычкой пропорционально площадям сечения. С учетом того, что в перемычке в растянутой зоне Qб = 0, поперечная сила в ней должна быть снижена на 30 % и на столько же увеличена поперечная сила в перемычке сжатой зоны.
4.3.11. Сквозное горизонтальное армирование балок, ригелей и балок-стенок должно определяться как для изгибаемых элементов на действие момента и растягивающей силы (п. 4.2.10).
4.3.12. Горизонтальное сечение главной балки-стенки (при решении по п. 4.1.13) в месте опирания второстепенной балки-стенки должно армироваться вертикальными стержнями, рассчитываемыми на растяжение от действия реакции от второстепенной балки-стенки.
4.3.13. При отношении высоты балки к ее длине менее 1/6 по верхней опорной грани балки в средней ее части, составляющей 2/3 от длины, рекомендуется устанавливать закладные детали либо выпуски пространственных каркасов, которые должны быть проверены на растягивающее и сдвигающее усилие в горизонтальном шве между балкой и опирающейся на нее панелью (рис. 15). Это увеличивает длину зоны передачи вертикальной нагрузки на балку от стен типовых этажей (см. п. 4.2.9).
4.3.14. При нормальной жесткости шва между балкой и панелью второго этажа и l ≤ 1,2 Н проверку на действие растягивающей силы можно проводить по следующей методике.
Предельно допустимая горизонтальная растягивающая сила Тv, действующая при отсутствии вертикальной силы, определяется из условия, что она воспринимается только горизонтальной арматурой:
(4.3)
где i - число горизонтальных арматурных стержней;
Asi - площадь сечения стержня i;
Rsi - расчетное сопротивление растяжению стержня i.
В расчете следует учитывать только стержни, идущие на всю длину ригеля.
При заданных значениях внешней горизонтальной растягивающей силы Т и вертикальной силы N прочность ригеля обеспечена, если
(4.4)
где N0 - величина вертикальной нагрузки, воспринимаемая опорным сечением балки, заармированным согласно требованиям п.п. 4.3.6-4.3.10 без учета растягивающей силы;
L - пролет балки.
Применение формулы (4.4) допустимо при 0,07 ≤ H/L ≤ 047
При N/Nv = 1 из формулы (4.4) следует:
T/Tv ≤ 5(0,47 - H/L). (4.5)
При отношении высоты ригеля к длине, равном Н/L = 1/2,5 и H/L = 1/6, допустимо определять прочность ригеля по графикам на рис. 16.
Рис. 15. Армирование балок и стен при малом шаге колонн

Рис. 16. График зависимости Т от N при Н/L = 1/6 и Н/L = 1/2,5
4.3.15. Особое внимание должно быть уделено конструированию и армированию узлов пересечения главных и второстепенных балок (см. рис. 19) либо балок-стенок, особенно усилению мест анкеровки горизонтальной арматуры (путем установки анкеровочных шайб, приварки закладных деталей, перепусков арматуры) и восприятия поперечной силы, возникающей от опирания второстепенной балки (см. рис. 17).

Рис. 17. Узел пересечения главной и второстепенной балок для малого шага колонн
4.3.16. Пример армирования главной балки-стенки при смешанном шаге колонн для решения по п. 4.1.13 показан на рис. 18.
4.3.17. Внутренние и наружные стены первого жилого этажа в зданиях без технического этажа должны проверяться расчетом и могут иметь усиленное армирование перемычек и опорных зон (рис. 19).
5.1. Сравниваемые варианты встроенных и отдельно стоящих объектов культурно-бытового назначения должны приводиться в сопоставимый вид по назначению, объемно-планировочным и конструктивным решениям.

Рис. 18. Армирование главной балки-стенки при смешанном шаге колонн
Рис. 19. Армирование внутренних стеновых панелей (а) и наружных стен (б) первого жилого этажа
В расчетах также необходимо учитывать:
а) для встраиваемых помещений культурно-бытового назначения - выбытие жилого фонда при использовании первых этажей жилых зданий и повышение плотности жилой застройки микрорайона;
б) для отдельно стоящих объектов - наружные коммуникации и стоимость территории.
5.2. Сравнение вариантов строительства объектов культурно-бытового назначения следует выполнять по приведенным затратам
(5.1)
где Сi - себестоимость строительно-монтажных работ по i варианту, руб/м2;
Ен - нормативный коэффициент сравнительной эффективности капитальных вложений, равный 0,12;
Кi - капитальные вложения в основные и оборотные фонды строительных организаций и в производство строительных конструкций по i варианту, руб.год/м2;
Mi - годовые эксплуатационные затраты, руб./год/м2;
Tн - расчетный период, в течение которого учитываются эксплуатационные расходы, год.
В
качестве расчетной единицы следует принимать
5.3. При сравнении необходимо учитывать основные конструктивные элементы - наружные и внутренние стены, колонны, ригели, плиты перекрытия и покрытия, балки-стенки, фундаменты, кровлю.
5.4. При проектировании объектов культурно-бытового назначения себестоимость строительно-монтажных работ (стоимость изготовления конструкций, транспортные затраты и монтаж на строительной площадке) следует рассчитывать по [6], а при их строительстве - по фактическим затратам предприятий и организаций.
Удельные капитальные вложения следует определять по [7], эксплуатационные затраты - по СНиП 2.04.05-86 «Отопление, вентиляция и кондиционирование» и СНиП II-3-79 «Строительная теплотехника».
5.5. Наиболее экономично 9-10-этажное здание со встроенными помещениями культурно-бытового назначения, выполненными с использованием панельных конструктивных элементов. Стоимость основных конструкций при таком варианте почти на 20 % ниже, чем при решении первого встроенного этажа в каркасе, что достигается, главным образом, за счет снижения расхода бетона в 1,5 раза и металла почти в 6 раз.
5.6. Самым неэкономичным вариантом строительства первых встроенных этажей является решение с использованием сборно-монолитного стола. Приведенные затраты, а также удельные расходы бетона и металла в данном варианте значительно выше, чем в панельном и каркасном.
5.7. Встроенные помещения в панелях (в большей степени) и каркасе экономичнее по приведенным затратам (до 30 %) отдельно стоящих зданий за счет следующих факторов:
- снижения удельного расхода материалов по фундаментам и крыше на единицу площади;
- значительной стоимости коммуникаций, подводимых к отдельно стоящему зданию;
- экономии городской территории.
Ориентировочный расход
основных материалов в расчете на
Расход основных материалов на
|
Варианты строительства нежилых помещений |
Расход материалов |
|||
|
бетон, м3 |
металл, кг |
|||
|
на здание со встроенным нежилым этажом |
на нежилой этаж |
на здание со встроенным нежилым этажом |
на нежилой этаж |
|
|
Встроенное в панельных конструкциях при высоте этажа |
0,89 |
0,07 |
29,8 |
3,5 |
|
Встроенное в каркасе (сборно-монолитный стол) |
0,92 |
0,1 |
48,3 |
22,0 |
|
Отдельно стоящие (жилое + общественное) |
0,87 |
0,05 |
28,3 |
2,0 |
|
ГСПД, каркасный вариант |
0,91 |
0,09 |
41,5 |
15,2 |
Пример 1. Проверить
прочность основных сечений и место возможного разрушения панели нижнего этажа в
модели двухэтажного фрагмента диафрагмы в 1/2 натуральной величины (рис. П.1), испытанной в ЦНИИЭП жилища в
Исходные данные: L =
Проверяем прочность перемычки по формуле (3.4):
т.е. хрупкого разрушения по перемычке не
ожидается.
По (3.14) минимальная толщина панели первого этажа:
![]()
Толщина стены панели нижнего
этажа, принятая
Максимально допустимая ширина раскрытия проема по (3.11):
![]()
Фактически в
модели принято l =
Определяем форму разрушения панели:
по(3.5):
![]()
по (3.6): ![]()
по (3.7): ![]()
По (3.9) проверяем возможность разрушения по сечению I-I:

Поскольку ξ2 = 0,2074 < 0,88, разрушение панели нижнего этажа по расчету ожидается по сечению II-II. Фактически разрушение также произошло по сечению II-II.

Рис. П. 1. Модель диафрагмы здания в 1/2 натуральной величины
Пример
2. Проверить прочность основных
сечений и определить место разрушения модели фрагмента диафрагм в 1/2
натуральной величины, испытанного в
Исходные
данные: L =
![]()
Минимальная толщина стены панели 1-го этажа по (3.14):
![]()
т.е. толщина панели достаточна.
Прочность перемычки по (3.4):
![]()
т.е. по расчету возможно хрупкое разрушение опорной зоны перемычки по наклонной толщине.
![]()
По (3.9) проверяем возможность разрушения по сечению I-I:

- прочность по сечению I-I достаточна, разрушение ожидается по сечению II-II.
По (3.11):
l = 2,88´0,4 »
В натуре в модели раскрытие проема (
Пример 3. Проверить прочность диафрагмы жилого здания с малым шагом поперечных стен, имеющей в панели первого этажа (серия общественных зданий 1.090) арочный проем.
Исходные данные: L =
Проверка прочности перемычки по (3.4):
![]()
т.е. разрушения перемычки не ожидается.
![]()
Проверяем возможность разрушения по сечению I-I по (3.9):

= 0,27 < 0,28
Сравниваемые значения близки, поэтому возможно разрушение по сечению II-II либо по сечению I-I.
При разрушении по сечению I-I по (3.10):
![]()
при разрушении по сечению II-II по (3.11):
![]()
Для
симметричного проема - ξ1 = ξ1c = 0,74. Максимально возможная ширина
проема lmax = 0,74´6 =
Проверка толщины панели первого этажа по (3.14):
![]()
т.е. толщина панели первого этажа достаточна.
Таким образом, прочность диафрагмы при заданной нагрузке обеспечена.
Пример 4. Определить максимально возможную ширину
раскрытия проема в панели первого этажа при его симметричном расположении и
отсутствии проема во 2-ом этаже. Здание с малым шагом поперечных стен при
высоте первого этажа
Исходные
данные: L =
Проверка условия прочности перемычки по (3.4):
![]()
т.е. нет опасности хрупкого разрушения перемычки.
Максимальная ширина раскрытия проема при разрушении по сечению I-I по (3.10):
- возможно при выполнении условия по (3.9):
![]()
При этом: h ≥ 0,1754´6,6 »
При
h =
При разрушении по сечению II-II по (3.11):
![]()
При
высоте 1-го этажа
![]()
По формуле (3.11):
![]()
Выполняем проверку минимальной толщины панели по (3.14):
![]()
Таким образом, толщина панели, равная
Следовательно,
при высоте первого этажа
При
высоте 1-го этажа
Пример 5. Требуется проверить прочность опорного сечения перемычки панели первого этажа на действие поперечной силы и определить площадь сечения хомутов.
Исходные
данные: панель 1-го этажа с
прямоугольным очертанием проема, высота панели
Согласно п. 3.3.5 рассчитываем
перемычку как короткую консоль: lsup = lоп/2 =
Среднее давление:
кН/м.
Поперечная сила:
Q = 1105,1´0,5 = 552,6 кН.
Поскольку 3,5 Rвtвh0 = 3,5´765´0,22´0,95 = 559,6 кН > 552,6 кН и 2,5 Rвtвh0 = 2,5´765´0,22´0,95 = 399,7 кН < Q = 552,6 кН, проверяем прочность консоли на условия:
lsup =

Армирование перемычки конструктивное, так как:
= 0,8´867´10´0,22´0,5´0,8942 = 609,8 кН > Q = 552,6 кН, т.е. прочность наклонной полосы достаточна без
расчетного армирования (
= 0).
При возможности зимнего
производства работ и длине опорной зоны lоп =
кН/м; Q = 896´1 = 896 кН.
Предельная величина поперечной силы: Q ≤ 0,35 Rввh0 = 0,35´10´867´0,22´0,95 = 634 кН < Q = 896 кН, т.е. прочность сечения недостаточна.
Необходимо повысить класс бетона до В25. Тогда Rв = 1480 т/м2, Rвt = 107 т/м2, Q ≤ 0.35 Rввh0 = 0,35´10´1480´0,22´0,95 = 1082 кН > Q = 896 кН.
При двухветвевых
хомутах Æ
Rsw = 3000 кг/см2, Asw = 1,57 см2, т/м;
т/м;
м (см. п. 3.3.6);
м;
Qsw = 47,1´0,95 = 44,7 = 447 кН;
кH;
Q = Qsw + Qв = 447 + 447 = 894 кН » Q = 896 кН.
При заданном армировании прочность опорного сечения перемычки обеспечена.
Пример 1. Проверить прочность опорного сечения балки (ригеля) каркаса первого этажа и определить площадь сечения хомутов.
Исходные
данные: пролет
Согласно п. 4,3,6 рассчитываем опорное сечение балки как короткую консоль:
м; ![]()
Максимальная поперечная сила из условия разрушения по сжатому подкосу без учета армирования:
кН.
Проверка балки крайнего пролета. Определяем среднее давление в зоне контакта балки и панели:
кН/м.
Поперечная сила в опорном сечении: Q = 1605´0,54 = 867 кН.
Максимальная поперечная сила при отсутствии сжимающей силы - распора:
Qmax ≤ 3,5 Rвtвh0 = 3,5´765´0,4 х 0,95´0,9 = 915 кН.
Действующая поперечная сила Q = 867 кН < Qmax = 915 кН и Q = 867 кН < Qкон = 1100 кН.
Прочность сечения балки достаточна, армирование конструктивное.
Проверка балки среднего пролета. Определяем среднее давление в зоне контакта балки и панели:
кН/м.
Поперечная сила в опорном сечении:
Q = 2408´0,54 = 1300 кН.
Максимальная поперечная сила при наличии сжимающей силы (распора):
Q ≤ 5 Rвtвh0 = 5´765´0,4´0,95´0,9 = 1308 кН > Q = 1300 кН, но Q = 1300 кН > Qкон = 1100 кН - необходимо горизонтальное армирование.
Принимаем шаг хомутов Sw =
![]()
![]()
С учетом армирования
Qкон ≤ 0,8 Rввlsupsin2θ (1 + 5αμw) = 1100´(1 + 5´7,4´5,65´10-3) = 1100´1,209 = 1329 кН > Q = 1300 кН.
Принятое армирование достаточно.
Пример 2. Определить величину разрушающей нагрузки, ширину раскрытия трещин, схему разрушения и перемещения, эффективность армирования железобетонного ригеля каркаса первого этажа при нагружении его панелями типовых этажей.
Исходные данные: длина ригеля
L =
Материал конструкции: бетон класса В25, Eв = 30000 МПа, Rв = 18,5 МПа, Rвt = 1,60 МПа. Продольная арматура класса АIII, поперечная - АI.
Ригель имеет уменьшенное к верху горизонтальное армирование и пониженное в пролете вертикальное армирование (см. рис. П.2).
Вертикальная распределенная нагрузка приложена к приопорным зонам ригеля. Трапециевидный характер распределения вертикальной нагрузки и геометрические размеры зоны нагружения были получены на основе расчетов двухэтажных фрагментов.
Расчеты осуществлялись с применением программного комплекса РАДУГА [4, 5], который предназначен для численного моделирования процесса нелинейного деформирования и разрушения железобетонных конструкций при плоском напряженном состоянии методом конечных элементов. Программный комплекс использует анизотропную модель работы бетона и железобетона, которая учитывает влияние вида плоского напряженного состояния бетона на его прочностные и деформативные свойства, нелинейный характер зависимости « (σ - ε» для бетона и сжатой арматуры, нисходящую ветвь в работе бетона, образование и раскрытие трещин, нелинейные деформации арматуры и возможность ее разрыва в трещине, нарушение совместности деформаций бетона и арматуры.
Особенностью построения алгоритма программного комплекса является определение физических параметров анизотропной модели железобетона в зависимости от деформаций, что позволило построить устойчивый шагово-итерационный процесс расчета и определить несущую способность конструкции.
Программный комплекс завершает работу на одном из шагов нагружения при невозможности найти равновесное состояние системы, что выражается в скачкообразном росте перемещений (на два-три порядка) отдельных точек расчетной схемы конструкции при возрастании нагрузки всего на 3-5 %.
Для сокращения времени счета и из-за симметричности рассматриваемой конструкции в расчет вводилась половина ригеля, а влияние отсеченной части иммитировалось абсолютно жесткими горизонтальными связями. Закрепление опор ригеля - шарнирное (см. рис. П.2).
Расчетная модель разбивалась на прямоугольные конечные элементы, при этом соблюдались два основных требования:
1) число конечных элементов по вертикали и горизонтали не должно сильно отличаться друг от друга;
2) соотношение сторон конечного элемента не должно превышать 4.
Было сделано два варианта расчета ригеля. В первом варианте ригель рассчитывался на действие только вертикальной нагрузки, во втором - на совместное действие вертикальной и горизонтальной нагрузок.
Вариант 1. Ригель загружался только вертикально распределенной нагрузкой. Нагружение производилось однопараметрически, приращение нагрузки на один шаг составляло 0,594 МН. Величина нормативной нагрузки равнялась 2,376 МН.
Разрушение балки произошло при нагрузке Nраз = 5,04 МН, коэффициент запаса при этом был равен
![]()
Ригель разрушался от смятия бетона опорной зоны, вблизи опорной зоны образовались вертикальные трещины (рис. П.3).
Максимальные
перемещения (прогибы) ригеля были равны: при нормативной нагрузке Wy =
Незначительная величина перемещений обусловлена характером нагружения: нагрузка концентрируется по краям.
Первые трещины появились у зон опирания ригеля на колонны при нагрузке N = 1,782 МН.
Рис. П. 2. Ригель:
а - расчетная схема; б - армирование
Рис. П. 3. Схема трещинообразования и разрушения ригеля

Рис. П. 4. Эпюры растягивающих напряжений σsx в горизонтальной арматуре на шаге перед разрушением (N = 4,44 МН)
Ширина
раскрытия трещин при нормативной нагрузке составляла αcrс =
Анализ нормальных напряжений σsx в горизонтальной арматуре показывает, что наличие надопорной продольной арматуры по высоте ригеля существенно уменьшает напряжения в нижней горизонтальной арматуре (рис. П.4). Максимальные напряжения в нижней рабочей арматуре при нормативной нагрузке были равны σsx = 150,8 МПа. При нагрузке, близкой к разрушающей, напряжения в арматуре приближаются к пределу текучести (максимальные напряжения на шаге перед разрушением равны σsx = 378,5 МПа при Rst = 390 МПа). Из эпюр видно, что горизонтальная опорная арматура также работает на восприятие растягивающих усилий, при этом стержни загружены неодинаково: в верхних - величина напряжения σsx меньше, в нижних - больше, что подтверждает целесообразность использования переменного по высоте горизонтального армирования.
Вертикальные (поперечные) стержни (хомуты) рекомендуется ставить только в опорной зоне, так как здесь они сжаты по всей высоте, а в пролете усилия в них практически равны нулю (рис. П.5). Неэффективность вертикальной арматуры объясняется тем, что она не пересекает вертикальные трещины, которые образуются в процессе нагружения ригеля.
Максимальное значение нормальных напряжений в ригеле при расчетной нагрузке равно σу = 14,3 МПа, а на шаге перед разрушением σу = 20,5 МПа (рис. П.6), что превышает призменную прочность бетона Rв = 18,5 МПа. Это свидетельствует о включении в работу косвенной горизонтальной арматуры опорной зоны. Сравнение полученной в результате такого расчета величины максимальной поперечной силы с величиной этой силы, полученной по формуле СНиП 2.03.01-84 (Qmax ≤ 3,5 Rвtвh0) показывает, что в нашем расчете численный коэффициент равен:
(а не 3,5).
По характеру распределения эпюр σу видно, что поток сжимающих усилий сужается по высоте ригеля от верхней грани к опоре, а величины сжимающих напряжений возрастают.
Из эпюр касательных τху (рис. П.7) и нормальных напряжений τх (рис. П.8) видно, что к середине пролета высота сжатой зоны ригеля уменьшается, при этом величины растягивающих напряжений в нижней продольной арматуре возрастают.

Рис. П. 5. Эпюры напряжений σsу в вертикальной арматуре (хомутах) на шаге перед разрушением
Вариант 2. Ригель нагружался вертикальной и горизонтальной растягивающими нагрузками. Горизонтальная нагрузка задавалась равномерно распределенной по верхней грани балки на участках приложения вертикальной нагрузки.
Горизонтальная растягивающая нагрузка была вызвана действием сил трения, возникающих в зоне контакта составной системы между панелью 2-го этажа и балкой, а также усилиями, возникающими в закладных деталях.
Загружение, как и в первом варианте расчета, осуществлялось однопараметрически; отношение горизонтальной нагрузки к вертикальной Т/N = 1/4. Цель расчета - выявить влияние растягивающих усилий, распределенных по верхней грани ригеля, на его работу.
Разрушение ригеля произошло как в первом варианте - от смятия бетона опорной зоны (см. рис. П.3). Разрушающие нагрузки - Nраз = 5,04 МН и Траз = 1,26 МН.
Максимальные
перемещения (прогибы) ригеля следующие: при нормативной нагрузке Wу =
Трещины
образовались у зон опирания ригеля на опоры при нагрузках N = 1,8 МН и Т = 0,45 МН. Ширина раскрытия трещин при нормативной нагрузке -
αcrc =
Рис. П. 6. Эпюры нормальных напряжений σу на шаге перед разрушением (N = 4,44 МН)
Анализ напряжений в горизонтальной арматуре σsx (рис. П.9) показывает, что на шаге перед разрушением горизонтальная сила Т воспринимается горизонтальной арматурой над опорной зоной ригеля (максимальные напряжения на шаге перед разрушением при N = 4,44 МН и Т = 1,11 МН равны σsx = 384 МПа) и продольной верхней и нижней арматурой. При этом, если в нижней рабочей арматуре σsx = 111,3 МПа, что меньше предела текучести арматуры Rst = 390 МПа, то в верхней напряжения превышают предел текучести σsx = 450,4 МПа. Максимальные растягивающие напряжения в горизонтальной арматуре при расчетной вертикальной нагрузке равны σsx = 41,1 МПа. Горизонтальная опорная арматура загружена по высоте балки более равномерно, чем при действии только силы N.
Рис. П. 7. Эпюры касательных напряжений τxу на шаге перед разрушением (N = 4,44 МН)
При горизонтальной растягивающей силе Т изменяется характер распределения напряжений в хомутах: над опорой, как в первом случае, они работают на сжатие, затем эпюра становится двухзначной, а еще дальше от опор хомуты оказываются полностью растянутыми (σsу = 380,4 МПа на шаге перед разрушением). Ближе к середине пролета хомуты практически не работают (рис. П.10).
Рис. П. 8. Эпюры нормальных напряжений σх на шаге перед разрушением (N = 4,44 МН)
Влияние силы Т приводит к более равномерному распределению нормальных напряжений σу по высоте и длине балки по сравнению с первым вариантом (рис. П.11).
Максимальное напряжение на шаге перед разрушением равно σу = 13,74 МПа при Rв = 18,5 МПа.
В предельном состоянии на участках приложения вертикальной нагрузки ригель по высоте испытывает усилия сжатия - растяжения, а ближе к центру пролета работают лишь зоны расположения нижней и верхней горизонтальной арматуры (рис. П.12).
Касательные напряжения τху имеют место в нормальных сечениях вблизи опор (рис. П.13) и распространяются примерно на ту же длину, что нормальные напряжения σу (см. рис. П.6).

Рис. П. 9. Эпюры растягивающих усилий σsx в горизонтальной арматуре на шаге перед разрушением (N = 4,44 МН и Т = 1,11 МН)
По результатам расчета можно сделать следующие выводы:
- прочность ригеля при данном армировании обеспечена. Разрушающие нагрузки в первом и во втором вариантах Nраз = 5.04 МН.
Tраз = 1,26 МН, ![]()
- перемещения
ригеля незначительны и при нормативной нагрузке равны в первом варианте Wy =
- величины раскрытия трещин при нормативных нагрузках в обоих случаях не превышают допустимых
- постановка горизонтальной арматуры в опорных зонах ригеля повышает его несущую способность и трещиностойкость, так как арматура воспринимает Пуассоново расширение, возникающее от сжатия бетона, и частично горизонтальную нагрузку;
- характер распределения напряжений σsx подтверждает эффективность переменного по высоте горизонтального армирования опорных зон ригеля;
Рис. П. 10. Эпюры напряжений σsу в вертикальной арматуре (хомутах) на шаге перед разрушением (N = 4,44 МН и Т = 1,11 МН)
- рациональность сквозной горизонтальной арматуры подтверждается тем, что напряжения в ней на шаге перед разрушением близки к пределу текучести: в первом варианте в нижней, а во втором (при совместном действии N и T) - в верхней горизонтальной арматуре; наличие силы Т меняет характер работы вертикальных сечений балки;
- постановка вертикальной арматуры малоэффективна, она должна назначаться по конструктивным соображениям;
- косвенное армирование зон опирания ригеля на колонну обязательно и должно назначаться по результатам расчета.
Рис. П. 11 .Эпюры нормальных напряжений σу на шаге перед разрушением (N = 4,44 МН и Т = 1,11 МН)
Для выявления
влияния горизонтальной растягивающей силы Т
на несущую способность ригеля была проведена серия расчетов на совместное
действие сил Т и N при различных соотношениях T/N . Увеличение соотношения Т/N приводит к уменьшению прогибов балки (так,
при Т/N = 1/20 Wy =
Рис. П. 12. Эпюры нормальных напряжений σх на шаге перед разрушением (N = 4,44 МН и Т = 1,11 МН)
Наличие горизонтальной растягивающей силы при Т/N ≤ 1/4 повышает несущую способность конструкции (рис. П.15). Разрушение при этом происходит либо по опорной зоне ригеля (сжатие бетона), либо по вертикальному сечению приопорной зоны. При дальнейшем увеличении соотношения Т/N разрушение происходит от разрыва бетона и арматуры под действием горизонтальной нагрузки по вертикальному сечению.
Рис. П. 13. Эпюры касательных напряжений τху нa шаге перед разрушением (N = 4,44 МН и Т = 1,11 МН)
Рис. П. 14. Графики максимальных прогибов для различных соотношений Т/Ц
Рис. П. 15. Кривая прочности ригеля
2. Индустриальные конструкции первых нежилых этажей бескаркасных жилых зданий // Обзор. - М., 1988.
3. Пособие по проектированию жилых зданий (к СНиП 2.08.01-85 «Жилые здания»). - М., Стройиздат, 1989.
|
_________________________________________________________ |