ЦЕНТРАЛЬНЫЙ
ОРДЕНА ТРУДОВОГО КРАСНОГО ЗНАМЕНИ
НАУЧНО-ИССЛЕДОВАТЕЛЬСКИЙ И ПРОЕКТНЫЙ ИНСТИТУТ
ТИПОВОГО И ЭКСПЕРИМЕНТАЛЬНОГО ПРОЕКТИРОВАНИЯ ЖИЛИЩА
(ЦНИИЭП ЖИЛИЩА) ГОСКОМАРХИТЕКТУРЫ
СПРАВОЧНОЕ ПОСОБИЕ
К СНиП 2.08-01-89
СЕРИЯ ОСНОВАНА В 1989 ГОДУ
ПРОЕКТИРОВАНИЕ ЖИЛЫХ ЗДАНИЙ.
ОБЪЕМНО-ПЛАНИРОВОЧНЫЕ РЕШЕНИЯ
Москва Стройиздат 1991
Рекомендовано к изданию секцией архитектуры Научно-технического совета ЦНИЭП жилища Госкомархитектуры.
Редактор - Н.В. Лосева
Разработано к СНиП 2.08.01-89 «Жилые здания». Содержит общие положения, объемно-планировочные решения квартирных домов, квартир для массового жилищного строительства и общежитий. Изложены противопожарные требования к объемно-планировочным решениям помещений.
Для архитекторов и инженерно-технических работников проектных и строительных организаций.
В Пособии приведены специфические условия массового жилищного строительства в городах, поселках и сельской местности.
Оно должно помочь проектировщикам создавать решения, обеспечивающие функциональный комфорт проживания, высокий эстетический уровень жилища, улучшение технико-экономических показателей, сокращение теплопотерь и материалоемкости, а также учитывающие региональные условия и традиции.
В Пособии дается ряд примеров объемно-планировочных решений зданий и квартир, ориентирующих проектировщика на расширение палитры архитектурно-планировочных приемов, среди которых есть приемы, принятые в зарубежных странах, что поможет в ряде случаев отойти от установившихся в практике однотипных решений, развязать творческую инициативу архитекторов. В Пособии учитываются основная направленность массового жилищного строительства на повышение уровня унификации заводских изделий в крупнопанельном строительстве и ведение регионального проектирования в рамках единой системы унифицированных конструкций в стране. Приведенные примеры объемно-планировочных решений могут использоваться также в монолитном, сборно-монолитном исполнении, в сочетании монолита с кирпичом и другими мелкоштучными материалами, при проектировании домов из местных материалов.
Пособие разработано ЦНИИЭП жилища (кандидаты архит. Е. Д. Капустян, Р.П. Абрамова, д-р архит. В.К. Лицкевич, архитекторы Р.Н. Блашкевич, Т.И. Звездина, при участии кандидатов архит. Т.В. Афанасьевой, К.Н. Красильниковой, А.Г. Бочкаревой, Е.Ю. Пересветова, С.Ф. Наумова, В.Е. Мельникова, В.А. Рудаковой, А.С. Крупицкого, Е.С. Баженовой, архитекторов В.И. Маслова, Н.К. Царевой, Р.А. Султанова), ЦНИИЭПграждансельстроем (канд. архит. Л.М. Агаянц при участии архит. Е.Н. Степановой) и НПО «Лифтмаш» (инж. С.М. Ройтбурд).
Научное редактирование выполнено кандидатом архит. Е.Д. Капустян.
1.1. При проектировании мансардного этажа следует иметь в виду, что в нормируемую площадь помещения засчитывается лишь та часть, которая имеет высоту не ниже 1,6 м. Однако в практике используется и пониженная часть, где могут быть размещены встроенные шкафы, выдвижные емкости (ящики) для предметов домашнего обихода (рис. 1).
1.2. При определении этажности здания, в котором квартиры имеют перепад в пол-этажа, этажность следует принимать по более высокой части здания (рис. 2).
Рис. 1. Примеры использования пониженной части мансарды
Рис. 2. Схемы домов с квартирами, имеющими перепад в 1/2 этажа
а - в двух уровнях; б - в четырех; в - в пяти уровнях
1.3. При подсчете площади жилого здания следует учитывать, что в площади этажа здания включаются как отапливаемая, так и неотапливаемая его части: веранда, холодная кладовая; в одноквартирных и блокированных домах, кроме того, и тамбур, а в IV климатическом районе - неотапливаемая пристройка, если в ней размещаются помещения квартиры. Площадь помещений этой пристройки является составной частью нормируемой площади квартиры.
Подземные помещения
2.1. При проектировании сельского жилища следует учитывать, что для него характерно наличие под домом или вне его одного или нескольких подземных помещений, таких, как погреб, подполье, подвал (рис. 3).
Рис. 3. Типы подземных помещений
а - подполье; б - погреб; в – подвал
Погреб - это, как правило, отдельно стоящее сооружение, полностью заглубленное в землю, которое служит для круглогодичного хранения продуктов. Иногда погреб располагают под хозяйственной постройкой или под жилым зданием. Площадь погреба рекомендуется принимать не менее 4 м2, высоту - не менее 1,9 м. Вход в погреб осуществляется по стремянке или лестнице через люк размером не менее 60´80 см. Погреб вне жилого дома может наполняться льдом. Нельзя размещать над погребом помещения для скота и птицы.
Подполье - помещение для хранения (главным образом в зимнее время) овощей, солений, других продуктов, размещаемое под полом кухни или другого нежилого помещения первого этажа. Площадь подполья достаточна в пределах 4 - 6 м2, высота помещения - 1,2 - 1,9 м. Степень заглубления подполья в землю не регламентируется и зависит от высоты цоколя дома. Доступ в подполье осуществляется по стремянке через люк размером не менее 60´80 см.
Подвальный этаж может быть под всем или под частью здания. В одноквартирных и блокированных домах в подвале могут размещаться кладовые (для овощей, продуктов, инвентаря, топлива), гараж, сушильный шкаф (рис. 4). Вход в подвал организуется из передней, коридора, кухни или хозяйственного помещения. Помещения для хранения продуктов оборудуются естественной вентиляцией.
Площади помещений подвала целесообразно принимать, м2: топочной до 3, склада топлива 3 - 10, продуктовой кладовой 2 - 6, кладовой овощей 7 - 8, сушильного шкафа 0,6 - 1,2, кладовой хозяйственного инвентаря 1,5 - 4.
Устройство сушильного шкафа в подвале удобно и рационально при наличии там генератора тепла, что даст возможность обогрева и вентиляции шкафа.
Рис. 4. Примеры использования подвалов
а - площадью 37 м2: 1 - склад топлива 5,5 м2; 2 - рабочая кухня с котлом отопления 7,5 м2; 3 - продуктовая кладовая 6 м2; 4 - кладовая хозяйственного инвентаря 2 м2; 5 - гараж 16 м2; б - площадью 14 м2: 1 - продуктовая кладовая; 2 - мастерская 8 м2; в - площадью 26 м2: 1 - склад топлива 7 м2; 2 - топочная поквартирного отопления 3 м2; 3 - продуктовая кладовая 6 м2; 4 - хранилище для овощей и фруктов 10 м2; г - площадью 24 м2: 1 - склад топлива 4 м2; 2 - рабочая кухня, с котлом отопления 13 м2; 3 - продуктовая кладовая 5,5 м2; 4 - сушильный шкаф 1,5 м2
2.2. В одноквартирных и блокированных домах размер тамбура главного наружного входа в квартиру при проходе с поворотом следует принимать не менее 1,65´1,65 м. В районах с большим количеством снега рекомендуется открывать наружные двери внутрь здания.
Крыльца должны иметь площадку размером не менее 1,2´1,2 м с местом для детской коляски и скамьи, а также лестницу шириной не менее 1 м. Над крыльцом, включая ступени, необходимо устраивать козырек (покрытие).
В сельских жилых зданиях, расположенных по красной линии улицы, уровень пола квартир рекомендуется делать выше тротуара (или осевой линии проезда при отсутствии тротуара) не менее чем на 0,5 м. Определение конкретного уровня пола зависит от величины снежного покрова района строительства.
2.3. В жилых зданиях с отметкой пола верхнего этажа от уровня планировочной отметки земли менее 26,5 м допускается размещать мусоропроводы в лестничных клетках.
Мусоропровод можно располагать в любом месте лестнично-лифтового узла с учетом конкретного планировочного решения, удобства подхода и освещенности (рис. 5).
Рис. 5. Размещение мусоропровода в лестничной клетке при различной организации входа в здание
а, б - первый этаж; в - типовой этаж
С целью унификации заводских изделий для 5- и 9- 10-этажных зданий ствол мусоропровода целесообразно размещать в лестничной клетке и в зданиях высотой в 9 - 10 этажей. В более высоких зданиях мусоропровод в лестничных клетках устанавливать не допускается. Он может устанавливаться в выделенном либо открытом помещении рядом с лифтами и в коридорах.
При размещении мусоропровода в лестничной клетке загрузочные клапаны предусматриваются, как правило, на промежуточной площадке.
Ствол мусоропровода должен иметь условный проход не менее 0,4 м (рис. 6). Нижняя часть ствола мусоропровода перекрывается шибером. Высота от пола мусорокамеры до нижней части шибера должна быть в свету не менее 1,35 м.
Рис. 6. Схема устройства мусоропровода (а) и мусорокамеры (б); штриховкой показана граница размещения мусоропровода над полом мусорокамеры
Мусоросборную камеру следует размещать под стволом мусоропровода для непосредственной загрузки мусора из ствола в контейнеры, а также удобного подъезда мусоровозного транспорта.
Размеры и планировку камеры следует принимать с учетом размещения и обслуживания стандартных контейнеров - мусоросборников и установки санитарно-технического оборудования. Для перемещения контейнера устраивается пандус с уклоном не более 8 %.
Ограждающие строительные конструкции мусоросборной камеры должны быть дымо- и воздухонепроницаемыми.
Над входом в мусоросборную камеру предусматривается козырек.
Дверь мусоросборной камеры должна быть облицована с внутренней стороны листовой сталью, иметь по контуру плотный притвор и запорное устройство и открываться в сторону улицы.
В I климатическом районе, IIА и IVА климатических подрайонах следует применять две двери. Ширина дверного проема предусматривается не менее 1,2 м.
Пол мусоросборной камеры должен быть водонепроницаемым. Отметка пола должна возвышаться над уровнем тротуара или примыкающей к ней проезжей части дороги на 0,05 - 0,1 м. Рекомендуется облицовка пола метлахской плиткой.
Допускается размещение камер на другом уровне при обеспечении механизации подъема и перемещения контейнера к месту подъезда мусоровозного транспорта.
Мусоросборная камера должна иметь освещение, подводку холодной и горячей воды, а также канализации.
Расчетную температуру в мусоросборной камере следует принимать 5 °С.
При проектировании крупных комплексов допускается устройство пневматической системы для сбора и удаления мусора либо привязка к традиционным средствам вывоза.
Для зданий, не оборудованных мусоропроводом и проектируемых для строительства в городах и поселках, следует предусматривать камеру или хозяйственное помещение для накопления и временного хранения мусора, которая может быть встроенной, пристроенной или отдельно стоящей.
Для зданий, проектируемых для строительства в сельских населенных пунктах, для сбора и хранения мусора следует предусматривать специально оборудованную (крытую или открытую) площадку.
2.4. Номенклатура пассажирских лифтов, принятая для жилых зданий, соответствует ГОСТ 5746-83 (рис. 7).
При разработке проектов зданий должен быть выполнен чертеж на заказ лифтов, в котором следует указать, что в комплект поставки должна входить система группового управления.
Согласно ГОСТ 5746-83, систему управления лифтами следует предусматривать смешанную собирательную при движении кабины вниз, предусматривающую наличие на каждом этаже одной кнопки вызова. При этом кабина лифта движется по приказам и может выполнять попутные остановки по вызовам при движении вниз. При движении вверх остановка лифта происходит только по приказам из кабины. Группу лифтов надлежит оснащать системой группового управления. С этой целью на каждом этаже устанавливается один вызывной кнопочный пост на группу лифтов. На появившийся вызов система группового управления направляет один из лифтов группы, что обеспечивает минимальное время ожидания, исключает движение на один вызов нескольких лифтов и улучшает эксплуатационные показатели лифтов. Лифты следует устанавливать выходами в общий лифтовый холл (рис. 8).
Рис. 7. Лифты для жилых зданий грузоподъемностью 400 кг (а) и 630 кг (б)
Рис. 8. Возможные варианты компоновки лифтовых групп
За ширину лифтового холла принимается расстояние от двери кабины до противоположной стены, холла при однорядной компоновке или между дверями кабин противолежащих лифтов при двухрядной компоновке. При этом необходимо предусматривать возможность беспрепятственного проноса в кабину носилок и других крупногабаритных грузов. Транспортирование пожарных подразделений в зданиях 17 этажей и более обеспечивается установкой лифтов грузоподъемностью 630 кг со скоростью 1,6 м/с и размерами кабины 1100´2100 и 2100´1100 мм, которые, согласно ГОСТ 5746-83, имеют эту возможность.
Энергоснабжение этих лифтов должно обеспечиваться по I категории в соответствии с требованием п. 1-2-28 «Правил устройства электроустановок» (ПУЭ). В зданиях общежитий коридорного и галерейного типов возможно устанавливать пассажирские лифты, предназначенные по ГОСТ 5746-83 для общественных зданий.
Все пассажирские лифты должны подключаться к диспетчерскому пункту контроля. В зданиях (группе зданий) должно быть предусмотрено помещение для установки диспетчерского оборудования. Между диспетчерской, кабинами и машинными отделениями лифтов должна быть обеспечена громкоговорящая или телефонная связь. Целесообразно объединение диспетчерской лифтов с диспетчерскими пунктами другого инженерного оборудования зданий.
В подвальном или цокольном этажах зданий может предусматриваться помещение для мастерской по ремонту лифтов.
Размещение лифтов в плане дома связано с его объемно-планировочным решением. Для каждого решения создается характерный узел вертикальных коммуникаций.
Компоновка узла обусловливается этажностью здания, общей площадью этажа, композиционной схемой плана дома. Так, например, в зависимости от композиционного замысла в зданиях свыше 10 этажей применяются различные схемы узлов вертикальных коммуникаций, наиболее характерные из которых: компактная, с островным положением лифтовой группы и рассредоточенная.
Компактная схема характеризуется смежным расположением лестничной клетки и лифтов: лифты примыкают к лестничной клетке и лифтовой холл служит проходом к воздушной зоне (рис. 9). Такая схема целесообразна для секций многосекционных домов и возможна для односекционных домов с Z-образной формой плана.
Для точечных зданий характерна компоновка узла вертикальных коммуникаций с островным расположением лифтовой группы в геометрическом центре здания, так как дает возможность увеличить световой фронт здания и глубину корпуса (рис. 11 а - д, и - л). При данной компоновке лифты следует группировать таким образом, чтобы их двери были обращены в одно помещение. Рассматриваемая схема позволяет также формировать блок-секции типа «трилистник» с шестью и более квартирами на этаже.
Вариант размещения лифта в 9 - 10-этажном здании, позволяющий экономить световой фронт и увеличить приведенную ширину корпуса, показан на рис. 11 е - з.
В точечных зданиях с направленной формой плана, т.е. развитой в одном направлении (рис. 10), компактную схему целесообразно трансформировать путем устройства прохода в воздушную зону сбоку лестнично-лифтового узла и размещения лестничной клетки вдоль фасада, а не перпендикулярно ему.

Рис. 9. Здания с компактным узлом вертикальных коммуникаций
а - возможные планировочные схемы; б - фрагменты планов лестнично-лифтовых узлов


Рис. 10. Здания с направленной формой плана.
I - пример планировочной схемы; II - схема лестнично-лифтового узла: а - типовой этаж; б - первый этаж.
Рис. 11. Схемы узлов вертикальных коммуникаций в различных планировочных решениях дома
В зданиях высотой свыше 10 этажей с протяженными горизонтальными коммуникациями и большой площадью этажа требуется устройство не менее двух незадымляемых лестниц. Этим объясняется применение рассредоточенной схемы вертикальных коммуникаций. При этой схеме, как правило, лифтовая группа размещается в центре здания на пересечении коридоров, а лестничные клетки - у торцов коридоров (рис. 12). В некоторых случаях из композиционных соображений незадымляемые лестничные клетки выносятся в отдельные объемы (рис. 13). Рассредоточенная схема узлов вертикальных коммуникаций позволяет также формировать здания или блок-секции с Т-образной формой плана или здания типа «трилистник» с протяженными поэтажными коридорами (рис. 14). Варианты рассредоточенной схемы вертикальных коммуникаций могут применяться в здании, состоящем из трех секций разной этажности, обслуживаемых одной группой лифтов. При этом в секциях этажностью до 10 этажей устраиваются обычные лестничные клетки, а в секциях большей этажности - незадымляемая лестничная клетка.

Рис. 12. Здания с рассредоточенными вертикальными коммуникациями
I - пример планировочной схемы; II - схемы узлов вертикальных коммуникаций: а - фрагмент плана типового этажа; б - фрагмент плана первого этажа
Рис. 13. Здания с незадымляемыми лестничными клетками, вынесенными в отдельные объемы
I - пример планировочной схемы; II - схемы узла вертикальных коммуникаций: а - фрагмент плана типового этажа; б - фрагмент плана первого этажа
В галерейных домах возможно большое разнообразие компоновки узлов вертикальных коммуникаций. Это обусловлено тем, что элементы узлов могут примыкать к галереям на любом их отрезке. При этом в IV климатическом районе лифты могут размещаться за пределами теплых стен (рис. 15).

Рис. 14. Здание с Т-образной формой плана
I - пример планировочной схемы; II - схемы узла вертикальных коммуникаций: а - фрагмент плана типового этажа; б - фрагмент плана первого этажа
Рис. 15. Здание с галерейной планировочной схемой
I - пример планировочной схемы; II - схемы узла вертикальных коммуникаций: а - фрагмент плана типового этажа; б - фрагмент плана первого этажа
2.5. При проектировании вестибюля следует учитывать, что его расположение может быть различным и связано с размещением лифтов в плане дома. В практике распространены три основные схемы размещения вестибюля по отношению к узлу вертикальных коммуникаций - в конструктивно-планировочной ячейке, смежной с лестнично-лифтовым узлом, либо противоположной ему (см. рис. 9), а также пристроенные к зданию (рис. 16).
Рис. 16. Примеры вестибюлей, пристроенных к зданию
2.6. При размещении почтовых абонентских шкафов в проектах жилых домов следует руководствоваться их габаритами, представленными на рис. 17.
В домах, оборудованных лифтами, абонентские шкафы рекомендуется размещать вблизи лифтов - в вестибюлях, лифтовых холлах или проходах к лифтам (см. рис. 9). В безлифтовых домах абонентские шкафы следует размещать на основной или промежуточной лестничной площадке первого этажа и в проходах к лестницам (в случае устройства вестибюлей - в вестибюлях) (см. рис. 5).
В вестибюлях с большим остеклением (см. рис. 13), с художественной отделкой или облицовкой стен ценными материалами допускается устанавливать на полу абонентские шкафы АШГУ-8С (рис. 17, г) или вращающиеся абонентские шкафы - (нетиповые), сблокированные по 3 - 4 на вертикальном каркасе (рис. 17, д).
Рис. 17. Почтовые абонентские шкафы
а - вертикальный, 6 секций (АШВД-6); б - горизонтальный, 4 секции (АШГД-4); в - горизонтальный, 6 секций (АШГД-6); г - горизонтальный со стойкой, 8 секций (АШГУ-8С)
Рис. 18. Почтовые шкафы опорных пунктов
а - подвесной (ШПП-М); б - напольный (ШПН)
Шкафы опорных пунктов навешиваются на стену или устанавливаются на полу в вестибюле одного из подъездов жилого дома из расчета: 1 шкаф ШПП-М (рис. 18, а) на 90 - 100 квартир или 1 шкаф ШПН (рис. 18, б), ШПД на 120 - 150 квартир.
Абонентские шкафы и подвесные шкафы опорных пунктов навешивают непосредственно на стены или в нишах на высоту не менее 600 мм от пола (рис. 17, б и 18, а). Шкафы следует навешивать, как правило, на стены, примыкающие к подсобным помещениям квартир. Места установки абонентских шкафов и шкафов опорных пунктов должны быть освещены.
Оборудование домов абонентскими шкафами и шкафами опорных пунктов должно предусматриваться в сметах.
2.7. При проектировании жилых зданий необходимо учитывать комплекс требований по обеспечению жилищ инсоляцией и защиты их от солнечного перегрева, шума, сильных ветров и других неблагоприятных факторов. При размещении жилых зданий на участках требуется обеспечить жилые помещения инсоляцией продолжительностью от 1,5 до 3 ч в зависимости от широтной зоны и типа застройки. При проектировании жилых зданий и блок-секций для определения их градостроительной маневренности, рекомендуется учитывать секторы неблагоприятной ориентации, приведенные на рис. 19.
Ориентация окон жилых комнат на северную часть горизонта в пределах секторов, указанных на рисунке, недопустима для односторонних квартир.
В связи с тем, что в I и II климатических районах при преобладании северных ветров в холодную часть года северный сектор особенно неблагоприятен, на него не рекомендуется обращать более одной комнаты в трехкомнатных квартирах. В районах побережья Тихого океана, где сильные ветры сочетаются с косыми дождями, торцы зданий, обращенные на север, северо-восток и северо-запад, рекомендуется предусматривать глухими.
В южной широтной зоне вследствие летнего перегрева жилищ неблагоприятна помимо северной также и ориентация на юго-запад и запад (сектор Г, см. рис. 19). Крайне нежелательно обращение на указанный сектор односторонних квартир. Окна и балконные двери можно ориентировать на сектор Г только при обязательном применение эффективной солнцезащиты в виде подвижных наружных жалюзи, ставней или экранов, выполненных из нетеплоемких материалов. В подрайонах IIIБ, IIIВ, IVБ и IVВ (за исключением пустынных и безводных районов) солнцезащиту зданий высотой до 2 этажей можно обеспечивать зелеными насаждениями.
Рис. 19. Секторы неблагоприятной ориентации жилых помещений (Н) в зданиях расположенных
А - севернее 58° с.ш.; Б - в диапазоне 48 - 58° с.ш.; В и Г - южнее 48° с.ш.; Д - в I и II климатических районах при преобладании северных ветров
В IV климатическом районе желательна солнцезащита окон, обращенных также на юг и восток (сектор 70 - 200°).
В климатических подрайонах IIIА, IVА и IVГ на территориях с высокой запыленностью воздуха на стороны горизонта, подверженные сильным пылеветровым потокам, не рекомендуется обращать более одной комнаты в двух- и трехкомнатных квартирах и двух комнат в других типах квартир. Условия, при которых целесообразно принимать указанные меры, складываются при концентрации пыли в наружном воздухе 1,5 мг/м3 и более, при преобладании ветра одного направления (более 20 % повторяемости по одному румбу розы ветров) и при скорости ветра этого направления 5 м/с и более.
При разработке объемно-планировочных решений жилых домов, расположенных на шумных городских магистралях, вопросы инсоляции квартир должны решаться с учетом требований по их шумозащите.
Для жилых помещений допустимые эквивалентные уровни звука днем 40 дБА и ночью 30 дБА. В связи с этим вдоль магистралей следует создавать так называемые шумозащитные дома-экраны, т.е. дома, которые создают акустическую тень, защищающую от шума находящиеся за ними жилые зоны. Для защиты квартир в домах-экранах от шума необходимо применять следующие мероприятия:
усиление звукоизоляции наружных ограждений за счет устройства шумозащитных окон с вентиляционными клапанами-глушителями или другими соответствующими системами вентиляции;
проектирование блок-секций или домов со специальным планировочным решением, учитывающим условия инсоляции и шумозащиты при различной ориентации (жилые помещения не должны быть обращены на магистраль). При этом следует учитывать, что указанное требование выполнимо не при любом положении дома, а только в домах на меридиональных магистралях и на южной стороне широтных (рис. 20).
Рис. 20. Шумозащищенная блок-секция четырехквартирная для размещения на меридиональных и южной стороне широтных магистралей
I - план 6 - 12-го этажей; II - план 2 - 5-го этажей
В домах, расположенных на северной стороне широтных магистралей, все помещения квартиры не могут быть «отвернуты» от магистрали, так как в этом случае не может выполняться требование по инсоляции квартир, ибо все жилые помещения окажутся ориентированными на север. В связи с этим в номенклатуре блок-секций для шумозащитных домов-экранов следует предусматривать блок-секции двух типов:
Блок-секции, предназначенные для постановки на меридиональных и на южной стороне широтных магистралей. Одностороннее расположение жилых помещений в плане секции, приводящее к уменьшению ширины корпуса, следует компенсировать увеличением количества квартир. Блок-секции должны иметь не менее четырех квартир. Рекомендуется применять также 6 - 8-квартирные Т-образные секции (рис. 21) и секционно-коридорные схемы с коридором, обращенным в сторону магистрали. В секционных домах на магистраль желательно обращать только кухни, передние и санитарные узлы, а также лестничные клетки и лифтовые холлы. В тех случаях, когда на магистраль обращены и жилые комнаты, для защиты их от шума рекомендуется устройство шумозащитных окон;
Рис. 21. Шумозащищенная 10-квартирная Т-образная секция
Блок-секции, предназначенные для постановки на северной стороне широтных магистралей. В этих условиях в секционных домах практически могут применяться только двухквартирные секции, но и в таких секциях по условиям инсоляции необходимы комнаты, обращенные на юг, т.е. на магистраль. Для того чтобы на магистраль не обращались спальни, следует в квартирах иметь не более трех комнат. Двухквартирные секции с одно- и двухкомнатными квартирами в этом случае проектировать нецелесообразно, так как они крайне неэкономичны. Целесообразно применение блок-секций и домов с квартирами в двух уровнях (рис. 22).
В целях снижения теплопотерь отношение площади световых проемов всех комнат и кухонь к площади этих помещений не рекомендуется принимать более 1:7 в I климатическом районе, IIА, IVА и IVГ подрайонах и более 1:6 во всех остальных подрайонах, кроме IVБ подрайона, где это отношение может составлять 1:5,5.
В домах, проектируемых для I климатического района, в целях экономии тепла форточки или фрамуги в окнах изолируются от остального межстекольного пространства.
2.8. Согласно СНиП II-4-79, освещенность жилых помещений нормируется с помощью коэффициента естественного освещения (КЕО), который принимается на рабочей поверхности, в 1 м от заглубленной стены помещения, равным 0,5 % наружной освещенности. Расчетами устанавливается минимальная площадь оконного проема, обеспечивающая требуемый КЕО. В качестве примера в табл. 1 приведены минимальные площади оконных проемов для комнат разной площади и глубины, рассчитанные для III пояса светового климата (см. рис. 1 СНиП II-4-79). Ориентируясь на данные табл. 1 и на требования к архитектуре здания, можно подбирать в соответствии с ГОСТ 11214-86, ГОСТ 16289-86, ГОСТ 24700-81, ГОСТ 24699-81, ГОСТ 26601-85 типы оконных заполнений, следя за тем, чтобы окно не было меньше указанного в табл. 1.
Таблица 1
|
Минимальные площади оконных проемов, м2, при глубине помещения, м |
||||||||
|
2,5 |
3 |
3,5 |
4 |
4,5 |
5 |
5,5 |
6 |
|
|
8 |
1,4 |
1,4 |
- |
- |
|
|
|
|
|
9 |
1,5 |
1,5 |
1,5 |
- |
- |
- |
- |
- |
|
10 |
- |
1,6 |
1,6 |
1,5 |
- |
- |
- |
- |
|
11 |
- |
1,7 |
1,7 |
1,6 |
- |
- |
- |
- |
|
12 |
- |
1,8 |
1,8 |
1,7 |
1,6 |
- |
- |
- |
|
13 |
- |
1,9 |
1,9 |
1,8 |
1,7 |
2,5 |
- |
- |
|
14 |
- |
2 |
2 |
1,9 |
1,8 |
2,55 |
- |
- |
|
15 |
- |
- |
2,1 |
2 |
1,9 |
2,6 |
3,5 |
- |
|
16 |
- |
- |
2,2 |
2,1 |
2 |
2,65 |
3,55 |
- |
|
17 |
- |
- |
2,3 |
2,2 |
2,1 |
2,7 |
16 |
- |
|
18 |
- |
- |
2,4 |
2,3 |
2,2 |
2,75 |
3,65 |
4,9 |
|
19 |
- |
- |
- |
2,4 |
2,3 |
2,8 |
3,7 |
4,95 |
|
20 |
- |
- |
- |
2,5 |
2,4 |
2,85 |
3,75 |
5 |
|
21 |
- |
- |
- |
- |
2,5 |
2,9 |
3,8 |
5,05 |
|
22 |
- |
- |
- |
- |
2,6 |
2,95 |
3,85 |
5,1 |
|
23 |
- |
- |
- |
- |
2,7 |
3 |
3,9 |
5,15 |
|
24 |
- |
- |
- |
- |
2,8 |
3,05 |
3,95 |
5,2 |
|
25 |
- |
- |
- |
- |
2,9 |
3,1 |
4 |
5,25 |
Значения минимальных площадей в табл. 1 приведены для следующих исходных данных:
пояс светового климата.......................................................................................... III
высота, м:
помещения.......................................................................................................... 2,5
оконного проема................................................................................................ 1,5
толщина наружной стены помещения, м.............................................................. 0,4
средневзвешенный коэффициент отражения поверхностей помещения.......... 0,4
нормируемый КЕО, %............................................................................................. 0,5
коэффициент запаса............................................................................................... 1,2
общий коэффициент светопропускания (спаренные переплеты)...................... 0,6


Рис. 22. Рядовая (а) и угловые (б) шумозащищенные блок-секции с квартирами в двух уровнях
2.9. Нежилые помещения, размещаемые в жилых зданиях, могут быть встроенными и встроенно-пристроенными.
Встроенные - при расположении всех помещений в габаритах здания с выступом за их пределы не более чем на 1,5 м со стороны продольного фасада и не более 6 м - со стороны торцов (для организации крытых разгрузочных помещений).
Встроенно-пристроенные - при расположении помещений в габаритах здания и в объемах, вынесенных за пределы габаритов здания более чем на 1,5 м.
Высота встроенных и встроенно-пристроенных помещений принимается, как правило, 3,3 м от пола до пола вышележащего этажа. Однако технологические требования к таким помещениям, как, например, парикмахерская, приемные пункты прачечной и химчистки, сбербанк, помещения для работы с детьми и подростками, позволяют принимать высоту этих помещений ту же, что и в жилых, - 2,8 м. Примеры таких решений даны на рис. 24. Вынос пристроенных объемов и их архитектурно-планировочные решения регламентируются градостроительными условиями, типом (величиной) предприятия и его технологией, а также нормативными противопожарными требованиями.
В соответствии с градостроительной ситуацией принимаются различные объемно-планировочные приемы выноса помещений:
Вынос объемов залов и некоторых подсобных помещений вдоль фронта здания со стороны магистрали - на крупных магистралях и площадях общегородского значения. Для сохранения масштаба застройки и достижения ее большей выразительности важно учитывать соотношение жилой и общественной частей здания.
Вынос объемов залов и некоторых подсобных помещений со стороны дворов. При реконструкции исторически сложившихся районов ввиду дефицита территории и небольшой ширины улиц.
Пристройка объемов залов и некоторых подсобных помещений с торцов жилых зданий. При размещении жилых домов во внутриквартальных пространствах можно пристраивать небольшие залы в первых этажах. Так, при высоте более 10 этажей пристроенный объем может быть двухэтажным (рис. 23).
Рис. 23. Двухэтажные объемы пристроенной части учреждений и предприятий обслуживания
Следует иметь в виду, что решение пристроенных объемов в стеновых системах (панельных, балочных, кирпичных) ограничивает, как правило, торговую площадь магазинов до 400 м2.
В этом случае оптимальный вынос зала составляет 9 м (рис. 25). При более крупных торговых залах вынос объема может быть до 18 м. При этом нужно учитывать возможность доступа в квартиры жилого дома в случае пожара с автомеханических пожарных лестниц.
2.10. Загрузка предприятий торговли и общественного питания товарами и продуктами может осуществляться следующим образом:
из разгрузочных помещений, встроенных или пристроенных со стороны торцов жилых зданий, а также встроенных в середину зданий с подъездом транспорта со стороны улицы;
из подземных тоннелей, при размещении кладовых магазинов в подвале (рис. 26).
Рис. 24. Устройство различных встроенных помещений общественного обслуживания (на примере блок-секции системы ГСПД)
а - помещения культурно-массовой работы с населением, рабочая площадь 172 м2: 1 - универсальное трансформируемое помещение 82,3 м2; 2 - вестибюль с гардеробом 9,7 м2; 3 - административное помещение 10 м2; 4 - кружковое помещение 30 м2; 5 - помещение кратковременного пребывания детей 30 м2; 6 - комната общественных организаций 9,8 м2; 7 - кладовая 2,25 м2; б - сбербанк, рабочая площадь 180,6 м2: 1 - операционный зал сбербанка 121,3 м2; 2 - кладовая ценностей 20,9 м2; 3 - предкладовая 9,5 м2; 4 - комната персонала с гардеробом 9,8 м2; 5 - хозяйственная кладовая 6,3 + 8,1 = 14,4 м2; 6 - кладовая инвентаря 4,8 м2; в - приемный пункт прачечной на 100 кг, рабочая площадь 172,4 м2: 1 - помещение для приема белья 12,3 м2; 2 - помещение для выдачи белья 12,3 м2; 3 - кладовая грязного белья 39,5 м2; 4 - кладовая чистого белья 39,5 м2; 5 - прачечная самообслуживания на 75 кг белья в смену 52,2 м2; 6 - кладовая 4,2 м2; 7 - электрощитовая 4,9 м2; 8 - комната персонала с гардеробной 7,6 м2; г - парикмахерская, рабочая площадь 178,4 м2: 1 - салон парикмахерской с гардеробом 32,4 м2; 2 - маникюрный кабинет 5,7 м2; 5 - женский зал 40 м2; 4 - подсобное помещение 10,8 м2; 5 - косметический кабинет 9,7 м2; 6 - мужской зал 29,6 м2; 7 - подсобное помещение 14,5 м2; 8 - комната персонала 9,8 м2; 9 - гардероб персонала 11,4 м2; 10 - контора 14,5 м2; 11 - электрощитовая; д - пункт продажи товаров повседневного спроса, рабочая площадь 228,8 м2: 1 - торговый зал (хлеб и молоко) 147,5 м2; 2 - кладовая хлеба 30 м2; 3 - кладовая молочных продуктов 30 м2; 4 - помещение хранения тары 6,4 м2; 5 - приемочная 7,3 м2; 6 - гардероб 7,6 м2
Предприятия торговли и общественного питания ограниченной вместимости (магазины с торговой площадью менее 250 м2, кафе и закусочные до 50 мест, магазины кулинарии) и предприятия бытового обслуживания могут загружаться со стороны торцов либо из сквозных проездов без устройства специальных разгрузочных помещений.
2.11. При проектировании жилых зданий с встроенно-пристроенными общественными помещениями необходимо учитывать возможность ремонта инженерных коммуникаций жилой части, проходящих транзитом через общественные помещения. С этой целью размер шахты, предназначенной для пропуска инженерных коммуникаций жилой части, должен обеспечивать возможность проникания в нее из технического этажа, расположенного между жилой и общественной частями здания.
2.12. При устройстве окон в отсеках подвальных и цокольных этажей нужно предусматривать приямки на всю высоту окна для обеспечения возможности подачи средств тушения и удаления дыма при пожаре. Приямки могут закрываться съемными или поднимающимися решетками. Размеры приямка должны быть не менее 1´1,4 м (рис. 27).
Рис. 25. Встроенно-пристроенный магазин «Книги» в многоэтажном крупнопанельном жилом доме с выносом объема торгового зала
а - план; б - разрез; 1 - торговый зал; 2 - кладовые книг и канцтоваров; 3 - тарная; 4 - приемочная; 5 - камера для мусора; 6 - кладовая упаковочных материалов; 7 - кабинет директора; 8 - комната персонала; 9 - контора; 10 - гардероб; 11 - уборочный инвентарь; 12 - электрощитовая; 13 - электрощитовая жилого дома; 14 - колясочная; 15 - помещения общественного назначения; 16 - разгрузочная платформа

Рис. 26. Варианты решения загрузки предприятий торгово-бытового обслуживания
а - с торцов здания: 1 - торговый зал; 2 - административно-бытовые помещения; 3 - дебаркадер; 4 - кладовые; б - из середины здания; в - из подземного тоннеля: 1 - торговый зал; 2 - административно-бытовые помещения; 3 - складские помещения; 4 - тоннель; 5 - дебаркадеры; г - из сквозных проездов (магазин «Кулинария» с закусочной): 1 - зал с раздаточной; 2 - вестибюль с санузлом; 3 - горячий цех; 4 - моечная столовой посуды; 5 - моечная кухонной посуды; 6 - холодный цех; 7 - кладовая сухих продуктов; 8 - кладовая моечной тары; 9 - гардероб персонала; 10 - душевая и санузел; 11 - зал магазина; 12 - подсобное помещение; 13 - загрузочная; 14 - электрощитовая
Рис. 27. Устройство приямков перед окнами подвальных и цокольных этажей
1 - съемная решетка; 2 - труба
2.13. Внутриквартирную лестницу в одноквартирных и блокированных домах рекомендуется устраивать из передней или коридора. Если ванная на втором этаже, лестницу лучше иметь в передней, это приближает ванную ко входу; если ванная на первом этаже, то лестницу разумнее иметь в коридоре, чтобы избежать переохлаждения после принятия ванны. Устройство лестницы в общей комнате неудобно в быту, так как общая комната становится проходной. Особенно ухудшается режим общей комнаты при размещении ванной на первом этаже, а спален - на втором. Кроме того, размещение лестницы в общей комнате создает неблагоприятные микроклиматические условия в спальных комнатах, куда поступает воздух из общей комнаты. Лестничную площадку второго этажа целесообразно увеличить и организовать в виде холла (при наличии естественного освещения) для различных домашних занятий.
Параметры внутриквартирной лестницы должны удовлетворять формуле 2б + а = 60 - 64 см, где а - размер проступи; б - размер подступенка; величина 60 - 64 см - размер среднего шага человека (рис. 28).
При максимальном допускаемом уклоне лестницы 1:1,25 отношение подступенка к проступи будет 18,8:23,5 см. Однако более удобной будет лестница, где б:а = 16,6:25. На рис. 28 приведенные в скобках параметры даны для лестниц с уклоном 1:1,25.
Рис. 28. Типы и габариты внутриквартирных лестниц
а - одномаршевые лестницы: 1 - прямая лестница с перилами шириной марша 110 - 10 = 100 см); 2 - прямая лестница, расположенная между двумя стенами; 3 - лестница с площадкой в начале марша с поворотом на 90°; 4 - лестница с площадкой в начале марша с поворотом на 180°. Размеры проема в перекрытии: для схем 1 и 2 l = L - 2a (l = L - a); для схем 3 и 4 l = L - 100 (l = L); б - двухмаршевые лестницы
Рис. 29. Расположение лестницы в центре плана. Возможные планировочные решения
а - схемы блок-секций; б - устройство лестницы; в - разрез по одномаршевой лестнице
Минимальной может быть принята ширина марша 90 см, но, как показал опыт эксплуатации внутриквартирных лестниц в сельском жилище, ширина марша для более комфортного решения может быть принята 100 см.
Высота прохода по лестничным маршам и под ними до низа выступающих конструкций должна быть не менее 200 см.
2.14. Возможность освещения лестничных клеток в зданиях высотой до трех-четырех этажей естественным светом через световые фонари в покрытиях предусмотрена с целью размещения лестниц в центре плана блок-секции или односекционного дома.
Этот прием следует использовать для увеличения ширины корпуса, что важно по экономическим соображениям, так как при этом снижается стоимость 1 м2 общей площади здания, повышается его тепловая эффективность и линейная плотность застройки (общая площадь на 1 м фасада).
Кроме того, размещение лестницы в центре плана следует использовать для возможностей разносторонней блокировки секций с целью повышения степени непрерывности жилых образований, также способствующей повышению плотности жилого фонда. Это особенно важно при застройке трехэтажными домами. Для устройства такой лестницы могут применяться двухмаршевые, а также одномаршевые, трех- и четырехмаршевые лестницы с просветом между маршами или обходной площадкой. Исходя из условий унификации конструктивно-планировочных параметров и включения трехэтажных зданий в единую систему строительства с параметрами 3 и 3,6 м для лестничных клеток, целесообразно учитывать приведенные ниже рекомендации.
При размещении двухмаршевой лестницы с просветом между маршами в центре плана входы в квартиры могут устраиваться с обеих площадок - с этажной и промежуточной (рис. 29). В домах полносборных конструкций такое решение создает конструктивные усложнения. Во избежание их может устраиваться обходная площадка, однако это ухудшит технико-экономические показатели и вызовет необходимость занимать лестницей дополнительную конструктивную ячейку. Из экономических соображений рекомендуется устраивать входы в квартиры как с этажной, так и с промежуточной площадок только в домах со стенами из кирпича и других местных материалов. Перепад уровней может использоваться в объемно-планировочном решении дома, в том числе в его нижней и венчающей частях. Такое же решение может быть принято и при четырехмаршевой лестнице. Входы в квартиры с одной лестничной площадки могут устраиваться при трехмаршевой лестнице. В одну конструктивную ячейку может вписываться и одномаршевая лестница с обходной площадкой и просветом между ними или между маршем и стеной.
При размещении лестницы в центре плана для организации входа в здание в первом этаже используется одна планировочная ячейка квартиры.
В лестничных клетках с верхним естественным освещением для удаления дыма из них в случае возникновения пожара в световом фонаре нужно предусматривать открывающиеся створки площадью не менее 1 м2. Возможно устройство световых фонарей со светопропускающими элементами из полимерных материалов при покрытии зданий из несгораемых или трудносгораемых материалов и рулонной кровле, защищенной гравием.
2.15. Площадь остекления дверей, устанавливаемых в стенах лестничных клеток зданий высотой четыре и более этажей, не должна превышать 30 % площади дверного полотна.
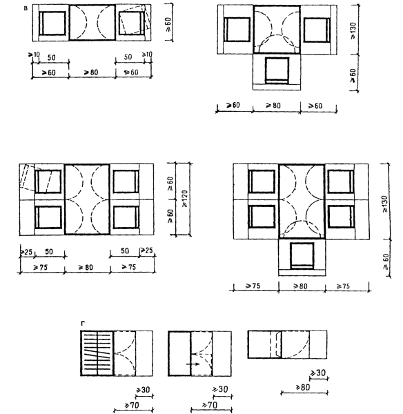
2.16. Незадымляемые лестничные клетки первого типа характеризуются устройством входа в них из поэтажного коридора или холла через наружную воздушную зону по балкону, лоджии, открытому переходу, галерее. Ширина прохода - не менее 1,2 м, высота ограждения 1,2 м.
Расстояние между осями дверных проемов из поэтажного коридора и проема в лестничную клетку должно быть не менее 2,2 м. При размещении указанных дверей в плоскостях, расположенных под углом, это расстояние следует исчислять между ближайшими краями дверных проемов.
Требование об устройстве тамбуров при всех выходах из здания распространяется и на выходы из незадымляемых лестничных клеток в уровне первого этажа. Выходы из лестничных клеток и поэтажных коридоров в воздушную зону на всех других этажах желательно осуществлять также через тамбуры. В тех случаях, когда планировочные параметры блок-секции исключают такую возможность, допускается предусматривать выходы с утепленными дверями.
При необходимости устройства в зданиях нечетного числа незадымляемых лестничных клеток более половины из них должны быть первого типа.
Незадымляемые лестничные клетки второго типа характеризуются устройством подпора воздуха.
Такие лестничные клетки целесообразно разделять по вертикали на отсеки через 7 - 8 этажей для сокращения объема, в котором следует создавать подпор. Разделение осуществляется несгораемыми перегородками с пределом огнестойкости 0,75 ч. Переход из одного отсека в другой может предусматриваться через наружную воздушную зону по балкону или через поэтажный коридор.
Подпор воздуха в отсеках обеспечивается подачей воздуха от вентиляторов в верхние зоны отсеков (рис. 30). Величина подпора воздуха должна составлять не менее 20 Па на нижнем этаже отсека при одной открытой двери. Характеристики вентиляционного оборудования, сечение каналов и клапанов определяются расчетом.
В целях преодоления однотипности фасадов 9-этажных домов, связанной с вынесением на фасады путей эвакуации при пожаре в виде лоджий (балконов), устраиваемых на стыке секций, возможен выбор различных приемов.
Во-первых, может сохраниться традиционный прием - переходы в смежную секцию или спуски (рис. 31, а). Второй прием - устройство в квартире лоджии (балкона) с зоной безопасности в виде простенка протяженностью 1,2 м (рис. 31, б). В связи с тем, что перехода в соседнюю секцию не требуется, лоджии (балконы) могут размещаться в любом месте по фасаду, в любом помещении, а не только на стыке секций, как это необходимо в первом случае. Часть лоджий вне зоны безопасности может остекляться. При устройстве балконов, например при кухнях, в общих комнатах могут быть эркеры. Сокращается расход металла за счет отказа от лестниц-спусков, улучшаются условия эксплуатации лоджий - не будет переходного проема в соседнюю лоджию, лестницы и люка в плите, нарушающих изоляцию квартир.
Рис. 30. Незадымляемая лестничная клетка
а - фрагмент разреза с показом разделения лестничной клетки по вертикали на отсеки; б - устройство перехода из одного отсека в другой через наружную воздушную зону; в - то же, через поэтажный коридор


Рис. 31. Противопожарные требования к путям эвакуации (с. 32 - 34)
а - переходы в смежную секцию или спуски (л - обязательная 2-я лоджия квартире); б - варианты устройства зоны безопасности (отстойника) на балконах и лоджиях; в - пути эвакуации в пределах лестнично-лифтового узла; г - варианты конфигурации наружной лестницы; д - в жилых зданиях высотой до 9 этажей при общей площади квартир на этаже менее 500 м2 (нл - наружная лестница с уклоном 1:1); е - то же, 500 м и более; ж - в жилых зданиях высотой в 10 этажей и выше при общей площади квартир на этаже менее 500 м2; з - то же, 500 м2 и более; и - с балконами-отстойниками (БО)
Третий прием - наиболее универсальный и надежный для эвакуации. В нем наличие и размещение лоджий (балконов) не диктуется противопожарными требованиями. Они могут применяться исходя лишь из композиционных и функциональных условий; могут и вообще отсутствовать, если на то есть основания, например в холодных районах; могут быть полностью остеклены.
Пути эвакуации в этом случае предусмотрены только в пределах лестнично-лифтового узла. При этом обеспечивается выход из каждой квартиры на обычную лестничную клетку первого типа и лестницу третьего типа, где обычная лестничная клетка первого типа - с естественным освещением через окна в наружных стенах, а лестница третьего типа - наружная, шириной 0,7 м с уклоном 1:1 (рис. 31, в).
Выход должен устраиваться, минуя лестнично-лифтовой узел, по коридору. Объемно-пространственное решение наружной лестницы также может быть вариантным (рис. 31 г) - одномаршевая или двухмаршевая различной конфигурации, опирающаяся на столбы, арки или консоли, скомпонованная с помещениями для сушки белья и т.п. Она может стать элементом композиции фасада, обращенного при периметральной застройке во двор. На уличном фасаде в этом приеме могут устраиваться только эркеры. В рассмотренном решении лоджии могут отсутствовать во всех квартирах только в том случае, если в секции не более пяти квартир. При количестве квартир в секции шесть и более в многокомнатных квартирах (в 3 и более комнат) следует устраивать лоджии (балконы) с зоной безопасности либо с переходом в смежную секцию.
Предложенное решение лестнично-лифтового узла может заменяться незадымляемой лестничной клеткой первого типа.
С противопожарными мероприятиями связана проблема остекления лоджий. В большинстве городов в разных климатических районах, если не действует в них административный запрет, жильцы остекляют лоджии. Остекляют, прежде всего, потому, что используют их как дополнительную площадь. Кроме того, на севере - для утепления расположенных за лоджией комнат и для хранения продуктов; на юге - для создания летнего прохладного помещения, быстрее охлаждающегося вечером, чем комнаты внутри здания; в районах с пылевыми бурями - для защиты от пыли.
С этими климатическими обстоятельствами, видимо, нельзя не считаться. Поэтому в каждом конкретном случае архитектор должен выбирать тот из вышеназванных приемов решения путей эвакуации, который позволил бы, если нужно, запроектировать остекленные лоджии. Остекление должно быть трансформируемым - раздвижным, раскрывающимся.
Естественно, что остеклять лоджии можно только в тех случаях, когда это предусмотрено в проекте дома, т.е. связано с решением путей эвакуации и композицией фасада.
Противопожарные требования к путям эвакуации в жилых зданиях секционного типа проиллюстрированы на рис. 31, а - г. Показанная на рис. 31, б зона безопасности - это место у простенка, предназначенное для отстоя людей при пожаре. Такие простенки должны выполняться из негорючих материалов и иметь ширину от окна до негорючей преграды не менее 1,2 м или между окнами - не менее 1,6 м. На рисунке показано устройство зоны у боковой стенки лоджии, а также между окнами в пределах квартиры и на границе смежных квартир.
Противопожарные требования к жилым зданиям коридорного типа проиллюстрированы на рис. 31, д, е. Требования к жилым зданиям в 10 этажей и более проиллюстрированы на рис. 31, ж - и.
2.17. В домах секционного типа в сельских населенных пунктах кладовые для хранения предметов хозяйственного обихода и твердого топлива (при поквартирном отоплении и в негазофицированных домах) могут быть размещены в цокольных и подвальных этажах. Ширина коридоров перед ними должна быть не менее 1,1 м.
2.18. Встроенный, пристроенный (рис. 32) или отдельно стоящий гараж может предназначаться для легкового автомобиля, для мотоцикла, а в I климатическом районе и для снегохода. Необходимая площадь гаража, м2: для автомобиля - 18, для мотоцикла - 6 (рис. 33), снегохода - 7.
2.19. Площадь хозяйственных построек для содержания скота и птицы определяется в зависимости от их количества и вида. Рекомендуемый состав помещений и площади в постройках, расположенных непосредственно при доме или вблизи него, даны в табл. 2.
Примеры решения хозяйственных построек для скота и птицы приведены на рис. 34. Хозяйственная постройка для хранения садово-огородного инвентаря и твердого топлива показана на рис. 35. Возможна блокировка всех хозяйственных построек в один блок (рис. 36).
2.20. Блокировка построек для скота и птицы с одно- двухквартирными домами предусматривает обязательную планировочную изоляцию жилой зоны квартиры от помещений постройки двумя-тремя помещениями нежилого назначения (например, передняя, шлюз, кухня и т.д.). Указанные помещения должны иметь естественную вентиляцию (рис. 37, см. также рис. 32, в).
Таблица 2
|
Площадь помещений, м2 |
|||
|
тип I |
тип II |
тип III |
|
|
Для скота и птицы |
7 |
14 |
24 |
|
Для хранения инвентаря и концентрированных кормов |
2 |
4 |
6 |
|
Для хранения грубых кормов |
Площадь чердачных помещений |
||
|
Прочие помещения (проходы, шлюзы и др. - до 15 % общей площади) |
1 |
2 |
5 |
|
Общая площадь помещений |
10 |
20 |
35 |
Учитывая, что в холодное время года в районах Севера затруднено использование открытых участков для хозяйственных работ (плотницкие работы, чистка предметов домашнего обихода, колка дров и т.д.), а также передвижение по участку, целесообразно устройство в этих районах крытого двора. Он может быть использован как хозяйственная площадка в непогоду, как место хранения плавучих средств, ремонта и хранения рыболовецкого инвентаря и других хозяйственных нужд. Крытый двор позволяет также более компактно сгруппировать все хозяйственные помещения дома при обеспечении внутренних связей их друг с другом и с квартирой через единый коммуникационно-хозяйственный элемент. Площадь крытого двора разумно принимать в пределах 15 - 25 м2.


Рис. 32. Примеры устройства гаража в подвальном и первом этажах одно- двухэтажных домов
а - в первом этаже в объеме дома; б - пристроенного к двухквартирному дому; в - пристроенного к одноквартирному дому (см. с. 38); г - в подвальном этаже (см. с. 39)
Рис. 33. Гаражи для автомашины (а) м мотоцикла (б)
I - фасад; II - план
Рис. 34. Хозяйственные постройки для содержания скота и птицы
а - фасады; б - планы; в - разрезы; 1 - помещение для коровы с теленком; 2 - помещение для свиней (овец, коз); 3 - помещение для птицы; 4 - помещение для кормов и инвентаря; 5 - шлюз, коридор
Рис. 35. Хозяйственная постройка для хранения садово-огородного инвентаря и твердого топлива
а - фасад; б - план
Рис. 36. Блокированные хозяйственные постройки и сооружения
а - фасад; б - план; 1 - помещение для скота и птицы 9,5 м2; 2 - помещение для топлива и инвентаря 12,6 м2; 3 - хозяйственный навес 13,6 м2; 4 - гараж 18 м2
Рис. 37. Примеры блокировки хозяйственных построек с домом
а - фасад; б, в - планы первых этажей (варианты); I - жилая часть дома; II - хозяйственный блок; 1 - общая комната; 2 - спальня; 3 - кухня; 4 - передняя; 5 - веранда; 6 - хозяйственное помещение; 7 - помещения для скота и птицы; 8 - гараж
3.1. Планировочная организация квартир может быть весьма разнообразна и выбираться в соответствии с климатическими, национально-бытовыми и демографическими условиями. Существенное значение при этом имеют конструктивные параметры. При выборе планировочной схемы квартиры может приниматься любое соотношение площадей отдельных помещений и различный их состав. Важно обеспечить наличие в квартире зон необходимых бытовых процессов - сна, общесемейного отдыха, занятий, обеденной, хозяйственной зоны и т.п.
В настоящее время традиционной является планировочная организация квартиры, в которой имеются спальни на одного или двух человек, общая комната для сбора всей семьи, кухня и ряд подсобных помещений.
Размеры комнат должны выбираться с учетом конструктивно-планировочных параметров, унификации их с целью сокращения количества марок заводских изделий в крупнопанельных зданиях, а также параметров зон бытовых процессов, приведенных ниже.
В традиционных решениях размеры спальных комнат на одного человека принимаются от 8 до 10 м2, на 2 человека - от 10 до 14 м2, общей комнаты - от 16 до 22 м2.
Практика показывает, что для таких решений могут быть приняты следующие конструктивно-планировочные параметры: 3, 3,6 и 6 м, кратные укрупненному модулю 600 мм в продольном направлении здания, и параметры, кратные этому модулю в поперечном направлении здания.
Примеры различных квартир, запроектированных в этой системе, приведены на рис. 38.
В традиционных схемах общую комнату, как правило, желательно расположить рядом с передней или ее расширенной частью - холлом, а также с кухней. Она может пространственно объединяться двустворчатыми дверями или раздвижными перегородками со спальней родителей, с холлом, с кухней (оборудованной электроплитой) или с выделенной столовой.
Общие комнаты, где спальное место не предусматривается, могут быть проходными в одну из спален (рис. 39), а в многокомнатных квартирах - даже и в две спальни. Спальня должна быть непроходной.
В квартире следует предусматривать обеденное место. Оно может располагаться в разных помещениях: в специально отведенной изолированной столовой, в общей комнате, в холле, в кухне-столовой. Столовая может иметь вход из передней, из кухни или из общей комнаты. Основную обеденную зону необходимо рассчитывать на полный численный состав семьи. При размещении основной обеденной зоны вне кухни и при отсутствии непосредственной связи ее с кухней в кухне нужно предусматривать дополнительную обеденную зону на два-три посадочных места (рис. 40).
Квартира может зонироваться. Так, в многокомнатной квартире (три и более комнат) целесообразно выделить группу помещений, включающую переднюю, общую комнату и кухню, и группу спален с санитарным узлом. Возможно создание дополнительных связей между смежными помещениями, улучшающих функциональную и пространственную организацию квартир. Возможно расположение многокомнатных квартир в двух уровнях (рис. 41).
В квартирах, расположенных в двух уровнях, спальни рекомендуется размещать в основном на втором этаже. В четырехкомнатных квартирах в двух или в разных уровнях желательно, а в пяти- шестикомнатных квартирах обязательно на первом этаже располагать одну-две спальни, предназначая их для престарелых, малолетних и других членов семьи, которым трудно пользоваться лестницей.
В квартирах, расположенных в двух или разных уровнях, рекомендуется размещать раздельный санитарный узел в первом этаже. Возможно и более дорогое решение: в первом этаже совмещенный санитарный узел, во втором - уборная с умывальником.
Следует учитывать, что зонирование квартиры можно использовать для защиты от шума спальных комнат, что достигается обращением их на фасад, не выходящий на шумную магистраль.
Для такого ориентированного расположения спальных комнат нужно применять специальные планировочные схемы домов, блок-секций и квартир, в том числе и в двух уровнях (см. п. 2.7. Пособия).
При зонировании сельской квартиры желательно выделить жилую и хозяйственную зоны. В хозяйственную зону могут входить: кухня, помещение для хозяйственных работ, кладовая или шкаф для продуктов, встроенные шкафы для хранения несезонных вещей и предметов домашнего обихода, сушильный шкаф для рабочей одежды и обуви, санитарный узел. В связи с отсутствием в системе бытового обслуживания на селе прачечных ванна должна размещаться вблизи кухни и входа в квартиру. Уборную также рекомендуется приблизить к кухне, так как она функционально связана с ванной, располагаемой около кухни, и вместе с тем служит для слива жидких помоев и загрязненной воды от мытья овощей, рабочей обуви и пр.
Рис. 38. Однокомнатные (а), двухкомнатные (б) и трехкомнатные (в) квартиры в крупнопанельных жилых домах с узким и смешанным шагами поперечных несущих стен (примеры различной планировки)
Рис. 39. Четырехкомнатная квартира с проходной общей комнатой в одну из спален
Рис. 40. Варианты размещения обеденного места в квартирах различной величины в планировочной организации (зарубежный опыт)
В квартирах одноквартирных и блокированных домов (за исключением северных районов) рекомендуется делать два входа: основной - через переднюю и второй - хозяйственный, ведущий в помещение для хозяйственных работ или хозяйственную зону кухни.
В домах с поквартирным отоплением рекомендуется предусматривать помещение или выгороженное место для установки отопительного агрегата (рис. 42).
У входа в квартиру рекомендуется разместить сушильный шкаф для рабочей одежды и обуви (если в доме нет топочной, при которой размещение его более целесообразно). При одном входе в квартиру шкаф целесообразно устроить в передней, при двух входах - вблизи от хозяйственного входа, например, в хозяйственном помещении. Такая взаимосвязь помещений исключает необходимость хождения по квартире в грязной одежде и обуви.
Чтобы удовлетворить потребности семей с разным бытовым укладом, следует иметь квартиры с соответствующей функциональной взаимосвязью помещений. Примеры различной планировки квартиры даже в пределах одинаковых габаритов, и конструктивных параметров даны на рис. 43.
В связи с возможностью относительно свободного выбора размеров комнат в квартирах могут быть выделены различные вспомогательные помещения. Наряду с обязательным устройством кладовой или встроенного хозяйственного шкафа целесообразно оборудовать квартиру встроенными шкафами для платья и белья, которые могут размещаться в спальнях, в шлюзах перед ними или в специальных гардеробных.
Рис. 41. Квартиры в двух уровнях в коридорном доме
снизу - коридорный этаж; сверху - бескоридорный; 1 - однокомнатные; 2 - двухкомнатные; 3 - трехкомнатные; 4 - четырехкомнатные
Гардеробная может располагаться между спальными комнатами и санитарным узлом и быть проходной в эти помещения (рис. 44). Такой прием позволяет рационально использовать проход в спальню не только как коммуникационную площадь, но и функционально - как гардеробную.
Гардеробная, расположенная при передней, может являться также дополнительным проходом в кухню-столовую, минуя общую комнату, рис. 44, б.
Переднюю удобно оборудовать шкафом для верхней одежды (с оставлением свободной ширины передней не менее 1,4 м). В передней могут размещаться также встроенные шкафы для других бытовых предметов.
В квартирах домов в сельских населенных пунктах целесообразно выделить помещение для хозяйственных работ, предназначаемое для приготовления кормов, обработки продуктов подсобного хозяйства, занятия ремеслами, а в I климатическом районе - для изготовления и ремонта меховой одежды, промыслового инвентаря и пр. Такое помещение может быть размером 4 м2 в трех- и четырехкомнатных квартирах и 6 м2 - в пяти- шестикомнатных.
Рис. 42. Типы квартир в одноквартирных и блокированных домах в сельских населенных пунктах
а, б - двухкомнатная квартира в двухквартирном доме (варианты блокировки); в - трехкомнатная квартире в одноквартирном доме; г - то же, в двухквартирном доме; д - четырехкомнатная квартира в одноквартирном доме (I - план первого этажа, II - план мансарды); е - четырехкомнатная квартира в двухквартирном доме; 1 - общая комната; 2 - спальня; 3 - кухня; 4 - ванная; 5 - уборная; 6 - передняя и коридор; 7 - кладовая; 8 - топочная; 9 - шкаф; 10 - веранда

Рис. 43. Варианты планировочной организации квартиры в одинаковых габаритах (зарубежный опыт)
Рис. 44. Устройство проходной гардеробной (зарубежный опыт)
а - между спальнями и санитарным узлом; б - между передней и кухней-столовой
В неотапливаемой части дома, в том числе при верандах, лоджиях и террасах, возможно устройство приквартирной холодной кладовой. (При этом площадь холодной кладовой включается в общую площадь квартиры).
Для снижения теплопотерь в сельских жилых домах в I климатическом районе, одно- двухквартирные дома следует проектировать с компактным объемно-планировочным решением и простой конфигурацией плана, блокированные - с большой глубиной корпуса.
При выборе планировочных параметров квартир должно учитываться размещение функциональных зон бытовых процессов. Местоположение их устанавливается исходя из взаимосвязи зон, а также и их изоляции. Площадь и параметры каждой зоны устанавливаются с учетом удобного размещения минимально необходимого набора мебели, соответствующего числу членов семьи.
Расстановка мебели в комнатах квартир, кроме однокомнатных площадью 36 м2, дана из расчета заселения их семьями, состоящими из супружеской пары или супружеской пары с детьми. Желательно также учитывать и условия проживания более сложных семей.
Для каждого члена семьи предусматривается спальное место размером не менее 200´80 см. В спальнях, кроме супружеской, нельзя размещать более двух спальных мест. В спальне супругов предусматривается спальное место для ребенка в возрасте до трех лет. В одно- и двухкомнатных квартирах для сна может использоваться диван-кровать в зоне общесемейного отдыха. (В этих случаях устанавливается тумба для постельного белья, как и в жилых комнатах-спальнях).
При определении параметров функциональных зон необходимо учитывать приведенные ниже расстояния между мебелью в каждой зоне, а также ширину проходов.
В зонах сна и индивидуального отдыха ширина прохода вдоль ложа - кровати, тахты и т.п. - должна быть не менее 50 см. Такие проходы принимаются вдоль каждой из кроватей, расположенных смежно изголовьем к стене. В зонах занятий перед передней кромкой плоскости стола - пространство шириной не менее 70 см (рис. 45, а).
В зонах общесемейного отдыха расстояние между сиденьями дивана, кресел и между журнальным столом должно быть не менее 30 см, сзади и по бокам кресел - пространство шириной не менее 20 см для их отодвигания при пользовании и проходе между ними и журнальным столом. Неудобно устанавливать кресла боком непосредственно перед диваном. При угловом взаиморасположении дивана и кресла или двух кресел их сиденья могут заходить друг за друга не более чем на 10 см (рис. 45, б).
В обеденных зонах размеры стола принимаются из расчета не менее 60 см по фронту на одно посадочное место. Расстояние между краем стола и стеной или соседней мебелью должно быть не менее 60 см при одном стуле в ряду, 70 см при двух стульях, до 80 см при трех и более стульев (рис. 45, в).
В жилых комнатах-спальнях на одного и двух человек предусматривается место для занятий с рабочей плоскостью стола не менее 80´60 см на одного человека, в спальне супругов - туалетная тумба или стол, трансформируемые в рабочее место эпизодического использования. В однокомнатной квартире и в общей комнате двухкомнатной квартиры место для занятий может устраиваться в виде секретера или секретерного отделения шкафа. В зонах расположения шкафов, тумб и другой мебели с распашными дверцами и выдвижными ящиками свободное пространство перед ними принимается шириной не менее 70 см (рис. 45, г), перед шкафами с раздвижными дверцами и открытыми емкостями - не менее 50 см. Суммарная протяженность фронта встроенных и отдельно стоящих шкафов для платья и белья глубиной 60 см принимается из расчета не менее 0,8 м на одного человека. Шкафы могут размещаться как в жилых, так и в коммуникационных помещениях квартиры (кроме передней). В передней желательно предусматривать дополнительный, шкаф для хранения сезонной одежды. В однокомнатной квартире и в общей комнате квартир всех типов предусматриваются шкафы для общесемейных вещей культурно-бытового назначения. В шкафное оборудование может включаться место для установки телевизора. Шкафы или навесные полки для личных вещей культурно-бытового назначения желательно предусматривать и в жилых комнатах-спальнях на одного или двух человек.
При размещении мебели должны учитываться следующие требования:
расстояние от наружной стены со световыми проемами до торца ложа должно быть не менее 50 см, до его продольной стороны - не менее 70 см. Непосредственное примыкание ложа к окну не допускается;
рабочий стол должен располагаться не далее 1,0 м от окна и освещаться дневным светом прямо или слева;
зона общесемейного отдыха должна располагаться напротив экрана телевизора на расстоянии 2,5 - 3 м. Предельный угол наблюдения - не более 30°;
расстояние от окна до предметов мебели должно быть не менее 10 см. Мебель должна отстоять от края, дверного проема на 10 см, а при наличии около него электровыключателя и при высоте прилегающей мебели более 75 см - на 25 см;
ширина прохода между стационарной мебелью соседних зон должна быть не менее 50 см, прохода вдоль открытых дверец шкафов или сзади отодвинутых для сиденья стульев и мебелью соседних зон - не менее 30 см.
Примерные схемы функционально обоснованной меблировки жилых помещений квартир приведены на рис. 46 - 48.
Входная часть в квартиру может решаться как единое помещение - передняя - либо в виде двух помещений - собственно прихожей с местом для вешалки или шкафа для верхней одежды и более развитой части - холла, непосредственно связанного с общей комнатой. Ширину передней в квартирах с отдельным наружным входом рекомендуется увеличивать до 1,65 м.

Рис. 45. Правила организации функциональных зон
а - сна и занятий; б - отдыха; в - обеденных; г - хранения вещей

Рис. 46. Меблировка однокомнатных квартир различной площади
а - 12 - 13 м2; б - 18 - 19 м2


Рис. 47. Меблировка общей комнаты в двухкомнатных (а) и трехкомнатных (б) квартирах
Рис. 48. Меблировка спальных комнат различных типов и размеров
3.2. При выборе типа открытого помещения балкона, лоджии или террасы - следует руководствоваться климатическими условиями района строительства, необходимостью экономии материалов, строительных и эксплуатационных затрат, архитектурно-художественным замыслом и местом постановки здания. На фасадах, выходящих на магистрали с расчетным уровнем шума 70 дБА и более, устраивать балконы и лоджии нецелесообразно. В климатических подрайонах IА, IД и IIА применение балконов допускается лишь при устройстве ветро- и снегозащиты; в подрайонах IБ и IГ балконы следует устраивать только исходя из противопожарных требований. Балконы без ветрозащитных экранов можно устраивать в районах, где средняя скорость ветра за три летних месяца не превышает 3 м/с. Балконы верхнего этажа должны иметь защищающий от осадков козырек.
Глубину балконов и лоджий в I и II климатических районах целесообразно принимать 0,9 м (для возможности установки стула); в III и IV - 1,2 м (для возможности установки спального места); в подрайонах IБ и IГ балконы могут иметь ширину 0,6 м.
На лоджии целесообразно выделить хозяйственную зону, для зрительной изоляции которой следует устанавливать со стороны фасада экран высотой от пола не менее 1,8 м. Возможно выделение ветрозащитной зоны. В качестве экрана может применяться рама с остеклением в виде панели заводского производства. Такая зона должна занимать не более половины площади лоджии (рис. 49).
Высоту ограждения балконов и лоджий следует принимать дифференцированно, согласно ГОСТ 25772-83: при размещении до 10-го этажа включительно - не менее 1 м; в вышележащих этажах - не менее 1,1 м. Для унификации с ограждением, принимаемым для воздушной зоны в незадымляемой лестничной клетке, в зданиях высотой более 10 этажей целесообразно принимать высоту ограждения всех лоджий 1,2 м.
Рис. 49. Выделение на лоджии хозяйственной зоны
1 - кухня; 2 - общая комната
Для обеспечения психологического комфорта на балконах и лоджиях, расположенных на шестом этаже и выше, целесообразно увеличивать ширину ограждения путем оформления его в виде широкой цветочницы (рис. 50). В зданиях высотой более 10 этажей возможно также применять балконы и лоджии дифференцированно в зависимости от этажа - до 10-го этажа - балконы, выше - лоджии.
Рис. 50. Ограждение лоджий в домах высотой до 9 этажей (а), свыше 9 этажей (б) и с широкой цветочницей (в)
При подсчете площади балконов и лоджий нужно учитывать различия в понятии балкон и лоджия. Балконом принято называть огражденную площадку, вынесенную из плоскости фасада на защемленной в стене плите, на консолях или столбах. Балкон может быть огражден ветрозащитными экранами некапитальной конструкции высотой 1,8 м и более с одной или с двух сторон. Лоджией принято называть нишу в объеме здания, а также открытое с одной стороны помещение, огражденное с трех сторон капитальными конструкциями (пристроенная лоджия). Кроме того, может быть принято открытое помещение, часть которого представляет собой лоджию, а часть - балкон. Площадь такого помещения подсчитывается с коэффициентами, соответствующими каждой его части. Террасой называется огражденная горизонтальная площадка, расположенная на грунте, на выступающих частях дома или на крыше. В сельском жилищном строительстве при одноквартирных и блокированных домах во всех климатических районах целесообразно устройство веранды. Лоджии и балконы характерны для секционных домов, но могут быть и при блокированных.
Рис. 51. Площадки и открытые помещения у квартир первого этажа
а - примеры планировки квартир с выходом в палисадник; б - общий вид приквартирных палисадников
При наличии веранды предпочтительны решения с выходом на нее из кухни или, если позволяет планировка, одновременно из кухни и общей комнаты. Глубину веранды рекомендуется принимать не менее 1,8 м. Площадь веранды подсчитывается без понижающего коэффициента.
Для открытых помещений при квартирах первого этажа рекомендуются специфические решения в виде небольших приквартирных площадок, непосредственно примыкающих к дому, либо в виде внутренних двориков - атриумов (рис. 51). Небольшие приквартирные площадки становятся в этом случае принадлежностью и продолжением квартиры и могут использоваться для отдыха, постановки детской коляски и т.п. Связь квартиры с приквартирными площадками целесообразно осуществлять из общей комнаты и кухни через лоджию или мощеную площадку, заменяющую лоджию на первом этаже. Особенно удобно иметь в таких квартирах два входа - с улицы и с лестничной площадки. Наличие тамбура у входа в квартиру с улицы обеспечивает возможность пользоваться входом в любое время года. Это удобно людям с ограниченной подвижностью, поэтому такое решение следует рекомендовать для инвалидов и семей, в состав которых они входят. В квартирах с атриумами жилые комнаты размещаются вокруг атриума, используемого в качестве летнего помещения и служащего для освещения комнат.
Для того чтобы не изменять местоположение несущих стен и не создавать излишнее количество марок заводских изделий, та часть квартиры первого этажа, которая находится в пределах здания, должна иметь ту же планировку, что и в квартирах верхнего этажа. В части квартиры, выступающей за габариты здания, могут размещаться спальни. При квартирах домов высотой в два-три этажа целесообразно устраивать палисадник. В сельских населенных пунктах, а при возможности и в городской малоэтажной застройке, расположенных в IV климатическом районе, придомовое озелененное пространство должно обеспечивать улучшение микроклимата, затенения, проветривания, обводнения, и т.д. В климатическом подрайоне IVА это пространство рекомендуется делать замкнутым, изолированным от внешней среды, с созданием в нем искусственного природного ландшафта. В подрайоне IVВ пространство целесообразно иметь полузамкнутым, частично изолированным от внешней среды, раскрытым в сторону основных направлений благоприятных ветров, с развитой системой озеленения и наземных водных устройств. В подрайоне IVБ для максимальной аэрации это пространство может быть полностью открытым во внешнюю среду.
3.3. Общая площадь квартир при проектировании принимается в соответствии с предполагаемым числом членов семьи, заселяемым в квартиру. В зависимости от уровня обеспеченности жилищем (общей площади, приходящейся на одного человека при заселении квартир) в каждом районе строительства принимаются квартиры такого размера, чтобы при заселении их не оставалось излишней площади, приходящейся на 1 человека. В связи с этим квартиры с одинаковым количеством комнат целесообразно проектировать разных размеров - для различных условий заселения. Для определения при проектировании максимального количества спальных мест в квартирах разного размера, но с одинаковым числом комнат, можно пользоваться следующими рекомендациями: в однокомнатной малой - 1 спальное место, в большой - 1 или 2; в двухкомнатной малой - 2; в двухкомнатной большой и трехкомнатной малой - 3; в трехкомнатной большой и четырехкомнатной малой - 4; в четырехкомнатной большой и пятикомнатной малой - 5; в пятикомнатной большой и шестикомнатной малой - 6; в шестикомнатной большой - 7 и более спальных мест.
На рис. 52 приведены примеры квартир, размеры которых позволяют заселять их семьей с числом членов, равным количеству комнат в квартире при обеспеченности жилищем (в зависимости от местных условий) 20 - 25 м общей площади на 1 чел. При меньшей обеспеченности такие квартиры, кроме малой однокомнатной, могут заселяться семьей с числом членов на единицу большим, чем количество комнат в квартире.

Рис. 52. Квартиры, в которых число живущих может быть равно числу комнат
а - однокомнатная; б - двухкомнатная; в - трехкомнатная (см. с. 58)
3.4. В квартирах домов в городах и поселках могут устраиваться кухни различных типов: кухня-рабочая и кухня-столовая (самостоятельные помещения), а также кухня-ниша (часть жилого или подсобного помещения). Кухня-рабочая и кухня-ниша предназначены только для приготовления пищи. В кухне столовой кроме зоны приготовления пищи предусматривается размещение обеденной зоны.
Непосредственная связь и пространственное объединение жилых комнат и кухни допускается только в квартирах, оборудованных электрическими плитами.
При выборе размера кухни следует учитывать возможность размещения приведенного ниже состава санитарно-технических и электробытовых приборов, а также наборов кухонной мебели в зоне приготовления и приема пищи, так как целесообразное размещение и рациональный состав оборудования обеспечивают эффективность использования площади кухни и организации работ, что сокращает время на ведение домашнего хозяйства.
Общая протяженность фронта стены для размещения зоны приготовления пищи в кухнях площадью не менее 8 м2 должна быть не менее 2,7 м (длина фронта оборудования - не менее 2,5 м и 0,2 м - место для газового стояка). В кухнях площадью 5 м2 протяженность фронта стены может быть уменьшена до 2,5 м за счет сокращения длины напольного шкафа-стола.
В зоне приготовления пищи следует предусматривать размещение плиты (газовой или электрической), подстолья или шкафа с мойкой, устанавливаемых в процессе строительства. Кроме того, необходимо обеспечить место для размещения напольных шкафов-столов, холодильника (или шкафа для продуктов), настенных шкафов различного назначения. Могут устраиваться холодные шкафы для пищевых продуктов с охлаждением наружным воздухом, поступающим в шкаф через отверстия с регулирующим клапаном. Шкафы могут встраиваться в подоконную нишу, пристраиваться к наружной стене или выноситься на лоджию. Для хранения пищевых продуктов могут устраиваться при кухнях и холодные кладовые (рис. 53). Примеры таких решений широко распространены в зарубежной практике. Целесообразно предусмотреть возможность подключения к электросети и другим инженерным коммуникациям всех комплектующих изделий с учетом дополнительных электробытовых приборов: надплитного воздухоочистителя, светильника для местного освещения рабочей поверхности, электрооборудования для газовой плиты, часов, таймера и пр., а также морозильника, посудомоечной машины, СВЧ-печи, универсальной кухонной машины и других приборов.
Если позволяют расположение и вид инженерных коммуникаций, рекомендуется принимать последовательность размещения элементов и приборов оборудования в соответствии с порядком выполнения основных работ по приготовлению пищи, а именно: хранение продуктов - мойка и очистка - разделка продуктов - тепловая обработка пищи - сервировка блюд (холодильник - мойка - рабочий стол - плита - сервировочная плоскость).
В зависимости от размеров, планировки и назначения кухни стационарное оборудование зоны приготовления пищи может размещаться вдоль одной из стен (однорядное размещение), вдоль двух смежных стен (угловое размещение) и вдоль двух противоположных стен (двухрядное размещение), рис. 54.
Перед фронтом стационарного оборудования должно быть предусмотрено свободное пространство не менее 100 см для размещения работающего человека и удобного пользования оборудованием при открытых дверках, ящиках; для прохода человека в другие зоны и пр. (рис. 55).
Основную обеденную зону в квартире необходимо рассчитывать на полный численный состав семьи. Минимальный размер обеденного стола - 60´60 см. При размещении основной обеденной зоны вне кухни желательно предусматривать в кухне дополнительную обеденную зону. В обеденной зоне предусматривается такое размещение обеденного стола и группы стульев, которое обеспечивает удобство пользования и свободный проход позади сидящего человека. При размещении двух и более стульев расстояние от стола до стены должно быть не менее 75 см, при размещении одного стула - не менее 60 см.
На рис. 56 показаны примеры типовых схем размещения мебели и оборудования в кухнях различных типов размером от 5 м2 (допускаемых в однокомнатных квартирах) до 8 - 12 м2 и в кухнях-нишах, выполненных с соблюдением рекомендаций по составу и расположению функциональных зон и их оборудованию.
Рис. 53. Размещение холодных шкафов и кладовых для хранения продуктов
а - встроенных в подоконную нишу (ХПШ); б - пристроенных к наружной стене (ХШК); в - вынесенных на лоджию; г - при кухнях; 1 - регулировочный клапан; 2 - сетчатые полки и емкости
Рис. 54. Устройство функциональных зон в кухнях с размещением зоны приготовления пищи
II - однорядным; I - угловым; III - двухрядным; а - в кухне-нише; б, в и г - кухне рабочей; г, д - в кухне-столовой
Типы санитарно-технических приборов, электробытовых машин и приборов, кухонных шкафов и передвижной мебели показаны в соответствии с номенклатурой изделий массового производства. Их габариты приняты согласно действующим стандартам (рис. 57).
На всех примерах типовых схем размещения мебели и оборудования показаны унифицированные мойки размером 50´60 см и унифицированные по размерам газовые и электрические плиты с теплоизоляцией боковых стенок, что позволяет блокировать их с деревянными мебельными изделиями. Если предполагается установка плит без теплоизоляции, то расстояние от плиты до напольных деревянных шкафов должно приниматься не менее 15 см.
Расстояние не менее 15 см должно предусматриваться для размещения напольного оборудования у наружной стены с учетом свободного открывания окна, установки газового стояка и т.п. Если простенок, примыкающий к зоне приготовления пищи, меньше 60 см, то рекомендуется устанавливать напольное оборудование на расстоянии не менее 30 см от наружной стены.
Площадь и планировка сельской кухни должны предусматривать возможность приготовления корма скоту и птице, обработку продуктов подсобного хозяйства и пр. Площадь ее может приниматься 8 - 10 м2 в двух- четырехкомнатных квартирах и 10 - 12 м2 в пяти- шестикомнатных. Кухня в сельском одноквартирном и блокированном доме должна удобно сообщаться помимо общей комнаты с кладовой для продуктов, санитарным узлом, с хозяйственным помещением, подвалом, верандой, холодной кладовой и выходом на хозяйственный двор, а при одном входе в квартиру также с передней или шлюзом в непосредственной близости от входа (рис. 58 и 59). Желательно ориентировать кухню в сторону приквартирного участка.
В IV климатическом районе кухня может размещаться вне пределов капитальных стен, например, в одноэтажной пристройке, где могут находиться также хозяйственное помещение, санитарный узел и кладовые.
Рис. 55. Схема рациональной привязки оборудования в кухнях разного размера
1 - постановочная часть зоны приготовления пищи; 2 - рабочая часть зоны; 3 - обеденная зона; 4 - входная зона

Рис. 56. Схемы размещения мебели и оборудования в кухнях-нишах площадью 3 - 6 м2 (а), кухнях площадью 5 - 6 м2 (б), с вариантом размещения холодильника и вентиляционного блока (в), 8 - 9 м2 (г) 10 - 12 м2 (д)
Рис. 57. Наборы стационарного кухонного оборудования
А - однорядный для одно- двухкомнатных квартир; Б - угловой для четырех- пятикомнатных квартир; 1 - плита напольная газовая или электрическая, блокированная с элементами кухонного оборудования; 2 - шкафы-столы напольные рядовые или угловые; 3 - машина посудомоечная напольная; 4 - шкаф с мойкой; 5 - холодильник электрический; 6 - шкафы настенные; 7 - электровоздухоочиститель надплитный; д - панель для светильника, часов, таймера, радиоприемника и т.д.; 9 - электробытовой прибор, встраиваемый в мебельные изделия (СВЧ-печь, жарочный электрошкаф)
Рис. 58. Взаимосвязь кухни в сельском доме с другими помещениями
1 - кухня; 2 - вход в квартиру; 3 - подвал; 4 - продуктовая кладовая; 5 - ванная, уборная; 6 - веранда (терраса); 7 - общая комната
Рис. 59. Кухня сельского жилого дома с плитой на твердом топливе, водоснабжением и канализацией (а) и без водоснабжения и канализации (б)
1 - плита на твердом топливе; 2 - мойка; 3 - шкаф с мойкой; 4 - холодильник; 5 - рабочий стол-шкаф; 6 - шкаф-стол угловой; 7 - шкаф-стол для топлива; 5 - шкаф-стол холодный у наружной стены под окном; 9 - шкаф-стол для бака с водой; 10 - стол обеденный; 11 - ларь-скамья; 12 - табурет
3.5. В зависимости от планировочных решений и размеров квартир в них предусматриваются два основных типа санитарно-гигиенических помещений:
раздельный санитарный узел-блок ванной комнаты и уборной;
совмещенный санитарный узел.
Ванная комната - помещение, рассчитанное на установку ванны с габаритами в плаче 1500´700 или 1700´750 мм и умывальника с габаритом в плане не менее 550´420 мм. Допускается установка в ванной комнате душевого поддона с габаритом в плане не менее 800´800 мм. Уборная - помещение, рассчитанное на установку унитаза с габаритом в плане не менее 670´400 мм. Совмещенный санитарный узел - помещение, рассчитанное на установку ванны, умывальника и унитаза.
Для более комфортных решений возможно устройство туалетной комнаты - помещения, рассчитанного на установку унитаза и рукомойника с габаритом в плане не менее 480´325 мм.
Совмещённые санузлы применяются в однокомнатных квартирах или в квартирах из четырех и более комнат при наличии в этих квартирах туалетных комнат. В остальных типах квартир предусматриваются раздельные санузлы. Примеры планировочных решений санитарно-гигиенических помещений, выполняемых в виде объемных санитарно-технических кабин заводского изготовления, приводятся на рис. 60 и 61.
В ванных комнатах и совмещенных санузлах должна предусматриваться возможность размещения стиральной машины (максимальный габарит в плане 600´500 мм). Рекомендуется предусматривать возможность стационарного подключения автоматической стиральной машины к сети горячего водоснабжения. Схема установки автоматической стиральной машины в ванной комнате дана на рис. 62. В отдельных случаях при специальных технических обоснованиях, а также для индивидуального строительства могут применяться санитарно-гигиенические помещения повышенной комфортности с расширенным составом оборудования. В них рекомендуется устанавливать раздельные смесители для ванны и умывальника вместо одного смесителя, принятого в типовых решениях, а также биде с габаритом в плане 640´350 мм и мебельные емкости. Примеры планировочных решений санитарно-гигиенических помещений повышенной комфортности приведены на рис. 63.
При отсутствии в сельских населенных пунктах централизованных систем инженерного оборудования допускается предусматривать в домах децентрализованные системы холодного и горячего водоснабжения и канализации. При отсутствии горячего водоснабжения в ванной комнате следует предусматривать место для водогрейной колонки диаметром 0,46 м при газе и 0,32 м при твердом топливе. При устройстве в доме люфт-клозета необходимо уборную размещать около наружной стены, а перед уборной организовать шлюз с подогревом воздуха (см. рис. 42, а, е).
3.7. В целях улучшения микроклимата и повышения экономических показателей домов в подрайонах с сухим жарким летом (IVА, IVГ, IIIА) и на территориях со штилевыми погодными условиями подрайона IVВ рекомендуется использовать горизонтально-вертикальное проветривание квартир, через световентиляционные или вентиляционные шахты.
Размер сечения световентиляционных шахт рекомендуется принимать в плане 1:20 - 1:10 от проветриваемой площади, т.е. общей площади всех проветриваемых через шахту квартир в каждом этаже. С целью обеспечения минимального освещения подсобных помещений квартир, обращенных в шахту, отношение меньшей стороны такой шахты в плане к ее общей высоте не должно превышать 1:8.
Размер сечения вентиляционных шахт для проветривания квартир рекомендуется принимать в плане 1:20 - 1:30 от проветриваемой площади с отношением меньшей стороны шахты в плане к высоте 1:8 и более (рис. 64).
Горизонтально-вертикальное проветривание квартир может быть организовано также через внутриквартирную лестницу и противоположно ориентированные проемы.
Рис. 60. Планировочные решения объемных железобетонных санитарно-технических кабин
а - раздельный санузел; 6 - совмещенный санузел; в - туалетная комната
Рис. 61. Перспектива решения объемных санитарно-технических кабин, совмещенных с вентиляционным блоком
а - раздельный санузел; в - совмещенный санузел
Рис. 62. Схема размещения автоматической стиральной машины максимальных размеров, подключаемой к инженерному оборудованию
1 - стиральная машина; 2 - наливной шланг; 3 - сливной шланг; 4 - электрошнур
Рис. 63. Планировочные решения санитарно-гигиенических помещений повышенной комфортности
а - раздельный санузел; б - совмещенный санузел
Рис. 64. Схема устройства шахтного проветривания в четырехквартирной секции
Рис. 65. Схема раздельного проветривания жилых и подсобных помещений квартир
Рис. 66. Схемы углового (а) и сквозного (б) проветривания одно- и двухкомнатных квартир в коридорных домах
Рис. 67. Планировочные решения одно- и двухкомнатных квартир в галерейном доме
В подрайоне IVБ, где в силу повышенной влажности воздуха проветривание имеет особенно большое значение, рекомендуется предусматривать самостоятельные линии горизонтального сквозного проветривания жилых и подсобных помещений (рис. 65). Планировочную структуру квартир со сквозным (угловым) проветриванием рекомендуется принимать из расчета, чтобы в случае установки кондиционера (и как следствие этого - закрытого режима) в части комнат, остальные комнаты не лишались проветривания и могли проветриваться через переднюю-холл, заглубленное в плане открытое помещение (лоджия, зеленая комната и др.), обеденное место семьи или другие комнаты.
Схемы проветривания одно- и двухкомнатных квартир в коридорных домах показаны на рис. 66.
Планировочные решения одно- и двухкомнатных квартир в галерейном доме, имеющих сквозное проветривание, показаны на рис. 67.
4.1. Общежития предназначены для временного проживания следующих контингентов молодежи (иногородних):
рабочих и служащих (одиночек) в возрасте от 18 до 25 лет;
студентов высших учебных заведений (одиночек) в возрасте от 17 до 25 лет;
учащихся профессионально-технических и средних специальных учебных заведений (одиночек) в возрасте от 14 до 18 лет;
семейной молодежи (рабочих, служащих, студентов высших учебных заведений) в возрасте от 18 до 30 лет.
4.2. При разработке типовых проектов следует разрабатывать единый проект общежития для одиночек (студентов, рабочих и служащих) с вариантами решения помещений культурно-бытового обслуживания:
с полным набором обслуживающих помещений (предназначается для использования при строительстве студенческих общежитий, размещаемых вдали от вузовского комплекса или комплекса общежитий, а также отдельно стоящих общежитий для рабочих и служащих.
с сокращенным набором обслуживающих помещений (предназначается для использования при строительстве общежитий в составе вузовского комплекса или комплекса общежитий для рабочих и служащих).
Учитывая временный характер проживания, при проектировании общежитий следует стремиться к максимальной экономичности объемно-планировочных решений.
При проектировании крупнопанельных общежитий необходимо максимально использовать строительные изделия, применяемые для квартирных домов, с минимальным количеством дополнительных марок изделий. В связи с этим рекомендуемые площади помещений обслуживания, приведенные в табл. 3 и 4, следует рассматривать как ориентировочные. Окончательный их выбор должен делаться с учетом унификации конструктивно-планировочных параметров.
4.3. В общежитиях всех типов устраивается контролируемый вход: в вестибюле организуется огороженное барьером место для швейцара или устраивается комната площадью не менее 6 м2. В секционных общежитиях могут устраиваться несколько контролируемых входов. Вблизи от входа целесообразно размещать комнату заведующего и паспортистки.
Таблица 3
|
Площадь, м2, при вместимости общежитий, чел. |
Примечания |
|
||||||||||||||||||||
|
25 |
50 |
100 |
200 |
400 |
600 |
800 |
1000 |
1200 |
|
|||||||||||||
|
Вестибюль |
15 |
20 |
25 |
30 |
60 |
90 |
120 |
150 |
180 |
|
|
|||||||||||
|
Помещения администрации и персонала: |
|
|
|
|
|
|
|
|
|
|
|
|||||||||||
|
комната заведующего общежитием |
12 |
12 |
12 |
12 |
12 |
15 |
18 |
20 |
24 |
|
|
|||||||||||
|
(заведующий и инженер) |
|
|||||||||||||||||||||
|
комната заведующего хозяйством |
- |
- |
- |
- |
12 |
15 |
18 |
20 |
24 |
|
|
|||||||||||
|
(с хозкладовой) |
|
|
||||||||||||||||||||
|
комнаты воспитателей в общежитиях для рабочих и служащих (одиноких) |
- |
- |
11 |
18 |
2´12 |
3´12 |
4´12 |
5´12 |
6´12 |
Количество комнат проектируется из расчета 1 воспитатель на 200 проживающих |
|
|||||||||||
|
комнаты общественных организаций и комнаты дежурных преподавателей в студенческих общежитиях |
- |
- |
11 |
18 |
24 |
36 |
48 |
60 |
72 |
|
|
|||||||||||
|
комната паспортистки |
- |
- |
- |
- |
- |
12 |
12 |
12 |
2´10 |
|
|
|||||||||||
|
мастерская слесаря |
- |
- |
- |
- |
12 |
12 |
12 |
14 |
14 |
|
|
|||||||||||
|
мастерская электрика |
- |
- |
- |
- |
- |
- |
12 |
12 |
12 |
|
|
|||||||||||
|
мастерская столяра |
- |
- |
- |
- |
- |
- |
- |
12 |
14 |
|
|
|||||||||||
|
Кладовые: |
|
|
|
|
|
|
|
|
|
|
|
|||||||||||
|
чистого белья грязного белья |
15 |
18 |
20 |
12 10 |
17 14 |
22 19 |
28 24 |
32 26 |
34 28 |
|
|
|||||||||||
|
спортивного инвентаря |
- |
- |
8 |
10 |
14 |
19 |
24 |
26 |
28 |
|
|
|||||||||||
|
хозяйственного инвентаря |
- |
7 |
10 |
12 |
17 |
22 |
28 |
32 |
34 |
|
|
|||||||||||
|
личных вещей |
- |
- |
- |
20 |
33 |
43 |
48 |
54 |
57 |
|
|
|||||||||||
|
уборочного инвентаря (с санитарным узлом) |
- |
- |
4 |
4 |
5 |
7 |
8 |
10 |
12 |
|
|
|||||||||||
|
Помещения для культурно-массовых мероприятий, отдыха, учебных и спортивных занятий для одиноких: |
|
|
|
|
|
|
|
|
|
|
|
|||||||||||
|
зал-аудитория с кулуарами |
20 |
25 |
40 |
56 |
52 |
78 |
104 |
130 |
156 |
|
|
|||||||||||
|
комнаты отдыха |
60 |
90 |
120 |
150 |
180 |
|
||||||||||||||||
|
комнаты для учебных занятий |
- |
20 |
40 |
80 |
160 |
240 |
320 |
400 |
480 |
|
|
|||||||||||
|
помещения для работы кружков и для спортивных занятий |
- |
33 |
57 |
102 |
116 |
156 |
184 |
190 |
192 |
|
|
|||||||||||
|
Настольный теннис |
Бадминтон |
Размеры помещения для настольного тенниса - 7,75´4,5 м, высота 3 м; для бадминтона 15´8 м, высота 7 м. В помещениях для кружков предусматриваются встроенные шкафы - 10 % площади комнаты |
||||||||||||||||||||
|
|
|
|||||||||||||||||||||
|
библиотека-передвижка |
- |
- |
- |
- |
12 |
18 |
24 |
30 |
100 |
|
|
|||||||||||
|
Комната отдыха для семейных |
15 |
15 |
18 |
20 |
40 |
60 |
80 |
100 |
120 |
В общежитиях на 400 мест и более в норму площади комнаты отдыха включена кухня или кухня-ниша площадью не менее 7 м2 |
|
|||||||||||
|
Комнаты для учебных занятий (для семейных) |
15 |
15 |
18 |
20 |
40 |
60 |
80 |
100 |
120 |
|
|
|||||||||||
|
Кухни: |
Площадь кухни не менее |
|
||||||||||||||||||||
|
для семейных |
|
|||||||||||||||||||||
|
» одиноких |
|
|||||||||||||||||||||
|
Помещения общественного питания для одиноких, посадочных мест: |
|
|
|
12 |
24 |
36 |
|
|
|
|
|
|||||||||||
|
буфет |
- |
- |
- |
12 |
24 |
36 |
- |
- |
- |
|
|
|||||||||||
|
молодежное кафе |
- |
- |
- |
- |
- |
- |
48 |
60 |
72 |
|
|
|||||||||||
|
Помещения для стирки, сушки и глажения одежды |
- |
18 |
33 |
54 |
60 |
84 |
96 |
100 |
108 |
Оборудуются бытовыми стиральными машинами, сушильными барабанами или шкафами и гладильными досками. В общежитиях для семейных помещения могут не предусматриваться |
|
|||||||||||
|
Комната для кратковременного пребывания детей |
- |
15 |
15 |
16 |
32 |
48 |
64 |
80 |
96 |
|
|
|||||||||||
|
Изолятор (для одиноких), коек |
- |
- |
1 |
1 |
2 |
3 |
4 |
5 |
6 |
|
|
|||||||||||
|
Санитарно-гигиенические помещения: |
|
|
|
|||||||||||||||||||
|
для одиноких |
1 душ или ванна, 1 умывальник и 1 унитаз на 4 - 6 чел. |
|
|
|||||||||||||||||||
|
» семейных |
1 ванна, 1 унитаз и 1 умывальник на 2 - 3 чел. |
|
|
|||||||||||||||||||
|
Встроенные шкафы для хранения одежды, белья и обуви |
0,5 м2 на 1 чел. |
|
|
|||||||||||||||||||
|
||||||||||||||||||||||
Примечания:
1. Площади помещений для общежитий промежуточной вместимости определяются интерполяцией.
2. В зависимости от местных условий в общежитиях для рабочих и служащих могут устраиваться помещения для сушки и хранения рабочей одежды и обуви 0,2 м2 на 1 чел., пользующегося помещениями, а в сельских районах - для всех проживающих в общежитии.
3. В подвальных и цокольных этажах общежитий могут устраиваться кладовые для хранения овощей и предметов домашнего обихода площадью не менее 1 м2 на каждого проживающего.
4. В общежитиях для студентов высших учебных заведений при размещении их вне учебного комплекса помещения для занятий могут быть увеличены за счет уменьшения площади комнат отдыха.
5. Оборудование помещений, перечисленных в табл. 3, предусматривается с учетом «Типовых норм оборудования общежитий мебелью, постельными принадлежностями и другим инвентарем».
Таблица 4
|
Площадь помещений, м2, при вместимости общежитий, чел. |
Примечания |
||||||
|
200 |
400 |
600 |
800 |
1000 |
1200 |
||
|
Вестибюль |
0,15 30 |
0,15 60 |
0,15 90 |
0,15 120 |
0,15 150 |
0,15 180 |
|
|
Для администрации и персонала |
|
||||||
|
Комната заведующего общежитием |
0,04 8 |
0,02 8 |
0,02 12 |
0,02 16 |
0,02 20 |
0,02 24 |
|
|
Комната заведующего хозяйством |
- |
0,02 8 |
0,02 12 |
0,02 16 |
0,02 20 |
0,02 24 |
|
|
Комната воспитателя* |
0,16 8 ´ 4 = 32 |
0,16 8 ´ 8 = 64 |
0,16 8 ´ 12 = 96 |
0,16 8 ´ 16 = 128 |
0,16 8 ´ 20 = 160 |
0,16 8 ´ 24 = 192 |
|
|
Кладовые для хранения: |
|
|
|
|
|
|
|
|
чистого белья |
0,06 12 |
0,04 16 |
0,03 18 |
0,03 24 |
0,03 30 |
0,03 36 |
|
|
грязного белья |
0,05 10 |
0,03 12 |
0,02 12 |
0,02 16 |
0,02 20 |
0,02 24 |
|
|
спортивного инвентаря |
0,07 14 |
0,04 16 |
0,03 18 |
0,03 24 |
0,03 30 |
0,03 36 |
|
|
хозяйственного инвентаря |
0,07 14 |
0,04 16 |
0,04 24 |
0,03 24 |
0,03 30 |
0,03 36 |
|
|
личных вещей |
0,09 18 |
0,06 24 |
0,06 36 |
0,05 40 |
0,04 40 |
0,04 48 |
|
|
уборочного инвентаря* |
0,01 0,5 ´ 4 = 2 |
0,01 0,5 ´ 8 = 4 |
0,01 0,5 ´ 12 = 6 |
0,01 0,5 ´ 16 = 8 |
0,01 0,5 ´ 20=10 |
0,01 0,5 ´ 24 = 12 |
|
|
Мастерские слесаря, электрика и столяра |
0,05 10 |
0,03 12 |
0,03 18 |
0,03 12 + 12 |
0,02 12 + 12 |
0,02 12 + 72 |
|
|
Для культурно-массовых мероприятий, отдыха, учебных и спортивных занятий |
|
|
|
|
|
|
|
|
Зал-аудитория |
0,27 54 |
0,14 56 |
0,1 60 |
0,08 64 |
0,07 70 |
0,07 72 |
|
|
Комнаты для работы кружков |
0,08 16 |
0,04 16 |
0,05 30 |
0,05 40 |
0,05 50 |
0,05 60 |
|
|
Комнаты отдыха* |
0,6 30 ´ 4 = 120 |
0,6 30 ´ 8 = 240 |
0,6 30 ´ 12 = 360 |
0,6 30 ´ 16 = 480 |
0,6 30 ´ 20 = 600 |
0,6 30 ´ 24 = 720 |
|
|
Комнаты для учебных* занятий |
0,6 30 ´ 4 = 120 |
0,6 30 ´ 8 = 240 |
0,6 30 ´ 12 = 360 |
0,6 30 ´ 16 = 480 |
0,6 30 ´ 20 = 600 |
0,6 30 ´ 24 = 720 |
|
|
Помещение для спортивных занятий |
- |
- |
- |
- |
0,04 40 |
0,04 48 |
|
|
Библиотека-передвижка |
0,18 36 |
0,09 36 |
0,06 36 |
0,05 40 |
0,04 40 |
0,04 48 |
|
|
Буфет, посадочных мест м2 |
12 36 |
24 58 |
36 82 |
48 105 |
60 71 + 71 |
72 82 + 82 |
|
|
Молодежное кафе, посадочных мест м2 |
|
|
36 190 |
48 226 |
60 270 |
72 310 |
|
|
Кухня* |
0,2 10 ´ 4 = 40 |
0,2 10 ´ 8 = 80 |
0,2 10 ´ 12 = 120 |
0,2 10 ´ 16 = 160 |
0,2 10 ´ 20 = 200 |
0,2 10 ´ 24 = 240 |
Изымается из площади кухни 0,6 м2 для помещений администрации и культурно-массовых мероприятий |
|
Помещения для стирки сушки* и глажения одежды |
0,16 8 ´ 4 = 32 |
0,16 8 ´ 8 = 04 |
0,16 8 ´ 12 = 96 |
0,16 8 ´ 16 = 128 |
0,16 8 ´ 20 = 160 |
0,16 8 ´ 24 = 192 |
|
|
Изолятор, число коек |
1 |
2 |
3 |
4 |
5 |
6 |
|
|
Санитарно-гигиенические помещения |
1 душ, 1 умывальник, 1 унитаз на 4 - 6 чел. |
|
|||||
|
Встроенные шкафы для хранения одежды, белья и обуви |
0,5 м2 на 1 чел. |
|
|||||
Примечания:
1. В тех случаях, когда площади приведены в виде дроби, над чертой указаны нормы площади помещений на 1 чел., под чертой - площади помещений.
2. Площади помещений для общежитий промежуточной вместимости определяются интерполяцией.
3. В зависимости от местных условий в общежитиях для учащихся профессионально-технических и средних специальных учебных заведений допускается проектирование помещений для сушки и хранения рабочей одежды и обуви по норме 0,2 м2 на 1 чел., пользующегося помещением. Данные помещения размещаются при жилых группах (10 м2 на 50 чел.) и оборудуются шкафами, сушилками и умывальниками.
4. Звездочкой отмечены обслуживающие помещения повседневного пользования, размещаемые при каждой жилой ячейке.
4.4. Общежития для рабочих, служащих и студентов высших учебных заведений рекомендуется проектировать либо в виде отдельных зданий вместимостью от 25 до 1500 мест, либо в виде комплексов вместимостью более 1500 мест.
Общежития для рабочих и служащих (одиночек), как правило, следует размещать на обособленных участках селитебной территории а для студентов вузов - на земельных участках учебных заведений или на обособленных участках.
Общежития на 1000 - 1500 мест целесообразно строить лишь в крупнейших городах; на 600 - 800 мест - в крупных городах; на 200 - 400 мест - в средних и малых городах; на 25 - 150 мест - в сельской местности. При выборе этажности необходимо учитывать особенности места строительства, технико-экономические и другие факторы. Для крупных и крупнейших городов рекомендуются, как правило, здания от 9 до 12 этажей, для средних городов 4 - 5 этажей, для сельского строительства от 1 до 4 этажей.
В общежитиях должны быть созданы условия для основных процессов жизнедеятельности: отдыха, сна, приема пищи, личной гигиены, общественной деятельности, самостоятельной подготовки к учебным занятиям, организации вечеров, дискотеки, занятий в различных кружках, занятий спортом и др. С этой целью следует предусматривать жилые ячейки и помещения культурно-бытового обслуживания: для общественного питания, культурно-массовых мероприятий, отдыха, учебных и спортивных занятий, административно-хозяйственные, изолятор, различные кладовые, технические помещения, ремонтные мастерские (рис. 68).
Следует обеспечивать удобную функциональную связь жилой части общежитий и помещений обслуживания. Жилая ячейка общежития для одиноких рабочих, служащих и студентов рассчитывается на расселение от 4 до 12 чел. В состав каждой жилой ячейки входят: жилые комнаты, передняя, кухня и санитарно-гигиенические помещения (рис. 69 и 73).
Жилые комнаты оборудуются встроенными шкафами для одежды, белья и обуви из расчета на каждого проживающего.
В кухнях или кухнях-нишах предусматривается следующее оборудование: электрические плиты из расчета 1 конфорка на 2 чел.; 1 мойка и шкаф под мойку на 6 человек; 1 стол-шкаф на 6 чел.; 1 навесная полка на 3 чел. В кухне предусматривается место для установки холодильника. Может применяться кухонный блок длиной 1,6 м на 4 - 6 чел., состоящий из электроплиты, мойки, холодильника, стола-шкафа и навесных полок. В кухнях-нишах предусматривается устройство механической вентиляции.
Санитарно-гигиенические помещения проектируются в соответствии с табл. 3. Допускается применение санитарно-технических кабин заводского изготовления.
В общежитиях для рабочих, служащих и студентов вузов (одиноких) предусматривается почти одинаковый состав помещений культурно-бытового обслуживания с учетом следующих различий: в студенческих общежитиях не предусматриваются комнаты воспитателей, вместо них проектируются комнаты дежурных преподавателей, общественных организаций и интерклуб.
Ориентировочные площади помещений культурно-бытового обслуживания и подсобных помещений для рабочих, служащих и студентов приведены в табл. 3.
В дополнение к помещениям культурно-бытового обслуживания, перечисленным в табл. 3, в соответствии с постановлением ЦК КПСС, Совета Министров СССР, ВЦСПС и ЦК ВЛКСМ № 328 от 13 марта 1987 г. «О мерах по улучшению материальных и жилищно-бытовых условий аспирантов, студентов высших и учащихся средних специальных учебных заведений» следует предусматривать в общежитиях для студентов-одиночек: библиотеку с читальным залом и книгохранилищем (в общежитиях на 400 мест и более), медицинский пункт (в общежитиях на 1000 мест и более), профилакторий на группу общежитий, комнаты для приезжающих родственников студентов, в вестибюле киоски «Союзпечать» и аптечный. Кроме того, в зависимости от местных условий допускается предусматривать приемный пункт химчистки и ремонта обуви и пункт проката предметов домашнего обихода и спортивного инвентаря (в общежитиях на 1000 мест и более). Вместо молодежного кафе допускается проектировать столовую.
Оборудование комнат для занятий принимается в зависимости от специфики обучение Общежития для студентов художественных, театральных и музыкальных вузов следует проектировать с учетом специальных требований.
Рис. 68. Функциональная структура общежития для рабочих, служащих и студентов вузов (одиноких)
Рис. 69. Примеры жилых ячеек общежитий для рабочих и служащих (одиноких)
I - жилые ячейки, состоящие из жилых комнат, санитарно-гигиенических помещений и кухни с естественным освещением (а - на 8 чел.; б - на 4 чел.); II - жилые ячейки, состоящие из жилых комнат, передней, санитарного узла и кухни-ниши без естественного освещения (в - на 6 чел.; г - на 4 чел.; д - на 5 чел.)

Рис. 70. Примеры планов типовых этажей общежития для рабочих и служащих (одиноких)
I - общежития с кухнями, имеющими естественное освещение (1 - жилая комната на 2 чел.; 2 - кухня; 3 - комната отдыха); II - общежития с кухнями-нишами без естественного освещения; а - в двухэтажном здании (1 - жилая комната на 2 чел.; 2 - кухня-ниша; 3 - комната отдыха; 4 - зал для культурно-массовых мероприятий); б - в шестиэтажном здании (1, 2 - жилые комнаты соответственно на 2 и на 3 чел.; 1 - кухня ниша; 4 - комната отдыха)
Рис. 71. Размещение помещений культурно-бытового обслуживания общежития для рабочих и служащих (одиноких)
а - на первом этаже: 1 - вестибюль; 2 - холл; 3 - комната заведующего общежитием; 4 - комната персонала; 5 - комната заведующего хозяйством; 6 - кладовая чистого белья; 7 - кладовая грязного белья; 8 - хозяйственная кладовая; 9 - кладовая личных вещей; 10 - кладовая спортивного инвентаря; 11 - буфет; 12 - моечная посуды; 13 - подсобное помещение буфета; 14 - изолятор; 15 - сушилка рабочей одежды и обуви; 16 - постирочная; 17 - комната чистки и глажения одежды; 18 - сушильная с гладильной; 19 - электрощитовая; б - на первом этаже и в блоке обслуживания; 1 - комната швейцара; 2 - комната заведующего общежитием; 3 - комната персонала; 4 - кладовая личных вещей; 5 - кладовая спортивного инвентаря; 6 - хозяйственная кладовая; 7 - зал-аудитория; 8 - кулуары при зале-аудитории; 9 - буфет; 10 - подсобное помещение буфета; 11 - мойка посуды; 12 - комната для занятий кружков; 13 - библиотека-передвижка; 14 - комната отдыха; 15 - построчная; 15 - сушилка
Рис. 72. Блоки обслуживания на 800 - 1000 чел.
а - план первого этажа: 1 - вестибюль; 2 - зал молодежного кафе; 3 - раздаточная; 4 - производственное помещение; 5 - моечная столовой посуды; 6 - моечная кухонной посуды; 7 - гардероб персонала; 8 - комната персонала; 9 - кабинет директора; 10 - загрузочная; 11 - охлаждаемая камера; 12 - кладовая сухих продуктов; 13 - бельевая; 14 - постирочная; 15 - сушильная и гладильная; 16 - электрощитовая; 17, 18 - зал для игры в бадминтон; 19 - зал для культурно-массовых мероприятий; 20 - фотолаборатория; 21 - радиоузел; 22 - помещение при эстраде; 23 - выставочный зал; 24 - клубная комната; 25 - курительная комната; 26 - библиотека-передвижка; 27 - фойе; б - варианты присоединения блока обслуживания к жилой части (I - переходы, II - вестибюли); в - план второго этажа
Рис. 73. Жилые ячейки общежитий для студентов вузов (одиночек)
I - из жилых комнат, передней и санитарно-гигиенических помещений (кухня предусматривается общая на несколько жилых ячеек); II - из одной-двух жилых комнат, передней, санитарно-гигиенических помещений и кухни-ниши с естественным освещением или без него; а, г - на 5 чел., б - на 4 чел., с комнатой для занятий; в - на 4 чел.; д - на 6 чел.
Примечание. При экономических возможностях комфорт проживания студентов может быть повышен путем устройства кухни при каждой жилой ячейке.


Рис. 74. Планировочные решения типовых этажей общежитий для студентов вузов (одиноких)
а - малоэтажное общежитие на 400 мест; б - многоэтажное общежитие на 1000 мест; 1 - жилая комната; 2 - кухня; 3 - комната для занятий; 4 - комната отдыха; 5 - комната дежурного педагога; 6 - комната для глажения одежды
Рис. 75. Планировочные решения первого и цокольного этажей многоэтажного студенческого общежития на 1000 мест
а - план первого этажа; б - план цокольного этажа; 1 - вестибюль; 2 - комната заведующего общежитием; 3 - комната заведующего хозяйством; 4 - комната общественных организаций; 5, 6 - кладовые хозяйственного инвентаря; 7 - кладовая чистого белья; 8 - кладовая грязного белья; 9 - помещение для стирки, сушки и глажения одежды; 10 - палата изолятора; 11 - комната паспортистки; 12 - торговый зал молодежного кафе; 13 - горячий цех; 14 - холодный цех; 15 - овощной цех; 16 - кладовая; 17 - раздаточная; 18 - моечная; 19 - буфет; 20 - помещение совета кафе; 21 - чертежный зал; 22 - комнаты для работы кружков; 23 - зал для спортивных занятий; 24 - зал-аудитория с кулуарами; 25 - гардероб для персонала; 26 - кладовые кафе; 27 - технические помещения; 28 - кладовая личных вещей; 29 - кладовая хозяйственного инвентаря; 30 - кладовая спортивного инвентаря; 31 - мастерская слесаря; 32 - мастерская электрика; 33 - мастерская столяра; 34 - электрощитовая
Рис. 76. Размещение помещений культурно-бытового обслуживания в общежитиях для студентов вузов (одиноких)
I - общежитие на 700 мест с пристроенным блоком обслуживания; а - план первого этажа; б - план второго этажа; II - общежитие на 300 мест со встроенно-пристроенными помещениями культурно-бытового обслуживании; 1 - вестибюль; 2 - зал-аудитория с кулуарами; 3 - помещение для спортивных занятий; 4 - буфет; 5 - подсобное помещение буфета; 6 - зал молодежного кафе; 7, 8 - цехи, подсобные помещения и кладовые кафе; 9 - гардероб персонала; 10 - помещение студенческого совета кафе; 11 - санитарные узлы; 12 - кабинет заведующего общежитием; 13 - комната дежурного педагога; 14 - комната паспортистки; 15 - комната общественных организаций; 16 - комната обслуживающего персонала; 17 - палата изолятора; 18 - кладовая белья; 19 - кладовая хозяйственная; 20 - комната завхоза; 21 - кладовая личных вещей; 22 - кладовая спортивного инвентаря; 23 - электрощитовая; 24 - помещение для стирки, сушки и глажения одежды; 25 - комнаты для учебных занятий; 26 - кружковые; 27 - кладовые уборочного инвентаря; 28 - техническое помещение
4.5. Помещения культурно-бытового обслуживания можно размещать на нижних этажах здания (встроенно-пристроенные), на промежуточных общественных или на верхнем этаже при условии удобной связи этих помещений с жилыми. В подвальных и цокольных этажах допускается размещать приемные пункты бытового обслуживания, пункты проката предметов домашнего обихода и спортивного инвентаря, книгохранилища, кладовые, постирочные, ремонтные мастерские, технические помещения.
Помещения обслуживания рекомендуется объединять в функциональные зоны: административно-хозяйственную; общественного питания; культурно-массовых мероприятий и спортивных занятий (рис. 71, 75, 76).
В многоэтажных общежитиях помещения для учебных занятий и отдыха рекомендуется приближать к жилым ячейкам, размещая их на жилых этажах.
В блоке обслуживания, связанном с жилой частью теплым переходом, могут размещаться следующие помещения: зал-аудитория с кулуарами, помещение для спортивных занятий (настольный теннис или бадминтон), комнаты для работы кружков, библиотека, буфет, молодежное кафе, помещения для стирки, сушки и глажения одежды (см. рис. 72).
В общежитиях с блоком обслуживания вход в здание рекомендуется предусматривать через блок обслуживания. Применение отдельно стоящих блоков обслуживания в I климатическом районе нерационально.
Нецелесообразно также применение блоков обслуживания при строительстве общежитий в крупных городах на небольших земельных участках. В таких случаях рекомендуется устройство встроенно-пристроенных обслуживающих помещений.
Постирочная отделяется от коридора шлюзом.
4.6. Общежития семейной молодежи предназначаются для временного проживания семейных рабочих, служащих и студентов вузов - бездетных пар, супругов с одним ребенком дошкольного возраста и неполных семей (один из родителей с ребенком). Такие общежития размещаются в жилых микрорайонах вблизи от детских учреждений. Вместимость зданий рекомендуется принимать от 25 до 1200 мест.
Для строительства в крупных городах целесообразны компактные объемно-планировочные решения зданий, например односекционные многоэтажные общежития с прямоугольной или усложненной формой плана (в виде трилистника, креста, круга и т.п.).
Кооперированные общежития для рабочих или студентов нескольких предприятий или вузов рекомендуется проектировать в виде многосекционных зданий с целью возможности расселения сотрудников каждого предприятия или студентов различных вузов в изолированные секции с самостоятельными входами и набором помещений культурно-бытового обслуживания.
При выборе этажности общежитий для семейной молодежи учитываются те же факторы и рекомендации, которые приведены выше, применительно к общежитиям для одиноких.
Общежития для рабочих, служащих и студентов вузов могут иметь одинаковое планировочное решение жилой части, однако в решении помещений культурно-бытового обслуживания имеются различия, обусловленные особенностями жизни и быта этих контингентов молодежи. В связи с этим в типовом проекте нужно предусматривать варианты решения группы обслуживающих помещений, отражающие специфику быта заселяемого контингента. В общежитии для семейной молодежи предусматриваются жилые ячейки для различных типов семей. При этом в типовых проектах рекомендуется принимать следующее соотношение различных типов семей, %:
супруги с одним ребенком 70
бездетные супружеские пары 20
один из родителей с ребенком 10
Соотношение типов жилых ячеек в индивидуальных проектах принимается в соответствии с местными демографическими особенностями.
Рекомендуется проектировать однокомнатные жилые ячейки с жилой площадью, м2: для семей из трех человек не менее 18, а для семей из двух человек - 12 (рис. 77).
В квартире следует предусматривать следующие помещения:
жилую комнату, кухню или кухню-нишу, переднюю, санитарный узел. Размеры и форма помещений должны обеспечивать возможность организации функциональных зон в соответствии с потребностями различных типов семей.

Рис. 77. Жилые ячейки общежитий для семейной молодежи (рабочих, служащих и студентов вузов)
I - из жилой комнаты, передней, санитарного узла и кухни, имеющей естественное освещение; II - из жилой комнаты, передней, санитарного узла и кухни-ниши без естественного освещения; а, б, г - е - на 3 чел.; в, ж - на 2 чел.
Рис. 78. Примеры решения типовых и первых этажей общежития для семейной молодежи (рабочих, служащих и студентов вузов)
а - типовой этаж общежития с кухнями-нишами без естественного освещения: 1 - квартира для семьи из 3 чел.; 2 - квартира для семьи из 2 чел.; 3 - кухня-ниша; 4 - комната отдыха; б - типовой этаж общежития с кухнями, имеющими естественное освещение: в - первый этаж общежития; 1 - вестибюль; 2 - колясочная; 3 - комната персонала; 4 - кладовая чистого белья; 5 - кладовая грязного белья; 6 - кладовая личных вещей; 7 - кладовая хозяйственного инвентаря; 8 - кладовая спортивного инвентаря; 9 - постирочная; 10 - сушильная с гладильной; 11 - комната кратковременного пребывания детей; 12 - комната отдыха; 13 - электрощитовая
В жилых комнатах предусматривается возможность удобного размещения спальных мест взрослых членов семей и детей дошкольного возраста. Встроенные шкафы располагаются в жилых комнатах или в передней.
Из жилой комнаты может устраиваться вход в кухню. При этом второй вход в кухню из передней или коридора необязателен. Целесообразно применение раздвижных перегородок между жилой комнатой, кухней и передней. Кухня-ниша может размещаться в жилой комнате или в передней. Кухня или кухня-ниша оборудуется трехконфорочной электрической плитой, мойкой, шкафом под мойку, столом-шкафом, двумя навесными шкафами и холодильником.
Ширина передней, а также коридоров, в которых размещаются встроенные шкафы, принимается не менее 1,4 м; ширина внутриквартирных, проходов - не менее 0,85 м. В передней предусматриваются хозяйственный шкаф площадью 0,5 м2 и место для вешалки длиной не менее 0,8 м. В общежитиях для I климатического района (кроме подрайона IВ) предусматриваются сушильные шкафы в передней (0,5 м2 на жилую ячейку). Санитарный узел следует оборудовать ванной, унитазом и умывальником.
В общежитиях кроме размещаемых в IБ и IГ климатических подрайонах при жилых комнатах и кухнях могут устраиваться балконы и лоджии площадью не более 15 % общей площади жилой ячейки.
Состав и ориентировочные площади помещений культурно-бытового обслуживания рекомендуется принимать по табл. 3.
В дополнение к помещениям культурно-бытового обслуживания, перечисленным в табл. 3, в общежитиях для семенной молодежи в соответствии с постановлением ЦК КПСС, Совета Министров СССР, ВЦСПС и ЦК ВЛКСМ № 328 от 13 марта 1987 г. «О мерах по улучшению материальных и жилищно-бытовых условий аспирантов, студентов высших и учащихся средних специальных учебных заведений» необходимо также предусматривать: в общежитиях на 1000 мест и более филиал библиотеки вуза с читальным залом и книгохранилищем, медицинский пункт, магазин кулинарии и раздаточный пункт детской молочной кухни; помещения для спортивных занятий (настольный теннис, тренажеры), комнаты для приезжающих родственников студентов, помещение для семейных вечеров и праздников. В вестибюлях общежитий следует предусматривать киоски «Союзпечать» и аптечный.
В общежитиях на 1000 мест и более в зависимости от местных условий допускается дополнительно проектировать пункт проката предметов домашнего обихода и спортинвентаря.
Поскольку состав и площади помещений культурно-бытового обслуживания в общежитиях для семейной молодежи значительно меньше, чем в общежитиях для одиночек, рекомендуется встроенное или встроенно-пристроенное размещение этих помещений (рис 78).
При проектировании помещений культурно-бытового обслуживания рекомендуется соблюдать принцип функционального зонирования: зона администрации и персонала, зона кладовых, зона отдыха.
Комната отдыха предназначается для проведения вечеров, семейных праздников, просмотра телевизионных передач и др. В общежитиях на 400 мест и более при комнате отдыха предусматривается кухня или кухня-ниша не менее 7 м2, оборудованная электрической плитой, мойкой, холодильником и кухонной мебелью.
Помещения для стирки, сушки и глажения одежды отделяются от коридора шлюзом. При комнате для кратковременного пребывания детей предусматривается уборная с умывальником.
4.7. Для учащихся ПТУ и техникумов рекомендуется следующая номенклатура общежитий: на 200, 400, 600, 800, 1000 и 1200 человек. Общежития на 1000, 1200 и более человек предназначаются для укрупненных ПТУ и техникумов с 1440, 1960 и более учащимися. Общежития на 200, 400, 600, 800 человек предназначаются для массовых типов ПТУ и техникумов с 540, 720 и 960 учащимися.
Для сельского строительства рекомендуются общежития на 200 и 400 человек. Общежития должны состоять из жилой части, формирующейся из жилых ячеек и общественной части, включающей помещения культурно-бытового обслуживания (рис. 79). При жилых комнатах следует предусматривать санитарно-гигиенические помещения и передние.
Рис. 79. Функциональная структура общежитий для учащихся профессионально-технических училищ (ПТУ) и средних специальных учебных заведений

Рис. 80. Планировочные решения жилых комнат в общежитиях для учащихся
I - II - создание индивидуальных жилых зон, включающих место для сна, рабочее место и шкаф для хранения личных вещей; III - создание общей зоны для занятий; IV - создание общих зон для сна, занятий и хранения личных вещей; а - индивидуальная жилая зона на 1 чел.; б - жилая комната на 2 чел.; в - жилая комната на 3 чел.; 1 - шкаф для хранения личных вещей; 2 - рабочий стол; 4 - кровать; 4 - книжная полка
Жилые ячейки рассчитываются, как правило, на 50 проживающих. В них рекомендуется включать следующие помещения: жилые комнаты, санитарно-гигиенические помещения, передние, комнату воспитателя, комнату отдыха, комнату для занятий, кухню, бытовую комнату для стирки и глажения одежды), помещение для сушки и хранения рабочей одежды и обуви, кладовую уборочного инвентаря (рис. 80 - 82).
Помещения культурно-бытового обслуживания показаны на рис. 83. Состав и ориентировочные площади помещений культурно-бытового обслуживания и подсобных помещений в общежитиях для учащихся ПТУ и техникумов приведены в табл. 4.

Рис. 81. Планировочные решения жилой группы на 50 чел. в общежитиях для учащихся
I - жилая группа с размещением общественных помещений при входе и вынесением бытовых помещений в торец здания; II - жилая группа с компактным размещением обслуживающих помещений повседневного пользования при входе; А - жилые комнаты; Б - бытовые помещения; В - общественные помещения; 1 - жилая комната на 3 чел.; 2 - уборная; 3 - умывальная; 4 - прихожая; 5 - душевая; 6 - комната воспитателя; 7 - комната для занятий; 8 - комната отдыха; 9, 10 - бытовые комнаты (стирка, сушка, глажение и чистка одежды); 11 - помещение для сушки и хранения рабочей одежды и обуви
Рис. 82. Планировочные решения обслуживающих помещения повседневного пользования жилой группы на 50 чел. общежития для учащихся
I - комната для занятий (1 - рабочий стол; 2 - стул; 3 - доска меловая настенная; 4 - стеллаж; 5 - шкафная секция; 6 - подставка для проекционного аппарата); II - комната отдыха: просмотр телевизионных передач и клубная деятельность (а), настольные игры (б), танцы и подвижные игры (в); III - комната воспитателя; IV - кухня на жилую группу 50 чел. (а) и на 25 чел. (б): 1 - электроплита; 2 - стол рабочий; 3 - мойка; 4 - стол; 5 - титан; 6 - обеденный стол; 7 - холодильник; V - бытовая комната (стирка, сушка, глажение одежды): 1 - стол; 2 - стиральная машина; 3 - ванна; 4 - подставка для обуви; 5 - гладильная доска; 6 - вешалка; 7 - зеркало; 8 - сушильный шкаф; 9 - шкаф для хранения уборочного инвентаря; VI - помещение для сушки и хранения рабочей одежды и обуви: 1 - шкафная секция; 2 - сушильный шкаф

Рис. 83. Планировочные решения общественной части общежития для учащихся, размещение помещений культурно-бытового обслуживания в пристроенном объеме (а) и на первом этаже (б)
1 - вестибюль; 2 - комната заведующего общежитием; 3 - комната заведующего хозяйством; 4 - кладовая хозяйственного инвентаря; 5 - кладовая чистого белья; 6 - кладовая грязного белья; 7 - кладовая спортивного инвентаря; 8 - кладовая личных вещей; 9 - мастерская слесаря; 10 - холл; 11 - кружковая комната; 12 - библиотека-передвижка; 13 - зал-аудитория; 14 - фотолаборатория; 15 - радиоузел; 16 - буфет; 17 - палата изолятора (на 1 чел.); 18 - жилая часть общежития
При проектировании специализированных квартирных жилых домов для престарелых и инвалидов или квартир для данных контингентов населения должны учитываться антропометрические и физиологические особенности проживающих. Они должны найти отражение при установлении этажности дома, при оборудовании его лифтом и мусоропроводом, при устройстве лестниц, при назначении ширины коридоров, передних, кухонь, балконов и лоджий, глубины тамбуров, размеров санитарных узлов. Они должны учитываться при выборе функциональной взаимосвязи помещений квартиры и их оборудовании. Специфика бытовых потребностей этих людей диктует необходимость включения в дом ряда общественных и обслуживающих помещений, в том числе медицинских и для трудовой деятельности.
При проектировании домов и квартир для семей с инвалидами, передвигающимися на креслах-колясках, следует учитывать габариты коляски и площади, необходимые для ее поворота. Эти параметры определяют ширину дверей, размеры коридора в местах его поворота, размеры функциональных зон у обеденного стола, у кровати, планировку и оборудование санитарных узлов, размеры пандуса и входного тамбура. Требуемые размеры приведены на рис. 84.
Рис. 84. Планировочные требования к помещениям, обеспечивающие передвижение в них инвалидов на креслах-колясках
а - габариты коляски и площади, необходимые для ее поворота, см; б - размеры коридора при повороте кресла-коляски на 90°, см; в - ширина дверей, см; г - площади, необходимые для открывания дверей, см (I - III - для навесных дверей; IV - для раздвижных дверей; стрелками указаны направления подъезда к двери кресла-коляски); д - размеры функциональных зон у обеденного стола; е - размеры функциональных зон у кровати (I - для инвалида, не нуждающегося в уходе; II - для инвалида, нуждающегося в уходе; III - для родителей, один из которых инвалид); ж - примеры решения санитарных узлов (1 - пересадочная площадка; 2 - настенный смеситель с душевой сеткой на гибком шланге; 3 - трап; 4 - металлический полоз (рельс) на потолке или металлическая штанга для подвески подвижных ручек, лестницы или трапеции; 5 - место для стиральной машины; 6 - опорные поручни; 7 - ручки для закрывания дверей; 8 - откидная скамейка; з - размеры пандуса, см; и - размеры входного тамбура, см
Группа лифтов - два и более лифта одинакового назначения, объединенные системой группового управления, - обслуживающие, как правило, одни и те же этажи здания и имеющие общие холлы или этажные площадки.
Групповое управление лифтами - система управления совместной работой двух и более лифтов в соответствии с заданным алгоритмом (исключение «холостых» пробегов и остановок лифтов, минимизация времени ожидания лифтов).
Лифтовой холл - помещение, в которое выходят двери лифтов.
Однорядное расположение лифтов - расположение лифтов с одной стороны лифтового холла.
Двухрядное расположение лифтов - расположение лифтов с двух противоположных сторон лифтового холла.
Пассажирский поток (пассажиропоток) - численность людей, перемещающихся между этажами при помощи средств вертикального транспорта за определенный период времени.
Интервал движения лифтов - усредненный интервал времени между моментами последовательного отправления вверх с основного посадочного этажа лифтов одной группы, с.
Круговой рейс лифта - путь, проходимый кабиной от основного посадочного этажа до возвращения на этот этаж, м.
Основной посадочный этаж - этаж, на который, прибывает и с которого отправляется основная часть перевозимых лифтами пассажиров (обычно этаж входа в здание - 1-й этаж).
Заполнение кабины, отправляющейся с основного посадочного этажа (возвращающейся на основной посадочный этаж), - численность пассажиров, вошедших в кабины (вышедших из кабины) при отправлении с основного посадочного этажа (по прибытии на основной посадочный этаж), чел.
Время кругового рейса лифта - время, затрачиваемое на круговой рейс и включающее время пуска и движения лифта, открывания и закрывания дверей, а также время загрузки и разгрузки кабины лифта, с.
Число возможных остановок - наибольшее число остановок, на которых лифт может остановиться в определенный период функционирования здания.
Число вероятных остановок - усредненное число остановок лифта за круговой рейс, определяющееся методами теории вероятности с учетом числа возможных остановок, заполнения кабины и организации работы лифтов.
Настоящая методика предназначена для выбора числа, грузоподъемности и скорости пассажирских лифтов, устанавливаемых в жилых зданиях и общежитиях.
При установке в здании двух и более групп лифтов для каждой группы следует проводить самостоятельный расчет. При этом должно быть установлено, какая часть населения будет пользоваться той или иной группой лифтов.
Следует учитывать, что расчетные пассажиропотоки в жилых зданиях и общежитиях носят двухсторонний характер: вверх с основного посадочного этажа и вниз на основной посадочный этаж без междуэтажных перемещений выше основного посадочного этажа.
Грузоподъемность лифтов (номинальная вместимость кабин Е) при расчете вертикального транспорта определяется численностью пассажиров, накопившихся в лифтовых холлах за время интервала движения лифтов tи. Заполнение кабины одного лифта, отправляющейся вверх с основного посадочного этажа Еп, и возвращающейся на этот этаж Ес, чел., определяется по формулам:
Еп = аiпtи/3600; (1)
Ес = аiсtи/3600, (2)
где аiп и аiс - величины расчетных приведенных пиковых пассажиропотоков, поднимающихся вверх с основного посадочного этажа и опускающихся на основной посадочный этаж, чел/ч; tи - интервал движения лифтов, с.
где 0,12 - коэффициент приведения пятиминутных пиковых
пассажиропотоков к часовым; Iп и Iс - показатели интенсивности пятиминутных пиковых
пассажиропотоков, поднимающихся с основного посадочного этажа и возвращающихся
на этот этаж, %;
- численность
населения, пользующегося лифтами, чел; i
- номера этажей, население которых для перемещений с основного посадочного
этажа и с верхних этажей на основной посадочный пользуется лифтами; N -
номер верхнего заселенного этажа.
При определении aiп может быть принято: i = 3… N - для зданий с отличным и хорошим уровнем комфортности обслуживания пассажиров; i = 4… N - для зданий с хорошим уровнем комфортности обслуживания пассажиров.
При определении аiс принимается: i = 4… N - для зданий с отличным и хорошим уровнем комфортности обслуживания пассажиров; i = 5… N - для зданий с удовлетворительным уровнем комфортности пассажиров.
Значения Iп и Ic следует принимать по табл. 1.
Таблица 1
|
Показатель интенсивности пятиминутных пиковых пассажиропотоков, % |
||
|
Iп |
Ic |
|
|
Жилое и общежитие для проживания рабочих и служащих |
4,95 |
2,55 |
|
Общежитие для учащихся (студентов), занятия которых проводятся: в одну смену |
7,92 |
4,08 |
|
в две и более смены |
6,6 |
3,4 |
Интервал движения лифтов, определяющий уровень комфортности обслуживания пассажиров, оценивается как: tи £ 60 с - отличный, tи £ 80 с - хороший, tи £ 100 с - удовлетворительный, tи > 100 с - неудовлетворительный.
В пределах требуемого уровня комфортности обслуживания пассажиров величина tи выбирается таким образом, чтобы значение Е было наибольшим при удовлетворении неравенства (5).
В прил. 3 СНиП 2.08.01-89 принят удовлетворительный уровень комфортности обслуживания пассажиров, т.е. интервал движения лифтов tи £ 100 с.
Вместимость кабины Е, чел., лифтов должна быть больше или равна заполнению кабины лифта на основном посадочном этаже
Е ³ Еп, (5)
Если по расчету достаточно установить лифты грузоподъемностью 400 кг, то в зданиях высотой более 10 этажей, как минимум, один из этих лифтов следует заменить на лифт грузоподъемностью 630 кг с размером кабины (ширина´глубина) 1100´2100 или 2100´1100 мм. Указанную замену допустимо проводить в общежитиях высотой в 10 и менее этажей.
Число пассажирских лифтов n, требующихся для установки в здании, определяется по формуле
где Т - время кругового рейса лифта, с.
Полученное дробное число округляется до целого, округление до целого может производиться в сторону уменьшения в случаях, когда дробная часть не превышает 10 % целой.
Время кругового рейса пассажирского лифта T, с находится по формулам:
T = [2Hв - h(Nв + 1)]/v + 1,1St, (7)
где Нв - вероятная высота подъема лифта, м;
Hв = kиHmax (8)
Nв = Nв.п + Nв.с; (9)
Nв.п = Ni - Ni(Ni - 1/Ni)Eп; (10)
Nв.c = Ni - Ni(Ni - 1/Ni)Ec; (11)
∑t = (t1 + t2 + t3)(Nв + 1) + t4 + t5; (12)
где h - путь, проходимый лифтом при разгоне до номинальной скорости и торможении от номинальной скорости до полной остановки, м. Значения h для лифтов с различными скоростями приведены в табл. 3; Nв, - число вероятных остановок выше основного посадочного этажа за круговой рейс; St - время, затрачиваемое на разгон, торможение, пуск лифта, открывание и закрывание дверей, вход и выход пассажиров, с; Нmax - высота подъема лифта от уровня пола основного посадочного этажа до уровня пола верхнего обслуживаемого этажа, м; kи - коэффициент вероятной высоты подъема лифта (см. табл. 2); Nв.п и Nв.с - число вероятных остановок лифта выше основного посадочного этажа при подъеме и спуске соответственно; Ni - число возможных остановок лифта выше основного посадочного этажа; t1 + t2 + t3 - затраты времени на разгон лифта до номинальной скорости v, торможение от номинальной скорости до полной остановки, пуск лифта, открывание и закрывание дверей, с (см. табл. 3); t4 + t5 - затраты времени в круговом рейсе на вход пассажиров в кабину лифта и выход из нее с; Dt - время входа или выхода одного пассажира, с (см. табл. 4).
Таблица 2
|
Nв.п/Ni |
£ 0,6 |
0,61…0,7 |
0,71…0,8 |
0,81…1 |
|
kи |
0,7 |
0,8 |
0,9 |
1 |
Таблица 3
|
v, м/с |
h, м |
t1 + t2 + t3, c |
|
1 |
2 |
12 |
|
1,6 |
2,5 |
10 |
|
2,5 |
4,5 |
11 |
|
4 |
16 |
16 |
Таблица 4
|
Ширина дверного проема лифта, мм |
Dt |
|
< 1000 |
1,5 |
|
1000 и более |
1 |
Исходные данные
Назначение здания - общежитие для студентов высших учебных заведений
Число смен начала занятий - одна
Число этажей в здании - 16
Назначение этажей:
1, 2 - помещения для культурно-бытового обслуживания
3…16 - жилые
Заселенность этажа - 70 чел.
Высота этажа - 2,8 м
Допустимый уровень комфортности обслуживания пассажиров - «удовлетворительный»
|
Расчет |
||
|
1. Величины расчетных приведенных пиковых пассажиропотоков по формулам (3) и (4) где Iп = 7,92 % и Iс = 4,08 % по табл. 1 i = 4… N - при подъеме (п. 7) i = 5… N - при спуске (п. 7) mi = 70 чел. |
аiп = 0,12 · 7,92 · 70 · 13 = 864,9 чел/ч аic = 0,12 · 4,08 · 70 · 12 = 411,3 чел/ч |
|
|
2. Заполнение кабины одного лифта при подъеме и спуске - по формулам (1) и (2) Принимаем tи = 100 с - удовлетворительный уровень комфортности обслуживания пассажиров |
Eп = 864,9 · 100/3600 = 24 чел. Eс = 864,9 · 100/3600 = 24 чел. Полученное значение Eп слишком велико, так как ГОСТ 5746-83 предусматривает производство лифтов грузоподъемностью до 1600 кг с Е до 20 чел. Исходя из этого величина tи должна быть уменьшена. Рассмотрим два варианта системы вертикального транспорта I. tи = 50 с Eп = 864,9 · 49/3600 = 12 чел. Eс = 411,3 · 49/3600 = 5,7 чел. II. tи = 33 с Eп = 864,9 · 33/3600 = 7,9 чел. Eс = 411,3 · 33/3600 = 3,8 чел. |
|
|
3. Грузоподъемность (вместимость) кабины лифта выбираем исходя из формулы (5) Е ³ Еп, чел. (5) |
Принимаем к установке по ГОСТ 5746 - 83: I - лифты грузоподъемностью 1000 кг с Е = 12 чел. II - » » 630 кг с Е = 8 чел. В зданиях общежитий для студентов высших учебных заведений рекомендуется применять лифты для общественных зданий со скоростью 1,6 м/с при числе остановок 16, по ГОСТ 5746-83 |
|
|
4. Число вероятных остановок за круговой рейс выше основного посадочного этажа: по формулам (9) и (10) при Ni = 13 (i = 4…16 см. п. 1 настоящего примера) и по формуле (11) при Ni = 12 (i = 5…16, см. п. 1 настоящего примера) |
I. Nв = 8,02 + 4,69 = 12,71 II. Nв = 6,1 + 3,38 = 9,48 I. Nв.п = 13 - 13[(13 - 1)/13]12 = 8,02 II. Nв.п = 13 - 13[(13 - 1)/13]7,9 = 6,1 I. Nв.п = 12 - 12[(12 - 1)/12]5,7 = 4,69 II. Nв.c = 12 - 12[(12 - 1)/12]3,8 = 3,38 |
|
|
5. Вероятная высота подъема лифта по формуле (8) |
Nв.п / Ni = 8,02 / 13 = 0,62; kи = 0,8 (см. табл. 2 прил. 2) Hmax = 2,8 · 15 = 42 м (отметка уровня пола 16 этажа) Hв = 0,8 ´ 42 = 33,6 м II. Nв.п / Ni = 6,1 / 13 = 0,47; kи = 0,7 (см. табл. 2 прил. 2) |
|
|
6. Время входа пассажиров в кабину лифта и выхода из нее по формуле (13) По табл. 4 принимаем: Dt = 1 с для I варианта, так как ширина дверного проема лифтов грузоподъемностью 1000 кг равна 1100 мм; Dt = 1,5 с для II варианта |
Hв = 0,7 · 42 = 30,1 м I. t4 + t5 = 2 · 1(12 + 5,7) = 35,4 с II. t4 + t5 = 2 · 1,5(6,1 + 3,8) = 29,7 с |
|
|
7. Затраты времени St по формуле (12) при t1+ t2 + t3 = 10 с - для лифтов со скоростью 1,6 м/с (см. табл. 3) |
I. St = 10(12,71 + 1) + 35,4 = 172,5 с II. St = 10(9,48 + 1) + 29,7 = 134,5 с |
|
|
8. Время кругового рейса по формуле (7) при h = 2,5 м - для лифтов с v = 1,6 м/с (см. табл. 3) |
I. T = [2 · 33,6 - 2,5(12,71 + 1)] / 1,6 + 1,1 · 172,5 = 210,3 с II. T = [2 · 30,1 - 2,5(9,48 + 1)] / 1,6 + 1,1 · 134,5 = 169,2 с |
|
|
9. Число пассажирских лифтов - по формуле (6) при tи = 50 с для I варианта; tи = 33 с для II варианта |
I. n = 210,3 / 50 = 4,2 » 4 лифта II. n = 169,2 / 33 = 5,12 » 5 лифтов |
|
Согласно расчету в здании следует установить по I варианту 4 лифта грузоподъемностью 1000 кг или по II варианту 5 лифтов грузоподъемностью 630 кг со скоростью 1,6 м/с.
В соответствии с требованиями прил. 3 СНиП 2.08.01-89 в обоих вариантах, как минимум, один из лифтов заменяем на лифт грузоподъемностью 1000 кг с размером кабины 1100´2100 мм. Остальные лифты в варианте I следует принять с размером кабины 1600´1400 мм.
СОДЕРЖАНИЕ
|
2. Объемно-планировочные и конструктивные решения. Хозяйственные постройки. 3 |
|
_________________________________________________________ |